Villa mit Waldblick und Pool, 26m² Wintergartenanbau genehmigt/Kleingewerbe hälftig möglich
2.900.000 €
Kaufpreis
300 m²
Wohnfläche
11
Zimmer
immobilien.de Nr.: 9408802
Objektnummer: 390870
Preise & Kosten
| Kaufpreis | 2.900.000 € |
| Nebenkosten | keine Angabe |
| Maklerprovision | keine Provision, courtagefrei |
Größe & Zustand
| Wohnfläche | 300 m² |
| Grundstücksfläche | 825 m² |
| Zimmer | 11 |
| Baujahr | 2016 |
| Verfügbar ab | nach Absprache |
| Zustand | Neuwertig |
Energie
| Heizungsart | Zentralheizung |
Objektbeschreibung
Leben in einer Designervilla. Gewöhnlich ist anders.
Sommers sitzen Sie Abends am geheizten Außenpool mit römischer Treppe und genießen im beleuchteten Felsgarten Ihr Glas Rotwein mit Blick auf den Sonnenuntergang über dem Stadtberger Wald. Der Wohngarten mit 3 großen und überdachten Terrassen nach West, Ost und Süd lädt an überdachter Bar vor dem Pizzaholzofen zum Verweilen ein. Die letzten Sonnenstrahlen im Dorf treffen Ihr neues Haus.
Morgens frühstücken Sie auf der geschützten 7m breiten und überdachten Ostterrasse. Abends wechseln Sie zur 10 m breiten, überdachten Westterrasse mit Blick in die Ferne.
Den Winter überbrücken Sie mit gemütlichen Abenden am Kamin, sehen dem Feuer im Ess- oder wahlweise Wohnzimmer zu. Die Fußbodenheizung hält angenehme Temperaturen. Das KfW-55 Haus lässt die Kälte draußen.
Vielleicht möchten Sie einen Espresso an der goldmosaikgefliesten Bar einnehmen.
Oder Sie kochen etwas in der bis zur Decke mit schwarz (metro)ge-fliesten Küche. Das beleuchtete Lichtband aus Hängestahlschränken mit Stabglas wähnt Sie mehr in einer Cocktailbar als Küche.
Später schauen Sie im TV-Raum mit 65Zoll Flatscreen Ihre Lieblingsserie.
Das Haus wurde 2023/2024 neu gestylt und eingerichtet, hat teils weiße Holzvertäfelungen, kombiniert mit teuren Designertapeten. Das apricotfarbene Esszimmer mit Blick auf Pool und Garten wird von einem weißlackierten Bücherregal umsäumt. Das Wohnzimmer trägt eine goldene Samtmustertapete mit Blick durch die Rundbogenfenster auf die Westterrasse. Die Böden sind in den Bädern Antikmarmor, in den Wohnräumen teils Zementfliesen mit wunderschönen Mustern.
Die Fußbodenkühlung schafft es im Sommer, das lichte Haus angenehm kühl zu halten.
Die obere Etage hat hohe Räume, da sie unter offenem Dach liegt. Eine Seite gehört den Kindern, mittig liegt ein Aufenthaltsraum mit TV und Sofa.
Die Eltern haben eine eigene Seite mit großem Schlafzimmer. Es gibt neben dem Bad mit Whirlwanne ein getrenntes WC. Ferner liegen dort Umkleide- und Fitnesszimmer.
Sommers sitzen Sie Abends am geheizten Außenpool mit römischer Treppe und genießen im beleuchteten Felsgarten Ihr Glas Rotwein mit Blick auf den Sonnenuntergang über dem Stadtberger Wald. Der Wohngarten mit 3 großen und überdachten Terrassen nach West, Ost und Süd lädt an überdachter Bar vor dem Pizzaholzofen zum Verweilen ein. Die letzten Sonnenstrahlen im Dorf treffen Ihr neues Haus.
Morgens frühstücken Sie auf der geschützten 7m breiten und überdachten Ostterrasse. Abends wechseln Sie zur 10 m breiten, überdachten Westterrasse mit Blick in die Ferne.
Den Winter überbrücken Sie mit gemütlichen Abenden am Kamin, sehen dem Feuer im Ess- oder wahlweise Wohnzimmer zu. Die Fußbodenheizung hält angenehme Temperaturen. Das KfW-55 Haus lässt die Kälte draußen.
Vielleicht möchten Sie einen Espresso an der goldmosaikgefliesten Bar einnehmen.
Oder Sie kochen etwas in der bis zur Decke mit schwarz (metro)ge-fliesten Küche. Das beleuchtete Lichtband aus Hängestahlschränken mit Stabglas wähnt Sie mehr in einer Cocktailbar als Küche.
Später schauen Sie im TV-Raum mit 65Zoll Flatscreen Ihre Lieblingsserie.
Das Haus wurde 2023/2024 neu gestylt und eingerichtet, hat teils weiße Holzvertäfelungen, kombiniert mit teuren Designertapeten. Das apricotfarbene Esszimmer mit Blick auf Pool und Garten wird von einem weißlackierten Bücherregal umsäumt. Das Wohnzimmer trägt eine goldene Samtmustertapete mit Blick durch die Rundbogenfenster auf die Westterrasse. Die Böden sind in den Bädern Antikmarmor, in den Wohnräumen teils Zementfliesen mit wunderschönen Mustern.
Die Fußbodenkühlung schafft es im Sommer, das lichte Haus angenehm kühl zu halten.
Die obere Etage hat hohe Räume, da sie unter offenem Dach liegt. Eine Seite gehört den Kindern, mittig liegt ein Aufenthaltsraum mit TV und Sofa.
Die Eltern haben eine eigene Seite mit großem Schlafzimmer. Es gibt neben dem Bad mit Whirlwanne ein getrenntes WC. Ferner liegen dort Umkleide- und Fitnesszimmer.
Ausstattung
| Anzahl der Etagen im Haus | 2 |
| Küche | Einbauküche |
| Bad | 3 |
| Bad | Dusche, Wanne |
| Boden | Fliesen |
| Balkone | 0 |
| Garten | |
| Terrassen | 1 |
| Carport | 1 |
Terrasse, Garten, Vollbad, Duschbad, Pool · Schwimmbad, Einbauküche, Gäste-WC, Kamin, Fliesen
Bemerkungen:
Das Haus kann möbliert samt Elektrogeräten wie TV,s, Bose soundsystem, ECM Espressomaschine etc. erworben werden.
Das KfW-55-Haus in Holzständerbauweise mit 25 °Giebeldach, hat zwei Vollgeschosse. EG 2.70m Raumhöhe , 1. OG zum Dach offen, 10.000 kwp PV Anlage mit Versorgung von Hausstrom und Heizung,
Die Wärmepumpe Vaillant hat für den Sommer Kühlfunktion, das Brauchwasser wird mit Anlage enthärtet, Lüftungsanlage mit Wärmerückgewinnung. Fußbodenheizung.
Nahezu alle Räumen haben bodentiefe Fenster 3fach verglast, zudem 3x Internetanschlussbuchsen mit zentralem Netzwerkanschluss.
Der 5m x 8m große Außenpool mit elektrischer Abdeckung hat automatische Chlorung und wird mit eigener Wärmepumpe beheizt. Er ist 1.50 m tief und hat eine beige Folienbeschichtung der franz. Marke desjoyaux (Wasser türkis). Er wurde vor 3 Jahren vom Fachmann errichtet.
Die Poolbar hat einen Pizzaholzofen und liegt an einem kleinen Teich.
Heizung, Kühlung, Wasserenthärtung und Pooltechnik wurden jedes Jahr gewartet.
Wohn-/Esszi mit Kamingrundofen (von ansässigem Kaminbauer errichtet) mit beidseitigem Blick.
Bemerkungen:
Das Haus kann möbliert samt Elektrogeräten wie TV,s, Bose soundsystem, ECM Espressomaschine etc. erworben werden.
Das KfW-55-Haus in Holzständerbauweise mit 25 °Giebeldach, hat zwei Vollgeschosse. EG 2.70m Raumhöhe , 1. OG zum Dach offen, 10.000 kwp PV Anlage mit Versorgung von Hausstrom und Heizung,
Die Wärmepumpe Vaillant hat für den Sommer Kühlfunktion, das Brauchwasser wird mit Anlage enthärtet, Lüftungsanlage mit Wärmerückgewinnung. Fußbodenheizung.
Nahezu alle Räumen haben bodentiefe Fenster 3fach verglast, zudem 3x Internetanschlussbuchsen mit zentralem Netzwerkanschluss.
Der 5m x 8m große Außenpool mit elektrischer Abdeckung hat automatische Chlorung und wird mit eigener Wärmepumpe beheizt. Er ist 1.50 m tief und hat eine beige Folienbeschichtung der franz. Marke desjoyaux (Wasser türkis). Er wurde vor 3 Jahren vom Fachmann errichtet.
Die Poolbar hat einen Pizzaholzofen und liegt an einem kleinen Teich.
Heizung, Kühlung, Wasserenthärtung und Pooltechnik wurden jedes Jahr gewartet.
Wohn-/Esszi mit Kamingrundofen (von ansässigem Kaminbauer errichtet) mit beidseitigem Blick.
Sonstige Informationen
Heizungsart: Zentralheizung
Energieausweis nicht vorhanden
Nutzung/Erweiterungen:
Das Objekt kann nach dort wirksamem Bebauungsplan zu 49 % gewerblich genutzt werden. Da dies in der Vergangenheit so genutzt wurde (Kanzlei), wäre eine bauliche Trennung/Teilung ohne größeren Aufwand wiederherstellbar.
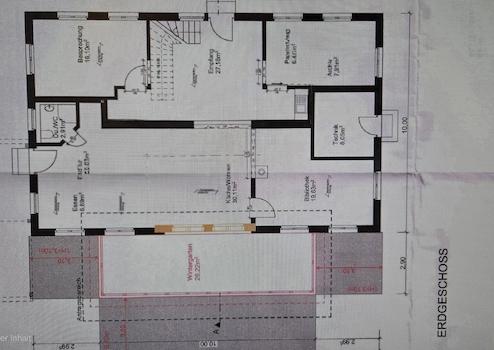
Das Wohnzimmer ist durch einen bereits genehmigten Wintergarten um 26 m² (10 m breit, 3 m tief) nach Westen erweiterbar.
ohne-makler (OM) ist weder Anbieter noch Vermittler der Immobilie. OM betreibt eine Plattform für Immobilieneigentümer, die unter anderem die gleichzeitige Veröffentlichung einzelner Inserate auf mehreren Immobilienportalen ermöglicht. Die Inhalte dieser Inserate werden ausschließlich von Dritten verantwortet. Für die Richtigkeit, Vollständigkeit oder Rechtmäßigkeit der Angaben übernimmt OM keine Haftung. Hinweise auf mögliche Rechtsverstöße können jederzeit gemeldet werden und werden nach Prüfung umgehend bearbeitet.
Energieausweis nicht vorhanden
Nutzung/Erweiterungen:
Das Objekt kann nach dort wirksamem Bebauungsplan zu 49 % gewerblich genutzt werden. Da dies in der Vergangenheit so genutzt wurde (Kanzlei), wäre eine bauliche Trennung/Teilung ohne größeren Aufwand wiederherstellbar.
Das Wohnzimmer ist durch einen bereits genehmigten Wintergarten um 26 m² (10 m breit, 3 m tief) nach Westen erweiterbar.
ohne-makler (OM) ist weder Anbieter noch Vermittler der Immobilie. OM betreibt eine Plattform für Immobilieneigentümer, die unter anderem die gleichzeitige Veröffentlichung einzelner Inserate auf mehreren Immobilienportalen ermöglicht. Die Inhalte dieser Inserate werden ausschließlich von Dritten verantwortet. Für die Richtigkeit, Vollständigkeit oder Rechtmäßigkeit der Angaben übernimmt OM keine Haftung. Hinweise auf mögliche Rechtsverstöße können jederzeit gemeldet werden und werden nach Prüfung umgehend bearbeitet.
Lage des Objektes
Die moderne Designervilla steht auf einem von der Straße abseits gelegenen Grundstück in ruhigster Lage am Feld mit Fernblick auf den Stadtberger Wald.
Das Grundstück liegt in Leitershofen, unstreitig Bestlage in Augsburg.
Der Dorfkern mit Pizzeria, Metzger, Feinkosten, mehreren Bäckern samt Cafe sowie Bioladen, Schneiderei, Post, Friseur, Apotheke u.v.m. lässt keine Wünsche offen. In der Nähe sind Freibad, Stadtberger Sporthalle, die Sportanlagen Leitershofen mit angrenzenden Westlichen Wäldern, mehrere Tennisplätze.
Die Stadt ist mit Bus und Straßenbahn in 15 min erreichbar, mit dem Auto in 10 min. Durch die Lage nähe der B 17 ist jede Richtung samt A 8 problemlos zu erreichen.
Infrastruktur (im Umkreis von 5 km):
Apotheke, Lebensmittel-Discount, Allgemeinmediziner, Kindergarten, Grundschule, Öffentliche Verkehrsmittel
Das Grundstück liegt in Leitershofen, unstreitig Bestlage in Augsburg.
Der Dorfkern mit Pizzeria, Metzger, Feinkosten, mehreren Bäckern samt Cafe sowie Bioladen, Schneiderei, Post, Friseur, Apotheke u.v.m. lässt keine Wünsche offen. In der Nähe sind Freibad, Stadtberger Sporthalle, die Sportanlagen Leitershofen mit angrenzenden Westlichen Wäldern, mehrere Tennisplätze.
Die Stadt ist mit Bus und Straßenbahn in 15 min erreichbar, mit dem Auto in 10 min. Durch die Lage nähe der B 17 ist jede Richtung samt A 8 problemlos zu erreichen.
Infrastruktur (im Umkreis von 5 km):
Apotheke, Lebensmittel-Discount, Allgemeinmediziner, Kindergarten, Grundschule, Öffentliche Verkehrsmittel
