Zentrale 3-Zimmer-Wohnung mit Balkon in der Bremer Bahnhofsvorstadt – frei werdend
149.000 €
Kaufpreis
58 m²
Wohnfläche
3
Zimmer
immobilien.de Nr.: 9408741
Objektnummer: 419236
Preise & Kosten
| Kaufpreis | 149.000 € |
| Nebenkosten | keine Angabe |
| Hausgeld | 120 € |
| Maklerprovision | keine Provision, courtagefrei |
Größe & Zustand
| Wohnfläche | 58 m² |
| Zimmer | 3 |
| Baujahr | 1975 |
| Verfügbar ab | nach Absprache |
| Zustand | Gepflegt |
Energie
| Energieausweistyp | Verbrauch |
| Energieeffizienzklasse | F |
| Energieverbrauchkennwert | 171 kWh/(m²*a) |
| Heizungsart | Etagenheizung |
| Energieträger/Befeuerung | Gas |
Objektbeschreibung
Diese gepflegte 3-Zimmer-Wohnung ist freiwerdend und befindet sich im 3. Obergeschoss eines soliden Mehrfamilienhauses in zentraler Lage der Bremer Bahnhofsvorstadt. Der funktionale, gut nutzbare Grundriss bietet vielseitige Nutzungsmöglichkeiten und spricht sowohl Eigennutzer als auch Kapitalanleger an. Die Raumaufteilung ermöglicht neben der klassischen Nutzung auch eine Verwendung als Wohngemeinschaft (WG).
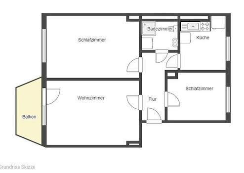
Die Wohnfläche von ca. 58 m² verteilt sich auf ein großzügiges Wohnzimmer mit Zugang zum Balkon, zwei weitere gut geschnittene Zimmer, die sich flexibel als Schlaf-, Arbeits- oder Kinderzimmer nutzen lassen, eine separate Küche sowie ein innenliegendes Badezimmer mit Dusche. Der Balkon ergänzt den Wohnraum sinnvoll und bietet einen angenehmen Rückzugsort.
Die Wohnung wird frei übergeben und steht dem neuen Eigentümer zur individuellen Nutzung oder zur Neuvermietung zur Verfügung. Kunststofffenster, Laminat- und Fliesenböden sowie ein eigener Kellerraum vervollständigen dieses attraktive Angebot.
Die Wohnfläche von ca. 58 m² verteilt sich auf ein großzügiges Wohnzimmer mit Zugang zum Balkon, zwei weitere gut geschnittene Zimmer, die sich flexibel als Schlaf-, Arbeits- oder Kinderzimmer nutzen lassen, eine separate Küche sowie ein innenliegendes Badezimmer mit Dusche. Der Balkon ergänzt den Wohnraum sinnvoll und bietet einen angenehmen Rückzugsort.
Die Wohnung wird frei übergeben und steht dem neuen Eigentümer zur individuellen Nutzung oder zur Neuvermietung zur Verfügung. Kunststofffenster, Laminat- und Fliesenböden sowie ein eigener Kellerraum vervollständigen dieses attraktive Angebot.
Ausstattung
| Anzahl der Etagen im Haus | 4 |
| Inserat befindet sich im Stockwerk | 3 |
| Bad | 1 |
| Bad | Dusche |
| Boden | Fliesen, Laminat |
| Balkone | 1 |
| Terrassen | 0 |
| Keller |
Balkon, Keller, Duschbad, Laminat, Fliesen
Bemerkungen:
-Balkon
-Laminat- und Fliesenböden
-Kunststofffenster
-Separate Küche
-Duschbad
-Eigener Kellerraum
-Gemeinschaftlicher Fahrradkeller
-Gasetagenheizung
Bemerkungen:
-Balkon
-Laminat- und Fliesenböden
-Kunststofffenster
-Separate Küche
-Duschbad
-Eigener Kellerraum
-Gemeinschaftlicher Fahrradkeller
-Gasetagenheizung
Sonstige Informationen
Heizungsart: Etagenheizung
Energieträger: Gas
Der Verkauf erfolgt provisionsfrei direkt durch die Eigentümergesellschaft.
Alle Angaben in diesem Exposé basieren auf externen Unterlagen (u. a. Energieausweis). Trotz sorgfältiger Prüfung wird für die Richtigkeit und Vollständigkeit der Angaben keine Gewähr übernommen. Maßgeblich sind ausschließlich die Vereinbarungen im notariellen Kaufvertrag.
Makleranfragen nicht erwünscht. Nach § 7 UWG sind unaufgeforderte Kontaktaufnahmen durch Makler ohne ausdrückliche Einwilligung des Empfängers verboten!
ohne-makler (OM) ist weder Anbieter noch Vermittler der Immobilie. OM betreibt eine Plattform für Immobilieneigentümer, die unter anderem die gleichzeitige Veröffentlichung einzelner Inserate auf mehreren Immobilienportalen ermöglicht. Die Inhalte dieser Inserate werden ausschließlich von Dritten verantwortet. Für die Richtigkeit, Vollständigkeit oder Rechtmäßigkeit der Angaben übernimmt OM keine Haftung. Hinweise auf mögliche Rechtsverstöße können jederzeit gemeldet werden und werden nach Prüfung umgehend bearbeitet.
Energieträger: Gas
Der Verkauf erfolgt provisionsfrei direkt durch die Eigentümergesellschaft.
Alle Angaben in diesem Exposé basieren auf externen Unterlagen (u. a. Energieausweis). Trotz sorgfältiger Prüfung wird für die Richtigkeit und Vollständigkeit der Angaben keine Gewähr übernommen. Maßgeblich sind ausschließlich die Vereinbarungen im notariellen Kaufvertrag.
Makleranfragen nicht erwünscht. Nach § 7 UWG sind unaufgeforderte Kontaktaufnahmen durch Makler ohne ausdrückliche Einwilligung des Empfängers verboten!
ohne-makler (OM) ist weder Anbieter noch Vermittler der Immobilie. OM betreibt eine Plattform für Immobilieneigentümer, die unter anderem die gleichzeitige Veröffentlichung einzelner Inserate auf mehreren Immobilienportalen ermöglicht. Die Inhalte dieser Inserate werden ausschließlich von Dritten verantwortet. Für die Richtigkeit, Vollständigkeit oder Rechtmäßigkeit der Angaben übernimmt OM keine Haftung. Hinweise auf mögliche Rechtsverstöße können jederzeit gemeldet werden und werden nach Prüfung umgehend bearbeitet.
Lage des Objektes
Die Wohnung befindet sich im Doventorsdeich in zentraler Lage der Bremer Bahnhofsvorstadt und bietet eine sehr gute Anbindung an den öffentlichen Nahverkehr sowie an das überregionale Straßennetz. Der Bremer Hauptbahnhof ist in wenigen Gehminuten erreichbar, ebenso mehrere Bus- und Straßenbahnhaltestellen mit schnellen Verbindungen in alle Stadtteile.
Auch mit dem Pkw ist der Standort gut angebunden: Über die nahegelegene B6 besteht eine zügige Verbindung zur A1. Damit eignet sich die Lage sowohl für Berufspendler als auch für Studierende oder citynah orientierte Eigennutzer.
Die Nahversorgung ist umfassend gewährleistet. Supermärkte, Bäckereien, Apotheken sowie Arztpraxen befinden sich in der näheren Umgebung und sind teilweise fußläufig erreichbar. Ergänzt wird das Angebot durch eine vielfältige Auswahl an gastronomischen Betrieben unterschiedlicher Küchenrichtungen.
Zur Erholung und für Spaziergänge laden die Wallanlagen sowie weitere Grünflächen in kurzer Distanz ein und schaffen einen angenehmen Ausgleich zur urbanen Umgebung.
Infrastruktur (im Umkreis von 5 km):
Apotheke, Lebensmittel-Discount, Allgemeinmediziner, Kindergarten, Grundschule, Hauptschule, Realschule, Gymnasium, Gesamtschule, Öffentliche Verkehrsmittel
Auch mit dem Pkw ist der Standort gut angebunden: Über die nahegelegene B6 besteht eine zügige Verbindung zur A1. Damit eignet sich die Lage sowohl für Berufspendler als auch für Studierende oder citynah orientierte Eigennutzer.
Die Nahversorgung ist umfassend gewährleistet. Supermärkte, Bäckereien, Apotheken sowie Arztpraxen befinden sich in der näheren Umgebung und sind teilweise fußläufig erreichbar. Ergänzt wird das Angebot durch eine vielfältige Auswahl an gastronomischen Betrieben unterschiedlicher Küchenrichtungen.
Zur Erholung und für Spaziergänge laden die Wallanlagen sowie weitere Grünflächen in kurzer Distanz ein und schaffen einen angenehmen Ausgleich zur urbanen Umgebung.
Infrastruktur (im Umkreis von 5 km):
Apotheke, Lebensmittel-Discount, Allgemeinmediziner, Kindergarten, Grundschule, Hauptschule, Realschule, Gymnasium, Gesamtschule, Öffentliche Verkehrsmittel
Anbieter kontaktieren
Kontakt
| Telefon | - |
| Fax | - |
| Website | www.ohne-makler.net |
