Wohnen, Vermieten, Investieren – Provisionsfreies Haus mit vielen Optionen
369.000 €
Kaufpreis
185 m²
Wohnfläche
5
Zimmer
immobilien.de Nr.: 9408600
Objektnummer: 8495#ch5lV
Kaufpreis
| Kaufpreis | 369.000 € |
Wohnfläche, Grundstück & Bausubstanz
| Wohnfläche | 185 m² |
| Grundstücksfläche | 870 m² |
| Zimmer | 5 |
| Baujahr | 1960 |
| Letzte Modernisierung | 2019 |
| Verfügbar ab | nach Vereinbarung |
| Zustand | Modernisiert |
Energie
| Energieausweistyp | Bedarfsausweis |
| Ausstellungsdatum | 12. 01. 2022 |
| Gültig bis | 11.01.2032 |
| Baujahr (laut Energieausweis) | 1960 |
| Energieeffizienzklasse | G |
| Endenergiebedarf | 225.5 |
| Wesentlicher Energieträger | Erdgas Leicht |
| Energieträger/Befeuerung | Gas |
Beschreibung der Immobilie
Provisionsfrei für Käufer – vielseitiges Einfamilienhaus mit Einlieger-/Gästeeinheiten in zentraler Lage von Papenburg
Was Sie aus diesem äußerst gepflegten und umfassend renovierten Einfamilienhaus mit separatem Obergeschoss machen, bleibt ganz Ihnen überlassen. Ob großzügiges Wohnen für die Familie, Mehrgenerationenhaus oder attraktive Gäste- bzw. Ferienvermietung – diese Immobilie eröffnet Ihnen zahlreiche Nutzungsmöglichkeiten.
Aktuell wird das Erdgeschoss selbst genutzt. Das Obergeschoss ist in mehrere Zimmer mit jeweils eigenen Duschbädern aufgeteilt und eignet sich hervorragend für die Gäste- und Ferienvermietung (Papenburger Gästehaus). Besonders komfortabel: Die Räume im Obergeschoss sind zusätzlich über eine separate Außentreppe erreichbar.
Das Haus befindet sich in einem erstklassigen Gesamtzustand. Durch kontinuierliche Renovierungen und Modernisierungen in den vergangenen Jahren kann die Immobilie ohne Renovierungsstau übernommen werden. Die letzte umfangreiche Renovierung erfolgte im Jahr 2019, unter anderem mit der Erneuerung der Fliesen und Innentüren im Erdgeschoss.
Zwei Terrassen – eine großzügige und eine kleinere – bieten einen herrlichen Blick in den sehr gepflegten, nahezu uneinsehbaren Garten und laden sowohl Bewohner als auch Gäste zum Entspannen und Verweilen ein.
Zur Senkung der laufenden Energiekosten trägt eine 9 kW-Photovoltaikanlage auf dem Dach des Hauptgebäudes bei. Ein weiteres attraktives Plus: Im hinteren Bereich des Grundstücks besteht zusätzliches Bebauungspotenzial. Eine Bauvoranfrage wurde bereits gestellt.
Ein rundum überzeugendes Objekt mit Perspektive – anschauen lohnt sich.
Was Sie aus diesem äußerst gepflegten und umfassend renovierten Einfamilienhaus mit separatem Obergeschoss machen, bleibt ganz Ihnen überlassen. Ob großzügiges Wohnen für die Familie, Mehrgenerationenhaus oder attraktive Gäste- bzw. Ferienvermietung – diese Immobilie eröffnet Ihnen zahlreiche Nutzungsmöglichkeiten.
Aktuell wird das Erdgeschoss selbst genutzt. Das Obergeschoss ist in mehrere Zimmer mit jeweils eigenen Duschbädern aufgeteilt und eignet sich hervorragend für die Gäste- und Ferienvermietung (Papenburger Gästehaus). Besonders komfortabel: Die Räume im Obergeschoss sind zusätzlich über eine separate Außentreppe erreichbar.
Das Haus befindet sich in einem erstklassigen Gesamtzustand. Durch kontinuierliche Renovierungen und Modernisierungen in den vergangenen Jahren kann die Immobilie ohne Renovierungsstau übernommen werden. Die letzte umfangreiche Renovierung erfolgte im Jahr 2019, unter anderem mit der Erneuerung der Fliesen und Innentüren im Erdgeschoss.
Zwei Terrassen – eine großzügige und eine kleinere – bieten einen herrlichen Blick in den sehr gepflegten, nahezu uneinsehbaren Garten und laden sowohl Bewohner als auch Gäste zum Entspannen und Verweilen ein.
Zur Senkung der laufenden Energiekosten trägt eine 9 kW-Photovoltaikanlage auf dem Dach des Hauptgebäudes bei. Ein weiteres attraktives Plus: Im hinteren Bereich des Grundstücks besteht zusätzliches Bebauungspotenzial. Eine Bauvoranfrage wurde bereits gestellt.
Ein rundum überzeugendes Objekt mit Perspektive – anschauen lohnt sich.
Ausstattungsmerkmale
| Küche | Einbauküche |
| Bad | 3 |
| Bad | Dusche, Wanne, Fenster |
| Boden | Fliesen, Kunststoff |
| Balkone | 1 |
| Terrassen | 1 |
| Garage/Stellplätze | 1 |
Bodenbeläge
Im Erdgeschoss dominieren moderne, schwarze Hochglanzfliesen. Die Küche ist mit hochwertigem Designboden ausgestattet, das Badezimmer im Erdgeschoss mit blau marmorierten Bodenfliesen. Im Obergeschoss wurden in den Schlafzimmern Designböden und in den Duschbädern pflegeleichte Bodenfliesen verlegt.
Küchen
Zwei Küchen sind im Kaufpreis enthalten.
- Im Obergeschoss befindet sich eine funktionale Teeküche.
- Im Erdgeschoss überzeugt eine hochwertige, weiße Einbauküche im modernen Design, die zum Kochen und Genießen einlädt.
Bäder
Insgesamt stehen drei Badezimmer sowie ein zusätzliches Gäste-WC zur Verfügung.
- Das Badezimmer im Erdgeschoss verfügt über eine ebenerdige Dusche, Badewanne, wandhängendes WC sowie ein Handwaschbecken mit Spiegelschrank.
- Die beiden Duschbäder im Obergeschoss wurden 2013 erneuert.
- Zusätzlich befindet sich dort eine separate Toilette.
Garage und Stellplätze
Eine Flachdachgarage steht für Ihr Fahrzeug zur Verfügung. Weitere PKW-Stellplätze bieten ausreichend Parkmöglichkeiten für Gäste.
Grundstück
Das ca. 870 m² große Grundstück ist nahezu uneinsehbar und äußerst gepflegt. Die Hoffläche auf der Vorderseite ist mit modernen roten Vierkantsteinen gepflastert und bietet eine ansprechende Zufahrt zum Haus und zur Garage. Über eine große Pforte gelangen Sie bequem in den Gartenbereich.
Der Garten ist überwiegend pflegeleicht angelegt, mit großzügiger Rasenfläche, eingefasst von roten Vierkantsteinen. Eine hohe, immergrüne Hecke sorgt im hinteren Grundstücksbereich für Privatsphäre. Ein Gartenhaus bietet praktischen Stauraum für Gartenmöbel und Geräte. Auch die Terrassenflächen sind hochwertig gepflastert.
Im Erdgeschoss dominieren moderne, schwarze Hochglanzfliesen. Die Küche ist mit hochwertigem Designboden ausgestattet, das Badezimmer im Erdgeschoss mit blau marmorierten Bodenfliesen. Im Obergeschoss wurden in den Schlafzimmern Designböden und in den Duschbädern pflegeleichte Bodenfliesen verlegt.
Küchen
Zwei Küchen sind im Kaufpreis enthalten.
- Im Obergeschoss befindet sich eine funktionale Teeküche.
- Im Erdgeschoss überzeugt eine hochwertige, weiße Einbauküche im modernen Design, die zum Kochen und Genießen einlädt.
Bäder
Insgesamt stehen drei Badezimmer sowie ein zusätzliches Gäste-WC zur Verfügung.
- Das Badezimmer im Erdgeschoss verfügt über eine ebenerdige Dusche, Badewanne, wandhängendes WC sowie ein Handwaschbecken mit Spiegelschrank.
- Die beiden Duschbäder im Obergeschoss wurden 2013 erneuert.
- Zusätzlich befindet sich dort eine separate Toilette.
Garage und Stellplätze
Eine Flachdachgarage steht für Ihr Fahrzeug zur Verfügung. Weitere PKW-Stellplätze bieten ausreichend Parkmöglichkeiten für Gäste.
Grundstück
Das ca. 870 m² große Grundstück ist nahezu uneinsehbar und äußerst gepflegt. Die Hoffläche auf der Vorderseite ist mit modernen roten Vierkantsteinen gepflastert und bietet eine ansprechende Zufahrt zum Haus und zur Garage. Über eine große Pforte gelangen Sie bequem in den Gartenbereich.
Der Garten ist überwiegend pflegeleicht angelegt, mit großzügiger Rasenfläche, eingefasst von roten Vierkantsteinen. Eine hohe, immergrüne Hecke sorgt im hinteren Grundstücksbereich für Privatsphäre. Ein Gartenhaus bietet praktischen Stauraum für Gartenmöbel und Geräte. Auch die Terrassenflächen sind hochwertig gepflastert.
Sonstige Informationen
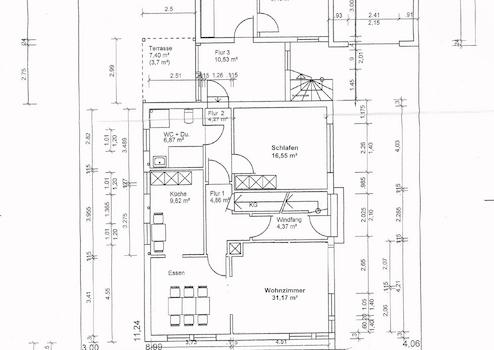
Wohnflächenaufteilung
Erdgeschoss
Windfang ca. 4,37 m²
Bad/WC ca. 6,87 m²
Wohn-/Esszimmer ca. 31,17 m²
Schlafzimmer ca. 16,55 m²
Flure 1 & 2 ca. 9,13 m²
Küche ca. 9,62 m²
Zwischenflur ca. 10,53 m²
Hauswirtschaftsraum ca. 17,85 m²
Abstellraum ca. 9,46 m²
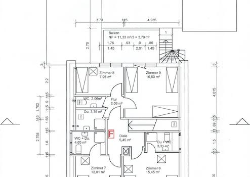
Obergeschoss
Flur ca. 5,45 m²
Duschbad/WC 1 ca. 4,65 m²
Duschbad/WC 2 ca. 3,76 m²
Toilette ca. 2,06 m²
Schlafzimmer 1 ca. 16,50 m²
Schlafzimmer 2 ca. 16,66 m²
Schlafzimmer 3 ca. 15,45 m²
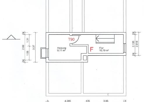
Nutzflächen
Keller, Garage, Gartenhaus
Erdgeschoss
Windfang ca. 4,37 m²
Bad/WC ca. 6,87 m²
Wohn-/Esszimmer ca. 31,17 m²
Schlafzimmer ca. 16,55 m²
Flure 1 & 2 ca. 9,13 m²
Küche ca. 9,62 m²
Zwischenflur ca. 10,53 m²
Hauswirtschaftsraum ca. 17,85 m²
Abstellraum ca. 9,46 m²
Obergeschoss
Flur ca. 5,45 m²
Duschbad/WC 1 ca. 4,65 m²
Duschbad/WC 2 ca. 3,76 m²
Toilette ca. 2,06 m²
Schlafzimmer 1 ca. 16,50 m²
Schlafzimmer 2 ca. 16,66 m²
Schlafzimmer 3 ca. 15,45 m²
Nutzflächen
Keller, Garage, Gartenhaus
Karte wird geladen...
Objektstandort
26871 Papenburg
Lage & Infrastruktur
Objektstandort
26871 Papenburg
Die Immobilie befindet sich in zentraler und äußerst gefragter Lage von Papenburg, in unmittelbarer Nähe der Historisch-Ökologischen Bildungsstätte Emsland e. V.. Diese besondere Umgebung verbindet ruhiges Wohnen mit kurzen Wegen zu Bildung, Kultur und Natur.
Einkaufsmöglichkeiten, Gastronomie, Ärzte sowie weitere Einrichtungen des täglichen Bedarfs sind bequem erreichbar. Die Nähe zur Innenstadt macht diese Lage sowohl für Eigennutzer als auch für Gäste und Ferienvermietung besonders attraktiv.
Papenburg als Wohnort – attraktiv, zentral und naturnah
Papenburg ist ein gefragter Wohnort im nördlichen Emsland und überzeugt durch eine hohe Lebensqualität, eine sehr gute Infrastruktur und ein attraktives Wohnumfeld. Die Stadt verbindet urbanes Leben mit naturnaher Umgebung und bietet ideale Voraussetzungen für Familien, Paare, Senioren und Kapitalanleger.
Als Wirtschaftsstandort ist Papenburg insbesondere durch die Meyer Werft sowie zahlreiche mittelständische Unternehmen bekannt. Dadurch stehen viele Arbeitsplätze in der Region zur Verfügung. Gleichzeitig sind Einkaufsmöglichkeiten, Ärzte, Apotheken, Schulen, Kindergärten und gastronomische Angebote bequem erreichbar.
Die historische Fehnlandschaft mit ihren Kanälen, Grünanlagen und Radwegen prägt das Stadtbild und sorgt für einen hohen Freizeit- und Erholungswert. Sportvereine, kulturelle Veranstaltungen und Freizeitangebote machen Wohnen in Papenburg besonders abwechslungsreich.
Durch die gute Verkehrsanbindung in Richtung Leer, Meppen und Oldenburg sowie die Nähe zur niederländischen Grenze ist Papenburg auch für Pendler attraktiv. Kurze Wege, ein gepflegtes Stadtbild und ein sicheres Umfeld unterstreichen die Beliebtheit des Standorts.
Papenburg als Wohnort steht für eine ausgewogene Mischung aus Arbeiten, Wohnen und Erholen – ein Standort mit langfristiger Wertstabilität und hoher Nachfrage auf dem Immobilienmarkt.
Einkaufsmöglichkeiten, Gastronomie, Ärzte sowie weitere Einrichtungen des täglichen Bedarfs sind bequem erreichbar. Die Nähe zur Innenstadt macht diese Lage sowohl für Eigennutzer als auch für Gäste und Ferienvermietung besonders attraktiv.
Papenburg als Wohnort – attraktiv, zentral und naturnah
Papenburg ist ein gefragter Wohnort im nördlichen Emsland und überzeugt durch eine hohe Lebensqualität, eine sehr gute Infrastruktur und ein attraktives Wohnumfeld. Die Stadt verbindet urbanes Leben mit naturnaher Umgebung und bietet ideale Voraussetzungen für Familien, Paare, Senioren und Kapitalanleger.
Als Wirtschaftsstandort ist Papenburg insbesondere durch die Meyer Werft sowie zahlreiche mittelständische Unternehmen bekannt. Dadurch stehen viele Arbeitsplätze in der Region zur Verfügung. Gleichzeitig sind Einkaufsmöglichkeiten, Ärzte, Apotheken, Schulen, Kindergärten und gastronomische Angebote bequem erreichbar.
Die historische Fehnlandschaft mit ihren Kanälen, Grünanlagen und Radwegen prägt das Stadtbild und sorgt für einen hohen Freizeit- und Erholungswert. Sportvereine, kulturelle Veranstaltungen und Freizeitangebote machen Wohnen in Papenburg besonders abwechslungsreich.
Durch die gute Verkehrsanbindung in Richtung Leer, Meppen und Oldenburg sowie die Nähe zur niederländischen Grenze ist Papenburg auch für Pendler attraktiv. Kurze Wege, ein gepflegtes Stadtbild und ein sicheres Umfeld unterstreichen die Beliebtheit des Standorts.
Papenburg als Wohnort steht für eine ausgewogene Mischung aus Arbeiten, Wohnen und Erholen – ein Standort mit langfristiger Wertstabilität und hoher Nachfrage auf dem Immobilienmarkt.
Kontaktanfrage senden
Über den Anbieter
Gründer Immobilien
Hauptstrasse 97
26892 Dörpen
Kontakt
| Telefon | +49 4963 914923 |
| Mobil | +49 171 9912377 |
| Website | gruender-immobilien.de |
Ansprechpartner/in
Herr Ralf Gründer
Weitere Angebote des Anbieters
5
Ihr Platz an der Ostseeküste – 763 m² Baugrundstück in ...
Grundstück
23946 Ostseebad Boltenhagen
Provisionsfrei für Käufer: Nur wenige hundert Meter vom feinsandigen Ostseestrand entfernt, befindet sich dieses attraktive Baugrundstück in ruhiger Wohnsiedlungslage von Boltenhagen. Das ca. 763 m² große Grundstück ...
252.000 €
Kaufpreis
763 m²
Grundstücksfläche
5
Ihr Platz an der Ostseeküste – 763 m² Baugrundstück in ...
Grundstück
23946 Ostseebad Boltenhagen
Provisionsfrei für Käufer: Nur wenige hundert Meter vom feinsandigen Ostseestrand entfernt, befindet sich dieses attraktive Baugrundstück in ruhiger Wohnsiedlungslage von Boltenhagen. Das ca. 763 m² große Grundstück ...
252.000 €
Kaufpreis
763 m²
Grundstücksfläche
25
Exklusiver Winkelwalmdach-Bungalow in schöner ...
Haus
26907 Walchum
Willkommen in Ihrem zukünftigen Zuhause! Dieser exklusive Winkelwalmdach-Bungalow, erbaut im Jahr 1996, bietet nicht nur eine einzigartige Architektur, sondern auch eine Fülle von modernen Annehmlichkeiten. Die ...
318.000 €
Kaufpreis
140 m²
Wohnfläche
5
Zimmer
26
Provisionsfrei für Käufer - Top Einsteiger-Immobilie - ...
Haus
48531 Nordhorn
Ihr Zuhause zum Start – Charmante Doppelhaushälfte in Klausheide Diese gepflegte Doppelhaushälfte aus dem Baujahr 1958 befindet sich in angenehmer Wohnlage von Klausheide, einem beliebten Stadtteil von Nordhorn. Mit ...
169.000 €
Kaufpreis
76 m²
Wohnfläche
3
Zimmer
14
Modernes Wohnen - Exklusive 2-Zimmer-DG-Wohnung in top ...
Wohnung
26899 Rhede (Ems)
Exklusive 2-Zimmer-Dachgeschosswohnung in Rhede – modernes Wohnen über den Dächern von Rhede. Diese ansprechende Dachgeschosswohnung überzeugt nicht nur durch ihre moderne Ausstattung und großzügige Raumaufteilung, ...
719,6 €
Kaltmiete
71,96 m²
Wohnfläche
2
Zimmer