Luxus pur: Private Dachterrasse und Alpenblick!
0 €
Kaufpreis
53 m²
Wohnfläche
2
Zimmer
immobilien.de Nr.: 9407774
Objektnummer: 01KEF0XC5FE2Y9EPRJBQ3RFZZW
Preise & Kosten
| Kaufpreis | Auf Anfrage |
| Nebenkosten | keine Angabe |
| Hausgeld | 350 € |
| Maklerprovision | 3,57% inkl. 19.00% MwSt. |
Größe & Zustand
| Wohnfläche | 53 m² |
| Grundstücksfläche | 0 m² |
| Zimmer | 2 |
| Baujahr | 2022 |
| Verfügbar ab | keine Angabe |
Energie
| Energieausweistyp | Bedarfsausweis |
| Ausstellungsdatum | 09. 05. 2022 |
| Gültig bis | 08/05/2032 |
| Baujahr (laut Energieausweis) | 2022 |
| Energieeffizienzklasse | B |
| Endenergiebedarf | 73 |
| Wesentlicher Energieträger | Fernwärme |
Objektbeschreibung
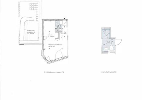
Diese exklusive 2-Zimmer-Wohnung im 6. Obergeschoss einer modernen Wohnanlage verbindet urbanen Komfort mit außergewöhnlicher Wohnqualität. Bodentiefe Fenster, edles Echtholzparkett und eine maßgefertigte Einbauküche mit Premium-Geräten verleihen der Wohnung zeitlose Eleganz. Das Highlight ist die private Dachterrasse mit spektakulärem Alpenblick – ein perfekter Ort zum Entspannen oder für gesellige Abende.
Zusätzlichen Komfort bietet die Wohnanlage durch einen Concierge-Service, ein smartes Paketbox-System sowie einen gesicherten Bike-Storage mit eigener Fahrradwerkstatt. Großzügige Gemeinschaftsbereiche stehen kostenfrei zur Verfügung: eine moderne Working-Lounge, eine Community-Kitchen sowie eine Rooftop-Terrasse im 8. Stock mit 360°-Panorama, Grillplatz und Gemeinschaftsküche mit Platz für bis zu 20 Personen. Die Bilder im Exposé wurden zum Teil mit KI bearbeitet. Es sind maßstabsgetreue Fotos, die die Räume darstellen, wie sie nach erfolgter Renovierung und mit neuer Ausstattung aussehen könnten. Die Ablöse für die komplette hochwertige Ausstattung beträgt 34.000 €.
Zusätzlichen Komfort bietet die Wohnanlage durch einen Concierge-Service, ein smartes Paketbox-System sowie einen gesicherten Bike-Storage mit eigener Fahrradwerkstatt. Großzügige Gemeinschaftsbereiche stehen kostenfrei zur Verfügung: eine moderne Working-Lounge, eine Community-Kitchen sowie eine Rooftop-Terrasse im 8. Stock mit 360°-Panorama, Grillplatz und Gemeinschaftsküche mit Platz für bis zu 20 Personen. Die Bilder im Exposé wurden zum Teil mit KI bearbeitet. Es sind maßstabsgetreue Fotos, die die Räume darstellen, wie sie nach erfolgter Renovierung und mit neuer Ausstattung aussehen könnten. Die Ablöse für die komplette hochwertige Ausstattung beträgt 34.000 €.
Ausstattung
| Anzahl der Etagen im Haus | 7 |
| Inserat befindet sich im Stockwerk | 6 |
| Küche | Einbauküche |
| Bad | 1 |
| Bad | Dusche |
| Boden | Parkett, Dielen |
| Fahrstuhl | |
| Barrierefrei | |
| Keller |
Lage des Objektes
Die Wohnung befindet sich in einem Stadtquartier mit Zukunft im Herzen von Pasing. Das Quartier rund um die liebevoll sanierte, ehemalige Kuvertfabrik verbindet historischen Charme mit moderner Architektur und urbanem Lifestyle. Einkaufsmöglichkeiten, Restaurants, Schulen und vielfältige Freizeitangebote erreichen Sie in wenigen Minuten bequem zu Fuß oder mit dem Rad.
Dank verkehrsgünstiger Lage sind Sie optimal angebunden: Mehrere S-Bahn-Linien bringen Sie schnell in die Innenstadt, und ein geplanter U-Bahnanschluss (Linie U5) direkt vor der Haustür sorgt künftig für noch mehr Flexibilität – ein klarer Vorteil für Pendler und Stadtliebhaber. Eine Tiefgarage steht für PKW zur Verfügung.
Das Quartier selbst bietet alles für den täglichen Bedarf und ein aktives Stadtleben. Gleichzeitig genießen Sie die Ruhe Ihres eigenen Rückzugsortes über den Dächern Münchens – mit einem Panoramaausblick, der seinesgleichen sucht.
Dank verkehrsgünstiger Lage sind Sie optimal angebunden: Mehrere S-Bahn-Linien bringen Sie schnell in die Innenstadt, und ein geplanter U-Bahnanschluss (Linie U5) direkt vor der Haustür sorgt künftig für noch mehr Flexibilität – ein klarer Vorteil für Pendler und Stadtliebhaber. Eine Tiefgarage steht für PKW zur Verfügung.
Das Quartier selbst bietet alles für den täglichen Bedarf und ein aktives Stadtleben. Gleichzeitig genießen Sie die Ruhe Ihres eigenen Rückzugsortes über den Dächern Münchens – mit einem Panoramaausblick, der seinesgleichen sucht.
