Modernisiertes Zweifamilienhaus, mit Einliegerwohnung und Garage, VON PRIVAT
1.369.000 €
Kaufpreis
241 m²
Wohnfläche
6
Zimmer
immobilien.de Nr.: 9404777
Objektnummer: 418232
Dateien
Kaufpreis
| Kaufpreis | 1.369.000 € |
| Maklerprovision | keine Provision, courtagefrei |
Wohnfläche, Grundstück & Bausubstanz
| Wohnfläche | 241 m² |
| Grundstücksfläche | 1.448 m² |
| Zimmer | 6 |
| Baujahr | 1970 |
| Verfügbar ab | nach Absprache |
| Zustand | Modernisiert |
Energie
| Energieausweistyp | Bedarfsausweis |
| Energieeffizienzklasse | A |
| Endenergiebedarf | 39 |
| Energieträger/Befeuerung | Elektro |
Beschreibung der Immobilie
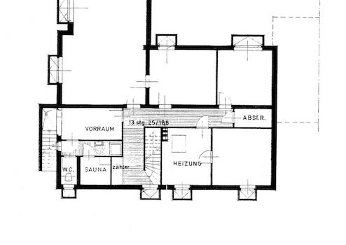
Dieses großzügige und vollständig modernisierte Zweifamilienhaus mit separater Einliegerwohnung vereint zeitlose Eleganz, hochwertige Materialien und moderne Energietechnik. Mit exklusiver Ausstattung, großzügigem Grundstück und vielseitiger Nutzungsmöglichkeit ist es perfekt für Familien, Mehrgenerationenwohnen oder Wohnen & Vermieten unter einem Dach. Zu der Ausstattung des Anwesens gehören Travertin-Naturstein- und Echtholzparkett Böden, elektrische Rollläden, ein Hark Marmorkamin Klassik-Serie 11/32 mit einer 11 kW ECOplus-Radiante (Energieklasse A+) im Wohnbereich, eine Sauna mit entsprechender Sanitäreinrichtung, ein geräumiger beheizter Hobby & Spiel - Raum im ausgebauten Kellerbereich, eine große überdachte Terrasse mit moderner Beleuchtung. Die großzügige und neu gepflasterte Einfahrt mit einer Toranlage bietet viel Platz zum Parken mehrerer Fahrzeuge. Im parkähnlichen Garten wachsen Obstbäume, Beeren Sträucher und Blumen. Der Springbrunnen ist ein Blickfang im Garten, der an sonnigen Tagen für eine lebendige Atmosphäre sorgt. Im Außenbereich gibt es eine Vielzahl von Möglichkeiten und genügend freien Platz für Ihre kreativen Ideen, Hobby- und Sportaktivitäten.
Dank neuer Dämmung, Photovoltaikanlage mit Speicher und zwei Luftwasser-Wärmepumpen erfüllt das Haus höchste Ansprüche an Nachhaltigkeit. Das Anwesen wurde in den letzten Jahren umfassend saniert und präsentiert sich heute in einem neuwertigen Zustand mit außergewöhnlich gehobenem Wohnkomfort. Das Gebäude erfüllt die Energieklasse "A" mit einem Energiebedarf des Gebäudes 39 kWh/(m²*a). Der Energieausweis wurde im Januar 2026 ausgestellt.
Dank neuer Dämmung, Photovoltaikanlage mit Speicher und zwei Luftwasser-Wärmepumpen erfüllt das Haus höchste Ansprüche an Nachhaltigkeit. Das Anwesen wurde in den letzten Jahren umfassend saniert und präsentiert sich heute in einem neuwertigen Zustand mit außergewöhnlich gehobenem Wohnkomfort. Das Gebäude erfüllt die Energieklasse "A" mit einem Energiebedarf des Gebäudes 39 kWh/(m²*a). Der Energieausweis wurde im Januar 2026 ausgestellt.
Ausstattungsmerkmale
| Anzahl der Etagen im Haus | 3 |
| Küche | Einbauküche |
| Bad | 3 |
| Bad | Dusche |
| Boden | Parkett |
| Balkone | 1 |
| Garten | |
| Terrassen | 1 |
| Garage/Stellplätze | 1 |
| Keller |
Terrasse, Garten, Keller, Dachterrasse, Duschbad, Sauna, Einbauküche, Gäste-WC, Kamin, Parkett, Sonstiges (s. Text)
Bemerkungen:
Modernisierungsmaßnahmen:
•11.2017 – Wände und Decken im Erdgeschoß gespachtelt, geschliffen, gestrichen
•11.2017 – Abbau und Entsorgung von Trockenbau und Dämmung in der Einliegerwohnung, Entsorgung der alten Dämmung
•11.2017 – Einbau der neuen Dachfenster
•11.2017 – Einbau von Mineralfaserdämmung, GK-Bekleidung der Dachschräge inklusive Lattenunterkonstruktion, Oberflächen in Q2 gespachtelt und angestrichen
•11.2017 – Dachspitzboden neu belegt, Dachbodentreppe eingebaut
•11.2017 – Errichtung eines Edelsteinschornsteins
•11.2017 – Reparatur vom Travertin Bodenbelag
•11.2017 – Dachreparatur
•11.2017 – Dämmung der Rollläden Kästen
•12.2017 – Parkettböden geschliffen und geölt
•01.2018 – Kamin Installation
•03.2018 – Neue elektrische Rollläden in der Einliegerwohnung eingebaut
•09.2018 – Badezimmer in der Einliegerwohnung saniert
•09.2018 – Neue Türen in der Einliegerwohnung eingebaut
•10.2018 – Gartenhaus aufgebaut
•06.2020 – Neue Zäune aufgestellt
•09.2020 – Überdachung der Außentreppe installiert
•09.2020 – Eine Toranlage aufgebaut
•12.2020 – Einbau neuer Sanitäreinrichtungen im Saunabereich
•02.2021 – Hauselektrik modernisiert
•05.2021 – Gäste-WC im Erdgeschoß saniert
•07.2021 – Pflasterarbeiten: Haus und Garageneinfahrten, Gehwege und Abstellflächen gepflastert, gesamt ca. 200 m²
•10.2021 – Badezimmer im Erdgeschoß saniert
•07.2021 – Reinigung und Versiegelung der Dachfläche
•10.2021 – Installation und Inbetriebnahme der Photovoltaikanlage, 10 kWp, mit Batterie
•10.2022 – Keller- Lüftungsanlage installiert
•10.2022 – Kellerraum saniert
•04.2021 – 03-2023 – Alle Heizkörper ersetzt, Nischen gedämmt
•10.2023 – Abbau der alten Ölheizung, Öltankentsorgung
•11.2023 - Neue Rauchmelder installiert
•11.2023 – Neues Heizsystem installiert und in Betrieb genommen: 2 Luftwasserwärmepumpen, neue Warmwasseraufbereitung
•08.2024 – Rohrreinigung, Installation einer neuen Rückstauklappe
Bemerkungen:
Modernisierungsmaßnahmen:
•11.2017 – Wände und Decken im Erdgeschoß gespachtelt, geschliffen, gestrichen
•11.2017 – Abbau und Entsorgung von Trockenbau und Dämmung in der Einliegerwohnung, Entsorgung der alten Dämmung
•11.2017 – Einbau der neuen Dachfenster
•11.2017 – Einbau von Mineralfaserdämmung, GK-Bekleidung der Dachschräge inklusive Lattenunterkonstruktion, Oberflächen in Q2 gespachtelt und angestrichen
•11.2017 – Dachspitzboden neu belegt, Dachbodentreppe eingebaut
•11.2017 – Errichtung eines Edelsteinschornsteins
•11.2017 – Reparatur vom Travertin Bodenbelag
•11.2017 – Dachreparatur
•11.2017 – Dämmung der Rollläden Kästen
•12.2017 – Parkettböden geschliffen und geölt
•01.2018 – Kamin Installation
•03.2018 – Neue elektrische Rollläden in der Einliegerwohnung eingebaut
•09.2018 – Badezimmer in der Einliegerwohnung saniert
•09.2018 – Neue Türen in der Einliegerwohnung eingebaut
•10.2018 – Gartenhaus aufgebaut
•06.2020 – Neue Zäune aufgestellt
•09.2020 – Überdachung der Außentreppe installiert
•09.2020 – Eine Toranlage aufgebaut
•12.2020 – Einbau neuer Sanitäreinrichtungen im Saunabereich
•02.2021 – Hauselektrik modernisiert
•05.2021 – Gäste-WC im Erdgeschoß saniert
•07.2021 – Pflasterarbeiten: Haus und Garageneinfahrten, Gehwege und Abstellflächen gepflastert, gesamt ca. 200 m²
•10.2021 – Badezimmer im Erdgeschoß saniert
•07.2021 – Reinigung und Versiegelung der Dachfläche
•10.2021 – Installation und Inbetriebnahme der Photovoltaikanlage, 10 kWp, mit Batterie
•10.2022 – Keller- Lüftungsanlage installiert
•10.2022 – Kellerraum saniert
•04.2021 – 03-2023 – Alle Heizkörper ersetzt, Nischen gedämmt
•10.2023 – Abbau der alten Ölheizung, Öltankentsorgung
•11.2023 - Neue Rauchmelder installiert
•11.2023 – Neues Heizsystem installiert und in Betrieb genommen: 2 Luftwasserwärmepumpen, neue Warmwasseraufbereitung
•08.2024 – Rohrreinigung, Installation einer neuen Rückstauklappe
Sonstige Informationen
Heizungsart: Sonstiges (s. Text)
Energieträger: Strom
Makleranfragen nicht erwünscht. Nach § 7 UWG sind unaufgeforderte Kontaktaufnahmen durch Makler ohne ausdrückliche Einwilligung des Empfängers verboten!
ohne-makler (OM) ist weder Anbieter noch Vermittler der Immobilie. OM betreibt eine Plattform für Immobilieneigentümer, die unter anderem die gleichzeitige Veröffentlichung einzelner Inserate auf mehreren Immobilienportalen ermöglicht. Die Inhalte dieser Inserate werden ausschließlich von Dritten verantwortet. Für die Richtigkeit, Vollständigkeit oder Rechtmäßigkeit der Angaben übernimmt OM keine Haftung. Hinweise auf mögliche Rechtsverstöße können jederzeit gemeldet werden und werden nach Prüfung umgehend bearbeitet.
Energieträger: Strom
Makleranfragen nicht erwünscht. Nach § 7 UWG sind unaufgeforderte Kontaktaufnahmen durch Makler ohne ausdrückliche Einwilligung des Empfängers verboten!
ohne-makler (OM) ist weder Anbieter noch Vermittler der Immobilie. OM betreibt eine Plattform für Immobilieneigentümer, die unter anderem die gleichzeitige Veröffentlichung einzelner Inserate auf mehreren Immobilienportalen ermöglicht. Die Inhalte dieser Inserate werden ausschließlich von Dritten verantwortet. Für die Richtigkeit, Vollständigkeit oder Rechtmäßigkeit der Angaben übernimmt OM keine Haftung. Hinweise auf mögliche Rechtsverstöße können jederzeit gemeldet werden und werden nach Prüfung umgehend bearbeitet.
Karte wird geladen...
Objektstandort
41515 Grevenbroich
- Nordrhein-Westfalen
Lage & Infrastruktur
Objektstandort
41515 Grevenbroich
- Nordrhein-Westfalen
Die Umgebung von Grevenbroich lädt zu Freizeitaktivitäten im Grünen ein und bietet eine angenehme Wohnqualität. Hier genießen Sie ein gepflegtes Umfeld mit viel Grün, hoher Privatsphäre und dennoch bester Infrastruktur: Einkaufsmöglichkeiten, Schulen, Kindergärten, Ärzte und Apotheken sind in unmittelbarer Nähe. Eine hervorragende Verkehrsanbindung wie naheliegende Bundesstraßen und die Autobahnen (A46, A61 und A540) gelangt man schnell in die umliegenden Städte wie Neuss, Düsseldorf und Köln.
Infrastruktur (im Umkreis von 5 km):
Apotheke, Lebensmittel-Discount, Allgemeinmediziner, Kindergarten, Grundschule, Hauptschule, Gymnasium, Gesamtschule, Öffentliche Verkehrsmittel
Infrastruktur (im Umkreis von 5 km):
Apotheke, Lebensmittel-Discount, Allgemeinmediziner, Kindergarten, Grundschule, Hauptschule, Gymnasium, Gesamtschule, Öffentliche Verkehrsmittel