Charmantes Fachwerkhaus mit ausgebautem Dachboden
415.000 €
Kaufpreis
180 m²
Wohnfläche
8
Zimmer
immobilien.de Nr.: 9404751
Objektnummer: 396744
Kaufpreis
| Kaufpreis | 415.000 € |
| Maklerprovision | keine Provision, courtagefrei |
Wohnfläche, Grundstück & Bausubstanz
| Wohnfläche | 180 m² |
| Grundstücksfläche | 238 m² |
| Zimmer | 8 |
| Baujahr | 1900 |
| Verfügbar ab | sofort |
Energie
| Energieausweistyp | Bedarfsausweis |
| Energieeffizienzklasse | G |
| Endenergiebedarf | 239 |
| Heizungsart | Zentralheizung |
| Energieträger/Befeuerung | Gas |
Beschreibung der Immobilie
Wir verkaufen unser großes Haus mit schönen Sandstein- und Fachwerkaußenwänden und einem Außenbereich. Das Gebäude besteht aus EG, 1.OG, DG, Spitzboden sowie einem kleinen Keller. DG und Spitzboden sind 2005 ausgebaut und gedämmt worden. Ein Großteil der Fenster wurde ebenfalls seit 2000 erneuert.
Unser Haus wurde bis zuletzt als Wohn- und Geschäftshaus (Teilfläche im EG) genutzt. Vor unserem Erwerb und der Nutzungsänderung für ein Gewerbe im Erdgeschoss im Jahr 2000 war es ein reines Wohnhaus. Durch die Einstellung unseres Gewerbebetriebs steht es nun leer und ab sofort zum Verkauf. Das Haus eignet sich somit perfekt für Ihre individuelle Nutzungsart: Im Erdgeschoss arbeiten, darüber wohnen! Oder, nach Umwidmung der gewerblichen Räume zurück zu Wohnraum, wieder als reines Wohnhaus. Wichtig: Sie kaufen das Haus direkt von privat - also ohne Maklerprovision!
Trotz des historischen Charakters bieten alle Etagen großzügige und helle Räume: Die Wohnfläche als reines Wohnhaus beträgt mehr als 180 qm mit ca. 8 Zimmern (aktuell gewerblich gewidmete Flächen mitgerechnet!). Im EG befinden sich ca. drei Zimmer (bei Nutzung als Wohnraum), im 1. OG nochmals drei Zimmer zzgl. Küche und Bad. Im ausgebauten DG befindet sich ein großer Raum mit Einbauküche zzgl. Bad sowie eine Treppe hoch zum ausgebauten Spitzboden. Der Außenbereich bietet ausreichend Platz für einen kleinen Garten, eine Sitzecke und ist mittig überdacht. Die Grundstücksfläche beträgt 200 qm zzgl. ca. 38 qm (entspricht 1/3) des Zufahrtswegs. Die Grundfläche des Hauses beträgt dabei ca. 115 qm. Zur Geschichte: Die Doppelhaushälfte ist ein ehemaliges Bauernhaus, welches im Laufe der Zeit vollständig ausgebaut wurde. Das Baujahr ist nicht bekannt.
Das Haus wird über eine Gas-Zentralheizung geheizt und mit Warmwasser versorgt (Vaillant Brennwertgerät). Ein aktueller Energieausweis liegt vor und kann bei Besichtigung eingesehen werden (1x Wohngebäude, 1x Nicht-Wohngebäude für Gewerbe).
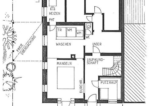
Wie bereits erwähnt, sind im EG einige Räume der gewerblichen Nutzung einer Heißmangel & Wäscherei gewidmet (ca. 55qm), die zum Ende 2024 ihren Betrieb eingestellt hat. Die Heißmangel & Wäscherei ist mittlerweile vollständig rückgebaut und die Räume sind somit leer. Alle weiteren Räume im EG, 1.OG, DG und Spitzboden sind Wohnraum, wurden bis zuletzt bewohnt und sind in gutem Zustand. Das EG ist auf die gewerbliche Nutzung ausgelegt und muss gegebenenfalls, je nach individuellen Wünschen, einer anderen Nutzung entsprechend angepasst werden.
Unser Haus wurde bis zuletzt als Wohn- und Geschäftshaus (Teilfläche im EG) genutzt. Vor unserem Erwerb und der Nutzungsänderung für ein Gewerbe im Erdgeschoss im Jahr 2000 war es ein reines Wohnhaus. Durch die Einstellung unseres Gewerbebetriebs steht es nun leer und ab sofort zum Verkauf. Das Haus eignet sich somit perfekt für Ihre individuelle Nutzungsart: Im Erdgeschoss arbeiten, darüber wohnen! Oder, nach Umwidmung der gewerblichen Räume zurück zu Wohnraum, wieder als reines Wohnhaus. Wichtig: Sie kaufen das Haus direkt von privat - also ohne Maklerprovision!
Trotz des historischen Charakters bieten alle Etagen großzügige und helle Räume: Die Wohnfläche als reines Wohnhaus beträgt mehr als 180 qm mit ca. 8 Zimmern (aktuell gewerblich gewidmete Flächen mitgerechnet!). Im EG befinden sich ca. drei Zimmer (bei Nutzung als Wohnraum), im 1. OG nochmals drei Zimmer zzgl. Küche und Bad. Im ausgebauten DG befindet sich ein großer Raum mit Einbauküche zzgl. Bad sowie eine Treppe hoch zum ausgebauten Spitzboden. Der Außenbereich bietet ausreichend Platz für einen kleinen Garten, eine Sitzecke und ist mittig überdacht. Die Grundstücksfläche beträgt 200 qm zzgl. ca. 38 qm (entspricht 1/3) des Zufahrtswegs. Die Grundfläche des Hauses beträgt dabei ca. 115 qm. Zur Geschichte: Die Doppelhaushälfte ist ein ehemaliges Bauernhaus, welches im Laufe der Zeit vollständig ausgebaut wurde. Das Baujahr ist nicht bekannt.
Das Haus wird über eine Gas-Zentralheizung geheizt und mit Warmwasser versorgt (Vaillant Brennwertgerät). Ein aktueller Energieausweis liegt vor und kann bei Besichtigung eingesehen werden (1x Wohngebäude, 1x Nicht-Wohngebäude für Gewerbe).
Wie bereits erwähnt, sind im EG einige Räume der gewerblichen Nutzung einer Heißmangel & Wäscherei gewidmet (ca. 55qm), die zum Ende 2024 ihren Betrieb eingestellt hat. Die Heißmangel & Wäscherei ist mittlerweile vollständig rückgebaut und die Räume sind somit leer. Alle weiteren Räume im EG, 1.OG, DG und Spitzboden sind Wohnraum, wurden bis zuletzt bewohnt und sind in gutem Zustand. Das EG ist auf die gewerbliche Nutzung ausgelegt und muss gegebenenfalls, je nach individuellen Wünschen, einer anderen Nutzung entsprechend angepasst werden.
Ausstattungsmerkmale
| Küche | Einbauküche |
| Bad | Wanne |
| Boden | Fliesen, Laminat |
| Garten | |
| Keller |
Garten, Keller, Vollbad, Einbauküche, Laminat, Fliesen
Sonstige Informationen
Heizungsart: Zentralheizung
Energieträger: Gas
Für Ihre Fragen stehen wir Ihnen gerne über das Kontaktformular zur Verfügung. Bei ernsthaftem Kaufinteresse freuen wir uns ebenso gerne auf eine Besichtigung mit Ihnen! Bitte nehmen Sie sich die Zeit, Ihre Anfrage zu formulieren - gerne auch mit ein paar Worten zu Ihnen. Vielen Dank!
Bilder und Pläne können abweichen und sind ohne Gewähr. Makleranfragen sind nicht erwünscht.
Makleranfragen nicht erwünscht. Nach § 7 UWG sind unaufgeforderte Kontaktaufnahmen durch Makler ohne ausdrückliche Einwilligung des Empfängers verboten!
ohne-makler (OM) ist weder Anbieter noch Vermittler der Immobilie. OM betreibt eine Plattform für Immobilieneigentümer, die unter anderem die gleichzeitige Veröffentlichung einzelner Inserate auf mehreren Immobilienportalen ermöglicht. Die Inhalte dieser Inserate werden ausschließlich von Dritten verantwortet. Für die Richtigkeit, Vollständigkeit oder Rechtmäßigkeit der Angaben übernimmt OM keine Haftung. Hinweise auf mögliche Rechtsverstöße können jederzeit gemeldet werden und werden nach Prüfung umgehend bearbeitet.
Energieträger: Gas
Für Ihre Fragen stehen wir Ihnen gerne über das Kontaktformular zur Verfügung. Bei ernsthaftem Kaufinteresse freuen wir uns ebenso gerne auf eine Besichtigung mit Ihnen! Bitte nehmen Sie sich die Zeit, Ihre Anfrage zu formulieren - gerne auch mit ein paar Worten zu Ihnen. Vielen Dank!
Bilder und Pläne können abweichen und sind ohne Gewähr. Makleranfragen sind nicht erwünscht.
Makleranfragen nicht erwünscht. Nach § 7 UWG sind unaufgeforderte Kontaktaufnahmen durch Makler ohne ausdrückliche Einwilligung des Empfängers verboten!
ohne-makler (OM) ist weder Anbieter noch Vermittler der Immobilie. OM betreibt eine Plattform für Immobilieneigentümer, die unter anderem die gleichzeitige Veröffentlichung einzelner Inserate auf mehreren Immobilienportalen ermöglicht. Die Inhalte dieser Inserate werden ausschließlich von Dritten verantwortet. Für die Richtigkeit, Vollständigkeit oder Rechtmäßigkeit der Angaben übernimmt OM keine Haftung. Hinweise auf mögliche Rechtsverstöße können jederzeit gemeldet werden und werden nach Prüfung umgehend bearbeitet.
Karte wird geladen...
Objektstandort
91207 Lauf
- Bayern
Lage & Infrastruktur
Objektstandort
91207 Lauf
- Bayern
Das Haus liegt in der Schulstraße im Laufer Stadtteil Heuchling, der sich durch eine attraktive Mischung aus städtischer Nähe und dörflichem Charme auszeichnet. Er bietet eine hohe Lebensqualität mit kurzen Wegen in die historische Altstadt von Lauf, ins Grün des Nürnberger Lands und in die Metropolregion Nürnberg - was sich auch durch die überdurchschnittlich hohen Bodenrichtwerte in Heuchling widerspiegelt. Verkehrstechnisch ist Heuchling optimal gelegen: Die Autobahn A9 ist nur ca. 5 Fahrminuten entfernt, ebenso die Bundesstraße 14. Zusätzlich verfügt Lauf über eine S- und Regionalbahnanbindung. Es ist somit auch wunderbar für Pendler geeignet.
Infrastruktur (im Umkreis von 5 km):
Apotheke, Lebensmittel-Discount, Allgemeinmediziner, Kindergarten, Grundschule, Hauptschule, Realschule, Gymnasium, Öffentliche Verkehrsmittel
Infrastruktur (im Umkreis von 5 km):
Apotheke, Lebensmittel-Discount, Allgemeinmediziner, Kindergarten, Grundschule, Hauptschule, Realschule, Gymnasium, Öffentliche Verkehrsmittel
Kontaktanfrage senden
Über den Anbieter
OM PropTech GmbH
Humboldtstraße 25a
21509 Glinde
Kontakt
| Telefon | - |
| Fax | - |
| Website | www.ohne-makler.net |
Ansprechpartner/in
Privat von Herr Frei
Weitere Angebote des Anbieters
32
4 Wohnungen in Zetrum von Neuss zu vermieten
Wohnung
41460 Neuss
4 Renovierte, moderne Wohnungen im Zentrum von Neuss (Hermannstraße) mit schickem Wintergarten – ideal für Firmen In zentraler Lage von Neuss (Hermannstraße) stehen vier attraktive, frisch renovierte Wohnungen in einem ...
650 €
Kaltmiete (netto)
56 m²
Wohnfläche
2
Zimmer
5
Helle schöne 2R-Wohnung 50 qm mit Einbauküche, ...
Wohnung
04720 Döbeln
Die Wohnung befindet sich im Erdgeschoß eines Mehrfamilienhauses Nähe Döbeln, Ortsteil Lüttewitz, in ruhiger Lage. Zum Haus gehört ein großes Grundstück mit Wäscheplatz, was allen Mietern zur Verfügung steht. Außerdem ...
260 €
Kaltmiete (netto)
50 m²
Wohnfläche
2
Zimmer
7
1-Zimmer-Appartment mit Terasse
Wohnung
94474 Vilshofen
Die Wohnung liegt im Parterre eines Mehrfamilienhauses mit Terasse und herrlichem Blick ins Grüne. Die Wohnung hat ein Zimmer mit Kochnische, einen Flur und ein Bad mit Dusche, Wanne und Fenster. Das Zimmer ist mit ...
440 €
Kaltmiete (netto)
39 m²
Wohnfläche
1
Zimmer
17
Sorglos Wohnen im Neubau: Barrierefreiheit trifft auf ...
Wohnung
42719 Solingen
Ruhiges Wohnen in urbaner Umgebung. Der Solinger Ortsteil Wald bietet Lebensqualität und Kultur für Jung und Alt. Hier können Sie unbeschwert das Leben genießen, in Wald oder auch im Quartier selbst – Ihrem eigenen ...
728 €
Kaltmiete (netto)
52 m²
Wohnfläche
2
Zimmer
19
Moderne 2-Zimmer-Neubauwohnung im Erstbezug inkl. ...
Wohnung
78224 Singen (Hohentwiel)
Moderne 2-Zimmer-Neubauwohnung im Erstbezug in zentraler Innenstadtlage von Singen (Hohentwiel) – Bahnhof und City in nur 5 Gehminuten erreichbar. Die ca. 60,66 m² große Wohnung bietet einen großzügigen Wohn-, Ess- und ...
1.020 €
Kaltmiete (netto)
60,66 m²
Wohnfläche
2
Zimmer