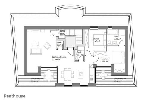
Neubau Penthouse mit 2 Dachterrassen in den Pagodenhöfen
1.960 €
Kaltmiete (netto)
98 m²
Wohnfläche
3
Zimmer
immobilien.de Nr.: 9404594
Objektnummer: 415435
Preise & Kosten
| Kaltmiete (netto) | 1.960 € |
| Nebenkosten | 140 € |
| Heizkosten enthalten | Ja |
| Kaution | 3.000 € |
Größe & Zustand
| Wohnfläche | 98 m² |
| Zimmer | 3 |
| Baujahr | 2025 |
| Verfügbar ab | 01.04.2026 |
| Zustand | Erstbezug |
Energie
| Heizungsart | Zentralheizung |
| Energieträger/Befeuerung | Luft-Wärme-Pumpe |
Objektbeschreibung
Exklusives Penthouse mit zwei Dachterrassen in zentraler Lage von Emden
In begehrter Innenstadtlage von Emden, in der Abdenastraße, erwartet Sie dieses hochwertige Penthouse, das modernen Wohnkomfort mit nachhaltiger Bauweise verbindet. Die Wohnung wurde nach dem QNG-Standard (Qualitätssiegel Nachhaltiges Gebäude) errichtet und erfüllt höchste Ansprüche an Energieeffizienz, Komfort und Zukunftsfähigkeit.
Highlights der Wohnung
Penthouse mit zwei großzügigen Dachterrassen – ideal zum Entspannen, Sonnen und Genießen
Zwei gut geschnittene Schlafzimmer
Offener Wohn- und Essbereich mit hochwertiger Einbauküche
Fußbodenheizung in allen Räumen für ein angenehmes Wohnklima
Elektrische Rollläden für zusätzlichen Komfort und Sicherheit
Modernes Badezimmer sowie ein separates Gäste-WC
Aufzug mit direktem Zugang bis in die Wohnung – maximaler Komfort und barrierearm
Hochwertige Materialien und eine durchdachte Raumaufteilung
Nachhaltigkeit & Technik
Errichtet nach QNG-Standard
Energieeffiziente Bauweise mit Fokus auf Umweltfreundlichkeit und niedrige Betriebskosten
Zukunftssicheres Wohnen in einem modernen Neubau
Lage
Die Abdenastraße liegt zentral in Emden und bietet eine hervorragende Infrastruktur. Einkaufsmöglichkeiten, Gastronomie, Ärzte, der Bahnhof sowie kulturelle Angebote sind fußläufig erreichbar. Die zentrale Lage kombiniert urbanes Leben mit kurzen Wegen und bester Anbindung.
Fazit
Dieses Penthouse ist ideal für alle, die exklusives Wohnen, zentrale Lage und nachhaltige Bauqualität miteinander verbinden möchten. Ein Zuhause mit besonderem Wohngefühl – über den Dächern von Emden.
Das Projekt wird Ende März 2026 bezugsbereit sein.
Es sind auch andere Wohnungen mit anderen größen und ein Penthouse verfügbar.
Gerne stimmen wir einen Besichtigungstermin ab.
In begehrter Innenstadtlage von Emden, in der Abdenastraße, erwartet Sie dieses hochwertige Penthouse, das modernen Wohnkomfort mit nachhaltiger Bauweise verbindet. Die Wohnung wurde nach dem QNG-Standard (Qualitätssiegel Nachhaltiges Gebäude) errichtet und erfüllt höchste Ansprüche an Energieeffizienz, Komfort und Zukunftsfähigkeit.
Highlights der Wohnung
Penthouse mit zwei großzügigen Dachterrassen – ideal zum Entspannen, Sonnen und Genießen
Zwei gut geschnittene Schlafzimmer
Offener Wohn- und Essbereich mit hochwertiger Einbauküche
Fußbodenheizung in allen Räumen für ein angenehmes Wohnklima
Elektrische Rollläden für zusätzlichen Komfort und Sicherheit
Modernes Badezimmer sowie ein separates Gäste-WC
Aufzug mit direktem Zugang bis in die Wohnung – maximaler Komfort und barrierearm
Hochwertige Materialien und eine durchdachte Raumaufteilung
Nachhaltigkeit & Technik
Errichtet nach QNG-Standard
Energieeffiziente Bauweise mit Fokus auf Umweltfreundlichkeit und niedrige Betriebskosten
Zukunftssicheres Wohnen in einem modernen Neubau
Lage
Die Abdenastraße liegt zentral in Emden und bietet eine hervorragende Infrastruktur. Einkaufsmöglichkeiten, Gastronomie, Ärzte, der Bahnhof sowie kulturelle Angebote sind fußläufig erreichbar. Die zentrale Lage kombiniert urbanes Leben mit kurzen Wegen und bester Anbindung.
Fazit
Dieses Penthouse ist ideal für alle, die exklusives Wohnen, zentrale Lage und nachhaltige Bauqualität miteinander verbinden möchten. Ein Zuhause mit besonderem Wohngefühl – über den Dächern von Emden.
Das Projekt wird Ende März 2026 bezugsbereit sein.
Es sind auch andere Wohnungen mit anderen größen und ein Penthouse verfügbar.
Gerne stimmen wir einen Besichtigungstermin ab.
Ausstattung
| Anzahl der Etagen im Haus | 4 |
| Inserat befindet sich im Stockwerk | 0 |
| Küche | Einbauküche |
| Bad | 1 |
| Bad | Dusche |
| Boden | Fliesen |
| Balkone | 0 |
| Terrassen | 1 |
| Fahrstuhl |
Terrasse, Fahrstuhl, Duschbad, Einbauküche, Fliesen
Bemerkungen:
Einbauküche inklusive
großformatige Fliesen
Lüftungsanlage
elektrische Rollläden
Bemerkungen:
Einbauküche inklusive
großformatige Fliesen
Lüftungsanlage
elektrische Rollläden
Sonstige Informationen
Heizungsart: Zentralheizung
Energieträger: Luft-/Wasserwärme
Energieausweis nicht vorhanden
Makleranfragen nicht erwünscht. Nach § 7 UWG sind unaufgeforderte Kontaktaufnahmen durch Makler ohne ausdrückliche Einwilligung des Empfängers verboten!
ohne-makler (OM) ist weder Anbieter noch Vermittler der Immobilie. OM betreibt eine Plattform für Immobilieneigentümer, die unter anderem die gleichzeitige Veröffentlichung einzelner Inserate auf mehreren Immobilienportalen ermöglicht. Die Inhalte dieser Inserate werden ausschließlich von Dritten verantwortet. Für die Richtigkeit, Vollständigkeit oder Rechtmäßigkeit der Angaben übernimmt OM keine Haftung. Hinweise auf mögliche Rechtsverstöße können jederzeit gemeldet werden und werden nach Prüfung umgehend bearbeitet.
Energieträger: Luft-/Wasserwärme
Energieausweis nicht vorhanden
Makleranfragen nicht erwünscht. Nach § 7 UWG sind unaufgeforderte Kontaktaufnahmen durch Makler ohne ausdrückliche Einwilligung des Empfängers verboten!
ohne-makler (OM) ist weder Anbieter noch Vermittler der Immobilie. OM betreibt eine Plattform für Immobilieneigentümer, die unter anderem die gleichzeitige Veröffentlichung einzelner Inserate auf mehreren Immobilienportalen ermöglicht. Die Inhalte dieser Inserate werden ausschließlich von Dritten verantwortet. Für die Richtigkeit, Vollständigkeit oder Rechtmäßigkeit der Angaben übernimmt OM keine Haftung. Hinweise auf mögliche Rechtsverstöße können jederzeit gemeldet werden und werden nach Prüfung umgehend bearbeitet.
Lage des Objektes
Die Abdena Straße (Abdenastraße) in Emden liegt im Stadtzentrum von Emden
📍 Lage und Umgebung
Sie verläuft zentral in der Innenstadt, nur wenige Gehminuten vom Bahnhof Emden und dem Busbahnhof entfernt.
Infrastruktur (im Umkreis von 5 km):
Apotheke, Lebensmittel-Discount, Allgemeinmediziner, Kindergarten, Grundschule, Hauptschule, Realschule, Gymnasium, Gesamtschule, Öffentliche Verkehrsmittel
📍 Lage und Umgebung
Sie verläuft zentral in der Innenstadt, nur wenige Gehminuten vom Bahnhof Emden und dem Busbahnhof entfernt.
Infrastruktur (im Umkreis von 5 km):
Apotheke, Lebensmittel-Discount, Allgemeinmediziner, Kindergarten, Grundschule, Hauptschule, Realschule, Gymnasium, Gesamtschule, Öffentliche Verkehrsmittel
