NEU renovierte 2 Zimmer Einliegerwohnung mit Sauna
750 €
Kaltmiete (netto)
65 m²
Wohnfläche
2
Zimmer
immobilien.de Nr.: 9400448
Objektnummer: 136854
Preise & Kosten
| Kaltmiete (netto) | 750 € |
| Nebenkosten | 60 € |
| Heizkosten | 60 € |
| Kaution | 2.250 € |
Größe & Zustand
| Wohnfläche | 65 m² |
| Zimmer | 2 |
| Baujahr | 1998 |
| Verfügbar ab | 15.02.2026 |
| Zustand | Modernisiert |
Energie
| Energieausweistyp | Verbrauch |
| Energieeffizienzklasse | D |
| Energieverbrauchkennwert | 115 kWh/(m²*a) |
| Heizungsart | Zentralheizung |
| Energieträger/Befeuerung | Öl |
Objektbeschreibung
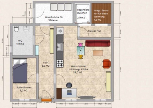
Diese hochwertige Einliegerwohnung mit separatem Eingang und 2 Zimmern befindet sich in einem gepflegten Dreifamilienhaus in bester Lage von Sulzbach (Feldrandlage Hemsbach). Die Wohnung liegt auf der Nordseite des Hauses und überzeugt durch ihre ruhige und naturnahe Umgebung.
Die Wohnfläche teilt sich auf in einen Flur, ein kleines Schlafzimmer (ca. 3,15 m × 2,65 m / 8,3 m² – ausschließlich für eine Person geeignet), ein Wohnzimmer mit offener Küchenwand, bei der alle Anschlüsse bereits vorbereitet sind, sowie ein modernes Badezimmer mit begehbarer Dusche und WC.
Die Terrasse steht Ihnen im Außenbereich mit wunderschönem Blick auf den liebevoll gepflegten Garten mit Palmen zur Verfügung.
Ein besonderes Highlight, es steht eine private Sauna zur alleinigen Nutzung zur Verfügung mit LED Farbtherapie.
Zur Wohnung gehört außerdem ein gemeinschaftlicher Wasch- und Trockenraum und ein kleiner Abstellplatz im Keller.
Die Ausstattung ist hochwertig: Fliesenboden, weiße Holzdecke mit LED-Einbauspots sowie weißer Rauputz sorgen für ein modernes und freundliches Wohnambiente.
Die Beheizung erfolgt über eine Öl-Zentralheizung. Das Frischwasser wird über eine professionelle Entkalkungsanlage aufbereitet, sodass kein zusätzlicher Kalkschutz für Elektrogeräte erforderlich ist.
Die Wohnung ist ab Februar/März 2026 bezugsfrei.
Wichtige Hinweise:
✔ Vermietung ausschließlich an berufstätige Einzelpersonen
✖ keine Hunde
✖ Anfragen für mehrere Personen werden nicht berücksichtigt
Die Wohnfläche teilt sich auf in einen Flur, ein kleines Schlafzimmer (ca. 3,15 m × 2,65 m / 8,3 m² – ausschließlich für eine Person geeignet), ein Wohnzimmer mit offener Küchenwand, bei der alle Anschlüsse bereits vorbereitet sind, sowie ein modernes Badezimmer mit begehbarer Dusche und WC.
Die Terrasse steht Ihnen im Außenbereich mit wunderschönem Blick auf den liebevoll gepflegten Garten mit Palmen zur Verfügung.
Ein besonderes Highlight, es steht eine private Sauna zur alleinigen Nutzung zur Verfügung mit LED Farbtherapie.
Zur Wohnung gehört außerdem ein gemeinschaftlicher Wasch- und Trockenraum und ein kleiner Abstellplatz im Keller.
Die Ausstattung ist hochwertig: Fliesenboden, weiße Holzdecke mit LED-Einbauspots sowie weißer Rauputz sorgen für ein modernes und freundliches Wohnambiente.
Die Beheizung erfolgt über eine Öl-Zentralheizung. Das Frischwasser wird über eine professionelle Entkalkungsanlage aufbereitet, sodass kein zusätzlicher Kalkschutz für Elektrogeräte erforderlich ist.
Die Wohnung ist ab Februar/März 2026 bezugsfrei.
Wichtige Hinweise:
✔ Vermietung ausschließlich an berufstätige Einzelpersonen
✖ keine Hunde
✖ Anfragen für mehrere Personen werden nicht berücksichtigt
Ausstattung
| Inserat befindet sich im Stockwerk | 0 |
| Bad | 1 |
| Bad | Dusche |
| Boden | Fliesen |
| Balkone | 0 |
| Garten | |
| Terrassen | 1 |
| Keller |
Terrasse, Garten, Keller, Duschbad, Sauna, Gäste-WC, Fliesen
Bemerkungen:
Ausstattung:
*Eigene Sauna in der Wohnung mit medizinischem Lichtsystem
*Terrasse im Gartenbereich
*WC und Bäder hell gefliest
*Begehbare Duschen
*Kunststoff-PVC-Fenster
*Helle Decken in allen Räumen
*Alle Zimmer mit integrierten LED-*Deckenspots ausgestattet
*Separater Eingang
*Vorbereitung inklusive Anschlüsse für eine offene Küche
*Alle Fenster mit maßgefertigten, professionellen Fliegengittern inkl. Schiebefunktion
*Professionelle Entkalkungsanlage
Bemerkungen:
Ausstattung:
*Eigene Sauna in der Wohnung mit medizinischem Lichtsystem
*Terrasse im Gartenbereich
*WC und Bäder hell gefliest
*Begehbare Duschen
*Kunststoff-PVC-Fenster
*Helle Decken in allen Räumen
*Alle Zimmer mit integrierten LED-*Deckenspots ausgestattet
*Separater Eingang
*Vorbereitung inklusive Anschlüsse für eine offene Küche
*Alle Fenster mit maßgefertigten, professionellen Fliegengittern inkl. Schiebefunktion
*Professionelle Entkalkungsanlage
Sonstige Informationen
Heizungsart: Zentralheizung
Energieträger: Öl
Bitte geben Sie bei Ihrer Anfrage, Personenanzahl, Berufstätigkeit, Haustiere, Raucher mit an.
Die Wohnung wird nur eine Person vermietet, Danke!
Makleranfragen nicht erwünscht. Nach § 7 UWG sind unaufgeforderte Kontaktaufnahmen durch Makler ohne ausdrückliche Einwilligung des Empfängers verboten!
ohne-makler (OM) ist weder Anbieter noch Vermittler der Immobilie. OM betreibt eine Plattform für Immobilieneigentümer, die unter anderem die gleichzeitige Veröffentlichung einzelner Inserate auf mehreren Immobilienportalen ermöglicht. Die Inhalte dieser Inserate werden ausschließlich von Dritten verantwortet. Für die Richtigkeit, Vollständigkeit oder Rechtmäßigkeit der Angaben übernimmt OM keine Haftung. Hinweise auf mögliche Rechtsverstöße können jederzeit gemeldet werden und werden nach Prüfung umgehend bearbeitet.
Energieträger: Öl
Bitte geben Sie bei Ihrer Anfrage, Personenanzahl, Berufstätigkeit, Haustiere, Raucher mit an.
Die Wohnung wird nur eine Person vermietet, Danke!
Makleranfragen nicht erwünscht. Nach § 7 UWG sind unaufgeforderte Kontaktaufnahmen durch Makler ohne ausdrückliche Einwilligung des Empfängers verboten!
ohne-makler (OM) ist weder Anbieter noch Vermittler der Immobilie. OM betreibt eine Plattform für Immobilieneigentümer, die unter anderem die gleichzeitige Veröffentlichung einzelner Inserate auf mehreren Immobilienportalen ermöglicht. Die Inhalte dieser Inserate werden ausschließlich von Dritten verantwortet. Für die Richtigkeit, Vollständigkeit oder Rechtmäßigkeit der Angaben übernimmt OM keine Haftung. Hinweise auf mögliche Rechtsverstöße können jederzeit gemeldet werden und werden nach Prüfung umgehend bearbeitet.
Lage des Objektes
Lage der Immobilie:
Sulzbach liegt im Nordwesten Baden-Württembergs und befindet sich in attraktiver Lage direkt an der Weinstraße und der Bergstraße. Der Ort ist verkehrstechnisch gut angebunden und verfügt über drei Haltestellen des Stadtbusnetzes sowie einen DB-Bahnhof.
Vor Ort befinden sich alle Geschäfte des täglichen Bedarfs, zudem gibt es zwei Kindergärten und eine Grundschule. Weiterführende Schulen wie drei allgemeinbildende Gymnasien, zwei Realschulen sowie mehrere Grund- und Gemeinschaftsschulen befinden sich im nahegelegenen Weinheim. Ergänzt wird das Bildungsangebot durch eine Volkshochschule, eine Musikschule und eine Stadtbibliothek. Die Nachbarstadt Hemsbach ist fußläufig in ca. 5–6 Minuten erreichbar.
Infrastruktur (im Umkreis von 5 km):
Apotheke, Lebensmittel-Discount, Allgemeinmediziner, Kindergarten, Grundschule, Hauptschule, Realschule, Gymnasium, Gesamtschule, Öffentliche Verkehrsmittel
Sulzbach liegt im Nordwesten Baden-Württembergs und befindet sich in attraktiver Lage direkt an der Weinstraße und der Bergstraße. Der Ort ist verkehrstechnisch gut angebunden und verfügt über drei Haltestellen des Stadtbusnetzes sowie einen DB-Bahnhof.
Vor Ort befinden sich alle Geschäfte des täglichen Bedarfs, zudem gibt es zwei Kindergärten und eine Grundschule. Weiterführende Schulen wie drei allgemeinbildende Gymnasien, zwei Realschulen sowie mehrere Grund- und Gemeinschaftsschulen befinden sich im nahegelegenen Weinheim. Ergänzt wird das Bildungsangebot durch eine Volkshochschule, eine Musikschule und eine Stadtbibliothek. Die Nachbarstadt Hemsbach ist fußläufig in ca. 5–6 Minuten erreichbar.
Infrastruktur (im Umkreis von 5 km):
Apotheke, Lebensmittel-Discount, Allgemeinmediziner, Kindergarten, Grundschule, Hauptschule, Realschule, Gymnasium, Gesamtschule, Öffentliche Verkehrsmittel
Anbieter kontaktieren
Kontakt
| Telefon | 0176 40493232 |
| Mobil | 0176 40493232 |
| Fax | - |
| Website | www.ohne-makler.net |
