Neubau-Ferienhaus, Seeblick, 1. Reihe, Anlageobjekt!
675.000 €
Kaufpreis
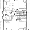
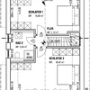
104 m²
Wohnfläche
3
Zimmer
immobilien.de Nr.: 9400232
Objektnummer: 328155
Dateien
Preise & Kosten
| Kaufpreis | 675.000 € |
| Nebenkosten | keine Angabe |
| Maklerprovision | keine Provision, courtagefrei |
Größe & Zustand
| Wohnfläche | 104 m² |
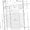
| Grundstücksfläche | 376 m² |
| Zimmer | 3 |
| Baujahr | 2024 |
| Verfügbar ab | nach Absprache |
| Zustand | Neuwertig |
Energie
| Heizungsart | Fußbodenheizung |
| Energieträger/Befeuerung | Gas |
Objektbeschreibung
JAHRESNETTOERTRAG: ca. € 30.000,00
RENDITE p.a.: 4,5 %
KAUFPREISFAKTOR: 23,1
ACHTUNG:
DER KAUFPREIS VON € 675.000,00 IST NETTO OHNE MWST. UND GILT NUR BEI FORTGEFÜHRTER TOURISTISCHER VERMIETUNG (zzgl. Kaufnebenkosten).
BEI AUSSCHLIESSLICH PRIVATER ZUKÜNFTIGER NUTZUNG BETRÄGT DER KAUFPREIS € 735.000,00 (zzgl. Kaufnebenkosten)
Direkt am Südufer des Fleesensees mit seinen herrlichen Segel- und Motorbootrevieren und Verbindung zu den weiteren Seen der Mecklenburgischen Seenplatte erwartet Sie die im Mai 2024 auf höchstem Niveau fertiggestellte Ferienvilla „Sun and Moon“ in idyllischer Lage mit einzigartigem Blick auf den See.
Das Objekt kann ohne Einschränkungen zur touristischen Vermietung, als Erst-/Zweitwohnsitz oder als privates Ferienhaus genutzt werden. Bei touristischer Nutzung steht ein Vermittler mit über 25-jähriger Erfahrung zur Verfügung. Hierüber können alle Leistungen von der Vermittlung bis zu Hausreinigung abgewickelt werden. Aufgrund der einzigartigen Lage in einer der beliebtesten Ferienregionen Deutschlands, ist mit einer sehr profitablen Auslastung zu rechnen. Der jährliche Netto-Reinerlös abzgl. aller Kosten liegt bei ca. € 30.000,00 bei einer Auslastung von 60 %.
Hierbei nicht mitgerechnet, ist die regelmäßige Eigennutzung durch den Eigentümer und dessen Familie. Bei Verzicht auf die Eigennutzung ist der Jahresertrag sicherlich um ca. 10-15% steigerungsfähig.
Das Objekt befindet sich in erster Strandlinie zusammen mit ca. 15 weiteren Ferienhäusern. Die Zufahrt ist über eine Schrankenanlage geregelt und nur für die Anwohner möglich.
Der kinderfreundliche Badestrand mit großem Abenteuerspielplatz befindet sich in nur ca. 50 mtr. Entfernung. Direkt daneben gibt es einen eingezäunten Hundestrand, wo sich Ihre lieben Vierbeiner ohne Leine frei bewegen dürfen und natürlich auch die Möglichkeit für ein erfrischendes Bad im See haben.
RENDITE p.a.: 4,5 %
KAUFPREISFAKTOR: 23,1
ACHTUNG:
DER KAUFPREIS VON € 675.000,00 IST NETTO OHNE MWST. UND GILT NUR BEI FORTGEFÜHRTER TOURISTISCHER VERMIETUNG (zzgl. Kaufnebenkosten).
BEI AUSSCHLIESSLICH PRIVATER ZUKÜNFTIGER NUTZUNG BETRÄGT DER KAUFPREIS € 735.000,00 (zzgl. Kaufnebenkosten)
Direkt am Südufer des Fleesensees mit seinen herrlichen Segel- und Motorbootrevieren und Verbindung zu den weiteren Seen der Mecklenburgischen Seenplatte erwartet Sie die im Mai 2024 auf höchstem Niveau fertiggestellte Ferienvilla „Sun and Moon“ in idyllischer Lage mit einzigartigem Blick auf den See.
Das Objekt kann ohne Einschränkungen zur touristischen Vermietung, als Erst-/Zweitwohnsitz oder als privates Ferienhaus genutzt werden. Bei touristischer Nutzung steht ein Vermittler mit über 25-jähriger Erfahrung zur Verfügung. Hierüber können alle Leistungen von der Vermittlung bis zu Hausreinigung abgewickelt werden. Aufgrund der einzigartigen Lage in einer der beliebtesten Ferienregionen Deutschlands, ist mit einer sehr profitablen Auslastung zu rechnen. Der jährliche Netto-Reinerlös abzgl. aller Kosten liegt bei ca. € 30.000,00 bei einer Auslastung von 60 %.
Hierbei nicht mitgerechnet, ist die regelmäßige Eigennutzung durch den Eigentümer und dessen Familie. Bei Verzicht auf die Eigennutzung ist der Jahresertrag sicherlich um ca. 10-15% steigerungsfähig.
Das Objekt befindet sich in erster Strandlinie zusammen mit ca. 15 weiteren Ferienhäusern. Die Zufahrt ist über eine Schrankenanlage geregelt und nur für die Anwohner möglich.
Der kinderfreundliche Badestrand mit großem Abenteuerspielplatz befindet sich in nur ca. 50 mtr. Entfernung. Direkt daneben gibt es einen eingezäunten Hundestrand, wo sich Ihre lieben Vierbeiner ohne Leine frei bewegen dürfen und natürlich auch die Möglichkeit für ein erfrischendes Bad im See haben.
Ausstattung
| Anzahl der Etagen im Haus | 2 |
| Küche | Einbauküche |
| Bad | 2 |
| Bad | Dusche |
| Boden | Fliesen |
| Balkone | 0 |
| Garten | |
| Terrassen | 1 |
| Barrierefrei |
Terrasse, Garten, Duschbad, Sauna, Pool · Schwimmbad, Einbauküche, Gäste-WC, Kamin, Barrierefrei, Fliesen
Bemerkungen:
Luxuriöses Neubau-Ferienhaus (Inbetriebnahme Juli 2024) - Direkte Lage am Ufer des Fleesensee - Unverbaubarer Seeblick - Objekt ist komplett hochwertig eingerichtet - Vermietung, Zweit- oder Erstwohnsitz, oder zur privaten Nutzung - Kinderfreundlicher Badestrand und Hundestrand in Sichtweite - Zwei Terrassen mit Nord- und Südausrichtung - Großes Saunahaus für 5 Personen und Whirlpool - Moderne Haustechnik inkl. Klimaanlage in allen Räumen - Zufahrt exklusiv nur für Anwohner - Erlebnisbad AQUAFUN 2 km entfernt - Gastronomie, Marina, Golf-Resort, Spa & Fitness fußläufig
Bemerkungen:
Luxuriöses Neubau-Ferienhaus (Inbetriebnahme Juli 2024) - Direkte Lage am Ufer des Fleesensee - Unverbaubarer Seeblick - Objekt ist komplett hochwertig eingerichtet - Vermietung, Zweit- oder Erstwohnsitz, oder zur privaten Nutzung - Kinderfreundlicher Badestrand und Hundestrand in Sichtweite - Zwei Terrassen mit Nord- und Südausrichtung - Großes Saunahaus für 5 Personen und Whirlpool - Moderne Haustechnik inkl. Klimaanlage in allen Räumen - Zufahrt exklusiv nur für Anwohner - Erlebnisbad AQUAFUN 2 km entfernt - Gastronomie, Marina, Golf-Resort, Spa & Fitness fußläufig
Sonstige Informationen
Heizungsart: Fußbodenheizung
Energieträger: Gas
Makleranfragen nicht erwünscht. Nach § 7 UWG sind unaufgeforderte Kontaktaufnahmen durch Makler ohne ausdrückliche Einwilligung des Empfängers verboten!
ohne-makler (OM) ist weder Anbieter noch Vermittler der Immobilie. OM betreibt eine Plattform für Immobilieneigentümer, die unter anderem die gleichzeitige Veröffentlichung einzelner Inserate auf mehreren Immobilienportalen ermöglicht. Die Inhalte dieser Inserate werden ausschließlich von Dritten verantwortet. Für die Richtigkeit, Vollständigkeit oder Rechtmäßigkeit der Angaben übernimmt OM keine Haftung. Hinweise auf mögliche Rechtsverstöße können jederzeit gemeldet werden und werden nach Prüfung umgehend bearbeitet.
Energieträger: Gas
Makleranfragen nicht erwünscht. Nach § 7 UWG sind unaufgeforderte Kontaktaufnahmen durch Makler ohne ausdrückliche Einwilligung des Empfängers verboten!
ohne-makler (OM) ist weder Anbieter noch Vermittler der Immobilie. OM betreibt eine Plattform für Immobilieneigentümer, die unter anderem die gleichzeitige Veröffentlichung einzelner Inserate auf mehreren Immobilienportalen ermöglicht. Die Inhalte dieser Inserate werden ausschließlich von Dritten verantwortet. Für die Richtigkeit, Vollständigkeit oder Rechtmäßigkeit der Angaben übernimmt OM keine Haftung. Hinweise auf mögliche Rechtsverstöße können jederzeit gemeldet werden und werden nach Prüfung umgehend bearbeitet.
Lage des Objektes
Nur wenige Gehminuten entfernt befindet sich ein Hotel der gehobenen Klasse mit luxuriösem Spa- und Fitness-Bereich, der auch von Besuchern genutzt werden darf.
In der kleinen Marina gibt es unterschiedliche Boote zu mieten, oder auch freie Liegeplätze, um eventuell Ihr eigenes Motor- oder Segelboot anzulegen.
Gehobene Gastronomie und eine Strandbar für den abendlichen Sundowner befinden sich in direkter Nachbarschaft zu dem Objekt.
Einkaufsmöglichkeiten gibt es im 8 km entfernten Malchow, oder in der 20 km entfernten „Hauptstadt“ der Region, in Waren.
Eines der größten Golf-Ressorts Europas, mit 73 Löchern auf 5 Plätzen befindet sich in nur 2 km Entfernung und bietet mit dem „Schlosshotel Fleesensee“ eine traumhafte Kulisse. Sie können dies vom Ferienhaus aus mit Ihrem Golf-Cart auf direktem Weg in nur wenigen Minuten erreichen.
In der näheren Umgebung gibt es das Erlebnisbad AQUAFUN und viele Sehenswürdigkeiten mit Museen, Schlössern, Tierparks, usw.
Infrastruktur (im Umkreis von 5 km):
Apotheke, Lebensmittel-Discount, Allgemeinmediziner, Kindergarten, Grundschule, Öffentliche Verkehrsmittel
In der kleinen Marina gibt es unterschiedliche Boote zu mieten, oder auch freie Liegeplätze, um eventuell Ihr eigenes Motor- oder Segelboot anzulegen.
Gehobene Gastronomie und eine Strandbar für den abendlichen Sundowner befinden sich in direkter Nachbarschaft zu dem Objekt.
Einkaufsmöglichkeiten gibt es im 8 km entfernten Malchow, oder in der 20 km entfernten „Hauptstadt“ der Region, in Waren.
Eines der größten Golf-Ressorts Europas, mit 73 Löchern auf 5 Plätzen befindet sich in nur 2 km Entfernung und bietet mit dem „Schlosshotel Fleesensee“ eine traumhafte Kulisse. Sie können dies vom Ferienhaus aus mit Ihrem Golf-Cart auf direktem Weg in nur wenigen Minuten erreichen.
In der näheren Umgebung gibt es das Erlebnisbad AQUAFUN und viele Sehenswürdigkeiten mit Museen, Schlössern, Tierparks, usw.
Infrastruktur (im Umkreis von 5 km):
Apotheke, Lebensmittel-Discount, Allgemeinmediziner, Kindergarten, Grundschule, Öffentliche Verkehrsmittel
Anbieter kontaktieren
Kontakt
| Telefon | - |
| Fax | - |
| Website | www.ohne-makler.net |
