1a-Grundstück, Seeblick, LK Cuxhaven, 21745 Hemmoor! Mit Haus inkl. Grund: ab 395.000! 01728118000
170.000 €
Kaufpreis
immobilien.de Nr.: 9392665
Objektnummer: 346517
Dateien
Preise & Kosten
| Kaufpreis | 170.000 € |
| Nebenkosten | keine Angabe |
| Maklerprovision | keine Provision, courtagefrei |
Größe & Zustand
| Grundstücksfläche | 1.000 m² |
| Verfügbar ab | sofort |
Objektbeschreibung
- Direktkontakt: Dieter Büge 01728118000
- Für private Käufer provisionsfrei! Für gewerbliche Käufer, die z. B. ein MFH errichten möchten (erste Mietinteressenten vorhanden) 3 % zzgl. 19 % Mehrwertsteuer. Dein Baugrundstück in einem exklusiven Neubaugebiet in einzigartiger 1a-See-Lage!
- Diese attraktiven Grundstücke (z. B. Hausnummer 21) können INKLUSIVE Stadtvilla als Ausbauhaus - siehe https://www.allkauf-ausbauhaus.de/de/haeuser/hausserie/city-villa/city-villa-4 für insgesamt ab 595.000 EUR erworben werden. Inklusiv-Leistungen für diese Stadtvilla (KP ab: 355.999 € als Ausbauhaus) mit 250 m²: Architektenleistung, Bau-Sicherheitspaket, Heizungsanlage- und Elektropaket, Dreifach verglaste Fenster inkl. Aluminiumrollläden, Luft-Wasser-Wärmepumpe, Echtholztreppe, Bodenbeläge und Tapeten, Luftdichtigkeitsmessung, Lichte Raumhöhe von 2,75 m, Dämm- und Beplankungspaket, Haustechnik inklusive Rohrleitungen, Kontrollierte Be- und Entflüftungsanlage mit Wärmerückgewinnung, Sanitärobjekte, Innentüren, Zargen und Fliesen, Steckdosen!
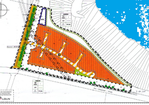
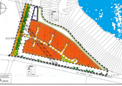
Nur wenige Einfamilienhaus-, Doppelhaus und Mehrfamilienhausgrundstücke sind zu vergeben. Das wohl exklusivste Neubaugebiet in Hemmoor mit Seeblick ist nur wenige Auto-/Fahrrad-Minuten zum Stadtzentrum von Hemmoor (Landkreis Cuxhaven) entfernt.
Sichere dir am besten noch heute dein Filetstück, denn es wird kein Naubaugebiet mit Seeblick mehr ausgewiesen bzw. genehmigt! Anzahl der Grundstücke auf 18 begrenzt.
9 freie Grundstücke für privaten Hausbau (siehe WA 1): 839 bis 1.990 m². Einzel- und Doppelhäuser, 1-geschossig (+ Staffelgeschoss) bis zu einer Giebelhöhe von 8,50 m.
Grundstücke für Ein- und Mehrfamilienhäuser (WA2, WA3) ab 1.000 m². Gíebelhöhe 10 m (WA 2) und 11,50 m (WA 3) mit 2- bzw. 3 Vollgeschossen. GFZ: 0,4.
Erlebe schon bald das Privileg und den Zauber eines atemberaubenden Panoramablicks über den kristallklaren Kreidesee, den du als anspruchsvoller Eigentümer einer luxuriösen Immobilie oder als Mieter einer exklusiven Eigentumswohnung in bester Lage genießen darfst!
Baue nach deinen Vorstellungen auf einem großzügig geschnittenen Grundstück von 810 - 1.990 m² dein Traumhaus im Bauhausstil, Stadtvilla, Doppelhaus oder errichte als Bauträger oder Investor dein Mehrparteienhaus auf einem Grundstück ab 1.000 m²!
Die Bauplätze in erster Seelinie dürfen mit Ein-, Zwei- und Doppelhäusern bis 1 Vollgeschoss + 1 Staffelgeschoss mit einer Gebäudehöhe bis 8,50 m und die Ein- und Mehrfamilienhaus-Grundstücke in zweiter Reihe dürfen 2-3-geschossig bis zu einer Höhe von 10- bzw. 11,50 m bebaut werden.
Wenn du als privater oder gewerblicher Grundstückskäufer einen Standort in zentraler und ruhiger 1a-See-Lage suchst, dann solltest du zeitnah einen Besichtigungstermin vereinbaren! Es stehen nur wenige Grundstücke zur Verfügung! Hinweis: Weitere Baugrundstücke werden in dieser Lage am See nicht mehr genehmigt.
Ansprechpartner für Mieter, private und gewerbliche Käufer ist Dieter Büge. Telefonische Erreichbarkeit täglich (auch Sa./So.) von 9.30 - 20.00 Uhr! Telefon: 01728118000 oder info@win-marketing.de Internet: www.wain-marketing.de. Alleinvertrieb/Ansprechpartner: Dieter Büge - Immobilienmakler & Gutachter
WIN-MARKETING INH. DIETER BÜGE EXKLUSIVE GRUNDSTÜCKS- UND IMMOBILIENVERMARKTUNG SEIT 1992!
Wir freuen uns darauf, sie bei der Suche nach einem Baugrundstück, als Haus- oder Wohnungskäufer oder als Mieter einer Wohnung, bei der Realisierung ihres Vorhabens vom Start weg begleiten zu dürfen.
- Für private Käufer provisionsfrei! Für gewerbliche Käufer, die z. B. ein MFH errichten möchten (erste Mietinteressenten vorhanden) 3 % zzgl. 19 % Mehrwertsteuer. Dein Baugrundstück in einem exklusiven Neubaugebiet in einzigartiger 1a-See-Lage!
- Diese attraktiven Grundstücke (z. B. Hausnummer 21) können INKLUSIVE Stadtvilla als Ausbauhaus - siehe https://www.allkauf-ausbauhaus.de/de/haeuser/hausserie/city-villa/city-villa-4 für insgesamt ab 595.000 EUR erworben werden. Inklusiv-Leistungen für diese Stadtvilla (KP ab: 355.999 € als Ausbauhaus) mit 250 m²: Architektenleistung, Bau-Sicherheitspaket, Heizungsanlage- und Elektropaket, Dreifach verglaste Fenster inkl. Aluminiumrollläden, Luft-Wasser-Wärmepumpe, Echtholztreppe, Bodenbeläge und Tapeten, Luftdichtigkeitsmessung, Lichte Raumhöhe von 2,75 m, Dämm- und Beplankungspaket, Haustechnik inklusive Rohrleitungen, Kontrollierte Be- und Entflüftungsanlage mit Wärmerückgewinnung, Sanitärobjekte, Innentüren, Zargen und Fliesen, Steckdosen!
Nur wenige Einfamilienhaus-, Doppelhaus und Mehrfamilienhausgrundstücke sind zu vergeben. Das wohl exklusivste Neubaugebiet in Hemmoor mit Seeblick ist nur wenige Auto-/Fahrrad-Minuten zum Stadtzentrum von Hemmoor (Landkreis Cuxhaven) entfernt.
Sichere dir am besten noch heute dein Filetstück, denn es wird kein Naubaugebiet mit Seeblick mehr ausgewiesen bzw. genehmigt! Anzahl der Grundstücke auf 18 begrenzt.
9 freie Grundstücke für privaten Hausbau (siehe WA 1): 839 bis 1.990 m². Einzel- und Doppelhäuser, 1-geschossig (+ Staffelgeschoss) bis zu einer Giebelhöhe von 8,50 m.
Grundstücke für Ein- und Mehrfamilienhäuser (WA2, WA3) ab 1.000 m². Gíebelhöhe 10 m (WA 2) und 11,50 m (WA 3) mit 2- bzw. 3 Vollgeschossen. GFZ: 0,4.
Erlebe schon bald das Privileg und den Zauber eines atemberaubenden Panoramablicks über den kristallklaren Kreidesee, den du als anspruchsvoller Eigentümer einer luxuriösen Immobilie oder als Mieter einer exklusiven Eigentumswohnung in bester Lage genießen darfst!
Baue nach deinen Vorstellungen auf einem großzügig geschnittenen Grundstück von 810 - 1.990 m² dein Traumhaus im Bauhausstil, Stadtvilla, Doppelhaus oder errichte als Bauträger oder Investor dein Mehrparteienhaus auf einem Grundstück ab 1.000 m²!
Die Bauplätze in erster Seelinie dürfen mit Ein-, Zwei- und Doppelhäusern bis 1 Vollgeschoss + 1 Staffelgeschoss mit einer Gebäudehöhe bis 8,50 m und die Ein- und Mehrfamilienhaus-Grundstücke in zweiter Reihe dürfen 2-3-geschossig bis zu einer Höhe von 10- bzw. 11,50 m bebaut werden.
Wenn du als privater oder gewerblicher Grundstückskäufer einen Standort in zentraler und ruhiger 1a-See-Lage suchst, dann solltest du zeitnah einen Besichtigungstermin vereinbaren! Es stehen nur wenige Grundstücke zur Verfügung! Hinweis: Weitere Baugrundstücke werden in dieser Lage am See nicht mehr genehmigt.
Ansprechpartner für Mieter, private und gewerbliche Käufer ist Dieter Büge. Telefonische Erreichbarkeit täglich (auch Sa./So.) von 9.30 - 20.00 Uhr! Telefon: 01728118000 oder info@win-marketing.de Internet: www.wain-marketing.de. Alleinvertrieb/Ansprechpartner: Dieter Büge - Immobilienmakler & Gutachter
WIN-MARKETING INH. DIETER BÜGE EXKLUSIVE GRUNDSTÜCKS- UND IMMOBILIENVERMARKTUNG SEIT 1992!
Wir freuen uns darauf, sie bei der Suche nach einem Baugrundstück, als Haus- oder Wohnungskäufer oder als Mieter einer Wohnung, bei der Realisierung ihres Vorhabens vom Start weg begleiten zu dürfen.
Sonstige Informationen
Angaben gemäß § 5 TMG
WIN-MARKETING Inh. Dieter Büge
Geschäftsbereich DBI - DIETER BÜGE IMMOBILIEN
Zulassung nach 34c GewO.
Anschrift
Süderende 12
D - 21782 Bülkau
Kontakt D/A/CH
info(at)win-marketing.de
https://www.win-marketing.de
Telefon: 0172/8118000
Umsatzsteuer-Identifikationsnummer gemäß §27a Umsatzsteuergesetz: DE204939419.
Streitschlichtung
Die Europäische Kommission stellt eine Plattform zur Online-Streitbeilegung (OS) bereit: https://ec.europa.eu/consumers/odr.
Unsere E-Mail-Adresse finden Sie oben im Impressum.
Wir sind nicht bereit oder verpflichtet, an Streitbeilegungsverfahren vor einer Verbraucherschlichtungsstelle teilzunehmen.
Haftung für Inhalte
Als Diensteanbieter sind wir gemäß § 7 Abs.1 TMG für eigene Inhalte auf diesen Seiten nach den allgemeinen Gesetzen verantwortlich. Nach §§ 8 bis 10 TMG sind wir als Diensteanbieter jedoch nicht verpflichtet, übermittelte oder gespeicherte fremde Informationen zu überwachen oder nach Umständen zu forschen, die auf eine rechtswidrige Tätigkeit hinweisen.
Verpflichtungen zur Entfernung oder Sperrung der Nutzung von Informationen nach den allgemeinen Gesetzen bleiben hiervon unberührt. Eine diesbezügliche Haftung ist jedoch erst ab dem Zeitpunkt der Kenntnis einer konkreten Rechtsverletzung möglich. Bei Bekanntwerden von entsprechenden Rechtsverletzungen werden wir diese Inhalte umgehend entfernen.
Haftung für Links
Unser Angebot enthält Links zu externen Websites Dritter, auf deren Inhalte wir keinen Einfluss haben. Deshalb können wir für diese fremden Inhalte auch keine Gewähr übernehmen. Für die Inhalte der verlinkten Seiten ist stets der jeweilige Anbieter oder Betreiber der Seiten verantwortlich. Die verlinkten Seiten wurden zum Zeitpunkt der Verlinkung auf mögliche Rechtsverstöße überprüft. Rechtswidrige Inhalte waren zum Zeitpunkt der Verlinkung nicht erkennbar.
Eine permanente inhaltliche Kontrolle der verlinkten Seiten ist jedoch ohne konkrete Anhaltspunkte einer Rechtsverletzung nicht zumutbar. Bei Bekanntwerden von Rechtsverletzungen werden wir derartige Links umgehend entfernen.
Urheberrecht
Die durch die Seitenbetreiber erstellten Inhalte und Werke auf diesen Seiten unterliegen dem deutschen Urheberrecht. Die Vervielfältigung, Bearbeitung, Verbreitung und jede Art der Verwertung außerhalb der Grenzen des Urheberrechtes bedürfen der schriftlichen Zustimmung des jeweiligen Autors bzw. Erstellers. Downloads und Kopien dieser Seite sind nur für den privaten, nicht kommerziellen Gebrauch gestattet.
Soweit die Inhalte auf dieser Seite nicht vom Betreiber erstellt wurden, werden die Urheberrechte Dritter beachtet. Insbesondere werden Inhalte Dritter als solche gekennzeichnet. Sollten Sie trotzdem auf eine Urheberrechtsverletzung aufmerksam werden, bitten wir um einen entsprechenden Hinweis. Bei Bekanntwerden von Rechtsverletzungen werden wir derartige Inhalte umgehend entfernen.
ohne-makler (OM) ist weder Anbieter noch Vermittler der Immobilie. OM betreibt eine Plattform für Immobilieneigentümer, die unter anderem die gleichzeitige Veröffentlichung einzelner Inserate auf mehreren Immobilienportalen ermöglicht. Die Inhalte dieser Inserate werden ausschließlich von Dritten verantwortet. Für die Richtigkeit, Vollständigkeit oder Rechtmäßigkeit der Angaben übernimmt OM keine Haftung. Hinweise auf mögliche Rechtsverstöße können jederzeit gemeldet werden und werden nach Prüfung umgehend bearbeitet.
WIN-MARKETING Inh. Dieter Büge
Geschäftsbereich DBI - DIETER BÜGE IMMOBILIEN
Zulassung nach 34c GewO.
Anschrift
Süderende 12
D - 21782 Bülkau
Kontakt D/A/CH
info(at)win-marketing.de
https://www.win-marketing.de
Telefon: 0172/8118000
Umsatzsteuer-Identifikationsnummer gemäß §27a Umsatzsteuergesetz: DE204939419.
Streitschlichtung
Die Europäische Kommission stellt eine Plattform zur Online-Streitbeilegung (OS) bereit: https://ec.europa.eu/consumers/odr.
Unsere E-Mail-Adresse finden Sie oben im Impressum.
Wir sind nicht bereit oder verpflichtet, an Streitbeilegungsverfahren vor einer Verbraucherschlichtungsstelle teilzunehmen.
Haftung für Inhalte
Als Diensteanbieter sind wir gemäß § 7 Abs.1 TMG für eigene Inhalte auf diesen Seiten nach den allgemeinen Gesetzen verantwortlich. Nach §§ 8 bis 10 TMG sind wir als Diensteanbieter jedoch nicht verpflichtet, übermittelte oder gespeicherte fremde Informationen zu überwachen oder nach Umständen zu forschen, die auf eine rechtswidrige Tätigkeit hinweisen.
Verpflichtungen zur Entfernung oder Sperrung der Nutzung von Informationen nach den allgemeinen Gesetzen bleiben hiervon unberührt. Eine diesbezügliche Haftung ist jedoch erst ab dem Zeitpunkt der Kenntnis einer konkreten Rechtsverletzung möglich. Bei Bekanntwerden von entsprechenden Rechtsverletzungen werden wir diese Inhalte umgehend entfernen.
Haftung für Links
Unser Angebot enthält Links zu externen Websites Dritter, auf deren Inhalte wir keinen Einfluss haben. Deshalb können wir für diese fremden Inhalte auch keine Gewähr übernehmen. Für die Inhalte der verlinkten Seiten ist stets der jeweilige Anbieter oder Betreiber der Seiten verantwortlich. Die verlinkten Seiten wurden zum Zeitpunkt der Verlinkung auf mögliche Rechtsverstöße überprüft. Rechtswidrige Inhalte waren zum Zeitpunkt der Verlinkung nicht erkennbar.
Eine permanente inhaltliche Kontrolle der verlinkten Seiten ist jedoch ohne konkrete Anhaltspunkte einer Rechtsverletzung nicht zumutbar. Bei Bekanntwerden von Rechtsverletzungen werden wir derartige Links umgehend entfernen.
Urheberrecht
Die durch die Seitenbetreiber erstellten Inhalte und Werke auf diesen Seiten unterliegen dem deutschen Urheberrecht. Die Vervielfältigung, Bearbeitung, Verbreitung und jede Art der Verwertung außerhalb der Grenzen des Urheberrechtes bedürfen der schriftlichen Zustimmung des jeweiligen Autors bzw. Erstellers. Downloads und Kopien dieser Seite sind nur für den privaten, nicht kommerziellen Gebrauch gestattet.
Soweit die Inhalte auf dieser Seite nicht vom Betreiber erstellt wurden, werden die Urheberrechte Dritter beachtet. Insbesondere werden Inhalte Dritter als solche gekennzeichnet. Sollten Sie trotzdem auf eine Urheberrechtsverletzung aufmerksam werden, bitten wir um einen entsprechenden Hinweis. Bei Bekanntwerden von Rechtsverletzungen werden wir derartige Inhalte umgehend entfernen.
ohne-makler (OM) ist weder Anbieter noch Vermittler der Immobilie. OM betreibt eine Plattform für Immobilieneigentümer, die unter anderem die gleichzeitige Veröffentlichung einzelner Inserate auf mehreren Immobilienportalen ermöglicht. Die Inhalte dieser Inserate werden ausschließlich von Dritten verantwortet. Für die Richtigkeit, Vollständigkeit oder Rechtmäßigkeit der Angaben übernimmt OM keine Haftung. Hinweise auf mögliche Rechtsverstöße können jederzeit gemeldet werden und werden nach Prüfung umgehend bearbeitet.
Lage des Objektes
Der Kreidesee liegt in Niedersachsen, im Landkreis Cuxhaven. Der See befindet sich im westlichen Teil der Stadt Hemmoor-Warstade. Entdecke Hemmoor – eine idyllische Oase am westlichen Ufer der Oste im malerischen Landkreis Cuxhaven, Niedersachsen! Dieses charmante Städtchen, umgeben von unberührter Natur, bietet Ihnen nicht nur eine hohe Lebensqualität, sondern auch eine perfekte Lage für Ihr neues Zuhause.
Nur einen Steinwurf vom beliebten Kreidesee entfernt, erwartet dich mit einzigartigem Panoramablick über den Kreidesee ca. 1.000 m²-Grundstück, das ideal für Naturliebhaber und Freizeitbegeisterte ist. Der Kreidesee ist nicht nur ein beliebtes Tauchrevier, sondern auch ein Ort der Erholung und Entspannung – hier können Sie die Seele baumeln lassen und die Schönheit der Natur genießen.
Mit etwa 8.700 Einwohnern bietet Hemmoor eine herzliche Gemeinschaft und ein angenehmes Lebensumfeld. Die Stadt liegt strategisch günstig zwischen Stade und der Kreisstadt Cuxhaven und ist somit der perfekte Ausgangspunkt für Ausflüge in die Umgebung.
Das Stadtzentrum von Hemmoor, nur ca. 3000 m entfernt, hält eine Vielzahl von Einkaufsmöglichkeiten für dich bereit. In unmittelbarer Nähe findest du Ärzte, Bushaltestellen, einen Kindergarten und alle Schulformen. Alles, was du für den alltäglichen Bedarf benötigst, ist bequem und schnell erreichbar.
Die Anbindung an die B73 ermöglicht Ihnen eine schnelle Erreichbarkeit der Städte Cuxhaven (ca. 45 km), Stade (ca. 30 km), Bremerhaven (ca. 55 km) und Hamburg (ca. 83 km). Der Bahnhof von Hemmoor ist in nur 15 Minuten mit dem Bus oder Fahrrad erreichbar und bietet Ihnen eine hervorragende Anbindung an den öffentlichen Nahverkehr.
Nutzen Sie die Chance, Teil dieser charmanten Kleinstadt zu werden und verwirklichen Sie Ihren Traum vom Eigenheim in Hemmoor – einem Ort, der Lebensqualität, Natur und Gemeinschaft vereint!
Infrastruktur (im Umkreis von 5 km):
Apotheke, Lebensmittel-Discount, Allgemeinmediziner, Kindergarten, Grundschule, Hauptschule, Realschule, Gymnasium, Öffentliche Verkehrsmittel
Nur einen Steinwurf vom beliebten Kreidesee entfernt, erwartet dich mit einzigartigem Panoramablick über den Kreidesee ca. 1.000 m²-Grundstück, das ideal für Naturliebhaber und Freizeitbegeisterte ist. Der Kreidesee ist nicht nur ein beliebtes Tauchrevier, sondern auch ein Ort der Erholung und Entspannung – hier können Sie die Seele baumeln lassen und die Schönheit der Natur genießen.
Mit etwa 8.700 Einwohnern bietet Hemmoor eine herzliche Gemeinschaft und ein angenehmes Lebensumfeld. Die Stadt liegt strategisch günstig zwischen Stade und der Kreisstadt Cuxhaven und ist somit der perfekte Ausgangspunkt für Ausflüge in die Umgebung.
Das Stadtzentrum von Hemmoor, nur ca. 3000 m entfernt, hält eine Vielzahl von Einkaufsmöglichkeiten für dich bereit. In unmittelbarer Nähe findest du Ärzte, Bushaltestellen, einen Kindergarten und alle Schulformen. Alles, was du für den alltäglichen Bedarf benötigst, ist bequem und schnell erreichbar.
Die Anbindung an die B73 ermöglicht Ihnen eine schnelle Erreichbarkeit der Städte Cuxhaven (ca. 45 km), Stade (ca. 30 km), Bremerhaven (ca. 55 km) und Hamburg (ca. 83 km). Der Bahnhof von Hemmoor ist in nur 15 Minuten mit dem Bus oder Fahrrad erreichbar und bietet Ihnen eine hervorragende Anbindung an den öffentlichen Nahverkehr.
Nutzen Sie die Chance, Teil dieser charmanten Kleinstadt zu werden und verwirklichen Sie Ihren Traum vom Eigenheim in Hemmoor – einem Ort, der Lebensqualität, Natur und Gemeinschaft vereint!
Infrastruktur (im Umkreis von 5 km):
Apotheke, Lebensmittel-Discount, Allgemeinmediziner, Kindergarten, Grundschule, Hauptschule, Realschule, Gymnasium, Öffentliche Verkehrsmittel
Anbieter kontaktieren
Kontakt
| Telefon | 0172 8118000 |
| Fax | - |
| Website | www.ohne-makler.net |
