Die hohe Kunst des Wohnens! Einzigartiges Architekten-RMH im Bauhausstil in Mannheim - ohne Makler
726.000 €
Kaufpreis
195 m²
Wohnfläche
3
Zimmer
immobilien.de Nr.: 9391937
Objektnummer: 416266
Dateien
Preise & Kosten
| Kaufpreis | 726.000 € |
| Nebenkosten | keine Angabe |
| Maklerprovision | keine Provision, courtagefrei |
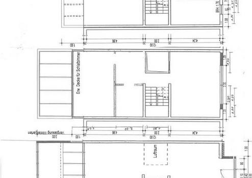
Größe & Zustand
| Wohnfläche | 195 m² |
| Grundstücksfläche | 261 m² |
| Zimmer | 3 |
| Baujahr | 2018 |
| Verfügbar ab | sofort |
| Zustand | Neuwertig |
Energie
| Energieausweistyp | Verbrauch |
| Energieeffizienzklasse | A |
| Energieverbrauchkennwert | 38 kWh/(m²*a) |
| Heizungsart | Fußbodenheizung |
| Energieträger/Befeuerung | Gas |
Objektbeschreibung
Dieses einzigartige Architekten-Reihenmittelhaus im Bauhausstil setzt den berühmten Ausspruch Mies van der Rohe‘s „weniger ist mehr“ gekonnt um.
Die Architektur dieses Hauses fasziniert sowohl von außen, als auch von innen. Ein offenes, durchdachtes Raumkonzept, lichtdurchflutete Räume, eine offene Galerie, große Panoramafenster mit XL-Glasflächen, Lichtbänder, grandiose Sichtachsen sowie eine exzellente Ausstattung mit edlen Materialen prägen dieses außergewöhnliche Reihenmittelhaus in Mannheim-Rheinau.
Jede Etage ist ein Highlight.
Der Living-Bereich im Erdgeschoss vereint Wohnen, Essen, Kochen und ein, bei Bedarf abtrennbares Homeoffice im Wintergarten. Auf dieser Ebene bietet sich ein faszinierendes Wechselspiel aus stehenden, integrierten und schwebenden Elementen. Eine Bulthaup Kochinsel, ein amerikanischer Kühlschrank, Miele Einbaugeräte sowie maßangefertigte Hochglanz-Einbaumöbel sind „State of the Art“.
Den Ruhe- und Entspannungsbereich mit Schlafzimmer, Masterbad und begehbarem, verspiegelten Kleiderschrank finden Sie im ersten Obergeschoss. Highlight ist hier das einzigartige Masterbad mit freistehender Design-Badewanne, ebenerdiger Regendusche mit fast unsichtbarem Ablauf, exklusiven Feinsteinfliesen, einem italienischem Designwaschtisch und hochwertigste Designarmaturen namhafter deutscher Hersteller.
Der Souterrain teilt sich in einen technischen- und einen weiteren Living-Bereich mit ebenerdigen Duschbad, ebenfalls mit fast unsichtbarem Ablauf, italienischen Fliesen im XXL-Format und – bedingt durch begehbares Glas - tageshellem und vielseitig nutzbaren Hobbyraum, dem größten Raum des Hauses. Der Hauswirtschaftsraum mit Hochglanzeinbauschränken und Miele-Geräten setzt Zeichen und selbst der Technikraum ist durchdesignt, ohne störende Leitungen und reduziert auf das Wesentliche. Ganz im Sinne von Mies van der Rohe.
Verbindende Elemente der drei Ebenen ist eine skulpturale, wie schwebend erscheinende Design-Kragarmtreppe aus Sichtbeton, handgehobelte, gekalkte Eichen-Echtholzdielenböden sowie Wände in Sichtbetonoptik. Dieser gekonnte Einsatz von kühleren Nichtfarben und warmen Naturmaterialien machten den besonderen Reiz des Hauses aus. Weitere verbindende Design-Elemente sind die im ganzen Haus eingesetzten Le Corbusier Licht-, Jalousie- und Tastschalter.
Dem Bauhauskonzept konsequent folgend sind sämtliche Tür- und Fensteröffnungen und sogar das Dach maximal geöffnet und sorgen für viel Licht und Helligkeit und damit für fast immer guter Laune 😊
Die großflächigen Glaselemente laden nicht nur die Sonne ein, sondern verbinden den Innenraum über die 18m2 große Südwestterrasse mit dem mediterran angelegten Garten. Dort bieten Olivenbäume sowie hohe, immergrüne Lorbeersträucher Schutz vor neugierigen Blicken und eine große, 40 Jahre alte Platane sorgt für Kühlung. Hier können Sie Ihren Sommer genießen.
Dieses Haus ist ein Statement!
Vereinbaren Sie gerne noch heute einen Besichtigungstermin!
Die Architektur dieses Hauses fasziniert sowohl von außen, als auch von innen. Ein offenes, durchdachtes Raumkonzept, lichtdurchflutete Räume, eine offene Galerie, große Panoramafenster mit XL-Glasflächen, Lichtbänder, grandiose Sichtachsen sowie eine exzellente Ausstattung mit edlen Materialen prägen dieses außergewöhnliche Reihenmittelhaus in Mannheim-Rheinau.
Jede Etage ist ein Highlight.
Der Living-Bereich im Erdgeschoss vereint Wohnen, Essen, Kochen und ein, bei Bedarf abtrennbares Homeoffice im Wintergarten. Auf dieser Ebene bietet sich ein faszinierendes Wechselspiel aus stehenden, integrierten und schwebenden Elementen. Eine Bulthaup Kochinsel, ein amerikanischer Kühlschrank, Miele Einbaugeräte sowie maßangefertigte Hochglanz-Einbaumöbel sind „State of the Art“.
Den Ruhe- und Entspannungsbereich mit Schlafzimmer, Masterbad und begehbarem, verspiegelten Kleiderschrank finden Sie im ersten Obergeschoss. Highlight ist hier das einzigartige Masterbad mit freistehender Design-Badewanne, ebenerdiger Regendusche mit fast unsichtbarem Ablauf, exklusiven Feinsteinfliesen, einem italienischem Designwaschtisch und hochwertigste Designarmaturen namhafter deutscher Hersteller.
Der Souterrain teilt sich in einen technischen- und einen weiteren Living-Bereich mit ebenerdigen Duschbad, ebenfalls mit fast unsichtbarem Ablauf, italienischen Fliesen im XXL-Format und – bedingt durch begehbares Glas - tageshellem und vielseitig nutzbaren Hobbyraum, dem größten Raum des Hauses. Der Hauswirtschaftsraum mit Hochglanzeinbauschränken und Miele-Geräten setzt Zeichen und selbst der Technikraum ist durchdesignt, ohne störende Leitungen und reduziert auf das Wesentliche. Ganz im Sinne von Mies van der Rohe.
Verbindende Elemente der drei Ebenen ist eine skulpturale, wie schwebend erscheinende Design-Kragarmtreppe aus Sichtbeton, handgehobelte, gekalkte Eichen-Echtholzdielenböden sowie Wände in Sichtbetonoptik. Dieser gekonnte Einsatz von kühleren Nichtfarben und warmen Naturmaterialien machten den besonderen Reiz des Hauses aus. Weitere verbindende Design-Elemente sind die im ganzen Haus eingesetzten Le Corbusier Licht-, Jalousie- und Tastschalter.
Dem Bauhauskonzept konsequent folgend sind sämtliche Tür- und Fensteröffnungen und sogar das Dach maximal geöffnet und sorgen für viel Licht und Helligkeit und damit für fast immer guter Laune 😊
Die großflächigen Glaselemente laden nicht nur die Sonne ein, sondern verbinden den Innenraum über die 18m2 große Südwestterrasse mit dem mediterran angelegten Garten. Dort bieten Olivenbäume sowie hohe, immergrüne Lorbeersträucher Schutz vor neugierigen Blicken und eine große, 40 Jahre alte Platane sorgt für Kühlung. Hier können Sie Ihren Sommer genießen.
Dieses Haus ist ein Statement!
Vereinbaren Sie gerne noch heute einen Besichtigungstermin!
Ausstattung
| Anzahl der Etagen im Haus | 3 |
| Bad | Dusche, Wanne |
| Boden | Parkett |
| Balkone | 0 |
| Garten | |
| Terrassen | 1 |
| Garage/Stellplätze | 1 |
Terrasse, Garten, Vollbad, Duschbad, Gäste-WC, Parkett
Sonstige Informationen
Heizungsart: Fußbodenheizung
Energieträger: Gas
Makleranfragen nicht erwünscht. Nach § 7 UWG sind unaufgeforderte Kontaktaufnahmen durch Makler ohne ausdrückliche Einwilligung des Empfängers verboten!
ohne-makler (OM) ist weder Anbieter noch Vermittler der Immobilie. OM betreibt eine Plattform für Immobilieneigentümer, die unter anderem die gleichzeitige Veröffentlichung einzelner Inserate auf mehreren Immobilienportalen ermöglicht. Die Inhalte dieser Inserate werden ausschließlich von Dritten verantwortet. Für die Richtigkeit, Vollständigkeit oder Rechtmäßigkeit der Angaben übernimmt OM keine Haftung. Hinweise auf mögliche Rechtsverstöße können jederzeit gemeldet werden und werden nach Prüfung umgehend bearbeitet.
Energieträger: Gas
Makleranfragen nicht erwünscht. Nach § 7 UWG sind unaufgeforderte Kontaktaufnahmen durch Makler ohne ausdrückliche Einwilligung des Empfängers verboten!
ohne-makler (OM) ist weder Anbieter noch Vermittler der Immobilie. OM betreibt eine Plattform für Immobilieneigentümer, die unter anderem die gleichzeitige Veröffentlichung einzelner Inserate auf mehreren Immobilienportalen ermöglicht. Die Inhalte dieser Inserate werden ausschließlich von Dritten verantwortet. Für die Richtigkeit, Vollständigkeit oder Rechtmäßigkeit der Angaben übernimmt OM keine Haftung. Hinweise auf mögliche Rechtsverstöße können jederzeit gemeldet werden und werden nach Prüfung umgehend bearbeitet.
Lage des Objektes
Ihr Traumhaus befindet sich in Mitten des Dreiländerecks Baden-Württemberg, Rheinland-Pfalz und Hessen, besser bekannt als Metropolregion Rhein-Neckar und ist eine der attraktivsten und wettbewerbsfähigsten Regionen Europas. Zehn der 100 stärksten börsennotierten Unternehmen haben hier ihren Sitz, darunter fünf Weltkonzerne. Die drei größten Städte sind Mannheim, Ludwigshafen und Heidelberg. Mannheim's eigener City Airport verbindet die Metropolregion mit der Welt.
Die universitären und außeruniversitären Forschungseinrichtungen in der Metropolregion Rhein-Neckar genießen Weltruf. Mehr als 230 Museen, 110 Theater und eine fast unüberschaubare Zahl von Konzerten und Festivals bieten ein vielfältiges Kulturanangebot. Vier UNESCO-Welterbestätten sowie über 120 Burgen und Schlösser zeugen von einer bewegten Geschichte. Im Freizeitbereich laden über 2.700 Vereine zum Mitmachen ein. Zum Mitfiebern bieten sich der Hockenheimring (Formel 1, DTM), Eishockeyspiele (Adler Mannheim), Handballspiele (Rhein-Neckar Löwen, TSG Ludwigshafen-Friesenheim) und natürlich Fußball (1899 Hoffenheim, Waldhof Mannheim) an. Genießer lieben die regionale Küche und Spitzengastronomie ebenso wie die renommierten Weine aus vier Anbaugebieten, angeboten auf vielen Hundert traditionsreichen Wein- und Volksfesten in der Region. Die Metropolregion ist eine der sonnigsten Regionen Deutschlands und mit dem Oden- und Pfälzerwald ein Paradies für Naturliebhaber und Erholungsuchende.
Das angebotene Reihenmittelhaus befindet sich in einem absolut ruhig gelegenen, ehemaligen Neubaugebiet mit grünem Wohnumfeld in Mannheim's südlichsten Ortsteil namens Rheinau mit ca. 25.000 Einwohnern. Kein Verkehrslärm stört, da das Haus nur fußläufig erreicht werden kann (Be- und Entladen ist selbstverständlich gestattet). Die Lage zeichnet sich besonders durch die sehr gute Infrastruktur aus. Alle Einkaufsmöglichkeiten, Schulen, Kindergärten, Ärzte, Straßenbahnhaltestellen sowie ein Bahnhof finden sich in einem Umkreis von 900 m. Durch die nahgelegene Anbindung an die B36, A656 und A6 erreichen Sie schnell die Innenstadt Mannheims, die Altstadt Heidelbergs oder auch Frankfurt, Karlsruhe und Kaiserslautern. Zum Rheinauer Wald sind es nur 300m. Zum Rhein, zum Waldschwimmbad oder zum Rheinauer See ca. 1,5 km.
Infrastruktur (im Umkreis von 5 km):
Apotheke, Lebensmittel-Discount, Allgemeinmediziner, Kindergarten, Grundschule, Hauptschule, Realschule, Gymnasium, Öffentliche Verkehrsmittel
Die universitären und außeruniversitären Forschungseinrichtungen in der Metropolregion Rhein-Neckar genießen Weltruf. Mehr als 230 Museen, 110 Theater und eine fast unüberschaubare Zahl von Konzerten und Festivals bieten ein vielfältiges Kulturanangebot. Vier UNESCO-Welterbestätten sowie über 120 Burgen und Schlösser zeugen von einer bewegten Geschichte. Im Freizeitbereich laden über 2.700 Vereine zum Mitmachen ein. Zum Mitfiebern bieten sich der Hockenheimring (Formel 1, DTM), Eishockeyspiele (Adler Mannheim), Handballspiele (Rhein-Neckar Löwen, TSG Ludwigshafen-Friesenheim) und natürlich Fußball (1899 Hoffenheim, Waldhof Mannheim) an. Genießer lieben die regionale Küche und Spitzengastronomie ebenso wie die renommierten Weine aus vier Anbaugebieten, angeboten auf vielen Hundert traditionsreichen Wein- und Volksfesten in der Region. Die Metropolregion ist eine der sonnigsten Regionen Deutschlands und mit dem Oden- und Pfälzerwald ein Paradies für Naturliebhaber und Erholungsuchende.
Das angebotene Reihenmittelhaus befindet sich in einem absolut ruhig gelegenen, ehemaligen Neubaugebiet mit grünem Wohnumfeld in Mannheim's südlichsten Ortsteil namens Rheinau mit ca. 25.000 Einwohnern. Kein Verkehrslärm stört, da das Haus nur fußläufig erreicht werden kann (Be- und Entladen ist selbstverständlich gestattet). Die Lage zeichnet sich besonders durch die sehr gute Infrastruktur aus. Alle Einkaufsmöglichkeiten, Schulen, Kindergärten, Ärzte, Straßenbahnhaltestellen sowie ein Bahnhof finden sich in einem Umkreis von 900 m. Durch die nahgelegene Anbindung an die B36, A656 und A6 erreichen Sie schnell die Innenstadt Mannheims, die Altstadt Heidelbergs oder auch Frankfurt, Karlsruhe und Kaiserslautern. Zum Rheinauer Wald sind es nur 300m. Zum Rhein, zum Waldschwimmbad oder zum Rheinauer See ca. 1,5 km.
Infrastruktur (im Umkreis von 5 km):
Apotheke, Lebensmittel-Discount, Allgemeinmediziner, Kindergarten, Grundschule, Hauptschule, Realschule, Gymnasium, Öffentliche Verkehrsmittel
