Großes Einfamilienhauses (Neubau) mit viel Platz in exklusiver und ruhiger Lage in Landsberg am Lech
659.000 €
Kaufpreis
159 m²
Wohnfläche
5
Zimmer
immobilien.de Nr.: 9389749
Objektnummer: 2758
Preise & Kosten
| Kaufpreis | 659.000 € |
| Nebenkosten | keine Angabe |
| Maklerprovision | -auf den Grundstückskaufpreis 3,57% inkl. MwSt. |
| Stellplatz Garage Kaufpreis | 0 € |
| Stellplatz Garage Miete | 0 € |
Größe & Zustand
| Wohnfläche | 159 m² |
| Grundstücksfläche | 286 m² |
| Zimmer | 5 |
| Baujahr | 2027 |
| Verfügbar ab | Frühjahr 2027 |
Energie
| Heizungsart | Fußbodenheizung |
| Energieträger/Befeuerung | Luft-Wärme-Pumpe |
Objektbeschreibung
Dieses moderne Einfamilienhaus (EG+OG) entsteht in Landsberg am Lech in ruhiger und grüner Lage. Das Haus wird massiv in Ziegelbauweise mit modernem Wärmedämmverbundsystem gebaut und bietet Ihnen flexible Grundrisse. Es wird nach neuesten energetischen Standards für Sie gebaut. Die Wohnfläche beträgt ca. 159 m². Das Haus wurde mit 5 Zimmern geplant, kann aber ganz nach Ihrem persönlichen Bedarf angepasst werden. Die dargestellten Grundrisse sind Beispiele seitens des Generalübernehmers und können noch individuell angepasst werden. Zu dem Haus wurde ein Stellplatz/Garage geplant, welcher preislich noch dazukommt oder in Eigenleistung errichtet wird. Natürlich kann auch ein Keller optional gegen Aufpreis erstellt werden. Alle Fenster sind aus Kunststoff, 3-fach verglast und mit elektrischen Rollläden ausgestattet. Die Grundstücks- und Haustechnik werden nach aktuellem Standard geplant: zur effizienten Beheizung ist eine moderne Luft/Wasser-Wärmepumpe vorgesehen. Die angestrebte Bauzeit für ein Haus ohne Keller beträgt 1 Jahr ab Baubeginn. Wenn das Haus auf Bodenplatte (ohne Keller) gebaut wird, dann wird die Zahlung des Hauspreises erst nach Hausübergabe fällig, wenn mit Keller gebaut wird, dann werden 30% nach Kellerübergabe und 70% nach Hausübergabe fällig. Weitere Informationen übermitteln wir gerne anhand der Bauleistungsbeschreibung.
Ausstattung
| Anzahl der Etagen im Haus | 2 |
| Garage/Stellplätze | 1 |
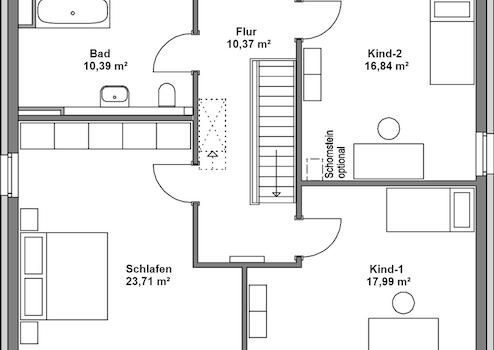
Das Einfamilienhaus verfügt über insgesamt 2 Etagen (EG+OG). Im Erdgeschoß befinden sich der große Wohn- Essbereich, ein Gästezimmer, die Küche, der Hauswirtschaftsraum, ein Flur, und ein WC. Im Obergeschoß sind 3 Schlafzimmer und ein Bad. Die genaue Aufteilung ist noch genau bestimm- und variierbar.
Das Haus verfügt über eine hochwertige Ausstattung und ist mit allen wichtigen Details ausgestattet. Zu diesen gehören unter anderem:
- Massive Ziegelbauweise mit Wärmedämmverbundsystem und weißer Putzfassade.
- Hochwertige Kunststofffenster mit Dreifachverglasung.
- Elektrische Rollläden mit Aluminiumpanzer.
- Moderne Luft/Wasser-Wärmepumpe mit großem Warmwasserspeicher.
- Fußbodenheizung in den Wohnbereichen (mit Einzelraumregelung / Raumthermostaten). Die Anlage ist energieeffizient ausgelegt und kann in Kombination mit der Wärmepumpe auch kühlen.
- Kontrollierte Lüftungsanlage (zentral, Schutz der Gebäudehülle vor Feuchte).
- Hochwertiges Fliesenpaket (Badezimmer, Gäste-WC, Diele, Flure, Küche) und Markensanitärobjekte.
- Innentüren mit pflegeleichter CPL-Oberfläche (verschiedene Farbvarianten wählbar).
- Stahlholmtreppe mit massiven Holzstufen.
- Außenfensterbänke aus Aluminium (bei Putzfassade) / Innenfensterbänke in Naturstein oder Werkstein.
- Umfangreiche Elektroinstallation sowie Leerrohr-Vorrüstung für spätere Erweiterungen.
- Schutz- und Serviceleistungen: baubegleitende Organisation und Versicherungen sind Bestandteil des Angebots. Individuelle Qualitätsprüfungen und Zusatzversicherungen sind möglich.
- Keller optional gegen Aufpreis
- Photovoltaik-Anlage optional gegen Aufpreis
Baunebenkosten:
Baunebenkosten in Höhe von ca. 50.000€ sind bereits im Kaufpreis inbegriffen!
Dazu gehören z.B. Hausanschlüsse, Baustrom, Bauwasser, Allgemeine Gebühren (Herstellungsbeiträge, Genehmigungen), Vermessungskosten, Teilungskosten, Eventualkosten (Gemeinsame Zuwegung, Bordsteinabsenkung) etc..
Die genaue Aufstellung der Baunebenkosten erhalten Sie im Rahmen eines individuellen Investitionsplanes
Das Haus verfügt über eine hochwertige Ausstattung und ist mit allen wichtigen Details ausgestattet. Zu diesen gehören unter anderem:
- Massive Ziegelbauweise mit Wärmedämmverbundsystem und weißer Putzfassade.
- Hochwertige Kunststofffenster mit Dreifachverglasung.
- Elektrische Rollläden mit Aluminiumpanzer.
- Moderne Luft/Wasser-Wärmepumpe mit großem Warmwasserspeicher.
- Fußbodenheizung in den Wohnbereichen (mit Einzelraumregelung / Raumthermostaten). Die Anlage ist energieeffizient ausgelegt und kann in Kombination mit der Wärmepumpe auch kühlen.
- Kontrollierte Lüftungsanlage (zentral, Schutz der Gebäudehülle vor Feuchte).
- Hochwertiges Fliesenpaket (Badezimmer, Gäste-WC, Diele, Flure, Küche) und Markensanitärobjekte.
- Innentüren mit pflegeleichter CPL-Oberfläche (verschiedene Farbvarianten wählbar).
- Stahlholmtreppe mit massiven Holzstufen.
- Außenfensterbänke aus Aluminium (bei Putzfassade) / Innenfensterbänke in Naturstein oder Werkstein.
- Umfangreiche Elektroinstallation sowie Leerrohr-Vorrüstung für spätere Erweiterungen.
- Schutz- und Serviceleistungen: baubegleitende Organisation und Versicherungen sind Bestandteil des Angebots. Individuelle Qualitätsprüfungen und Zusatzversicherungen sind möglich.
- Keller optional gegen Aufpreis
- Photovoltaik-Anlage optional gegen Aufpreis
Baunebenkosten:
Baunebenkosten in Höhe von ca. 50.000€ sind bereits im Kaufpreis inbegriffen!
Dazu gehören z.B. Hausanschlüsse, Baustrom, Bauwasser, Allgemeine Gebühren (Herstellungsbeiträge, Genehmigungen), Vermessungskosten, Teilungskosten, Eventualkosten (Gemeinsame Zuwegung, Bordsteinabsenkung) etc..
Die genaue Aufstellung der Baunebenkosten erhalten Sie im Rahmen eines individuellen Investitionsplanes
Sonstige Informationen
Haftungsausschluss:
Alle Angaben in diesem Exposé wurden mit größter Sorgfalt zusammengestellt und beruhen auf Informationen, die uns vom Eigentümer bzw. Dritten zur Verfügung gestellt wurden. Eine Gewähr für die Richtigkeit, Vollständigkeit und Aktualität dieser Angaben können wir jedoch nicht übernehmen.
Wohnfläche (WoFlV): 159 m²
Nutzfläche (DIN 277): 163 m²
Die genannten Werte dienen zur Orientierung und sind vor Abschluss des Kaufvertrags eigenständig zu prüfen. Maßgeblich sind ausschließlich die im notariellen Kaufvertrag und im Werkvertrag festgelegten Vereinbarungen.
Grundrisse, Visualisierungen und Illustrationen dienen der Veranschaulichung, sind nicht maßstabsgetreu und können optionale Sonderausstattungen zeigen. Ausschlaggebend ist die individuelle Planung mit dem Generalübernehmer.
Zwischenverkauf, Preisänderungen und Irrtümer bleiben ausdrücklich vorbehalten.
Weitere Informationen zu diesem und zu weiteren Objekten finden Sie unter www.Immobilien-Ried.de
Alle Angaben in diesem Exposé wurden mit größter Sorgfalt zusammengestellt und beruhen auf Informationen, die uns vom Eigentümer bzw. Dritten zur Verfügung gestellt wurden. Eine Gewähr für die Richtigkeit, Vollständigkeit und Aktualität dieser Angaben können wir jedoch nicht übernehmen.
Wohnfläche (WoFlV): 159 m²
Nutzfläche (DIN 277): 163 m²
Die genannten Werte dienen zur Orientierung und sind vor Abschluss des Kaufvertrags eigenständig zu prüfen. Maßgeblich sind ausschließlich die im notariellen Kaufvertrag und im Werkvertrag festgelegten Vereinbarungen.
Grundrisse, Visualisierungen und Illustrationen dienen der Veranschaulichung, sind nicht maßstabsgetreu und können optionale Sonderausstattungen zeigen. Ausschlaggebend ist die individuelle Planung mit dem Generalübernehmer.
Zwischenverkauf, Preisänderungen und Irrtümer bleiben ausdrücklich vorbehalten.
Weitere Informationen zu diesem und zu weiteren Objekten finden Sie unter www.Immobilien-Ried.de
Lage des Objektes
Herzlich willkommen in der bezaubernden Stadt Landsberg am Lech, wo Tradition auf Moderne trifft und Lebensqualität großgeschrieben wird. Das hier präsentierte Einfamilienhaus befindet sich in einer der begehrtesten Wohnlagen der Stadt und bietet eine ideale Kombination aus urbaner Anbindung und naturnahem Wohnen.
Die Immobilie liegt in einer ruhigen Wohngegend. Landsberg am Lech besticht durch sein malerisches Stadtbild mit liebevoll restaurierten Fachwerkhäusern, gepflasterten Gassen und dem idyllischen Lechfluss, der sich durch die Stadt schlängelt. Hier erleben Sie eine einzigartige Mischung aus Geschichte, Kultur und modernem Lebensstil.
Die Anbindung an das Verkehrsnetz ist hervorragend: Die Autobahn A96 und die B17 sind schnell erreichbar, was Ihnen eine unkomplizierte Verbindung nach München, Augsburg und darüber hinaus ermöglicht. Gleichzeitig sorgt der Landsberger Bahnhof für eine optimale Anbindung an das regionale und überregionale Schienennetz.
Für Familien mit Kindern bietet die Umgebung eine Vielzahl von Bildungseinrichtungen, darunter Schulen und Kindergärten. Einkaufsmöglichkeiten für den täglichen Bedarf, Restaurants und Freizeiteinrichtungen sind in der Nähe und tragen zu einer angenehmen Lebensqualität bei.
Das Einfamilienhaus selbst befindet sich in einer gepflegten Nachbarschaft und präsentiert sich auf einem schönen Grundstück. Die Nachmittage können Sie entspannt auf der Terrasse verbringen und dabei die Ruhe der Umgebung genießen.
Insgesamt bietet diese Immobilie nicht nur ein behagliches Zuhause, sondern auch eine erstklassige Lebensqualität in einer der attraktivsten Regionen Bayerns. Erleben Sie die Vorzüge von Landsberg am Lech und vereinen Sie Tradition und Moderne in Ihrem neuen Zuhause.
Die Immobilie liegt in einer ruhigen Wohngegend. Landsberg am Lech besticht durch sein malerisches Stadtbild mit liebevoll restaurierten Fachwerkhäusern, gepflasterten Gassen und dem idyllischen Lechfluss, der sich durch die Stadt schlängelt. Hier erleben Sie eine einzigartige Mischung aus Geschichte, Kultur und modernem Lebensstil.
Die Anbindung an das Verkehrsnetz ist hervorragend: Die Autobahn A96 und die B17 sind schnell erreichbar, was Ihnen eine unkomplizierte Verbindung nach München, Augsburg und darüber hinaus ermöglicht. Gleichzeitig sorgt der Landsberger Bahnhof für eine optimale Anbindung an das regionale und überregionale Schienennetz.
Für Familien mit Kindern bietet die Umgebung eine Vielzahl von Bildungseinrichtungen, darunter Schulen und Kindergärten. Einkaufsmöglichkeiten für den täglichen Bedarf, Restaurants und Freizeiteinrichtungen sind in der Nähe und tragen zu einer angenehmen Lebensqualität bei.
Das Einfamilienhaus selbst befindet sich in einer gepflegten Nachbarschaft und präsentiert sich auf einem schönen Grundstück. Die Nachmittage können Sie entspannt auf der Terrasse verbringen und dabei die Ruhe der Umgebung genießen.
Insgesamt bietet diese Immobilie nicht nur ein behagliches Zuhause, sondern auch eine erstklassige Lebensqualität in einer der attraktivsten Regionen Bayerns. Erleben Sie die Vorzüge von Landsberg am Lech und vereinen Sie Tradition und Moderne in Ihrem neuen Zuhause.
Anbieter kontaktieren
Kontakt
| Telefon | 00491739267881 |
| Mobil | 00491739267881 |
| Website | immobilien-ried.de |
