Doppelhaushälfte in 59379 Selm
268.000 €
Kaufpreis
112 m²
Wohnfläche
5
Zimmer
immobilien.de Nr.: 9380395
Objektnummer: Selm-251215002
Kaufpreis
| Kaufpreis | 268.000 € |
Wohnfläche, Grundstück & Bausubstanz
| Wohnfläche | 112 m² |
| Grundstücksfläche | 300 m² |
| Zimmer | 5 |
| Baujahr | 2026 |
| Verfügbar ab | keine Angabe |
| Zustand | Erstbezug |
Energie
| Energietyp | Niedrigenergie, KfW-55 |
| Heizungsart | Zentralheizung, Fußbodenheizung |
| Energieträger/Befeuerung | Luft-Wärme-Pumpe |
Beschreibung der Immobilie
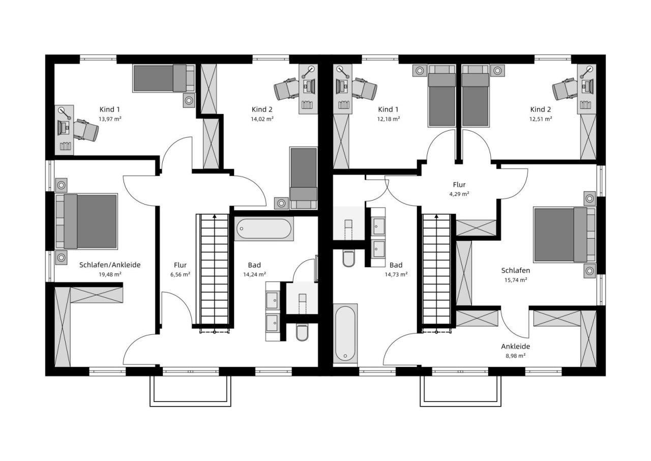
Die hier angebotene Doppelhaushälfte verfügt über eine Netto-Raumfläche von ca. 112 m² und überzeugt durch eine durchdachte, familienfreundliche Raumaufteilung auf 1,5 Geschossen.
Der Haustyp FAMILY verbindet zeitlose Architektur mit moderner Energieeffizienz. Das Haus wird standardmäßig als Effizienzhaus KfW 55 errichtet und kann optional als KfW-40-Haus ausgeführt werden. Damit erfüllt es hohe Anforderungen an nachhaltiges und zukunftssicheres Wohnen.
Die Doppelhaushälfte eignet sich ideal für Familien, Paare oder Eigennutzer, die Wert auf klare Linienführung, praktische Grundrisse und ein attraktives Preis-Leistungs-Verhältnis legen.
Ob im Neubaugebiet oder auf einem vorhandenen Grundstück - das Haus wird individuell geplant und realisiert.
💰 Kaufpreis ab: 268.000 EUR
(Hauspreis gemäß Standard-Ausbaustufe "Fast-Fertig-Plus", zzgl. Grundstückspacht)
Der Haustyp FAMILY verbindet zeitlose Architektur mit moderner Energieeffizienz. Das Haus wird standardmäßig als Effizienzhaus KfW 55 errichtet und kann optional als KfW-40-Haus ausgeführt werden. Damit erfüllt es hohe Anforderungen an nachhaltiges und zukunftssicheres Wohnen.
Die Doppelhaushälfte eignet sich ideal für Familien, Paare oder Eigennutzer, die Wert auf klare Linienführung, praktische Grundrisse und ein attraktives Preis-Leistungs-Verhältnis legen.
Ob im Neubaugebiet oder auf einem vorhandenen Grundstück - das Haus wird individuell geplant und realisiert.
💰 Kaufpreis ab: 268.000 EUR
(Hauspreis gemäß Standard-Ausbaustufe "Fast-Fertig-Plus", zzgl. Grundstückspacht)
Ausstattungsmerkmale
| Anzahl der Etagen im Haus | 2 |
| Küche | Offene Küche |
| Bad | 2 |
| Bad | Dusche, Wanne, Fenster |
| Terrassen | 1 |
Energie & Effizienz
Effizienzhaus KfW 55 (Standard)
KfW 40 optional möglich
Förderfähig nach aktuellen Richtlinien
Optional mit Photovoltaikanlage und Batteriespeicher
Moderne Wärmepumpen-Technologie
Wohnraumlüftung mit Wärmerückgewinnung
Niedriger Energieverbrauch & angenehmes Raumklima
Bau- & Ausstattungsstandard (im Grundpreis enthalten)
16 Monate Festpreisgarantie
Individuelle Grundrissgestaltung
Gedämmte Fundamentplatte
Haustür von KERA
Fenster von Porta / Kömmerling
Massivholz-Geschosstreppe aus eigener Produktion
Sanitärobjekte von Markenherstellern
Elektroinstallation
TÜV-Rheinland-Gütesiegel (schadstoffgeprüfte Materialien)
KfW-Berechnungen, Nachweise & Förderanträge inklusive
Hausdaten
Wohn-/Raumfläche: ca. 112 m²
1,5 Geschosse
Doppelhaushälfte
Frei planbar: Grundriss, Dachform, Fensteranordnung & Ausstattung
Ausbaustufe
Fast-Fertig-Plus (Technikfertig inkl. Bäder)
Eigenleistungen: Malerarbeiten, Bodenbeläge, Innentüren
Optional schlüsselfertig / bezugsfertig
Effizienzhaus KfW 55 (Standard)
KfW 40 optional möglich
Förderfähig nach aktuellen Richtlinien
Optional mit Photovoltaikanlage und Batteriespeicher
Moderne Wärmepumpen-Technologie
Wohnraumlüftung mit Wärmerückgewinnung
Niedriger Energieverbrauch & angenehmes Raumklima
Bau- & Ausstattungsstandard (im Grundpreis enthalten)
16 Monate Festpreisgarantie
Individuelle Grundrissgestaltung
Gedämmte Fundamentplatte
Haustür von KERA
Fenster von Porta / Kömmerling
Massivholz-Geschosstreppe aus eigener Produktion
Sanitärobjekte von Markenherstellern
Elektroinstallation
TÜV-Rheinland-Gütesiegel (schadstoffgeprüfte Materialien)
KfW-Berechnungen, Nachweise & Förderanträge inklusive
Hausdaten
Wohn-/Raumfläche: ca. 112 m²
1,5 Geschosse
Doppelhaushälfte
Frei planbar: Grundriss, Dachform, Fensteranordnung & Ausstattung
Ausbaustufe
Fast-Fertig-Plus (Technikfertig inkl. Bäder)
Eigenleistungen: Malerarbeiten, Bodenbeläge, Innentüren
Optional schlüsselfertig / bezugsfertig
Sonstige Informationen
Individuelle Planung jeder Doppelhaushälfte
Nachhaltige, ökologische & wohngesunde Bauweise
Kurze Bauzeit & zertifizierte Ausführungsqualität
STREIF: seit 1929, über 85.000 realisierte Wohnträume
Serviceleistungen
Kostenlose Bauberatung inkl. Grundrissplanung
Ermittlung der Gesamt-Investition
Finanzierungs- & Fördermittelberatung
Regionale Netzwerkpartner (Garage, Carport, Küche, Kamin, Tiefbau u. v. m.)
Rechtliche Hinweise
Bilder können Sonderausstattungen zeigen
Preis zzgl. Baunebenkosten und Grundstückspacht
Energieausweis wird im Rahmen der Erstellung ausgehändigt
Angaben ohne Gewähr, Zwischenverkauf & Irrtümer vorbehalten
Nachhaltige, ökologische & wohngesunde Bauweise
Kurze Bauzeit & zertifizierte Ausführungsqualität
STREIF: seit 1929, über 85.000 realisierte Wohnträume
Serviceleistungen
Kostenlose Bauberatung inkl. Grundrissplanung
Ermittlung der Gesamt-Investition
Finanzierungs- & Fördermittelberatung
Regionale Netzwerkpartner (Garage, Carport, Küche, Kamin, Tiefbau u. v. m.)
Rechtliche Hinweise
Bilder können Sonderausstattungen zeigen
Preis zzgl. Baunebenkosten und Grundstückspacht
Energieausweis wird im Rahmen der Erstellung ausgehändigt
Angaben ohne Gewähr, Zwischenverkauf & Irrtümer vorbehalten
Karte wird geladen...
Objektstandort
59379 Selm
Lage & Infrastruktur
Objektstandort
59379 Selm
Die Doppelhaushälfte befindet sich in 59379 Selm, im Ortsteil Finefrau, in einer neuen, ruhig gelegenen Wohnstraße.
Attraktives Neubaugebiet
Ruhige, familienfreundliche Umgebung
Gute Infrastruktur (Kitas, Schulen, Einkaufsmöglichkeiten)
Schnelle Anbindung an das Stadtzentrum von Selm
Ideale Lage für Familien und Berufspendler
📌 Hinweis:
Das Haus wird auf einem Pachtgrundstück errichtet.
Details zur Laufzeit und Höhe der Grundstückspacht erläutern wir Ihnen gerne im persönlichen Gespräch.
Attraktives Neubaugebiet
Ruhige, familienfreundliche Umgebung
Gute Infrastruktur (Kitas, Schulen, Einkaufsmöglichkeiten)
Schnelle Anbindung an das Stadtzentrum von Selm
Ideale Lage für Familien und Berufspendler
📌 Hinweis:
Das Haus wird auf einem Pachtgrundstück errichtet.
Details zur Laufzeit und Höhe der Grundstückspacht erläutern wir Ihnen gerne im persönlichen Gespräch.
Kontaktanfrage senden
Über den Anbieter
STREIF Haus GmbH
Josef-Streif-Straße 1
54595 Weinsheim
Kontakt
| Telefon | +49 2592 9887088 |
| Mobil | +49 176 56262377 |
| Website | www.streif.de |
Ansprechpartner/in
Herr Klaus Ruhoff