Einfach Mehr: Gepflegte Erdgeschoss-Wohnung, Garten, Teich, 2Garagen, PKW-Stellplatz. PV-Anlage u.a.
230.000 €
Kaufpreis
100 m²
Wohnfläche
5
Zimmer
immobilien.de Nr.: 9375773
Objektnummer: FALC-MH-78320
Preise & Kosten
| Kaufpreis | 230.000 € |
| Nebenkosten | keine Angabe |
| Kaufpreis pro m² | 2300 € |
| Maklerprovision | 3,57% inkl. 19% MwSt vom notariellen Kaufpreis |
| Stellplatz Garage Kaufpreis | 0 € |
Größe & Zustand
| Wohnfläche | 100 m² |
| Gesamtfläche | 124 m² |
| Zimmer | 5 |
| Baujahr | 1974 |
| Letzte Modernisierung | 2013 |
| Verfügbar ab | Sofort |
| Zustand | Modernisiert |
Energie
| Energieausweistyp | Bedarfsausweis |
| Ausstellungsdatum | 12. 08. 2025 |
| Gültig bis | 11.08.2035 |
| Energieeffizienzklasse | G |
| Endenergiebedarf | 215.9 |
| Heizungsart | Zentralheizung |
| Wesentlicher Energieträger | Öl |
| Energieträger/Befeuerung | Öl |
Objektbeschreibung
Verlieben Sie sich in diese schmucke Nichtraucher-Erdgeschoss-Wohnung, gepflegt, sauber, großzügig, modern.
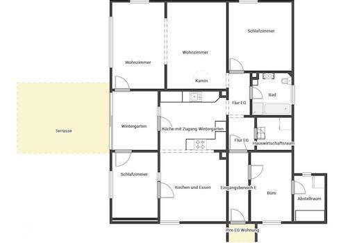
Die gepflegte Erdgeschoss befindet sich in einem 4-Parteienhaus, bietet Ihnen viel Platz und Wohlbefinden, große Wohnküche, 3 Schlafzimmer, ein großes Wohnzimmer mit Zugang zum Garten über den Wintergarten, Süd-Terrasse, Veranda, Teich, pflegeleichtem sowie gepflegtem Garten.
Beim Betreten des Hauses gelangen Sie in einen einladenden Eingangsbereich, über den Sie alle Bereiche Ihrer Wohnung gut erreichen. In der Wohnküche und im Wohnzimmer sorgt je ein Holzofen für eine gemütliche Atmosphäre. Die moderne Einbauküche ist ein Highlight für Kochbegeisterte und bietet viel Stauraum sowie hochwertige Geräte für Profiköche. Bei der Wohnküche gibt es ein Gäste-Schlafzimmer mit Zugang Garten. Vom Wohnzimmer und über die Wohnküche gelangen Sie über den Wintergarten in den Garten.
Wohnzimmer, Holzofen vorhanden, hell und geräumig, ideal für entspannte Abende. Von hier aus haben Sie Zugang zum Wintergarten und zur Süd-Terrasse, die einen schönen Blick auf den gepflegten Garten bietet. Der Garten selbst ist ein Paradies und lädt zum Garteln(Hochbeete) und Entspannen ein.
Trotz der Energieeffizienzklasse G bietet das Haus durch seine solide Stein-Massiv-Bauweise und die gute Raumaufteilung viele Möglichkeiten zur individuellen Gestaltung. Ein ideales Zuhause für Menschen die viel Platz, durchdachten Grundriss sowie Komfort und barrierefreies Wohnen suchen.
Zur Erdgeschoss-Wohnung gehörend, im Kaufpreis der Wohnung enthalten, sind die moderne Einbauküche, 2 zugelassene Holzöfen, 2 Garagen sowie 1 PKW-Außenstellplatz über den Hof zu erreichen, Gartenpflanzen, Hochbeete, Teich sowie die PV-Anlage mit Wechselrichter.
Zeitnah Einziehen und Wohlfühlen oder als solide Kapitalanlage vermieten.
Die gepflegte Erdgeschoss befindet sich in einem 4-Parteienhaus, bietet Ihnen viel Platz und Wohlbefinden, große Wohnküche, 3 Schlafzimmer, ein großes Wohnzimmer mit Zugang zum Garten über den Wintergarten, Süd-Terrasse, Veranda, Teich, pflegeleichtem sowie gepflegtem Garten.
Beim Betreten des Hauses gelangen Sie in einen einladenden Eingangsbereich, über den Sie alle Bereiche Ihrer Wohnung gut erreichen. In der Wohnküche und im Wohnzimmer sorgt je ein Holzofen für eine gemütliche Atmosphäre. Die moderne Einbauküche ist ein Highlight für Kochbegeisterte und bietet viel Stauraum sowie hochwertige Geräte für Profiköche. Bei der Wohnküche gibt es ein Gäste-Schlafzimmer mit Zugang Garten. Vom Wohnzimmer und über die Wohnküche gelangen Sie über den Wintergarten in den Garten.
Wohnzimmer, Holzofen vorhanden, hell und geräumig, ideal für entspannte Abende. Von hier aus haben Sie Zugang zum Wintergarten und zur Süd-Terrasse, die einen schönen Blick auf den gepflegten Garten bietet. Der Garten selbst ist ein Paradies und lädt zum Garteln(Hochbeete) und Entspannen ein.
Trotz der Energieeffizienzklasse G bietet das Haus durch seine solide Stein-Massiv-Bauweise und die gute Raumaufteilung viele Möglichkeiten zur individuellen Gestaltung. Ein ideales Zuhause für Menschen die viel Platz, durchdachten Grundriss sowie Komfort und barrierefreies Wohnen suchen.
Zur Erdgeschoss-Wohnung gehörend, im Kaufpreis der Wohnung enthalten, sind die moderne Einbauküche, 2 zugelassene Holzöfen, 2 Garagen sowie 1 PKW-Außenstellplatz über den Hof zu erreichen, Gartenpflanzen, Hochbeete, Teich sowie die PV-Anlage mit Wechselrichter.
Zeitnah Einziehen und Wohlfühlen oder als solide Kapitalanlage vermieten.
Ausstattung
| Anzahl der Etagen im Haus | 3 |
| Inserat befindet sich im Stockwerk | 0 |
| Küche | Einbauküche |
| Bad | 1 |
| Bad | Dusche, Wanne, Fenster |
| Boden | Fliesen, Teppich, Laminat, Kunststoff |
| Balkone | 1 |
| Garten | |
| Terrassen | 1 |
| Barrierefrei | |
| Garage/Stellplätze | 2 |
- Solides EFH mit 4 Wohnungen(alle mit eigenem Eingang)
- Grundstück 1398 m²
- Wohnfläche: ca. 100 m²
- Stein-Massiv
- Wandstärke ca. 36,50 cm
- Satteldach(Kaltdach, isoliert)
- Baujahr: Haupthaus: 1960
- Anbau, und diese Wohnung: 1974
- Garten vorhanden
- Moderne Einbauküche(2012)
- Wohnzimmer, 2012 renoviert, mit zugelassenem Holzofen
- Badezimmer
- Öl-Zentralheizung(2011)
- 5 Heizöl-Kunststoff-Tanks(gesamt ca. 10.000 Liter)
- 2 zugelassene Holzöfen
- 2 Wohnbereiche(Wohn-Ess-Küche und Wohnzimmer) mit je 1 Holzofen
- Böden: Laminat-, Fliesen, Teppich, PVC
- Fenster: 2-fach-verglast, Kunststoff, weiß
- Große Fenster für viel Tageslicht
- Wintergarten mit großer Schiebe-Türe zum Garten
- 2 Garagen beim Haus, und Hof mit...
- PKW-Stellplatz beim Hauseingang
- PV-Anlage(nach Süden ausgerichtet) mit Wechselrichter
- Haus komplett trocken, keine Feuchtigkeit, kein Schimmel
- Nichtraucher, sehr gepflegt
- Solide Kapitalanlage
- Kein Reparaturstau
- 1 großes Nebengebäude mit separater Holzlege, eins davon mit 2 getrennten hohen Garagen(PKW und Wohnmobil, Schiebetore, Licht und Starkstrom), eigene Zufahrt, großes Lager im Obergeschoss etc. können separat für €25.000 erworben werden.
Wohnung 1 - Erdgeschoss: ca. 100 m² - sofort bezugsfrei
4-Zimmer, davon 3-4 Schlafzimmer, Wohnzimmer, Wohn-Ess-Küche, Moderne EBK, Badzimmer(Dusche, Badewanne, WC, WB, Fenster), HWR, Speis, Wintergarten mit Zugang Terrasse, Garten mit Teich, 2 Garagen, 1 PKW-Stellplatz im Hof etc.
- Grundstück ca. 1398 m²
- Ruhige Wohnlage
- 2 Kindergärten fußläufig
- Bushaltestelle fußläufig
- Autobahnanschluss ca. 2 km
Die Teilungserklärung ist in Arbeit und ist bis zu Ihrem Notar-Termin dieser Wohnung fertig gestellt.
Diese sehr gepflegte Erdgeschoss-Wohnung, eignete sich perfekt für ein (Ehe-)Paar oder Menschen mit Geh-Behinderung oder als solide Kapitalanlage. Im Haus gibt es noch 3 weitere Wohnungen zu erwerben, die möglicherweise für Sie ebenfalls interessant sind.
- Grundstück 1398 m²
- Wohnfläche: ca. 100 m²
- Stein-Massiv
- Wandstärke ca. 36,50 cm
- Satteldach(Kaltdach, isoliert)
- Baujahr: Haupthaus: 1960
- Anbau, und diese Wohnung: 1974
- Garten vorhanden
- Moderne Einbauküche(2012)
- Wohnzimmer, 2012 renoviert, mit zugelassenem Holzofen
- Badezimmer
- Öl-Zentralheizung(2011)
- 5 Heizöl-Kunststoff-Tanks(gesamt ca. 10.000 Liter)
- 2 zugelassene Holzöfen
- 2 Wohnbereiche(Wohn-Ess-Küche und Wohnzimmer) mit je 1 Holzofen
- Böden: Laminat-, Fliesen, Teppich, PVC
- Fenster: 2-fach-verglast, Kunststoff, weiß
- Große Fenster für viel Tageslicht
- Wintergarten mit großer Schiebe-Türe zum Garten
- 2 Garagen beim Haus, und Hof mit...
- PKW-Stellplatz beim Hauseingang
- PV-Anlage(nach Süden ausgerichtet) mit Wechselrichter
- Haus komplett trocken, keine Feuchtigkeit, kein Schimmel
- Nichtraucher, sehr gepflegt
- Solide Kapitalanlage
- Kein Reparaturstau
- 1 großes Nebengebäude mit separater Holzlege, eins davon mit 2 getrennten hohen Garagen(PKW und Wohnmobil, Schiebetore, Licht und Starkstrom), eigene Zufahrt, großes Lager im Obergeschoss etc. können separat für €25.000 erworben werden.
Wohnung 1 - Erdgeschoss: ca. 100 m² - sofort bezugsfrei
4-Zimmer, davon 3-4 Schlafzimmer, Wohnzimmer, Wohn-Ess-Küche, Moderne EBK, Badzimmer(Dusche, Badewanne, WC, WB, Fenster), HWR, Speis, Wintergarten mit Zugang Terrasse, Garten mit Teich, 2 Garagen, 1 PKW-Stellplatz im Hof etc.
- Grundstück ca. 1398 m²
- Ruhige Wohnlage
- 2 Kindergärten fußläufig
- Bushaltestelle fußläufig
- Autobahnanschluss ca. 2 km
Die Teilungserklärung ist in Arbeit und ist bis zu Ihrem Notar-Termin dieser Wohnung fertig gestellt.
Diese sehr gepflegte Erdgeschoss-Wohnung, eignete sich perfekt für ein (Ehe-)Paar oder Menschen mit Geh-Behinderung oder als solide Kapitalanlage. Im Haus gibt es noch 3 weitere Wohnungen zu erwerben, die möglicherweise für Sie ebenfalls interessant sind.
Sonstige Informationen
Bei Interesse geben Sie bitte immer Ihre vollständigen Kontaktdaten(Vor- und Familien-Name, Anschrift, Telefon-Nummer-n) an und vereinbaren Sie bitte einen unverbindlichen Termin.
Die Objektbeschreibung beruht ganz oder zum Teil auf Angaben des Eigentümers. Für die Richtigkeit oder Vollständigkeit übernehmen wir keine Gewähr. Maßangaben sind Zirka(ca.)-Werte ohne Gewähr gemäß Angaben des Verkäufers.
Auf unser Homepage www.falcimmo.de unter der Rubrik Immobiliensuche halten wir für Sie zum einen den Online-Suchauftrag bereit, zudem finden Sie viele andere nützliche Informationen für Kaufinteressenten sowie Eigentümer, Mieter und Kapitalanleger.
Sie wünschen eine persönliche Besichtigung? Gerne zeigen wir Ihnen dieses Ensemble persönlich, kontaktieren Sie uns bitte für Ihren individuellen Besichtigungstermin.
Sie benötigen eine Finanzierung? Gerne hilft Ihnen unser Team dazu weiter, sprechen Sie mich gerne dazu an und/oder über den QR-Code im Exposé erreichbar.
Sie sind Kapitalanleger und wollen vermieten? Gerne übernehmen wir die Professionelle Vermietung für Sie.
Wir freuen uns auf Sie. Ihr FALC Immobilien Matthias Heimel Kelheim und Team.
Die Objektbeschreibung beruht ganz oder zum Teil auf Angaben des Eigentümers. Für die Richtigkeit oder Vollständigkeit übernehmen wir keine Gewähr. Maßangaben sind Zirka(ca.)-Werte ohne Gewähr gemäß Angaben des Verkäufers.
Auf unser Homepage www.falcimmo.de unter der Rubrik Immobiliensuche halten wir für Sie zum einen den Online-Suchauftrag bereit, zudem finden Sie viele andere nützliche Informationen für Kaufinteressenten sowie Eigentümer, Mieter und Kapitalanleger.
Sie wünschen eine persönliche Besichtigung? Gerne zeigen wir Ihnen dieses Ensemble persönlich, kontaktieren Sie uns bitte für Ihren individuellen Besichtigungstermin.
Sie benötigen eine Finanzierung? Gerne hilft Ihnen unser Team dazu weiter, sprechen Sie mich gerne dazu an und/oder über den QR-Code im Exposé erreichbar.
Sie sind Kapitalanleger und wollen vermieten? Gerne übernehmen wir die Professionelle Vermietung für Sie.
Wir freuen uns auf Sie. Ihr FALC Immobilien Matthias Heimel Kelheim und Team.
Lage des Objektes
Diese Immobilie befindet sich in einer ruhigen und familienfreundlichen Umgebung, die ideal für alle Altersgruppen ist. Die Lage bietet eine hervorragende Anbindung an den öffentlichen Nahverkehr. Die nächste Bushaltestelle ist in wenigen Schritten zu erreichen, was den täglichen Pendelverkehr erleichtert.
Für Familien mit Kindern ist die Nähe zu 2 Kindergärten sowie Bildungseinrichtungen von großer Bedeutung. Ein Kindergarten befindet sich nur wenige Schritte entfernt, während die nächste Schule ebenfalls in fußläufiger Entfernung liegt. Dies ermöglicht einen stressfreien Start in den Tag für Eltern und Kinder.
In der Freizeit können sich Kinder auf einem nahegelegenen Spielplatz und in der Natur austoben, welche bequem zu Fuß erreichbar sind. Die Umgebung bietet zudem zahlreiche Möglichkeiten für sportliche Aktivitäten und Erholung für Groß & Klein.
Die Anbindung an die Autobahn(A3), Regensburg/Nürnberg, ist ebenfalls nah, was Ausflüge in die Umgebung oder den Weg zur Arbeit erleichtert. Der nächste Flughafen(Nürnberg) ist in etwa einer Stunde mit dem Auto erreichbar, was die Lage auch für Geschäfts-Reisende attraktiv macht.
Die Gegend zeichnet sich durch eine hohe Eigentümerquote aus, was auf eine stabile und gepflegte Nachbarschaft hinweist. Die durchschnittliche Wohnfläche pro Kopf ist großzügig bemessen, was auf ein komfortables Wohnumfeld schließen lässt.
Insgesamt bietet diese Immobilie eine ideale Kombination aus ruhiger Lage, guter Infrastruktur und familienfreundlichen Einrichtungen, die das Leben für (junge) Familien angenehm und unkompliziert gestalten.
Für Familien mit Kindern ist die Nähe zu 2 Kindergärten sowie Bildungseinrichtungen von großer Bedeutung. Ein Kindergarten befindet sich nur wenige Schritte entfernt, während die nächste Schule ebenfalls in fußläufiger Entfernung liegt. Dies ermöglicht einen stressfreien Start in den Tag für Eltern und Kinder.
In der Freizeit können sich Kinder auf einem nahegelegenen Spielplatz und in der Natur austoben, welche bequem zu Fuß erreichbar sind. Die Umgebung bietet zudem zahlreiche Möglichkeiten für sportliche Aktivitäten und Erholung für Groß & Klein.
Die Anbindung an die Autobahn(A3), Regensburg/Nürnberg, ist ebenfalls nah, was Ausflüge in die Umgebung oder den Weg zur Arbeit erleichtert. Der nächste Flughafen(Nürnberg) ist in etwa einer Stunde mit dem Auto erreichbar, was die Lage auch für Geschäfts-Reisende attraktiv macht.
Die Gegend zeichnet sich durch eine hohe Eigentümerquote aus, was auf eine stabile und gepflegte Nachbarschaft hinweist. Die durchschnittliche Wohnfläche pro Kopf ist großzügig bemessen, was auf ein komfortables Wohnumfeld schließen lässt.
Insgesamt bietet diese Immobilie eine ideale Kombination aus ruhiger Lage, guter Infrastruktur und familienfreundlichen Einrichtungen, die das Leben für (junge) Familien angenehm und unkompliziert gestalten.
Anbieter kontaktieren
Anbieter
FALC Immobilien GmbH & Co. KG
Humperdickstr. 3
53773 Hennef (Sieg)
Kontakt
| Telefon | +49 800 6460646 |
| Mobil | +49 151 22431666 |
| Fax | +49 2242 9010319 |
| Website | www.falcimmo.de |
