Wohnen in bester Lage
840.000 €
Kaufpreis
126 m²
Wohnfläche
5
Zimmer
immobilien.de Nr.: 9374119
Objektnummer: Aßling3
Preise & Kosten
| Kaufpreis | 840.000 € |
| Nebenkosten | keine Angabe |
Größe & Zustand
| Wohnfläche | 126 m² |
| Grundstücksfläche | 462 m² |
| Zimmer | 5 |
| Verfügbar ab | keine Angabe |
| Zustand | Projektiert |
Energie
| Energieausweistyp | Bedarfsausweis |
| Energieeffizienzklasse | A+ |
| Energietyp | KfW-40 |
| Endenergiebedarf | 14.00 |
| Heizungsart | Fußbodenheizung |
| Wesentlicher Energieträger | Strom |
| Energieträger/Befeuerung | Luft-Wärme-Pumpe |
Objektbeschreibung
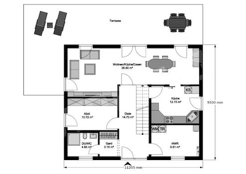
Willkommen in Ihrem neuen Traumhaus in Aßling! Dieses wunderschöne Einfamilienhaus, bietet Ihnen nicht nur ein behagliches Zuhause, sondern auch ein modernes Lebensgefühl. Mit einer großzügigen Wohnfläche von 126 m² verteilt auf 5 Zimmer, darunter 3 Schlafzimmer und 2 Badezimmer, ist dieses Haus ideal für Familien. Genießen Sie die Vorzüge eines durchdachten Grundrisses, der Ihnen sowohl Rückzugsorte als auch gemütliche Gemeinschaftsbereiche bietet. Das Haus erstreckt sich über 2 Etagen und überzeugt durch eine gesunde Mischung aus Funktionalität und Stil. Die moderne Bauweise und die hochwertige Ausstattung sorgen für ein angenehmes Wohnklima und eine hohe Lebensqualität.
Ausstattung
| Anzahl der Etagen im Haus | 2 |
| Küche | Offene Küche |
| Bad | 2 |
| Bad | Dusche, Wanne, Fenster |
| Boden | Fliesen, Parkett |
| Barrierefrei |
Die gehobene Ausstattung dieses Hauses lässt keine Wünsche offen. Die Bodenbeläge aus Fliesen und Parkett sorgen nicht nur für ein elegantes Erscheinungsbild, sondern sind auch äußerst pflegeleicht und langlebig. Fliesen sind ideal für Feuchträume, da sie wasserabweisend sind, während Parkett eine warme und einladende Atmosphäre schafft. Die innovative Wärmepumpe garantiert eine effiziente und umweltfreundliche Beheizung Ihres neuen Zuhauses, wodurch Sie nicht nur Energiekosten sparen, sondern auch den KFW40 Standard erfüllen. Ein weiteres Highlight ist der integrierte Kamin, der nicht nur für wohlige Wärme sorgt, sondern auch einen gemütlichen Mittelpunkt im Wohnbereich darstellt.
Sonstige Informationen
Vor dem Bau Ihres Traumhauses steht eine umfassende Beratung, in der wir Ihre Wünsche und Vorstellungen ermitteln. Wir bieten Ihnen vielfältige Optionen, von verschiedenen Dachformen bis hin zu unterschiedlichen Ausbaustufen. Die Ausbaustufe 4 "Schlüsselfertig" ermöglicht Ihnen ein besonders stressfreies Bauen, da Sie alles aus einer Hand erhalten und die Vorteile unserer Bauweise nutzen können. Nach einem ausführlichen Gespräch zur Planung Ihres Hauses setzen wir Ihre Ideen innerhalb weniger Monate um, sodass Sie schon bald in Ihr neues Zuhause einziehen können.
Lage des Objektes
Das Einfamilienhaus befindet sich in einer ruhigen und dennoch zentralen Lage in Aßling. Die hervorragende Infrastruktur ermöglicht Ihnen eine schnelle Erreichbarkeit aller wichtigen Einrichtungen. In unmittelbarer Nähe finden Sie eine Apotheke, einen Bahnhof, Busverbindungen, ein Einkaufscenter sowie Freizeitmöglichkeiten wie einen Golfplatz, ein Fitnessstudio und Spielplätze. Familien schätzen die Nähe zu Grundschule, Kindergarten und weiterführenden Schulen, die nur einen kurzen Fußweg entfernt sind. Zudem laden der angrenzende Wald und zahlreiche Grünflächen zu entspannenden Spaziergängen ein.
Anbieter kontaktieren
Kontakt
| Telefon | +49 (0) 65 51.12-00 |
| Mobil | +49 1590 1954233 |
| Website | www.streif.de |
