Exklusive Stadt Villa in Kamp-Bornhofen mit Grundstücksservice
730.000 €
Kaufpreis
150,23 m²
Wohnfläche
5
Zimmer
immobilien.de Nr.: 9373552
Objektnummer: JW-Stemmler-CV-Exclusiv
Preise & Kosten
| Kaufpreis | 730.000 € |
| Nebenkosten | keine Angabe |
Größe & Zustand
| Wohnfläche | 150,23 m² |
| Grundstücksfläche | 505 m² |
| Zimmer | 5 |
| Verfügbar ab | keine Angabe |
| Zustand | Projektiert |
Energie
| Energietyp | Niedrigenergie |
| Heizungsart | Fußbodenheizung |
| Energieträger/Befeuerung | Luft-Wärme-Pumpe |
Objektbeschreibung
"Exklusive STREIF Stadtvilla
- modernes Wohnen auf höchstem Niveau
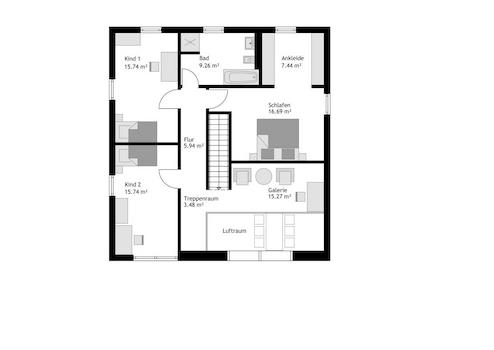
Willkommen in Ihrem neuen Traumhaus! Die exklusive Stadtvilla von STREIF vereint zeitlose Architektur mit maximaler Funktionalität auf rund 150 m² Netto-Raumfläche. Mit zwei Vollgeschossen, modernem Flachdach und klarer Linienführung bietet diese Villa eine beeindruckende Kombination aus Design, Licht und Raumgefühl.
Ein Highlight der Stadtvilla ist das großzügige 2-geschossige Panoramafenster, das nicht nur für lichtdurchflutete Räume sorgt, sondern den gesamten Wohn-/Ess- und Kochbereich mit einer offenen Galerie zu einem Ort besonderer Wohnqualität macht.
Individuelle Gestaltungsmöglichkeiten im Innen- und Außenbereich lassen Ihren persönlichen Stil perfekt einfließen - von der Raumaufteilung bis zur Fassadengestaltung.
Als Effizienzhaus 40 ausgestattet, erfüllt die Stadtvilla modernste Energiestandards und sichert Ihnen attraktive Förderungen: Bis zu 100.000 EUR zinsgünstiges Darlehen durch den "Klimafreundlichen Neubau" (KFN) oder sogar 150.000 EUR mit zusätzlicher QNG-Zertifizierung. Für Familien bestehen Fördermöglichkeiten von bis zu 250.000 EUR bei besonders günstigen Zinssätzen.
Selbstverständlich wird die Stadtvilla serienmäßig mit einer Luft-Wasser-Wärmepumpe inklusive kontrollierter Be- und Entlüftungsanlage und Fußbodenheizung ausgestattet - für höchsten Wohnkomfort und nachhaltiges Bauen.
Ihre Vorteile auf einen Blick:
Zwei Vollgeschosse ohne Dachschrägen
Ca. 150 m² perfekt nutzbare Wohnfläche
Großzügiger Wohn-/Essbereich mit Galerie
2-geschossiges Panoramafenster für maximale Lichtausbeute
Energieeffizienzhaus 40, förderfähig nach KFN und QNG
Hochwertige Ausstattung inklusive moderner Heiztechnik
Individuell anpassbare Planung und Architektur
Verwirklichen Sie jetzt Ihren Traum vom exklusiven Wohnen - mit einer STREIF Stadtvilla, die nicht nur Ihre Wünsche erfüllt, sondern neue Maßstäbe setzt.
- modernes Wohnen auf höchstem Niveau
Willkommen in Ihrem neuen Traumhaus! Die exklusive Stadtvilla von STREIF vereint zeitlose Architektur mit maximaler Funktionalität auf rund 150 m² Netto-Raumfläche. Mit zwei Vollgeschossen, modernem Flachdach und klarer Linienführung bietet diese Villa eine beeindruckende Kombination aus Design, Licht und Raumgefühl.
Ein Highlight der Stadtvilla ist das großzügige 2-geschossige Panoramafenster, das nicht nur für lichtdurchflutete Räume sorgt, sondern den gesamten Wohn-/Ess- und Kochbereich mit einer offenen Galerie zu einem Ort besonderer Wohnqualität macht.
Individuelle Gestaltungsmöglichkeiten im Innen- und Außenbereich lassen Ihren persönlichen Stil perfekt einfließen - von der Raumaufteilung bis zur Fassadengestaltung.
Als Effizienzhaus 40 ausgestattet, erfüllt die Stadtvilla modernste Energiestandards und sichert Ihnen attraktive Förderungen: Bis zu 100.000 EUR zinsgünstiges Darlehen durch den "Klimafreundlichen Neubau" (KFN) oder sogar 150.000 EUR mit zusätzlicher QNG-Zertifizierung. Für Familien bestehen Fördermöglichkeiten von bis zu 250.000 EUR bei besonders günstigen Zinssätzen.
Selbstverständlich wird die Stadtvilla serienmäßig mit einer Luft-Wasser-Wärmepumpe inklusive kontrollierter Be- und Entlüftungsanlage und Fußbodenheizung ausgestattet - für höchsten Wohnkomfort und nachhaltiges Bauen.
Ihre Vorteile auf einen Blick:
Zwei Vollgeschosse ohne Dachschrägen
Ca. 150 m² perfekt nutzbare Wohnfläche
Großzügiger Wohn-/Essbereich mit Galerie
2-geschossiges Panoramafenster für maximale Lichtausbeute
Energieeffizienzhaus 40, förderfähig nach KFN und QNG
Hochwertige Ausstattung inklusive moderner Heiztechnik
Individuell anpassbare Planung und Architektur
Verwirklichen Sie jetzt Ihren Traum vom exklusiven Wohnen - mit einer STREIF Stadtvilla, die nicht nur Ihre Wünsche erfüllt, sondern neue Maßstäbe setzt.
Ausstattung
| Anzahl der Etagen im Haus | 2 |
| Bad | 2 |
| Bad | Dusche, Wanne, Fenster |
| Boden | Fliesen |
Das Streif City Haus wird im Standard KFW 40 PLUS ausgeführt. Grundstück inkl. Innenausstattung aus dem STREIF-Programm in der Ausbaustufe FF+ inklusive Fundamentplatte.
■ Rohbau (geschlossene Gebäudehülle) mit Fenstern, Haustür1 inkl. Dacheindeckung
■ Außenfassade inkl. Außenputz, vor Ort komplett fertiggestellt
■ Komplette Blechner-/Spenglerarbeiten
■ lnnen-/Außenwände wärme- und schallgedämmt und mit Gipsfaserplatten geschlossen
■ Geschosstreppe (außer Bungalow)
■ Decken wärme- und schallgedämmt und mit Gipskartonbau platten geschlossen
■ Elektroinstallation, einschließlich erforderlichem Zählerschrank und Inbetriebnahme
■ Heizungsanlage inkl. Inbetriebnahme
■ Innenfensterbänke Kunststeinbänke (Gussmarmorbänke) inkl. Einbau
■ Estrich
■ Sanitärräume mit Wand- und Bodenfliesen
■ Sanitärräume mit Sanitärobjekten
■ 6,23 kWP Photovoltaikanlage und 7,7 kWh Speicher
Die Innentüren sowie Wand-, Decken- und Bodenbeläge der übrigen Räume sind Eigenleistungen des Bauherren.
STREIF Frischluft-Wärmepumpen-Technologie - inklusive
- Heizen mit frischer Außenluft
- Kein Gasanschluss, kein Öl- oder Pelletlagerraum
- Keine Heizkörper
- Wärmetauscher mit bis zu 85% Wärmerückgewinnung
Die dargestellten Bilder können Sonderausstattungen beinhalten, die nicht im Preis enthalten sind!
zzgl. Ortüblicher Baunebenkosten
Selbstverständlich können wir Ihr Haus auch schlüsselfertig / bezugsfertig errichten.
■ Bodenbeläge, Sockel leisten verlegt
■ Maler- und Tapezierarbeiten
■ Innentüren inkl. Einbau
■ Rohbau (geschlossene Gebäudehülle) mit Fenstern, Haustür1 inkl. Dacheindeckung
■ Außenfassade inkl. Außenputz, vor Ort komplett fertiggestellt
■ Komplette Blechner-/Spenglerarbeiten
■ lnnen-/Außenwände wärme- und schallgedämmt und mit Gipsfaserplatten geschlossen
■ Geschosstreppe (außer Bungalow)
■ Decken wärme- und schallgedämmt und mit Gipskartonbau platten geschlossen
■ Elektroinstallation, einschließlich erforderlichem Zählerschrank und Inbetriebnahme
■ Heizungsanlage inkl. Inbetriebnahme
■ Innenfensterbänke Kunststeinbänke (Gussmarmorbänke) inkl. Einbau
■ Estrich
■ Sanitärräume mit Wand- und Bodenfliesen
■ Sanitärräume mit Sanitärobjekten
■ 6,23 kWP Photovoltaikanlage und 7,7 kWh Speicher
Die Innentüren sowie Wand-, Decken- und Bodenbeläge der übrigen Räume sind Eigenleistungen des Bauherren.
STREIF Frischluft-Wärmepumpen-Technologie - inklusive
- Heizen mit frischer Außenluft
- Kein Gasanschluss, kein Öl- oder Pelletlagerraum
- Keine Heizkörper
- Wärmetauscher mit bis zu 85% Wärmerückgewinnung
Die dargestellten Bilder können Sonderausstattungen beinhalten, die nicht im Preis enthalten sind!
zzgl. Ortüblicher Baunebenkosten
Selbstverständlich können wir Ihr Haus auch schlüsselfertig / bezugsfertig errichten.
■ Bodenbeläge, Sockel leisten verlegt
■ Maler- und Tapezierarbeiten
■ Innentüren inkl. Einbau
Sonstige Informationen
Der Angebotspreis kann je nach Ausstattungswünschen abweichen.
Die eingestellten Bilder sind exemplarisch.
Der realistisch ermittelte Angebotspreis beinhaltet bereits das Grundstück und die Bodenplatte! Hinzuzurechnen sind die obligatorischen Baunebenkosten, wie Grunderwerbsteuer und Notar für das Grundstück sowie Erdarbeiten, Vermessung, Hausanschlüsse, Genehmigungsgebühren. Die genauen Kosten werden nach konkretisiertem Hauswunsch ermittelt.
Die eingestellten Bilder sind exemplarisch.
Der realistisch ermittelte Angebotspreis beinhaltet bereits das Grundstück und die Bodenplatte! Hinzuzurechnen sind die obligatorischen Baunebenkosten, wie Grunderwerbsteuer und Notar für das Grundstück sowie Erdarbeiten, Vermessung, Hausanschlüsse, Genehmigungsgebühren. Die genauen Kosten werden nach konkretisiertem Hauswunsch ermittelt.
Lage des Objektes
Kamp-Bornhofen:
Ein echtes Juwel am Rhein: Dieses seltene Grundstück in Kamp-Bornhofen bietet Ihnen nicht nur eine traumhafte Lage, sondern auch einen unverbaubaren Blick auf den Rhein - eine Gelegenheit, die so nur selten zu finden ist.
Ein Haus auf dem Papier ist gut - es live zu erleben ist besser.
Auch wenn dieses Haus noch nicht real ist, können Sie schon heute erleben, wie es sich anfühlen könnte:
In unserem STREIF-Musterhaus in Mülheim-Kärlich spüren Sie Raumgefühl, Qualität und Wohnkomfort - ganz nah und in Originalgröße.
Vereinbaren Sie einfach einen persönlichen Termin und lassen Sie sich von Grundrissideen, Ausstattung und unseren Möglichkeiten begeistern.
Gemeinsam finden wir den Weg zu Ihrem ganz individuellen Zuhause.
📍 Musterhausstraße 147, 56218 Mülheim-Kärlich
🕚 Mi.-So. 11:00-17:00 Uhr oder nach Vereinbarung
📞 0171 222 52 55
Ein echtes Juwel am Rhein: Dieses seltene Grundstück in Kamp-Bornhofen bietet Ihnen nicht nur eine traumhafte Lage, sondern auch einen unverbaubaren Blick auf den Rhein - eine Gelegenheit, die so nur selten zu finden ist.
Ein Haus auf dem Papier ist gut - es live zu erleben ist besser.
Auch wenn dieses Haus noch nicht real ist, können Sie schon heute erleben, wie es sich anfühlen könnte:
In unserem STREIF-Musterhaus in Mülheim-Kärlich spüren Sie Raumgefühl, Qualität und Wohnkomfort - ganz nah und in Originalgröße.
Vereinbaren Sie einfach einen persönlichen Termin und lassen Sie sich von Grundrissideen, Ausstattung und unseren Möglichkeiten begeistern.
Gemeinsam finden wir den Weg zu Ihrem ganz individuellen Zuhause.
📍 Musterhausstraße 147, 56218 Mülheim-Kärlich
🕚 Mi.-So. 11:00-17:00 Uhr oder nach Vereinbarung
📞 0171 222 52 55
Anbieter kontaktieren
Kontakt
| Telefon | +49 (0) 65 51.12-00 |
| Mobil | +49 171 2225255 |
| Website | www.streif.de |
