Wohnen und Arbeiten unter einem Dach in Hitzacker
539.000 €
Kaufpreis
250 m²
Wohnfläche
9
Zimmer
immobilien.de Nr.: 9369571
Objektnummer: 411721
Kaufpreis
| Kaufpreis | 539.000 € |
| Maklerprovision | keine Provision, courtagefrei |
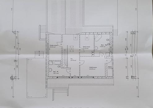
Wohnfläche, Grundstück & Bausubstanz
| Wohnfläche | 250 m² |
| Grundstücksfläche | 900 m² |
| Zimmer | 9 |
| Baujahr | 1979 |
| Verfügbar ab | nach Absprache |
| Zustand | Gepflegt |
Energie
| Energieausweistyp | Verbrauch |
| Energieeffizienzklasse | F |
| Energieverbrauchkennwert | 169 kWh/(m²*a) |
| Heizungsart | Fußbodenheizung |
| Energieträger/Befeuerung | Gas |
Beschreibung der Immobilie
Wohnen und arbeiten unter einem Dach in ruhiger Randlage des Kneippkurortes Hitzacker.
Dafür ist dieses gepflegte Massivhaus (Bj. 1978) hervorragend geeignet.
Zur Zeit befindet sich eine Massagepraxis mit großem Patientenstamm im Erdgeschoss der Immobilie.
Der Erwerb des Praxisinventars ist möglich.
Dieses Objekt ist auch geeignet für eine Physiotherapiepraxis oder andere Gewerbearten und bietet ideale Voraussetzungen für Familien und Selbstständige.
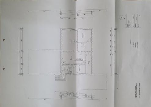
Eine aktuelle Bauzeichnung ist vorhanden.
Dafür ist dieses gepflegte Massivhaus (Bj. 1978) hervorragend geeignet.
Zur Zeit befindet sich eine Massagepraxis mit großem Patientenstamm im Erdgeschoss der Immobilie.
Der Erwerb des Praxisinventars ist möglich.
Dieses Objekt ist auch geeignet für eine Physiotherapiepraxis oder andere Gewerbearten und bietet ideale Voraussetzungen für Familien und Selbstständige.
Eine aktuelle Bauzeichnung ist vorhanden.
Ausstattungsmerkmale
| Anzahl der Etagen im Haus | 3 |
| Küche | Einbauküche |
| Bad | 2 |
| Boden | Fliesen, Teppich |
| Balkone | 1 |
| Garten | |
| Terrassen | 1 |
| Garage/Stellplätze | 1 |
| Keller |
Balkon, Terrasse, Garten, Keller, Einbauküche, Gäste-WC, Kamin, Teppichboden, Fliesen
Bemerkungen:
Die Ausstattung ist gepflegt. Es wurde regelmäßig bei Bedarf renoviert.
Bemerkungen:
Die Ausstattung ist gepflegt. Es wurde regelmäßig bei Bedarf renoviert.
Sonstige Informationen
Heizungsart: Fußbodenheizung
Energieträger: Gas
ohne-makler (OM) ist weder Anbieter noch Vermittler der Immobilie. OM betreibt eine Plattform für Immobilieneigentümer, die unter anderem die gleichzeitige Veröffentlichung einzelner Inserate auf mehreren Immobilienportalen ermöglicht. Die Inhalte dieser Inserate werden ausschließlich von Dritten verantwortet. Für die Richtigkeit, Vollständigkeit oder Rechtmäßigkeit der Angaben übernimmt OM keine Haftung. Hinweise auf mögliche Rechtsverstöße können jederzeit gemeldet werden und werden nach Prüfung umgehend bearbeitet.
Energieträger: Gas
ohne-makler (OM) ist weder Anbieter noch Vermittler der Immobilie. OM betreibt eine Plattform für Immobilieneigentümer, die unter anderem die gleichzeitige Veröffentlichung einzelner Inserate auf mehreren Immobilienportalen ermöglicht. Die Inhalte dieser Inserate werden ausschließlich von Dritten verantwortet. Für die Richtigkeit, Vollständigkeit oder Rechtmäßigkeit der Angaben übernimmt OM keine Haftung. Hinweise auf mögliche Rechtsverstöße können jederzeit gemeldet werden und werden nach Prüfung umgehend bearbeitet.
Karte wird geladen...
Objektstandort
Geesterding 7
29456 Hitzacker
- Niedersachsen
Lage & Infrastruktur
Objektstandort
Geesterding 7
29456 Hitzacker
- Niedersachsen
Ruhige Wohnlage in einer Sackgasse. Angenehme Nachbarschaft. Unverbaubare Randlage.
Infrastruktur (im Umkreis von 5 km):
Apotheke, Lebensmittel-Discount, Allgemeinmediziner, Kindergarten, Grundschule, Hauptschule, Realschule, Gesamtschule, Öffentliche Verkehrsmittel
Infrastruktur (im Umkreis von 5 km):
Apotheke, Lebensmittel-Discount, Allgemeinmediziner, Kindergarten, Grundschule, Hauptschule, Realschule, Gesamtschule, Öffentliche Verkehrsmittel