Doppelhaushälfte – Ideal für Ihre Familie!
694.500 €
Kaufpreis
190,52 m²
Wohnfläche
6,5
Zimmer
immobilien.de Nr.: 9365947
Objektnummer: 396682
Preise & Kosten
| Kaufpreis | 694.500 € |
| Nebenkosten | keine Angabe |
| Maklerprovision | keine Provision, courtagefrei |
Größe & Zustand
| Wohnfläche | 190,52 m² |
| Grundstücksfläche | 256 m² |
| Zimmer | 6,5 |
| Baujahr | 2000 |
| Verfügbar ab | nach Absprache |
| Zustand | Gepflegt |
Energie
| Energieausweistyp | Verbrauch |
| Energieeffizienzklasse | B |
| Energieverbrauchkennwert | 73 kWh/(m²*a) |
| Heizungsart | Zentralheizung |
| Energieträger/Befeuerung | Gas |
Objektbeschreibung
Ihr neues Zuhause
In einem beliebten Familien - Wohngebiet in Leingarten können wir Ihnen diese schöne Doppelhaushälfte mit überdurchschnittlich großem Platz- und Zimmerangebot anbieten.
Die Doppelhaushälfte und Einliegerwohnung wurde 2017 renoviert. Im Jahr 2022 wurde die Fassade neu gestrichen.
Der Ort zum Wohlfühlen
Das Haus wurde im Jahre 1999/2000 mit gesamt ca. 190,52 m² Wohnfläche gebaut und liegt in einer ruhigen Anliegerstraße.
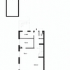
Bis unter das Dach können Sie über drei Etagen bis zu 5 Schlafzimmer und einem Bad sowie Küche, einen großzügigen Abstellraum, das Gäste-WC sowie den großen hellen Wohn-/Essbereich nutzen.
Dazu kann bei Bedarf im UG eine kleine 1,5 Zimmer Einliegerwohnung separat vermietet werden.
Ein Garten zur Südseite mit der großen Sonnenterasse wird Ihnen gefallen und lädt zum Verweilen im Grünen ein.
In einem beliebten Familien - Wohngebiet in Leingarten können wir Ihnen diese schöne Doppelhaushälfte mit überdurchschnittlich großem Platz- und Zimmerangebot anbieten.
Die Doppelhaushälfte und Einliegerwohnung wurde 2017 renoviert. Im Jahr 2022 wurde die Fassade neu gestrichen.
Der Ort zum Wohlfühlen
Das Haus wurde im Jahre 1999/2000 mit gesamt ca. 190,52 m² Wohnfläche gebaut und liegt in einer ruhigen Anliegerstraße.
Bis unter das Dach können Sie über drei Etagen bis zu 5 Schlafzimmer und einem Bad sowie Küche, einen großzügigen Abstellraum, das Gäste-WC sowie den großen hellen Wohn-/Essbereich nutzen.
Dazu kann bei Bedarf im UG eine kleine 1,5 Zimmer Einliegerwohnung separat vermietet werden.
Ein Garten zur Südseite mit der großen Sonnenterasse wird Ihnen gefallen und lädt zum Verweilen im Grünen ein.
Ausstattung
| Anzahl der Etagen im Haus | 3 |
| Küche | Einbauküche |
| Bad | 1 |
| Bad | Wanne |
| Boden | Fliesen, Kunststoff |
| Balkone | 0 |
| Garten | |
| Terrassen | 1 |
| Carport | 1 |
| Keller |
Terrasse, Garten, Keller, Vollbad, Einbauküche, Gäste-WC, Fliesen
Bemerkungen:
Ausstattung
- Einbauküche
- Entkalkungsanlage (2018)
- 1 Carport mit Anbau
- 2 Autoabstellplätze
- Solarthermie vorbereitet
Einliegerwohnung ca. 31m²
- separater Zugang
- Küchenzeile
- Abstellraum mit Platz für Regal, WM und Trockner
- Wohn-/Schlafbereich
- Bad
Bemerkungen:
Ausstattung
- Einbauküche
- Entkalkungsanlage (2018)
- 1 Carport mit Anbau
- 2 Autoabstellplätze
- Solarthermie vorbereitet
Einliegerwohnung ca. 31m²
- separater Zugang
- Küchenzeile
- Abstellraum mit Platz für Regal, WM und Trockner
- Wohn-/Schlafbereich
- Bad
Sonstige Informationen
Heizungsart: Zentralheizung
Energieträger: Gas
Die Einliegerwohnung ist derzeit vermietet.
Für eine Besichtigung wünschen wir vorab eine Finanzierungsbestätigung und bitten hier um Verständnis.
Falls es noch offene Fragen gibt, einfach melden.
Makleranfragen nicht erwünscht. Nach § 7 UWG sind unaufgeforderte Kontaktaufnahmen durch Makler ohne ausdrückliche Einwilligung des Empfängers verboten!
ohne-makler (OM) ist weder Anbieter noch Vermittler der Immobilie. OM betreibt eine Plattform für Immobilieneigentümer, die unter anderem die gleichzeitige Veröffentlichung einzelner Inserate auf mehreren Immobilienportalen ermöglicht. Die Inhalte dieser Inserate werden ausschließlich von Dritten verantwortet. Für die Richtigkeit, Vollständigkeit oder Rechtmäßigkeit der Angaben übernimmt OM keine Haftung. Hinweise auf mögliche Rechtsverstöße können jederzeit gemeldet werden und werden nach Prüfung umgehend bearbeitet.
Energieträger: Gas
Die Einliegerwohnung ist derzeit vermietet.
Für eine Besichtigung wünschen wir vorab eine Finanzierungsbestätigung und bitten hier um Verständnis.
Falls es noch offene Fragen gibt, einfach melden.
Makleranfragen nicht erwünscht. Nach § 7 UWG sind unaufgeforderte Kontaktaufnahmen durch Makler ohne ausdrückliche Einwilligung des Empfängers verboten!
ohne-makler (OM) ist weder Anbieter noch Vermittler der Immobilie. OM betreibt eine Plattform für Immobilieneigentümer, die unter anderem die gleichzeitige Veröffentlichung einzelner Inserate auf mehreren Immobilienportalen ermöglicht. Die Inhalte dieser Inserate werden ausschließlich von Dritten verantwortet. Für die Richtigkeit, Vollständigkeit oder Rechtmäßigkeit der Angaben übernimmt OM keine Haftung. Hinweise auf mögliche Rechtsverstöße können jederzeit gemeldet werden und werden nach Prüfung umgehend bearbeitet.
Lage des Objektes
Leingarten ist eine beliebte und attraktive Stadt mit derzeit rund 12.500 Einwohner. Die Nähe zu Heilbronn mit der Stadtbahnverbindung sowie die sehr gute Infrastruktur bieten eine hohe Wohnqualität.
Eingebettet in eine landschaftlich reizvolle Lage um den Heuchelberg mit Weinbau und vielen Sport- und Naherholungseinrichtungen sowie einem aktivem Vereinsleben garantiert Leingarten einen hohen Freizeitwert.
Zahlreiche Ärzte, Apotheken, Gesundheits- und Pflegeeinrichtungenhaben sind in Leingarten niedergelassen. Dazu bieten mehrere Bäckereien, Metzgereien, Supermärkte und Discounter eine sehr gute Versorgung.
Familien profitieren von 10 Kindergärten und zwei Grundschulen sowie einer Gesamtschule.
Infrastruktur (im Umkreis von 5 km):
Apotheke, Lebensmittel-Discount, Allgemeinmediziner, Kindergarten, Grundschule, Gesamtschule, Öffentliche Verkehrsmittel
Eingebettet in eine landschaftlich reizvolle Lage um den Heuchelberg mit Weinbau und vielen Sport- und Naherholungseinrichtungen sowie einem aktivem Vereinsleben garantiert Leingarten einen hohen Freizeitwert.
Zahlreiche Ärzte, Apotheken, Gesundheits- und Pflegeeinrichtungenhaben sind in Leingarten niedergelassen. Dazu bieten mehrere Bäckereien, Metzgereien, Supermärkte und Discounter eine sehr gute Versorgung.
Familien profitieren von 10 Kindergärten und zwei Grundschulen sowie einer Gesamtschule.
Infrastruktur (im Umkreis von 5 km):
Apotheke, Lebensmittel-Discount, Allgemeinmediziner, Kindergarten, Grundschule, Gesamtschule, Öffentliche Verkehrsmittel
