Traumhaftes Satteldachhaus bezahlbar in Reisbach !
274.900 €
Kaufpreis
127 m²
Wohnfläche
5
Zimmer
immobilien.de Nr.: 9364405
Objektnummer: 251090001B-251204Reisbach
Preise & Kosten
| Kaufpreis | 274.900 € |
| Nebenkosten | keine Angabe |
| Stellplatz Garage Kaufpreis | 9.000 € |
Größe & Zustand
| Wohnfläche | 127 m² |
| Grundstücksfläche | 890 m² |
| Zimmer | 5 |
| Baujahr | 2026 |
| Verfügbar ab | nach Vereinbarung |
| Zustand | Erstbezug |
Energie
| Energieausweistyp | Verbrauch |
| Baujahr (laut Energieausweis) | 2026 |
| Energieeffizienzklasse | A+ |
| Energietyp | Niedrigenergie, Neubaustandard, KfW-40 |
| Energieverbrauchkennwert | 33.00 kWh/(m²*a) |
| Heizungsart | Zentralheizung |
| Wesentlicher Energieträger | Strom |
| Energieträger/Befeuerung | Luft-Wärme-Pumpe |
Objektbeschreibung
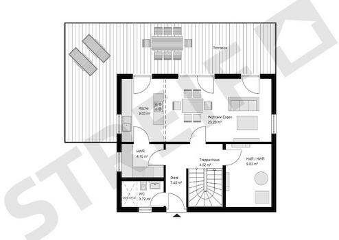
Das behagliche Haus mit Satteldach punktet mit einem gut durchdachten Grundriss. Der offen gestaltete Wohn-/Ess- und Kochbereich ist lichtdurchflutet. Ein praktischer Hauswirtschaftsraum ist direkt neben der Küche platziert. Komplettiert wird das Raumangebot im Erdgeschoss mit einem Gäste-WC, das optional auch als Duschbad ausgeführt werden kann, einer Diele und einem Haustechnikraum.
Im Dachgeschoss des Hauses sind zwei schöne Kinderzimmer, ein Elternschlafzimmer, ein Flur und ein Familienbad untergebracht. Die Lage der Treppe und des Haustechnikraumes sind fixiert.
Objektart: Einfamilienhaus, 1,5-geschossig
Dachform: Satteldach
Kniestock: 0,75m
Im Dachgeschoss des Hauses sind zwei schöne Kinderzimmer, ein Elternschlafzimmer, ein Flur und ein Familienbad untergebracht. Die Lage der Treppe und des Haustechnikraumes sind fixiert.
Objektart: Einfamilienhaus, 1,5-geschossig
Dachform: Satteldach
Kniestock: 0,75m
Ausstattung
| Anzahl der Etagen im Haus | 2 |
| Küche | Offene Küche |
| Bad | 1 |
| Bad | Dusche, Wanne, Fenster |
| Boden | Fliesen, Teppich, Parkett, Fertigparkett, Laminat, Kunststoff, Linoleum, Marmor, Granit |
| Terrassen | 1 |
| Garage/Stellplätze | 1 |
Das Ausbauhaus von STREIF !
Das Haus übernehmen Sie als Ausbauhau inklusive der Bodenplatte mit umlaufendem Fundamentstreifen ca.40 x 100 cm und den zugehörigen Kanälen unter der Bodenplatte sowie dem Einbau einer durch die jeweilige Kommune beigestellten Mehrspartenhauseinführung (MSH) für die Versorgungsleitungen. Eine Ausführung mit Keller gegen Mehrpreis ist selbstverständlich möglich. Technisch ist das Haus soweit vorbereitet, dass alle Installationskanäle für die Heizung/Sanitär- und Elektroinstallation entsprechend der technischen Bemusterung bereits eingebaut sind. Das bedeutet, dass z.B. die Geberit Untergestelle und die Leerrohre für die Verkabelung schon in den Wänden verbaut sind. Die Wände müssen nur noch verspachtelt und tapeziert oder gestrichen werden. Lieferung und Einbau der Heizung/Sanitär und Elektro-Materialien erfolgt bauseits. Eine stufenweise Beauftragung dieser Leistungen ist möglich, sprechen Sie mich einfach darauf an, damit wir gemeinsam ermitteln können, wie die für Sie optimale Lösung aussieht und welche Kosten damit verbunden sind.
Sie erreichen mich unter 0681/70947955 oder 0160/7038141 oder thomas.heitz@streif.de
Ich freue mich auf Sie !
Thomas Heitz
Das Haus übernehmen Sie als Ausbauhau inklusive der Bodenplatte mit umlaufendem Fundamentstreifen ca.40 x 100 cm und den zugehörigen Kanälen unter der Bodenplatte sowie dem Einbau einer durch die jeweilige Kommune beigestellten Mehrspartenhauseinführung (MSH) für die Versorgungsleitungen. Eine Ausführung mit Keller gegen Mehrpreis ist selbstverständlich möglich. Technisch ist das Haus soweit vorbereitet, dass alle Installationskanäle für die Heizung/Sanitär- und Elektroinstallation entsprechend der technischen Bemusterung bereits eingebaut sind. Das bedeutet, dass z.B. die Geberit Untergestelle und die Leerrohre für die Verkabelung schon in den Wänden verbaut sind. Die Wände müssen nur noch verspachtelt und tapeziert oder gestrichen werden. Lieferung und Einbau der Heizung/Sanitär und Elektro-Materialien erfolgt bauseits. Eine stufenweise Beauftragung dieser Leistungen ist möglich, sprechen Sie mich einfach darauf an, damit wir gemeinsam ermitteln können, wie die für Sie optimale Lösung aussieht und welche Kosten damit verbunden sind.
Sie erreichen mich unter 0681/70947955 oder 0160/7038141 oder thomas.heitz@streif.de
Ich freue mich auf Sie !
Thomas Heitz
Sonstige Informationen
Unser Hauskonzept im Standard KfW40+ eröffnet Ihnen die geniale Möglichkeit, einen Großteil des Geldes, das Sie normalerweise für Heizung und Hausstrom ausgeben müssen, zukünftig in ihr eigenes Haus zu investieren. Selbstverständlich können Sie das Hauskraftwerk auch für die Aufladung von E-Mobilität nutzen.
Lage des Objektes
Wir verfügen über eine große Anzahl baureifer Grundstücke in der Umgebung.
Bei dieser Planung haben wir beispielhaft ein Grundstück für 65.000 EUR eingerechnet.
Im Rahmen unseres ersten informativen Gespräches bei uns in Saarbrücken können wir gemeinsam klären, welches das richtige Grundstück für Sie ist.
Thomas Heitz 0160 7038141 oder thomas.heitz@streif.de
Bei dieser Planung haben wir beispielhaft ein Grundstück für 65.000 EUR eingerechnet.
Im Rahmen unseres ersten informativen Gespräches bei uns in Saarbrücken können wir gemeinsam klären, welches das richtige Grundstück für Sie ist.
Thomas Heitz 0160 7038141 oder thomas.heitz@streif.de
Anbieter kontaktieren
Kontakt
| Telefon | +49 681 70947955 |
| Mobil | +49 160 7038141 |
| Website | www.streif.de |
