Attraktive Kapitalanlage: Gepflegtes Mehrfamilienhaus mit 4 vermieteten Wohnungen in Lingen-Bramsche
455.000 €
Kaufpreis
280 m²
Wohnfläche
12
Zimmer
immobilien.de Nr.: 9353716
Objektnummer: 8465#ch5lV
Preise & Kosten
| Kaufpreis | 455.000 € |
| Nebenkosten | keine Angabe |
| Heizkosten | 342 € |
Größe & Zustand
| Wohnfläche | 280 m² |
| Grundstücksfläche | 740 m² |
| Zimmer | 12 |
| Baujahr | 1994 |
| Verfügbar ab | nach Vereinbarung |
| Zustand | Gepflegt |
Energie
| Baujahr (laut Energieausweis) | 1994 |
| Wesentlicher Energieträger | Gas |
| Energieträger/Befeuerung | Gas |
Objektbeschreibung
Kapitalanleger aufgepasst! Dieses solide gebaute Mehrfamilienhaus bietet Ihnen eine attraktive Gelegenheit, in eine rentable und sofort einnahmesichere Immobilie zu investieren. Das im Jahr 1994 errichtete Objekt umfasst 4 Zweizimmerwohnungen mit einer Gesamtwohnfläche von ca. 280 m² und erzielt derzeit monatliche Brutto-Mieteinnahmen von rund 2.122€.
Das Haus befindet sich in einem guten Zustand, kleinere Renovierungsarbeiten wären angebracht. Alle Wohnungen sind gut vermietet – die Mieter leben bereits seit mehreren Jahren solvent und zuverlässig in den Wohnungen.
Das Mehrfamilienhaus ist voll unterkellert und verfügt über zwei separate Kellergeschosse. Die Kellerräume der Erdgeschosswohnungen bieten zusätzlichen Stauraum und individuelle Nutzungsmöglichkeiten. Eine Garage und ein Carport ergänzen das Angebot.
Besonders hervorzuheben ist die große Balkonfläche der rechten Obergeschosswohnung, die sich über der Garage erstreckt und zusätzlichen Wohnkomfort bietet.
Die Wohnungen werden inklusive Gaskosten (monatlicher Abschlag für alle vier Wohneinheiten: 342,00€) vermietet. Strom und Wasser sind separat von den Mietern zu tragen. Das gesamte Objekt ist mit Kunststofffenstern mit ISO-Verglasung sowie Rollläden ausgestattet – eine langlebige und pflegeleichte Lösung.
Energieausweisdaten sind in Vorbereitung.
Das Haus befindet sich in einem guten Zustand, kleinere Renovierungsarbeiten wären angebracht. Alle Wohnungen sind gut vermietet – die Mieter leben bereits seit mehreren Jahren solvent und zuverlässig in den Wohnungen.
Das Mehrfamilienhaus ist voll unterkellert und verfügt über zwei separate Kellergeschosse. Die Kellerräume der Erdgeschosswohnungen bieten zusätzlichen Stauraum und individuelle Nutzungsmöglichkeiten. Eine Garage und ein Carport ergänzen das Angebot.
Besonders hervorzuheben ist die große Balkonfläche der rechten Obergeschosswohnung, die sich über der Garage erstreckt und zusätzlichen Wohnkomfort bietet.
Die Wohnungen werden inklusive Gaskosten (monatlicher Abschlag für alle vier Wohneinheiten: 342,00€) vermietet. Strom und Wasser sind separat von den Mietern zu tragen. Das gesamte Objekt ist mit Kunststofffenstern mit ISO-Verglasung sowie Rollläden ausgestattet – eine langlebige und pflegeleichte Lösung.
Energieausweisdaten sind in Vorbereitung.
Ausstattung
| Bad | 4 |
| Balkone | 1 |
| Terrassen | 1 |
| Garage/Stellplätze | 1 |
Highlights & Vorteile auf einen Blick – detailliert
Attraktive Kapitalanlage:
Vier solide vermietete Zweizimmerwohnungen mit einer Gesamtwohnfläche von ca. 280 m² bieten stabile und sofortige Mieteinnahmen. Die monatlichen Brutto-Mieteinnahmen belaufen sich aktuell auf rund 2.122 €, wodurch sich das Objekt ideal für Kapitalanleger eignet.
Heizung:
Das Objekt wird mit einer Gasheizung betrieben. Die Heizungsanlage wurde 2013 erneuert und 2024 wurde ein neuer Speicher eingebaut. Die Wartung der Heizung wird regelmäßig durchgeführt.
Langlebige Bauweise:
Das 1994 erbaute Objekt überzeugt durch hochwertige Materialien wie Kunststofffenster mit ISO-Verglasung und Rollläden, die für Energieeffizienz und geringen Wartungsaufwand sorgen.
Unterkellerung & Stauraum:
Das Haus ist komplett unterkellert. Die Kellerräume der beiden Erdgeschosswohnungen bieten zusätzliche Lager- oder Nutzungsmöglichkeiten, die flexibel für Hobby, Lager oder Technik genutzt werden können.
Garage & Carport:
Eine Garage sowie ein Carport sorgen für geschützte Stellplätze für Fahrzeuge, Fahrräder oder saisonale Gegenstände – ein praktisches Plus für Mieter und Eigentümer.
Großzügiger Balkon:
Die rechte Obergeschosswohnung verfügt über einen großen Balkon, der über der Garage liegt und zusätzlichen Wohnkomfort sowie einen gemütlichen Außenbereich bietet.
Solventes Mieterportfolio:
Alle vier Wohnungen sind seit mehreren Jahren zuverlässig vermietet. Die bestehenden Mietverhältnisse bieten Sicherheit und eine stabile Rendite für Kapitalanleger.
Vollständig vermietet inkl. Nebenkosten:
Die Wohnungen werden inklusive Gaskosten vermietet (monatlicher Abschlag: 342,00€ für alle Einheiten), was die Kalkulation für Investoren vereinfacht. Strom- und Wasserkosten werden von den Mietern direkt getragen. Die derzeitige Grundsteuer des Gebäudes beträgt 453,13 € im Jahr.
Flexible Wohnungsgrößen:
Mit Wohnflächen zwischen 60 m² und 80 m² sind die Wohnungen ideal für Singles, Paare oder kleine Familien – eine breite Zielgruppe für die Vermietung.
Attraktive Kapitalanlage:
Vier solide vermietete Zweizimmerwohnungen mit einer Gesamtwohnfläche von ca. 280 m² bieten stabile und sofortige Mieteinnahmen. Die monatlichen Brutto-Mieteinnahmen belaufen sich aktuell auf rund 2.122 €, wodurch sich das Objekt ideal für Kapitalanleger eignet.
Heizung:
Das Objekt wird mit einer Gasheizung betrieben. Die Heizungsanlage wurde 2013 erneuert und 2024 wurde ein neuer Speicher eingebaut. Die Wartung der Heizung wird regelmäßig durchgeführt.
Langlebige Bauweise:
Das 1994 erbaute Objekt überzeugt durch hochwertige Materialien wie Kunststofffenster mit ISO-Verglasung und Rollläden, die für Energieeffizienz und geringen Wartungsaufwand sorgen.
Unterkellerung & Stauraum:
Das Haus ist komplett unterkellert. Die Kellerräume der beiden Erdgeschosswohnungen bieten zusätzliche Lager- oder Nutzungsmöglichkeiten, die flexibel für Hobby, Lager oder Technik genutzt werden können.
Garage & Carport:
Eine Garage sowie ein Carport sorgen für geschützte Stellplätze für Fahrzeuge, Fahrräder oder saisonale Gegenstände – ein praktisches Plus für Mieter und Eigentümer.
Großzügiger Balkon:
Die rechte Obergeschosswohnung verfügt über einen großen Balkon, der über der Garage liegt und zusätzlichen Wohnkomfort sowie einen gemütlichen Außenbereich bietet.
Solventes Mieterportfolio:
Alle vier Wohnungen sind seit mehreren Jahren zuverlässig vermietet. Die bestehenden Mietverhältnisse bieten Sicherheit und eine stabile Rendite für Kapitalanleger.
Vollständig vermietet inkl. Nebenkosten:
Die Wohnungen werden inklusive Gaskosten vermietet (monatlicher Abschlag: 342,00€ für alle Einheiten), was die Kalkulation für Investoren vereinfacht. Strom- und Wasserkosten werden von den Mietern direkt getragen. Die derzeitige Grundsteuer des Gebäudes beträgt 453,13 € im Jahr.
Flexible Wohnungsgrößen:
Mit Wohnflächen zwischen 60 m² und 80 m² sind die Wohnungen ideal für Singles, Paare oder kleine Familien – eine breite Zielgruppe für die Vermietung.
Sonstige Informationen
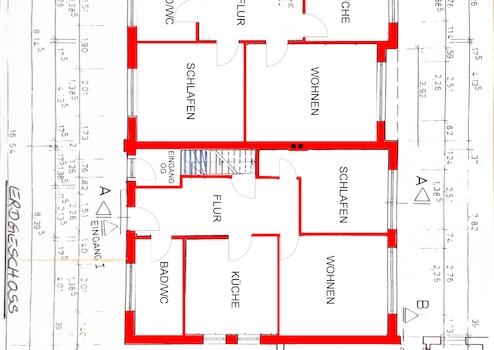
Wohnflächenaufteilung:
Wohnung 1 EG links 80 m²:
Wohnzimmer
Küche
Schlafzimmer
Flur
Bad
+ Kellergeschoss
3 Räume + Flur und Anschlussraum
Wohnung 2 EG rechts 70 m²:
Wohnzimmer
Küche
Schlafzimmer
Flur
Bad
+ Kellergeschoss
3 Räume + Flur und Anschlussraum
Wohnung 2 OG rechts 60 m²:
Wohnzimmer
Küche
Schlafzimmer
Flur
Bad
Wohnung 2 OG links 70 m²:
Wohnzimmer
Küche
Schlafzimmer
Flur
Bad
Wohnung 1 EG links 80 m²:
Wohnzimmer
Küche
Schlafzimmer
Flur
Bad
+ Kellergeschoss
3 Räume + Flur und Anschlussraum
Wohnung 2 EG rechts 70 m²:
Wohnzimmer
Küche
Schlafzimmer
Flur
Bad
+ Kellergeschoss
3 Räume + Flur und Anschlussraum
Wohnung 2 OG rechts 60 m²:
Wohnzimmer
Küche
Schlafzimmer
Flur
Bad
Wohnung 2 OG links 70 m²:
Wohnzimmer
Küche
Schlafzimmer
Flur
Bad
Lage des Objektes
Lingen-Bramsche – Leben, wo es sich lohnt
Lingen-Bramsche ist ein attraktiver Stadtteil der Universitätsstadt Lingen im Emsland und überzeugt durch seine perfekte Mischung aus ruhigem Wohnumfeld und guter Infrastruktur. Hier genießen Bewohner die Vorteile des städtischen Lebens ohne auf Ruhe und Lebensqualität verzichten zu müssen.
Die Umgebung ist geprägt von gepflegten Wohngebieten, Grünflächen und einer familienfreundlichen Atmosphäre. Schulen, Kindergärten und Einkaufsmöglichkeiten sind fußläufig oder mit dem Auto schnell erreichbar – ideal für Familien, Berufspendler und Singles. Ärzte, Apotheken und diverse Dienstleister sorgen für eine umfassende Versorgung direkt vor Ort.
Freizeitmöglichkeiten kommen in Lingen-Bramsche ebenfalls nicht zu kurz: Zahlreiche Rad- und Wanderwege, Sportvereine, Freizeitangebote und kulturelle Veranstaltungen bieten Abwechslung und sorgen für ein aktives Miteinander. Gleichzeitig ermöglicht die gute Verkehrsanbindung eine schnelle Erreichbarkeit der Lingener Innenstadt sowie der umliegenden Städte und Regionen – perfekt für Berufspendler oder alle, die gerne mobil bleiben.
Lingen-Bramsche vereint wohnen, arbeiten und Freizeit in idealer Weise und gilt als lebenswertes, sicheres und familienfreundliches Wohnumfeld. Wer hier investiert oder sein Zuhause findet, profitiert von der attraktiven Lage, der gepflegten Umgebung und einem hohen Lebenskomfort.
Lingen-Bramsche ist ein attraktiver Stadtteil der Universitätsstadt Lingen im Emsland und überzeugt durch seine perfekte Mischung aus ruhigem Wohnumfeld und guter Infrastruktur. Hier genießen Bewohner die Vorteile des städtischen Lebens ohne auf Ruhe und Lebensqualität verzichten zu müssen.
Die Umgebung ist geprägt von gepflegten Wohngebieten, Grünflächen und einer familienfreundlichen Atmosphäre. Schulen, Kindergärten und Einkaufsmöglichkeiten sind fußläufig oder mit dem Auto schnell erreichbar – ideal für Familien, Berufspendler und Singles. Ärzte, Apotheken und diverse Dienstleister sorgen für eine umfassende Versorgung direkt vor Ort.
Freizeitmöglichkeiten kommen in Lingen-Bramsche ebenfalls nicht zu kurz: Zahlreiche Rad- und Wanderwege, Sportvereine, Freizeitangebote und kulturelle Veranstaltungen bieten Abwechslung und sorgen für ein aktives Miteinander. Gleichzeitig ermöglicht die gute Verkehrsanbindung eine schnelle Erreichbarkeit der Lingener Innenstadt sowie der umliegenden Städte und Regionen – perfekt für Berufspendler oder alle, die gerne mobil bleiben.
Lingen-Bramsche vereint wohnen, arbeiten und Freizeit in idealer Weise und gilt als lebenswertes, sicheres und familienfreundliches Wohnumfeld. Wer hier investiert oder sein Zuhause findet, profitiert von der attraktiven Lage, der gepflegten Umgebung und einem hohen Lebenskomfort.
Anbieter kontaktieren
Kontakt
| Telefon | +49 4963 914923 |
| Mobil | +49 171 9912377 |
| Website | gruender-immobilien.de |
