Neubau in Top-Lage Langen - Persönliches Eckhaus mit großzügigem Garten, Dachterrasse & QNG-Förderoption
795.202 €
Kaufpreis
157 m²
Wohnfläche
7
Zimmer
immobilien.de Nr.: 9350259
Objektnummer: BVTTREHLFFpLA63225
Preise & Kosten
| Kaufpreis | 795.202 € |
| Nebenkosten | keine Angabe |
Größe & Zustand
| Wohnfläche | 157 m² |
| Grundstücksfläche | 413 m² |
| Zimmer | 7 |
| Baujahr | 2026 |
| Verfügbar ab | keine Angabe |
Energie
| Energietyp | Niedrigenergie |
| Heizungsart | Zentralheizung |
| Energieträger/Befeuerung | Luft-Wärme-Pumpe |
Objektbeschreibung
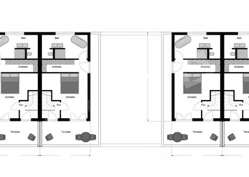
Willkommen in Ihrem neuen Traumhaus in Langen (Hessen)! Dieses moderne Doppelhaus, das nach Ihren individuellen Wünschen projektiert wurde, bietet Ihnen auf großzügigen 157 m² Wohnfläche die Möglichkeit, Ihr ideales Zuhause zu gestalten. Mit 7 Zimmern, darunter 3 Schlafzimmer und 2 Badezimmer, bietet dieses Haus ausreichend Platz für Familien und Paare. Genießen Sie den Komfort eines zusätzlichen Gäste-WCs sowie eines Badezimmers mit Dusche, Wanne und Fenster, das für eine angenehme Lichtatmosphäre sorgt. Die durchdachte Raumaufteilung sorgt dafür, dass jede Familie ihren eigenen Rückzugsort findet. Das Konzept von STREIF ermöglicht es, kleine Flächen effizient zu nutzen und gleichzeitig komfortabel zu wohnen, was besonders in Zeiten steigender Grundstückspreise von Vorteil ist. Ob als Doppelhaushälfte oder Generationenhaus - die Möglichkeiten sind vielfältig. Ihr neues Zuhause ist nicht nur ein Ort zum Wohnen, sondern auch ein Ort, an dem Sie Erinnerungen schaffen werden.
Ausstattung
| Küche | Offene Küche |
| Bad | 2 |
| Bad | Dusche, Wanne, Fenster |
| Boden | Fliesen, Parkett, Laminat |
| Balkone | 1 |
| Terrassen | 1 |
| Carport | 1 |
Die gehobene Ausstattung dieses Doppelhauses lässt keine Wünsche offen. Die Bodenbeläge sind in einem eleganten Mix aus Fliesen, Laminat und Parkett gehalten, je nach Ihren Wünschen. Diese Materialien sind nicht nur pflegeleicht, sondern auch langlebig und tragen zu einem angenehmen Wohnklima bei. Die Wärmepumpe sorgt für eine effiziente Beheizung Ihres Hauses und ist umweltfreundlich, da sie erneuerbare Energie nutzt. Das gesamte Objekt entspricht dem Niedrigenergie-Standard, was nicht nur Ihrer Umwelt zugutekommt, sondern auch Ihre Energiekosten erheblich senkt. Die hervorragende Schallisolierung der STREIF Wandkonstruktion garantiert ruhiges Wohnen in direkter Nachbarschaft.
Sonstige Informationen
Dieses projektiertes Doppelhaus umfasst die Ausbaustufe 2 - FastFertig, die Ihnen die Elektroinstallation und die Inbetriebnahme der Heizungsanlage bietet. Sie haben die Möglichkeit, Maler- und Tapezierarbeiten, die Feinspachtelung der Gipsfaserplatten, Bodenbeläge, Innentüren und den Ausbau der Sanitärräume selbst zu übernehmen, was Ihnen ermöglicht, Kosten zu sparen und Ihr Haus nach Ihren Wünschen zu gestalten.
Lage des Objektes
Langen (Hessen) bietet eine hervorragende Infrastruktur, die keine Wünsche offen lässt. In unmittelbarer Nähe finden Sie eine Apotheke, einen Bahnhof, Bushaltestellen, ein Einkaufscenter, Fitnessstudios, Grundschulen und Kindergärten sowie ein Krankenhaus. Zudem laden Parks in der Umgebung zum Entspannen und Verweilen ein. Die gute Anbindung an öffentliche Verkehrsmittel ermöglicht Ihnen eine bequeme Erreichbarkeit der umliegenden Städte und Gemeinden, was dieses Haus zu einem idealen Standort für Familien und Pendler macht.
Anbieter kontaktieren
Kontakt
| Telefon | +49 69 90754860 |
| Mobil | +49 152 05268608 |
| Website | www.streif.de |
