Neubau in Top-Lage Langen - Persönliches Mittelhaus inkl. Grundstück, Dachterrasse & QNG-Förderoption
697.306 €
Kaufpreis
157 m²
Wohnfläche
7
Zimmer
immobilien.de Nr.: 9350258
Objektnummer: BVTTREH2FFLA63225
Preise & Kosten
| Kaufpreis | 697.306 € |
| Nebenkosten | keine Angabe |
Größe & Zustand
| Wohnfläche | 157 m² |
| Grundstücksfläche | 275 m² |
| Zimmer | 7 |
| Baujahr | 2026 |
| Verfügbar ab | keine Angabe |
Energie
| Energietyp | Niedrigenergie |
| Heizungsart | Zentralheizung |
| Energieträger/Befeuerung | Luft-Wärme-Pumpe |
Objektbeschreibung
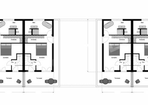
Willkommen in Ihrem neuen Zuhause - einem modernen Doppelhaus in Langen (Hessen), das nach Ihren individuellen Wünschen projektiert wurde. Dieses großzügige Doppelhaus mit 7 Zimmern und einer Wohnfläche von 157 m² bietet Ihnen und Ihrer Familie ein komfortables und stilvolles Wohnen. Auf einem 275 m² großen Grundstück erstreckt sich Ihr Traumhaus über zwei Etagen und bietet ausreichend Platz für gemeinsame Aktivitäten sowie Rückzugsmöglichkeiten. Die clevere Raumaufteilung sorgt dafür, dass jeder Bewohner seinen eigenen Raum findet, während die offenen Wohnkonzepte den Familienalltag harmonisch verbinden. Ihre Mittelhaus in in FastFertig realisiert, sodass die Elektroinstallation und die Inbetriebnahme der Heizungsanlage inklusive sind. Sie haben die Möglichkeit, die Maler- und Tapezierarbeiten, die Bodenbeläge sowie die Innentüren selbst zu gestalten - ideal für kreative Köpfe, die gerne Eigenleistungen einbringen möchten!
Ausstattung
| Küche | Offene Küche |
| Bad | 2 |
| Bad | Dusche, Wanne, Fenster |
| Boden | Fliesen, Parkett, Laminat |
| Balkone | 1 |
| Terrassen | 1 |
| Carport | 1 |
Das Doppelhaus überzeugt durch eine gehobene Ausstattung, die alle Ansprüche an modernes Wohnen erfüllt. Die Bodenbeläge sind individuell wählbar und umfassen hochwertiges Laminat, edles Parkett und pflegeleichte Fliesen. Diese Materialien bieten nicht nur eine ansprechende Optik, sondern auch Langlebigkeit und Komfort für Ihr Zuhause. Die Befeuerungsart mit einer modernen Wärmepumpe sorgt für eine effiziente und umweltfreundliche Beheizung Ihres Hauses und trägt zur Reduzierung Ihrer Energiekosten bei. Das Haus erfüllt den Niedrigenergie Standard, was Ihnen langfristig erhebliche Einsparungen bei den Betriebskosten ermöglicht. Ein besonderes Highlight ist das Badezimmer, das mit einer Dusche, einer Wanne und einem Fenster ausgestattet ist, sowie ein zusätzliches Gäste-WC für Ihre Besucher. Genießen Sie die hohen Standards der STREIF-Wandkonstruktion, die zudem hervorragende Schallisolierung bietet.
Sonstige Informationen
Mit STREIF können Sie aus vier unterschiedlichen Ausbaustufen wählen. Die Ausbaustufe FastFertig ermöglicht es Ihnen, die Malerarbeiten, die Böden, Innentüren und die Sanitärräume selbst zu gestalten, was eine attraktive Option für handwerklich Begabte ist, die bares Geld sparen möchten.
Lage des Objektes
Das Doppelhaus befindet sich in der attraktiven Lage von Langen (Hessen), die Ihnen eine hervorragende Infrastruktur bietet. In unmittelbarer Nähe finden Sie eine Apotheke, ein Einkaufscenter, einen Bahnhof sowie eine Bushaltestelle, die Ihnen eine bequeme Anbindung an die umliegenden Städte ermöglicht. Für Ihre Freizeitgestaltung stehen Ihnen ein Fitnessstudio, ein Park sowie Bildungseinrichtungen wie eine Grundschule und ein Kindergarten zur Verfügung. Diese zentrale Lage verbindet urbanes Leben mit der Ruhe und dem Komfort eines Wohngebiets und macht es ideal für Familien und Paare.
Anbieter kontaktieren
Kontakt
| Telefon | +49 69 90754860 |
| Mobil | +49 152 05268608 |
| Website | www.streif.de |
