Helle 2-Zimmer-Wohnung mit Süd-West-Balkon zum Innenhof – Erstbezug nach umfangreicher Sanierung
350.000 €
Kaufpreis
58,54 m²
Wohnfläche
2
Zimmer
immobilien.de Nr.: 9340772
Objektnummer: 6206
Preise & Kosten
| Kaufpreis | 350.000 € |
| Nebenkosten | keine Angabe |
| Kaufpreis pro m² | 5979 € |
| Hausgeld | 216 € |
| Maklerprovision | 3,57% inkl. gesetzl. MwSt. |
Größe & Zustand
| Wohnfläche | 58,54 m² |
| Zimmer | 2 |
| Baujahr | 1959 |
| Verfügbar ab | sofort |
| Zustand | Gepflegt |
Energie
| Energieausweistyp | Verbrauch |
| Ausstellungsdatum | 25. 11. 2020 |
| Gültig bis | 25.11.2030 |
| Energieeffizienzklasse | C |
| Energieverbrauchkennwert | 96.5 kWh/(m²*a) |
| Heizungsart | Etagenheizung |
| Wesentlicher Energieträger | Gas |
| Energieträger/Befeuerung | Gas |
Objektbeschreibung
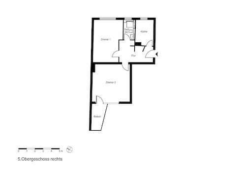
Im fünften Obergeschoss eines gepflegten Mehrfamilienhauses in der Lewetzostraße präsentiert sich diese umfangreich sanierte 2-Zimmer-Wohnung mit Balkon zum Innenhof. Auf rund 55 m² bietet die Einheit einen modernen Grundriss, der sich ideal für Singles oder Paare eignet.
Der Erstbezug nach Sanierung umfasst ein modern gestaltetes Badezimmer mit neuen Armaturen, eine vollständig erneuerte Elektrik sowie gespachtelte Wände. Der großzügige Wohn- und Essbereich überzeugt mit schönem Lichteinfall und neuem Parkettboden. Die Küche bietet direkten Zugang zum ruhigen Balkon, der zum Entspannen im Freien einlädt. Die Wohnung wird über eine Gasetagenheizung beheizt und befindet sich in einem gepflegten Altbau mit angenehmer Nachbarschaft. Die ruhige, dennoch zentrale Lage in Moabit zeichnet sich durch gute Anbindung, vielfältige Einkaufsmöglichkeiten und nahegelegene Grünflächen aus.
Der Erstbezug nach Sanierung umfasst ein modern gestaltetes Badezimmer mit neuen Armaturen, eine vollständig erneuerte Elektrik sowie gespachtelte Wände. Der großzügige Wohn- und Essbereich überzeugt mit schönem Lichteinfall und neuem Parkettboden. Die Küche bietet direkten Zugang zum ruhigen Balkon, der zum Entspannen im Freien einlädt. Die Wohnung wird über eine Gasetagenheizung beheizt und befindet sich in einem gepflegten Altbau mit angenehmer Nachbarschaft. Die ruhige, dennoch zentrale Lage in Moabit zeichnet sich durch gute Anbindung, vielfältige Einkaufsmöglichkeiten und nahegelegene Grünflächen aus.
Ausstattung
| Inserat befindet sich im Stockwerk | 5 |
| Bad | 1 |
| Balkone | 1 |
| Fahrstuhl |
Lage des Objektes
Zwischen Spree, Tiergarten und Regierungsviertel gelegen, bietet das Westfälische Viertel eine der attraktivsten Wohnlagen Moabits. Die Umgebung überzeugt durch ihre gelassene Atmosphäre, gepflegte Altbauten und eine gewachsene Nachbarschaft. Wer hier lebt, profitiert von einer gelungenen Balance aus zentraler Stadtlage und erholsamer Ruhe. Nur wenige Schritte führen ans Wasser, in die grünen Weiten des Tiergartens oder zu kulturellen Sehenswürdigkeiten wie dem Schloss Bellevue. Rund um die Levetzowstraße prägen kleine Cafés, Restaurants und Geschäfte das lebendige Umfeld. Besonders beliebt sind die traditionsreiche Arminiusmarkthalle mit ihrem vielfältigen kulinarischen Angebot sowie die nahe Turmstraße mit zahlreichen Einkaufsmöglichkeiten und guter Nahversorgung. Die Anbindung ist hervorragend: Mit der U-Bahn-Station „Turmstraße“, der S-Bahn-Station „Bellevue“ und mehreren Buslinien sind City-West, Hauptbahnhof und Regierungsviertel schnell erreicht.
Anbieter kontaktieren
Anbieter
David Borck Immobiliengesellschaft mbH
Schlüterstr. 45
10707 Berlin
Kontakt
| Telefon | +49 30 887 742 50 |
| Website | www.david-borck.de |
