Unikat in den obersten zwei Etagen - hell, großzügig geschnitten und mit hochwertigen Einbaumöbeln !
435.000 €
Kaufpreis
99 m²
Wohnfläche
3
Zimmer
immobilien.de Nr.: 9314895
Objektnummer: 279208
Preise & Kosten
| Kaufpreis | 435.000 € |
| Nebenkosten | keine Angabe |
| Maklerprovision | 3,57 % (inkl. MwSt.) |
Größe & Zustand
| Wohnfläche | 99 m² |
| Zimmer | 3 |
| Baujahr | 1993 |
| Verfügbar ab | nach Vereinbarung |
| Zustand | Gepflegt |
Energie
| Energieausweistyp | Verbrauch |
| Ausstellungsdatum | 01. 08. 2018 |
| Baujahr (laut Energieausweis) | 1991 |
| Energieeffizienzklasse | D |
| Energieverbrauchkennwert | 126 kWh/(m²*a) |
| Heizungsart | Zentralheizung |
| Wesentlicher Energieträger | Gas |
| Energieträger/Befeuerung | Gas |
Objektbeschreibung
Sie wollen exklusiv, großzügig, hell und zentral wohnen? Dann sind Sie hier genau richtig!
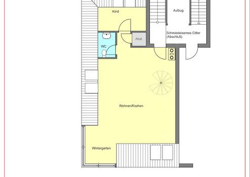
Diese wunderschöne Maisonette mit ca. 136 qm Wohn-/Nutzfläche erreichen Sie mit dem Aufzug in den 6. Stock.
Nach Betreten der Wohnung befinden Sie sich direkt in einem großen, offenen Wohn-/Ess-/Kochbereich, der auffällig hell und gemütlich ist. Viele Fenster, eine verglaste Raumecke und eine hochwertige und praktische Küche laden zum Verweilen ein. Im Anschluss finden Sie ein Gäste-WC, ein Büro und einen kleinen Abstellraum. Direkt vom Wohnraum aus, gelangen Sie über eine massive Marmortreppe in das obere Stockwerk.
Alternativ kann auch die Außentreppe zum Eingang im 7. Stock genutzt werden.
Hier finden Sie neben einem Bad mit ebenerdiger Dusche und WC eine geräumige Diele mit "Chillcharakter" und den sehr großzügigen Schlafraum. In diesem befinden sich hochwertige von Schreinerhand hergestellte und exakt eingepasste Einbaumöbel sowie das zum Innenhof gelegene Bett.
Neben dem Bett befinden sich zwei Balkonfenster die ruck zuck die dortige Dachschräge zu einem Ausstell-Balkon mit herrlichem Weitblick werden lassen kann.
Genießen Sie dort den nächtlichen Ausblick sowie romantische Sonnenauf- und untergänge bei einem Glas Wein.
Zur Wohnung gehören auch noch ein geräumiges Kellerabteil und optional zwei große Tiefgaragenstellplätze die aufgrund der Lage eine Beschädigung durch das Nachbarfahrzeug nahezu ausschließen.
Die Stellplätze sollten im Normalfall mit erworben werden.
Sollten Sie nun Interesse an der Wohnung haben, senden Sie uns gerne Ihre Anfrage mit kompletten Kontaktdaten.
Unvollständige Anfragen ohne Anschrift und Telefonnummer werden nicht beantwortet.
Im Anschluss auf Ihre Anfrage erhalten Sie ein Exposé bei dem Sie sich bis zur Objektanschrift durchklicken können um dann eine erste Lageprüfung vornehmen zu können.
Nach erfolgter Lageprüfung bitte kurz melden ob die Immobilie in Frage kommt.
Finanzierung sollte geprüft sein und auch nachgewiesen werden können.
Weitere Angebote unter www.GARANT-IMMO.de
Diese wunderschöne Maisonette mit ca. 136 qm Wohn-/Nutzfläche erreichen Sie mit dem Aufzug in den 6. Stock.
Nach Betreten der Wohnung befinden Sie sich direkt in einem großen, offenen Wohn-/Ess-/Kochbereich, der auffällig hell und gemütlich ist. Viele Fenster, eine verglaste Raumecke und eine hochwertige und praktische Küche laden zum Verweilen ein. Im Anschluss finden Sie ein Gäste-WC, ein Büro und einen kleinen Abstellraum. Direkt vom Wohnraum aus, gelangen Sie über eine massive Marmortreppe in das obere Stockwerk.
Alternativ kann auch die Außentreppe zum Eingang im 7. Stock genutzt werden.
Hier finden Sie neben einem Bad mit ebenerdiger Dusche und WC eine geräumige Diele mit "Chillcharakter" und den sehr großzügigen Schlafraum. In diesem befinden sich hochwertige von Schreinerhand hergestellte und exakt eingepasste Einbaumöbel sowie das zum Innenhof gelegene Bett.
Neben dem Bett befinden sich zwei Balkonfenster die ruck zuck die dortige Dachschräge zu einem Ausstell-Balkon mit herrlichem Weitblick werden lassen kann.
Genießen Sie dort den nächtlichen Ausblick sowie romantische Sonnenauf- und untergänge bei einem Glas Wein.
Zur Wohnung gehören auch noch ein geräumiges Kellerabteil und optional zwei große Tiefgaragenstellplätze die aufgrund der Lage eine Beschädigung durch das Nachbarfahrzeug nahezu ausschließen.
Die Stellplätze sollten im Normalfall mit erworben werden.
Sollten Sie nun Interesse an der Wohnung haben, senden Sie uns gerne Ihre Anfrage mit kompletten Kontaktdaten.
Unvollständige Anfragen ohne Anschrift und Telefonnummer werden nicht beantwortet.
Im Anschluss auf Ihre Anfrage erhalten Sie ein Exposé bei dem Sie sich bis zur Objektanschrift durchklicken können um dann eine erste Lageprüfung vornehmen zu können.
Nach erfolgter Lageprüfung bitte kurz melden ob die Immobilie in Frage kommt.
Finanzierung sollte geprüft sein und auch nachgewiesen werden können.
Weitere Angebote unter www.GARANT-IMMO.de
Ausstattung
| Anzahl der Etagen im Haus | 7 |
| Inserat befindet sich im Stockwerk | 6 |
| Küche | Einbauküche |
| Bad | 2 |
| Boden | Fliesen, Teppich, Marmor |
| Fahrstuhl |
* luxuriöse Ausstattung
* Vielzahl an hochwertigen vom Schreiner
angefertigten Einbaumöbeln
* ebenerdige Dusche
* separates Gäste-WC
* zweiter Eingang im obersten Geschoss
* elektrische Jalousien im Obergeschoss
* Rollos für alle Fenster
* Klimaanlage (ca. 5 Jahre alt)
* massive Marmortreppe
* schmiedeeisernes Gitter vor der Wohnung
* einbruchsichere Türe
* Marmorböden
* elektrische Markise und Sonnenschutz
im Wintergarten
* Aufzug
* Kellerabteil
* sämtliche hochwertigen Einbaumöbel in Bad, WC
und Schlafzimmer sowie die Einbauküche mit Granitarbeitsplatte
verbleiben im Objekt und sind im Kaufpreis bereits enthalten
* Vielzahl an hochwertigen vom Schreiner
angefertigten Einbaumöbeln
* ebenerdige Dusche
* separates Gäste-WC
* zweiter Eingang im obersten Geschoss
* elektrische Jalousien im Obergeschoss
* Rollos für alle Fenster
* Klimaanlage (ca. 5 Jahre alt)
* massive Marmortreppe
* schmiedeeisernes Gitter vor der Wohnung
* einbruchsichere Türe
* Marmorböden
* elektrische Markise und Sonnenschutz
im Wintergarten
* Aufzug
* Kellerabteil
* sämtliche hochwertigen Einbaumöbel in Bad, WC
und Schlafzimmer sowie die Einbauküche mit Granitarbeitsplatte
verbleiben im Objekt und sind im Kaufpreis bereits enthalten
Sonstige Informationen
Das Hausgeld in Höhe von 589,-- Euro beinhaltet die Wohnung plus zwei Stellplätze (Aufteilung 424,25 Euro Kosten/Lasten und 164,75 Euro Rücklage).
Die zwei großen Tiefgaragen-Stellplätze zu je 19.500,-- Euro sollten mit gekauft werden.
Es gibt einen Hausmeisterservice.
Drei Balkonfenster (großformatige Dachflächenfenster, bei denen die beiden geöffneten Flügel einen Dachbalkon bilden).
Die zwei großen Tiefgaragen-Stellplätze zu je 19.500,-- Euro sollten mit gekauft werden.
Es gibt einen Hausmeisterservice.
Drei Balkonfenster (großformatige Dachflächenfenster, bei denen die beiden geöffneten Flügel einen Dachbalkon bilden).
Lage des Objektes
Diese außergewöhnliche Maisonette liegt in unmittelbarer Nähe zum Landschaftsschutzgebiet Wöhrder See mit seinem hohen Freizeitwert (Joggen, Fahrradfahren, Freibad, ...) und der Georg-Simon-Ohm Hochschule, die nur ca. 5 Minuten Fußweg entfernt liegt. Die Anbindung an den öffentlichen Nahverkehr mit der direkten Busverbindung zum Hauptbahnhof und der S-Bahnhaltestelle Dürrenhofstraße (Verbindung nach Fürth und Erlangen) ist hervorragend. Die Autobahnen sowie das nahegelegene Messegelände liegen sehr verkehrsgünstig. Alle Einkaufsmöglichkeiten des täglichen Bedarfs und ein vielfältiges Angebot an Dienstleistungsunternehmen sind in der unmittelbaren Nachbarschaft.
