Ein Ort zum Ankommen, Wohlfühlen und Bleiben
699.000 €
Kaufpreis
238 m²
Wohnfläche
7
Zimmer
immobilien.de Nr.: 9313510
Objektnummer: FALC-KeAl-75458
Dateien
Preise & Kosten
| Kaufpreis | 699.000 € |
| Nebenkosten | keine Angabe |
| Kaufpreis pro m² | 1420 € |
| Maklerprovision | 3,57% inkl. 19 % MwSt. vom notariellen Kaufpreis |
Größe & Zustand
| Wohnfläche | 238 m² |
| Grundstücksfläche | 492 m² |
| Zimmer | 7 |
| Baujahr | 1982 |
| Verfügbar ab | keine Angabe |
Energie
| Energieausweistyp | Bedarfsausweis |
| Ausstellungsdatum | 27. 10. 2025 |
| Gültig bis | 26.10.2035 |
| Energieeffizienzklasse | D |
| Endenergiebedarf | 112.27 |
| Wesentlicher Energieträger | Öl |
| Energieträger/Befeuerung | Öl |
Objektbeschreibung
Bereits beim Betreten der Immobilie wird deutlich, dass es sich hier um ein außergewöhnliches Wohnensemble handelt, das ein liebevoll restauriertes Fachwerkhaus aus dem 18. Jahrhundert mit einem stilvollen, modernen Anbau harmonisch vereint. Der zentrale Eingangsbereich fungiert als verbindendes Element beider Gebäudeteile und heißt Bewohner und Gäste in einem einladenden Ambiente willkommen. Hier befindet sich auch ein modernisiertes Gäste-WC.
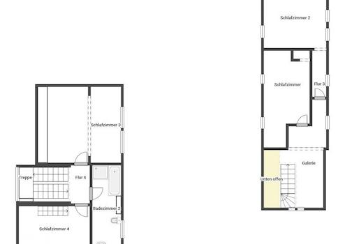
Von diesem Zwischenbereich aus führt der Weg nach rechts in das historische Fachwerkhaus, das im Jahr 2010 umfassend entkernt, gedämmt und technisch modernisiert wurde. Im Erdgeschoss erwarten den Besucher zwei charmante Räume, die sich ideal als Büros, Arbeitszimmer oder kreative Rückzugsorte eignen. Edle Holzböden und atmungsaktive Kalkfarbe schaffen ein gesundes Raumklima und unterstreichen den authentischen Charakter des Gebäudes. Ein offener Kamin sorgt für eine warme, inspirierende Atmosphäre. Ergänzt wird das Erdgeschoss durch ein eigenes Badezimmer sowie einen kleinen Keller, der zusätzlichen Stauraum bietet. Über eine Treppe gelangt man in das Obergeschoss des Fachwerkteils, wo zwei weitere gemütliche Zimmer zur Verfügung stehen und als Schlaf-, Gäste- oder Hobbyräume genutzt werden können.
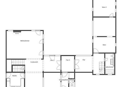
Wendet man sich im Eingangsbereich nach links, öffnet sich der Zugang zum modernen Neubau, der durch ein großzügiges und lichtdurchflutetes Wohnkonzept beeindruckt. Der weitläufige Wohn- und Essbereich bildet das Herzstück dieses Gebäudeabschnitts. Bodentiefe Fenster bieten einen herrlichen Blick in den liebevoll neu angelegten Garten und schaffen eine angenehme Verbindung zwischen Innen- und Außenbereich. Hochwertige Holzböden und Cotton-Fliesen verleihen dem Raum eine stilvolle und warme Atmosphäre, während ein weiterer offener Kamin für gemütliche Stunden sorgt. Die angrenzende Küche fügt sich harmonisch ein und bietet direkten Zugang zur Doppelgarage – besonders praktisch für den Alltag. Vom Wohnbereich führt eine Treppe sowohl in das Obergeschoss des Neubaus als auch in den voll unterkellerten Bereich, der zusätzliche Nutz- und Lagerflächen sowie flexible Gestaltungsmöglichkeiten bereithält. Im Obergeschoss des Anbaus entsteht ein privater Rückzugsbereich mit weiteren Wohn- oder Schlafräumen, die sich individuell an die Bedürfnisse ihrer Bewohner anpassen lassen.
Der Garten, der im Jahr 2012 komplett neu gestaltet wurde, bildet den ruhigen Mittelpunkt der Immobilie und verbindet die beiden Gebäudeteile auf harmonische Weise miteinander. Ein eigener Brunnen verleiht dem Außenbereich nicht nur einen besonderen Charme, sondern unterstützt auch die Gartenbewässerung. Hier entsteht ein Ort zum Entspannen, Genießen und Wohlfühlen – perfekt als erweiterter Wohnbereich in den warmen Monaten.
Dieses besondere Anwesen vereint historisches Flair, modernste Technik und ein flexibles Raumkonzept, das individuellen Lebensstilen Raum gibt – sei es zum Wohnen und Arbeiten unter einem Dach, als Mehrgenerationenlösung oder als stilvoller Rückzugsort für Menschen, die Charakter, Atmosphäre und Qualität zu schätzen wissen.
Von diesem Zwischenbereich aus führt der Weg nach rechts in das historische Fachwerkhaus, das im Jahr 2010 umfassend entkernt, gedämmt und technisch modernisiert wurde. Im Erdgeschoss erwarten den Besucher zwei charmante Räume, die sich ideal als Büros, Arbeitszimmer oder kreative Rückzugsorte eignen. Edle Holzböden und atmungsaktive Kalkfarbe schaffen ein gesundes Raumklima und unterstreichen den authentischen Charakter des Gebäudes. Ein offener Kamin sorgt für eine warme, inspirierende Atmosphäre. Ergänzt wird das Erdgeschoss durch ein eigenes Badezimmer sowie einen kleinen Keller, der zusätzlichen Stauraum bietet. Über eine Treppe gelangt man in das Obergeschoss des Fachwerkteils, wo zwei weitere gemütliche Zimmer zur Verfügung stehen und als Schlaf-, Gäste- oder Hobbyräume genutzt werden können.
Wendet man sich im Eingangsbereich nach links, öffnet sich der Zugang zum modernen Neubau, der durch ein großzügiges und lichtdurchflutetes Wohnkonzept beeindruckt. Der weitläufige Wohn- und Essbereich bildet das Herzstück dieses Gebäudeabschnitts. Bodentiefe Fenster bieten einen herrlichen Blick in den liebevoll neu angelegten Garten und schaffen eine angenehme Verbindung zwischen Innen- und Außenbereich. Hochwertige Holzböden und Cotton-Fliesen verleihen dem Raum eine stilvolle und warme Atmosphäre, während ein weiterer offener Kamin für gemütliche Stunden sorgt. Die angrenzende Küche fügt sich harmonisch ein und bietet direkten Zugang zur Doppelgarage – besonders praktisch für den Alltag. Vom Wohnbereich führt eine Treppe sowohl in das Obergeschoss des Neubaus als auch in den voll unterkellerten Bereich, der zusätzliche Nutz- und Lagerflächen sowie flexible Gestaltungsmöglichkeiten bereithält. Im Obergeschoss des Anbaus entsteht ein privater Rückzugsbereich mit weiteren Wohn- oder Schlafräumen, die sich individuell an die Bedürfnisse ihrer Bewohner anpassen lassen.
Der Garten, der im Jahr 2012 komplett neu gestaltet wurde, bildet den ruhigen Mittelpunkt der Immobilie und verbindet die beiden Gebäudeteile auf harmonische Weise miteinander. Ein eigener Brunnen verleiht dem Außenbereich nicht nur einen besonderen Charme, sondern unterstützt auch die Gartenbewässerung. Hier entsteht ein Ort zum Entspannen, Genießen und Wohlfühlen – perfekt als erweiterter Wohnbereich in den warmen Monaten.
Dieses besondere Anwesen vereint historisches Flair, modernste Technik und ein flexibles Raumkonzept, das individuellen Lebensstilen Raum gibt – sei es zum Wohnen und Arbeiten unter einem Dach, als Mehrgenerationenlösung oder als stilvoller Rückzugsort für Menschen, die Charakter, Atmosphäre und Qualität zu schätzen wissen.
Ausstattung
| Küche | Einbauküche |
| Bad | 2 |
| Bad | Dusche, Wanne, Fenster |
| Boden | Fliesen |
| Balkone | 1 |
| Garten | |
| Terrassen | 1 |
| Keller |
Die Ausstattung dieser besonderen Immobilie lässt keine Wünsche offen und vereint historischen Charme mit moderner Wohnqualität auf höchstem Niveau. Bereits beim Betreten spürt man, dass hier mit viel Liebe zum Detail und einem klaren Bewusstsein für Qualität saniert und gestaltet wurde.
Im Jahr 2010 wurde das gesamte Gebäudeensemble umfassend entkernt, gedämmt und technisch modernisiert. Dabei wurden alle elektrischen Leitungen erneuert und LAN-Kabel in sämtlichen Räumen verlegt, sodass die Immobilie heute perfekt auf die Anforderungen des digitalen Alltags vorbereitet ist – ideal für Homeoffice oder smarte Wohnlösungen. Fenster und Türen aus hochwertigem Kunststoff bieten nicht nur optimale Wärmedämmung und Energieeffizienz, sondern fügen sich zugleich dezent und stilvoll in das historische Gesamtbild des Hauses ein. Die Wetterseite ist mit robustem Schiefer verkleidet, was nicht nur optisch überzeugt, sondern auch einen zuverlässigen Schutz vor Witterungseinflüssen gewährleistet.
Besonders durchdacht ist auch das Raumklimakonzept: Die Wände sind mit atmungsaktiver Kalkfarbe gestrichen, die Feuchtigkeit auf natürliche Weise reguliert, das Raumklima verbessert und Schimmelbildung effektiv vorbeugt. Diese Kombination aus natürlichen Materialien und moderner Technik sorgt für ein gesundes und angenehmes Wohngefühl das ganze Jahr über.
Ein Teil der Immobilie steht unter Denkmalschutz, wodurch ihr einzigartiger Charakter und ihre geschichtliche Bedeutung erhalten bleiben. Zugleich wurde sie mit modernstem Komfort ausgestattet. Eine zentrale Ölheizung sorgt zuverlässig für Wärme, während eine Fußbodenheizung in den Hauptwohnbereichen für ein besonders angenehmes Wohngefühl sorgt. In den Wohnräumen schaffen offene Kamine eine behagliche Atmosphäre und laden zu gemütlichen Abenden ein. An heißen Tagen bietet die Klimaanlage in mehreren Räumen angenehme Kühlung – ein Komfort, der in einem historischen Gebäude dieser Art besonders hervorzuheben ist.
Auch in den privaten Rückzugsbereichen wurde großer Wert auf Qualität gelegt: Das Badezimmer und das Gäste-WC im Erdgeschoss wurden vor rund fünf Jahren hochwertig renoviert und präsentieren sich in modernem Design mit zeitlosen Materialien. Das Schlafzimmer begeistert mit einem begehbaren Kleiderschrank, der großzügigen Stauraum und Ordnung auf elegante Weise verbindet.
Praktische Details runden das Gesamtbild ab. Eine große Doppelgarage bietet Platz für Fahrzeuge und zusätzlichen Stauraum, während der vollständig neu angelegte Garten aus dem Jahr 2012 zum echten Blickfang geworden ist. Hier können Sie entspannte Stunden im Grünen genießen – ob auf der Terrasse, im Schatten alter Bäume oder am hauseigenen Brunnen, der dem Garten eine besondere Atmosphäre verleiht und zugleich für die Bewässerung genutzt werden kann.
Insgesamt präsentiert sich diese Immobilie als gelungene Verbindung von geschichtsträchtiger Bausubstanz, moderner Ausstattung und wohnlicher Eleganz. Wer ein Zuhause mit Charakter, Stil und Komfort sucht, wird hier fündig – ein Ort, der Geschichte atmet und zugleich alle Annehmlichkeiten modernen Wohnens bietet.
Im Jahr 2010 wurde das gesamte Gebäudeensemble umfassend entkernt, gedämmt und technisch modernisiert. Dabei wurden alle elektrischen Leitungen erneuert und LAN-Kabel in sämtlichen Räumen verlegt, sodass die Immobilie heute perfekt auf die Anforderungen des digitalen Alltags vorbereitet ist – ideal für Homeoffice oder smarte Wohnlösungen. Fenster und Türen aus hochwertigem Kunststoff bieten nicht nur optimale Wärmedämmung und Energieeffizienz, sondern fügen sich zugleich dezent und stilvoll in das historische Gesamtbild des Hauses ein. Die Wetterseite ist mit robustem Schiefer verkleidet, was nicht nur optisch überzeugt, sondern auch einen zuverlässigen Schutz vor Witterungseinflüssen gewährleistet.
Besonders durchdacht ist auch das Raumklimakonzept: Die Wände sind mit atmungsaktiver Kalkfarbe gestrichen, die Feuchtigkeit auf natürliche Weise reguliert, das Raumklima verbessert und Schimmelbildung effektiv vorbeugt. Diese Kombination aus natürlichen Materialien und moderner Technik sorgt für ein gesundes und angenehmes Wohngefühl das ganze Jahr über.
Ein Teil der Immobilie steht unter Denkmalschutz, wodurch ihr einzigartiger Charakter und ihre geschichtliche Bedeutung erhalten bleiben. Zugleich wurde sie mit modernstem Komfort ausgestattet. Eine zentrale Ölheizung sorgt zuverlässig für Wärme, während eine Fußbodenheizung in den Hauptwohnbereichen für ein besonders angenehmes Wohngefühl sorgt. In den Wohnräumen schaffen offene Kamine eine behagliche Atmosphäre und laden zu gemütlichen Abenden ein. An heißen Tagen bietet die Klimaanlage in mehreren Räumen angenehme Kühlung – ein Komfort, der in einem historischen Gebäude dieser Art besonders hervorzuheben ist.
Auch in den privaten Rückzugsbereichen wurde großer Wert auf Qualität gelegt: Das Badezimmer und das Gäste-WC im Erdgeschoss wurden vor rund fünf Jahren hochwertig renoviert und präsentieren sich in modernem Design mit zeitlosen Materialien. Das Schlafzimmer begeistert mit einem begehbaren Kleiderschrank, der großzügigen Stauraum und Ordnung auf elegante Weise verbindet.
Praktische Details runden das Gesamtbild ab. Eine große Doppelgarage bietet Platz für Fahrzeuge und zusätzlichen Stauraum, während der vollständig neu angelegte Garten aus dem Jahr 2012 zum echten Blickfang geworden ist. Hier können Sie entspannte Stunden im Grünen genießen – ob auf der Terrasse, im Schatten alter Bäume oder am hauseigenen Brunnen, der dem Garten eine besondere Atmosphäre verleiht und zugleich für die Bewässerung genutzt werden kann.
Insgesamt präsentiert sich diese Immobilie als gelungene Verbindung von geschichtsträchtiger Bausubstanz, moderner Ausstattung und wohnlicher Eleganz. Wer ein Zuhause mit Charakter, Stil und Komfort sucht, wird hier fündig – ein Ort, der Geschichte atmet und zugleich alle Annehmlichkeiten modernen Wohnens bietet.
Sonstige Informationen
Sofern Sie auf eine ruhige und doch zentrale Lage, eine beeindruckende Aufteilung und ein gehobenes Umfeld Wert legen, ist dieses Objekt das ideale Angebot für Sie.
Wir bieten Ihnen eine kostenlose 24/7 Hotline (0800-6460646) an. Bei Interesse fordern Sie einfach das Exposé mit einigen weiteren Inhalten an. Dieses wird Ihnen automatisch i. d. R. kurzfristig zugesandt. Bei einem Besichtigungswunsch antworten Sie am besten per Mail auf das Exposé, wir melden uns dann umgehend mit Terminvorschlägen bei Ihnen. Bitte geben Sie immer Ihre vollständigen Kontaktdaten an.
Die Objektbeschreibung beruht ganz oder zum Teil auf Angaben des Eigentümers. Für die Richtigkeit oder Vollständigkeit übernehmen wir keine Gewähr.
Sie wollen Ihre Immobilie ebenfalls professionell vermarkten, rufen Sie uns an, wir stehen Ihnen von Mo. bis So. von 6.00 - 22.00 h persönlich zur Seite, über 200.000 aktive Interessenten warten bereits auf Sie.
Die Inhalte und Bilder dieses Exposés könnten mithilfe von künstlicher Intelligenz (KI) erstellt worden sein.
Wir bieten Ihnen eine kostenlose 24/7 Hotline (0800-6460646) an. Bei Interesse fordern Sie einfach das Exposé mit einigen weiteren Inhalten an. Dieses wird Ihnen automatisch i. d. R. kurzfristig zugesandt. Bei einem Besichtigungswunsch antworten Sie am besten per Mail auf das Exposé, wir melden uns dann umgehend mit Terminvorschlägen bei Ihnen. Bitte geben Sie immer Ihre vollständigen Kontaktdaten an.
Die Objektbeschreibung beruht ganz oder zum Teil auf Angaben des Eigentümers. Für die Richtigkeit oder Vollständigkeit übernehmen wir keine Gewähr.
Sie wollen Ihre Immobilie ebenfalls professionell vermarkten, rufen Sie uns an, wir stehen Ihnen von Mo. bis So. von 6.00 - 22.00 h persönlich zur Seite, über 200.000 aktive Interessenten warten bereits auf Sie.
Die Inhalte und Bilder dieses Exposés könnten mithilfe von künstlicher Intelligenz (KI) erstellt worden sein.
Lage des Objektes
Diese Immobilie bietet eine hervorragende Anbindung an den öffentlichen Nahverkehr mit mehreren Bushaltestellen in unmittelbarer Nähe, die nur wenige Gehminuten entfernt sind. Für Pendler ist die Autobahnauffahrt A 61 ebenfalls schnell erreichbar, was eine zügige Verbindung zu umliegenden Städten ermöglicht. Der nächste Flughafen Köln/Bonn ist etwa 40 Kilometer entfernt und bietet eine bequeme Option für nationale und internationale Reisen.
In der Umgebung finden sich zahlreiche Einkaufsmöglichkeiten, darunter ein Netto Marken-Discount, der in wenigen Minuten mit dem Auto erreichbar ist. Für den täglichen Bedarf stehen zudem mehrere Drogerien und Apotheken in der Nähe zur Verfügung.
Familien profitieren von der Nähe zu Bildungseinrichtungen wie der Schule am Burgweiher und mehreren Kindergärten, die sich in der Umgebung befinden. Für die Freizeitgestaltung bietet die Umgebung eine Vielzahl an Sportmöglichkeiten, darunter ein nahegelegener Sportplatz und mehrere Fitnessstudios, die leicht zu erreichen sind.
Kulinarische Genüsse kommen ebenfalls nicht zu kurz: In der Nähe finden sich verschiedene Restaurants, die eine breite Auswahl an Speisen bieten. Für einen entspannten Nachmittag bietet sich ein Besuch im Café oder ein Spaziergang in einem der nahegelegenen Parks an.
Diese Lage vereint die Vorzüge einer ruhigen Wohngegend mit der Nähe zu wichtigen Einrichtungen und Anbindungen, was sie zu einem idealen Wohnort für unterschiedliche Lebensstile macht.
In der Umgebung finden sich zahlreiche Einkaufsmöglichkeiten, darunter ein Netto Marken-Discount, der in wenigen Minuten mit dem Auto erreichbar ist. Für den täglichen Bedarf stehen zudem mehrere Drogerien und Apotheken in der Nähe zur Verfügung.
Familien profitieren von der Nähe zu Bildungseinrichtungen wie der Schule am Burgweiher und mehreren Kindergärten, die sich in der Umgebung befinden. Für die Freizeitgestaltung bietet die Umgebung eine Vielzahl an Sportmöglichkeiten, darunter ein nahegelegener Sportplatz und mehrere Fitnessstudios, die leicht zu erreichen sind.
Kulinarische Genüsse kommen ebenfalls nicht zu kurz: In der Nähe finden sich verschiedene Restaurants, die eine breite Auswahl an Speisen bieten. Für einen entspannten Nachmittag bietet sich ein Besuch im Café oder ein Spaziergang in einem der nahegelegenen Parks an.
Diese Lage vereint die Vorzüge einer ruhigen Wohngegend mit der Nähe zu wichtigen Einrichtungen und Anbindungen, was sie zu einem idealen Wohnort für unterschiedliche Lebensstile macht.
Anbieter kontaktieren
Anbieter
FALC Immobilien GmbH & Co. KG
Humperdickstr. 3
53773 Hennef (Sieg)
Kontakt
| Telefon | 0800 6460646 |
| Mobil | +49 151 26864088 |
| Fax | +49 2242 9010319 |
| Website | www.falcimmo.de |
