Mehrfamilienhaus mit sechs vermieteten Wohnungen
629.000 €
Kaufpreis
349 m²
Wohnfläche
14
Zimmer
immobilien.de Nr.: 9311710
Objektnummer: 394038
Preise & Kosten
| Kaufpreis | 629.000 € |
| Nebenkosten | keine Angabe |
| Maklerprovision | 4,76 % (inkl. MwSt.) |
Größe & Zustand
| Wohnfläche | 349 m² |
| Zimmer | 14 |
| Baujahr | 2005 |
| Verfügbar ab | vermietet |
| Zustand | Gepflegt |
Energie
| Energieausweistyp | Verbrauch |
| Ausstellungsdatum | 06. 10. 2025 |
| Baujahr (laut Energieausweis) | 2005 |
| Energieeffizienzklasse | D |
| Energieverbrauchkennwert | 101.7 kWh/(m²*a) |
| Heizungsart | Zentralheizung |
| Wesentlicher Energieträger | Öl |
| Energieträger/Befeuerung | Öl |
Objektbeschreibung
Ich biete Ihnen dieses solide Mehrfamilienhaus als interessantes Investment an. Das 2005 erbaute Gebäude umfasst insgesamt 6 Wohneinheiten mit einer Gesamtwohnfläche von ca. 349 qm. Die Beheizung erfolgt durch eine Ölheizung.
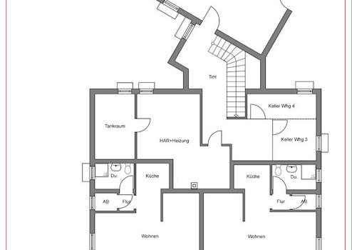
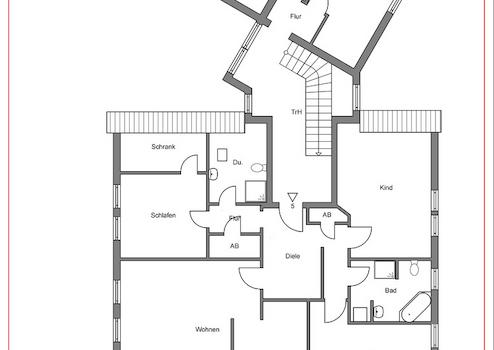
Die Wohnungen haben folgende Wohnflächen:
Untergeschoss, rechts ca. 37,47 qm, links ca. 37,47 qm.
Erdgeschoss, rechts ca. 29,55 qm, links ca. 102,78 qm.
Obergeschoss, rechts ca. 28 qm, links ca. 113,35 qm.
Es gibt zwei Garagen und drei Stellplätze. Eine schöne Gartenanlage umrahmt das Haus.
Die Untergeschoss-Wohnungen haben eine Terrasse. Es gibt zwei Kellerräume und ein Stauraum auf dem Dach. Das Haus befindet sich in einer ruhigen Seitenstraße. Einkaufsmöglichkeiten befinden sich in unmittelbarer Nähe. Die Region ist auch bei Touristen sehr begehrt, da dort viele Ausflugsziele mit dem Rad oder einer kurzen Wanderung zu erreichen sind.
Alle Wohneinheiten sind vermietet. Sie können sehr gerne eine detaillierte Mietertragsaufstellung anfragen. Ich lade Sie auch sehr gerne zu einem Besichtigungstermin ein.
Weitere Angebote unter www.GARANT-IMMO.de
Die Wohnungen haben folgende Wohnflächen:
Untergeschoss, rechts ca. 37,47 qm, links ca. 37,47 qm.
Erdgeschoss, rechts ca. 29,55 qm, links ca. 102,78 qm.
Obergeschoss, rechts ca. 28 qm, links ca. 113,35 qm.
Es gibt zwei Garagen und drei Stellplätze. Eine schöne Gartenanlage umrahmt das Haus.
Die Untergeschoss-Wohnungen haben eine Terrasse. Es gibt zwei Kellerräume und ein Stauraum auf dem Dach. Das Haus befindet sich in einer ruhigen Seitenstraße. Einkaufsmöglichkeiten befinden sich in unmittelbarer Nähe. Die Region ist auch bei Touristen sehr begehrt, da dort viele Ausflugsziele mit dem Rad oder einer kurzen Wanderung zu erreichen sind.
Alle Wohneinheiten sind vermietet. Sie können sehr gerne eine detaillierte Mietertragsaufstellung anfragen. Ich lade Sie auch sehr gerne zu einem Besichtigungstermin ein.
Weitere Angebote unter www.GARANT-IMMO.de
Ausstattung
| Boden | Fliesen |
* Gepflegte Wohneinheiten
* Verschiedene Größen
* Zwei Terrassen
* Zwei Garagen
* Drei Stellplätze
* Ruhig gelegen
* Gute Verkehrsanbindungen
* Verschiedene Größen
* Zwei Terrassen
* Zwei Garagen
* Drei Stellplätze
* Ruhig gelegen
* Gute Verkehrsanbindungen
Sonstige Informationen
Haben Sie schon eine geprüfte Finanzierung? Gerne vermitteln wir Ihnen einen seriösen Finanzierungspartner mit Top-Konditionen. Sie haben selbst ein oder mehrere Objekte zu verkaufen? Gerne übernehme ich das für Sie. Sprechen Sie mich hierzu gerne an.
Kontakt
| Telefon | 0951/96 86 510 |
| Fax | 0951/96 86 51 20 |
| Website | www.garant-immo.de |
