*** Wintergartenhaus mit klasse Architektur und 4 Zimmer***
459.950 €
Kaufpreis
126,73 m²
Wohnfläche
137,9 m²
Nutzfläche
4
Zimmer
immobilien.de Nr.: 9311602
Objektnummer: BV 2546 (1/616)
Preise & Kosten
| Kaufpreis | 459.950 € |
| Nebenkosten | keine Angabe |
Größe & Zustand
| Wohnfläche | 126,73 m² |
| Nutzfläche | 137,9 m² |
| Grundstücksfläche | 399 m² |
| Zimmer | 4 |
| Baujahr | 2026 |
| Verfügbar ab | keine Angabe |
| Zustand | Projektiert |
Energie
| Heizungsart | Fußbodenheizung |
| Energieträger/Befeuerung | Luft-Wärme-Pumpe |
Objektbeschreibung
Unser Haus - ein WINTERGARTENHAUS!
Klassische Architektur mit dem gewissen Extra: Bodentiefe Fenster rundum für sonnige Räume und beste Aussichten. Ein besonders offener und großzügiger Grundriss im Erdgeschoss bietet auf ca. 4412 m² Wohnen und Essen mit offener Küche.
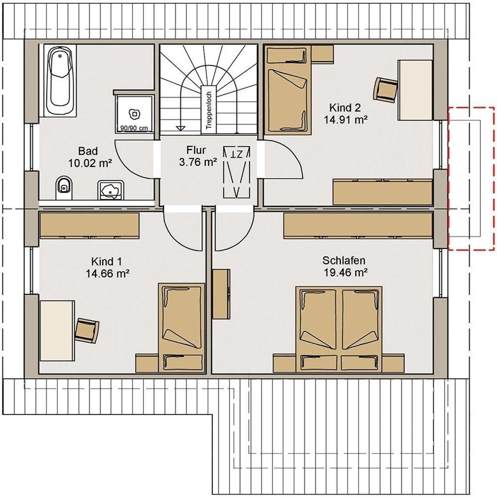
Sinnvoll: Ein zusätzliches Arbeits-/ oder Gästezimmer schafft Planungsfreiheit im Erdgeschoss. Oben gefällt das große Schlafzimmer und zwei mit jeweils ca. 15 m² gleich groß entworfene Kinderzimmer. Da gibt es keinen Streit um das größere Zimmer. Komplettiert wird das Obergeschoss vom richtig dimensionierten Familienbad. Ein Haus für die ganze Familie eben.
Klassische Architektur mit dem gewissen Extra: Bodentiefe Fenster rundum für sonnige Räume und beste Aussichten. Ein besonders offener und großzügiger Grundriss im Erdgeschoss bietet auf ca. 4412 m² Wohnen und Essen mit offener Küche.
Sinnvoll: Ein zusätzliches Arbeits-/ oder Gästezimmer schafft Planungsfreiheit im Erdgeschoss. Oben gefällt das große Schlafzimmer und zwei mit jeweils ca. 15 m² gleich groß entworfene Kinderzimmer. Da gibt es keinen Streit um das größere Zimmer. Komplettiert wird das Obergeschoss vom richtig dimensionierten Familienbad. Ein Haus für die ganze Familie eben.
Ausstattung
| Anzahl der Etagen im Haus | 2 |
| Bad | 1 |
| Bad | Dusche, Wanne, Fenster |
| Boden | Fliesen |
| Terrassen | 1 |
Dieses FERTIGHAUS wird "fast fertig" angeboten.
In der Ausstattung „fast fertig“ sind bei uns entscheidende Mehrleistungen schon im Standard der Bauleistungsbeschreibung (BLB) enthalten.
* Architektenleistung
* Bodenplatte
* Ausstattung: Gehoben
* Heizungsart: Wärmepumpentechnik
* Estrich und Fußbodenheizung
* farbiger Außenputz
* Pfettendach aus KVH (Konstruktions- Vollholz)
* Dachsteine
* Dachrinnen und Regenfallrohre
* Innenfensterbänke aus Marmor
* Aluminium Rollläden
* Treppenanlage aus Vollholz- Buche,
* Bodeneinschubtreppe
* Sicherheits-Thermohaustür
* Fenster mit Pilzkopfverriegelung, 3-fach-Verglasung (6 Kammer Profile)
* Elektroausstattung (Smarthome auf Anfrage)
* Heizung-Sanitär-Rohmontage + Endmontage
* Sanitärobjekte und Fliesenarbeiten in Gäste-WC und Bad
* Fliesenarbeiten im Hausanschlussraum
* Bodenbeläge - verschiedene Möglichkeiten - in allen anderen Räumen
* Bodengleiche- geflieste Dusche
* Wärme- und Schalldämmung
* Höchster Individualisierungsgrad
* Blower- Door Test nach DIN 13829 für EnEV - Abnahmemessungen aus DIN V 4108-7 durch.
* Statik
* Bemusterung in eigener Ausstellung
* 360° Betreuung vom Erstkontakt bis zum Einzug.
* In allen unseren Häusern werden nur hochwertige Markenprodukte von namhaften Herstellern verwendet
* Grundrisse können ohne Mehrkosten individuell umgeplant werden insofern die Gesamtwohnfläche gleich bleibt.
* Die Gesamtwohnfläche kann gegen Preiskorrektur geändert angeboten werden.
In der Ausstattung „fast fertig“ sind bei uns entscheidende Mehrleistungen schon im Standard der Bauleistungsbeschreibung (BLB) enthalten.
* Architektenleistung
* Bodenplatte
* Ausstattung: Gehoben
* Heizungsart: Wärmepumpentechnik
* Estrich und Fußbodenheizung
* farbiger Außenputz
* Pfettendach aus KVH (Konstruktions- Vollholz)
* Dachsteine
* Dachrinnen und Regenfallrohre
* Innenfensterbänke aus Marmor
* Aluminium Rollläden
* Treppenanlage aus Vollholz- Buche,
* Bodeneinschubtreppe
* Sicherheits-Thermohaustür
* Fenster mit Pilzkopfverriegelung, 3-fach-Verglasung (6 Kammer Profile)
* Elektroausstattung (Smarthome auf Anfrage)
* Heizung-Sanitär-Rohmontage + Endmontage
* Sanitärobjekte und Fliesenarbeiten in Gäste-WC und Bad
* Fliesenarbeiten im Hausanschlussraum
* Bodenbeläge - verschiedene Möglichkeiten - in allen anderen Räumen
* Bodengleiche- geflieste Dusche
* Wärme- und Schalldämmung
* Höchster Individualisierungsgrad
* Blower- Door Test nach DIN 13829 für EnEV - Abnahmemessungen aus DIN V 4108-7 durch.
* Statik
* Bemusterung in eigener Ausstellung
* 360° Betreuung vom Erstkontakt bis zum Einzug.
* In allen unseren Häusern werden nur hochwertige Markenprodukte von namhaften Herstellern verwendet
* Grundrisse können ohne Mehrkosten individuell umgeplant werden insofern die Gesamtwohnfläche gleich bleibt.
* Die Gesamtwohnfläche kann gegen Preiskorrektur geändert angeboten werden.
Sonstige Informationen
Das Haus ist projektiert und der angebotene Preis ist inkl. Grundstück. Das Grundstück wird in Kommission angeboten bzw. direkt von Dritten verkauft. Die Bauabwicklung kann kurzfristig nach Grundstückserwerb begonnen werden. Bilder und Fotos zeigen möglicherweise Sonderausstattungen, die auf Wunsch gegen Preiskorrektur zusätzlich angeboten werden können.
Das Angebot ist unverbindlich und freibleibend, exklusive Kosten sind die Baunebenkosten, wie z.B. Hausanschlüsse, Außenanlagen, Vermesser, Maklercourtage, Versicherungen, Erdarbeiten, Notar und Gerichtskosten. Abbildungen und Grundrisse zeigen Extras die ggf. nicht im Preis enthalten sind!
Hier können Sie als Bauherr den Fertighaushersteller beauftragen und auf einem Baugrundstück bauen, welches Sie vorher direkt vom Grundstückseigentümer erwerben würden.
Fragen Sie nach unserem kostenlosen Bauherren-Beratungs-Service und erhalten Sie in einem persönlichen Gespräch in unserem BERATUNGSBÜRO in 76751 Jockgrim kostenlos alle wichtigen Informationen zum Bauen: Baukosten-Kalkulation, Finanzierung, Förderung, Grundstücksservice, Architektur- u. Grundrissplanung und vieles mehr.
Vereinbaren Sie am Besten gleich einen Beratungstermin mit uns.
Das Angebot ist unverbindlich und freibleibend, exklusive Kosten sind die Baunebenkosten, wie z.B. Hausanschlüsse, Außenanlagen, Vermesser, Maklercourtage, Versicherungen, Erdarbeiten, Notar und Gerichtskosten. Abbildungen und Grundrisse zeigen Extras die ggf. nicht im Preis enthalten sind!
Hier können Sie als Bauherr den Fertighaushersteller beauftragen und auf einem Baugrundstück bauen, welches Sie vorher direkt vom Grundstückseigentümer erwerben würden.
Fragen Sie nach unserem kostenlosen Bauherren-Beratungs-Service und erhalten Sie in einem persönlichen Gespräch in unserem BERATUNGSBÜRO in 76751 Jockgrim kostenlos alle wichtigen Informationen zum Bauen: Baukosten-Kalkulation, Finanzierung, Förderung, Grundstücksservice, Architektur- u. Grundrissplanung und vieles mehr.
Vereinbaren Sie am Besten gleich einen Beratungstermin mit uns.
Lage des Objektes
Das Grundstück befindet sich in Ubstadt-Weiher.
Unser Angebot beinhaltet das Grundstück und das Einfamilienhaus.
Das Grundstück ist über einen externen Partner/Makler/Eigentümer zu erwerben.
Das Grundstück ist erschlossen und sofort bebaubar. Die monatliche Erbpacht beträgt 329 €.
**Bitte haben Sie Verständnis, dass wir ohne ein persönliches Gespräch über das Haus keine Grundstücksdaten weiterleiten.**
Sie haben bereits ein Grundstück? Dann lassen Sie sich beraten, wie wir Ihre Hausbauwünsche erfüllen können.
Sie möchten ein anderes Haus auf diesem Grundstück, oder Sie möchten ein anderes Grundstück zu diesem Haus? Dann rufen Sie uns einfach an - wir beraten Sie sehr gerne.
Unser Angebot beinhaltet das Grundstück und das Einfamilienhaus.
Das Grundstück ist über einen externen Partner/Makler/Eigentümer zu erwerben.
Das Grundstück ist erschlossen und sofort bebaubar. Die monatliche Erbpacht beträgt 329 €.
**Bitte haben Sie Verständnis, dass wir ohne ein persönliches Gespräch über das Haus keine Grundstücksdaten weiterleiten.**
Sie haben bereits ein Grundstück? Dann lassen Sie sich beraten, wie wir Ihre Hausbauwünsche erfüllen können.
Sie möchten ein anderes Haus auf diesem Grundstück, oder Sie möchten ein anderes Grundstück zu diesem Haus? Dann rufen Sie uns einfach an - wir beraten Sie sehr gerne.
Anbieter kontaktieren
Anbieter
1.2.3. Bauberatung - Horst Hellman
Bahnhofstr. 66
76751 Jockgrim
Kontakt
| Telefon | +49 172 7689327 |
| Mobil | +49 172 7689327 |
| Fax | +49 7271 9812221 |
