Baugrundstück mit Planstudie für ca. 654 m² Wohnfläche

360.000 €
Kaufpreis
immobilien.de Nr.: 9302146 Objektnummer: 550195
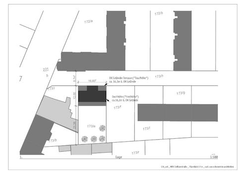
Flurkarte
Grundstück Vogelperspektive
Visualisierung Hofansicht
Ansicht Strasse
Blick Richtung Grundstück
Umgebung
Umgebung
177_oel_Variante-Lage(1)
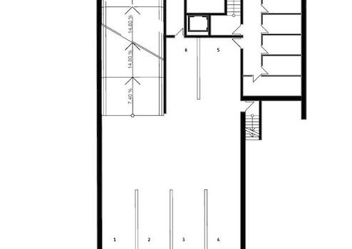
TG
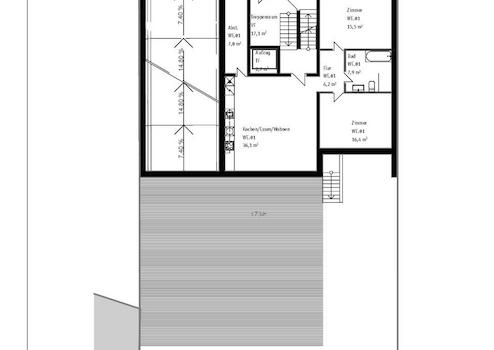
EG
1OG
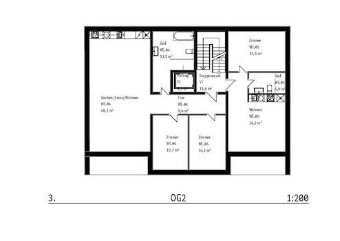
2OG
3OG
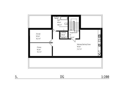
DG
Vogelperspektive
Grundstück
Seitenansicht 2
Seitenansicht
Blick ins Grundstück

Preise & Kosten

Kaufpreis 360.000 €
Nebenkosten keine Angabe
Kaufpreis pro m² 610 €

Größe & Zustand

Grundstücksfläche 590 m²
Verfügbar ab keine Angabe

Objektbeschreibung

Das zum Verkauf stehende ca. 590 m² große Grundstück befindet sich im Leipziger Ortsteil Mockau-Süd. Die Umgebungsbebauung, des in einer ruhigen Seitenstraße gelegenen Grundstückes, ist gekennzeichnet durch Neubau-Mehrfamilienhäuser. Der Abtnaundorfer Park befindet sich in unmittelbarer Nähe und ist innerhalb von wenigen Gehminuten erreichbar.

Die Bebaubarkeit ist über eine entsprechende Bauvoranfrage bei der Stadt Leipzig zu klären. Das Grundstück befindet sich im Innenbereich gemäß §34 BauGB. Es liegt eine Planungsstudie zum Bau eines Mehrfamilienhauses mit Tiefgarage und ca. 654 m² vermietbarer Fläche vor.

Die sich auf dem Grundstück befindende Doppelgarage ist aktuell zu 50€ brutto vermietet. Der Mietvertrag ist mit einer Frist von 3 Monaten kündbar.


" frisch, engagiert, solide "

Die Künne Immobilien Gruppe ist professioneller Dienstleister der Immobilienbranche und steht Ihnen in den Bereichen Projektentwicklung, Verkauf, Vermietung, Verwaltung und Facility Management zur Verfügung. Für weitere Informationen und Einblicke besuchen Sie unsere Homepage: www.kuenne-gruppe.de

Sie wollen Ihre Immobilie verkaufen? Egal ob Mehrfamilien- oder Einfamilienhaus, Eigentumswohnung, Grundstück oder Neubau- bzw. Bauträgerprojekt. Wir vermitteln kompetent, transparent und zügig Ihre Immobilie, bundesweit.

Objektstandort

04357 Leipzig - Sachsen

Lage des Objektes

Mockau ist ein schöner Stadtteil von Leipzig, der im Norden der Messemetropole liegt.

Dieser Stadtteil besteht aus sehr vielen Grün- und Kleingartenanlagen. Infrastrukturell ist Mockau-Süd sehr gut erschlossen und es besteht eine gute Verkehrsanbindung zu den Hauptknotenpunkten Leipzigs. Für Pendler ist die Lage optimal, da die Neue Messe, das BMW- oder Porsche Werk oder das alte Quelle Versandzentrum mit dem Auto per A14 und B2 schnell zu erreichen sind.

Einkaufszentren, Schulen, Kindergärten, Ärzte und andere Dienstleistungen sind schnell zu Fuß zu erreichen. In unmittelbarer Nähe befindet sich der Abtnaundorfer Park der zum Entspannen, Spazieren und Erholen einlädt.

Anbieter kontaktieren

Anbieter

Marko Künne Immobilien
Käthe-Kollwitz-Str. 58c
04109 Leipzig

Kontakt

Telefon 0341 442 9566
Fax 0341 2253930
Website www.kuenne-immobilien.de