Kleines Wohnhaus, mit erschlossenem 880 qm großen Baugrundstück, in Luckenwalde zu verkaufen.
192.600 €
Kaufpreis
immobilien.de Nr.: 9296624
Objektnummer: 7874
Preise & Kosten
| Kaufpreis | 192.600 € |
| Nebenkosten | keine Angabe |
| Maklerprovision | 3,57 % |
Größe & Zustand
| Grundstücksfläche | 880 m² |
| Verfügbar ab | zeitnah nach Kauf |
Objektbeschreibung
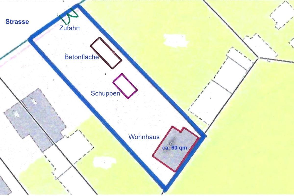
Verkauft wird ein erschlossenes Baugrundstück in Luckenwalde, mit einer Größe von 880 qm. Auf dem Grundstück liegen Strom, ein zentraler Trinkwasser- und Abwasseranschluss, sowie Glasfaser für schnelles Internet an. Die Gasleitung führt am Grundstück auf der öffentlichen Straße vorbei. Ein von der Stadt Luckenwalde beschiedener positiver Bescheid zur gestellten Bauvoranfrage, zur Errichtung eines Wohnhauses, liegt vor. Im vorderen Grundstücksbereich befindet sich eine intakte Betonplatte, die Basis einer massiven Garage war. Im mittleren Grundstücksbereich steht ein großräumiger Schuppen, der für Baumaterial und andere Abstellmöglichkeiten geeignet ist. Im hinteren Grunsdstücksbereich steht ein kleines massives Wohnhaus, das derzeit nicht bewohnt ist, aber mit wenig Aufwand wieder bewohnbar hergestellt werden kann. Auf ca. 60 qm Wohn- und Nutzfläche befinden sich ein Flur, 3 Zimmer, eine Küche mit Wirtschaftsraum, ein Bad mit Wanne und ein Abstellraum. Die Medien sind von den Anschlüssen bis ins Haus geführt. Beheizt wurde das Haus mit Nachtspeicheröfen. Das Haus ist als Dauerwohnsitz mit fester Adresse nutzbar. Es sind verschiedene Nutzungsmöglichkeiten der Immobilie denkbar. Sie eignet sich, nach Ertüchtigung des Wohnhauses, als Freizeitimmobilie. Das Haus und Nebengelass kann aber auch als Übergangsunterkunft wärend der Bauphase eines neuen Wohnhauses im vorderen Grundstücksbereich dienen. Das ist dem neuen Eigentümer überlassen. Neben dem Bescheid zur Bebaubarkeit liegen die Auskünfte aus dem Baulastenverzeichnis und dem Altlastenkataster vor. Hier gibt es keine Eintragungen.
Die Immobilie wird lastenfrei verkauft. Dienstbarkeiten bestehen nicht. Das rechterhand gelegene Nachbargrundstück ist ein Doppelhaus. Das linkerhand befindliche Grundstück wird derzeit durch ein stilles Gewerbe genutzt. Beide Nachbargrundstücke lassen sich durch Hecken oder dichte Zäune optisch abgrenzen, wenn man es möchte. Hinter dem Wohnhaus ist unverbaubare Natur.
.
Die Immobilie wird lastenfrei verkauft. Dienstbarkeiten bestehen nicht. Das rechterhand gelegene Nachbargrundstück ist ein Doppelhaus. Das linkerhand befindliche Grundstück wird derzeit durch ein stilles Gewerbe genutzt. Beide Nachbargrundstücke lassen sich durch Hecken oder dichte Zäune optisch abgrenzen, wenn man es möchte. Hinter dem Wohnhaus ist unverbaubare Natur.
.
Sonstige Informationen
Immoweb Potsdam, mit seinem bundesweiten Maklernetzwerk von Immobiliendienstleistern und -Maklern, legt größten Wert auf Ihr Vertrauen und auf die Transparenz der Abläufe. Kontaktieren Sie uns persönlich, oder senden Sie uns eine E-Mail – wir stehen Ihnen jederzeit gern zur Verfügung.
Bitte haben Sie Verständnis dafür, dass wir nur vollständig adressierte Anfragen bearbeiten können. Ihren individuellen Besichtigungstermin organisieren wir Ihnen gern. Von eigenständigen Besichtigungsversuchen bittet der Eigentümer dringlich Abstand zu nehmen. Alle in diesem Angebot enthaltenen Angaben, Abmessungen und Preisangaben beruhen auf Informationen des Verkäufers, oder eines Dritten. Hierfür wird keine Haftung übernommen.
Ihr Ansprechpartner:
Siegfried Lietzmann
Lietzmann Consult GmbH
Partner der Immoweb AG
Am Bürohochhaus 2-4
14478 Potsdam
Tel: 033209 208 637
Fax: 033209 208 636
Mob:01578 2462 925
http://buero.immoweb.de/potsdam/
lietzmann-consult@t-online.de
Bitte haben Sie Verständnis dafür, dass wir nur vollständig adressierte Anfragen bearbeiten können. Ihren individuellen Besichtigungstermin organisieren wir Ihnen gern. Von eigenständigen Besichtigungsversuchen bittet der Eigentümer dringlich Abstand zu nehmen. Alle in diesem Angebot enthaltenen Angaben, Abmessungen und Preisangaben beruhen auf Informationen des Verkäufers, oder eines Dritten. Hierfür wird keine Haftung übernommen.
Ihr Ansprechpartner:
Siegfried Lietzmann
Lietzmann Consult GmbH
Partner der Immoweb AG
Am Bürohochhaus 2-4
14478 Potsdam
Tel: 033209 208 637
Fax: 033209 208 636
Mob:01578 2462 925
http://buero.immoweb.de/potsdam/
lietzmann-consult@t-online.de
Lage des Objektes
Luckenwalde ist die Kreisstadt des Landkreises Teltow-Fläming, im Land Brandenburg und liegt etwa 50 Kilometer südlich von Berlin.Der Landkreis gehört zu den dynamischsten Wirtschaftsregionen Deutschlands. Die Stadt mit ihren ca. 22.000 Einwohnern bildet zugleich das administrative Zentrum für 160.000 Menschen.
Nördlich von Luckenwalde liegt Trebbin, südlich Jüterbog, östlich Baruth/Mark und westlich Treuenbrietzen. Durch Luckenwalde fließt die Nuthe. Im Mittelalter war die Nuthe mit Kähnen von Luckenwalde bis zur Mündung in die Havel schiffbar. Der Fluss war damals bis zu 40 Meter breit. Heute ist die Nuthe im Luckenwalder Stadtgebiet durch die meliorativen Maßnahmen auf einen zwei Meter breiten und einen halben bis 1 Meter tiefen Fluss kanalisiert. Die Wälder und Wiesen sind Nahrungsquelle für Schwarzwild, Rehwild und Feldhasen. Das Wahrzeichen Brandenburgs, der Rote Milan, ist hier auch beheimatet. Luckenwalde liegt am Rand des Naturparks
Nuthe-Nieplitz. 1993 wurden die Kreise Luckenwalde, Zossen und Jüterbog zum Landkreis Teltow-Fläming zusammengeschlossen. Luckenwalde wurde die Kreisstadt des neugebildeten Kreises. 1995 wurde der Beschluss zum Bau eines neuen Kreishauses in Luckenwalde gefasst. Im Jahr 2000 wurde der 24.800 m² große Gebäudekomplex offiziell eingeweiht. Luckenwalde besaß große Bedeutung als Industriestadt. Seit der deutschen Wiedervereinigung entwickelt sich der Tourismus zum wirtschaftlichen Schwerpunkt der Stadt und ihrer Umgebung.
Der Wirtschaftsstandort Luckenwalde wurde 2005 vom Land Brandenburg als einer von 15 regionalen Wachstumskernen im Land bestimmt. Dadurch werden ausgewählte zukunftsorientierte Branchen gefördert. Die Stadt ist Sitz des für den südlichen Teil des Landkreises Teltow-Fläming zuständigen Amtsgerichts Luckenwalde.
Die Bundesstraße 101 ist eine komfortable PKW Verbindung nach Berlin. Luckenwalde verfügt über einen Bahnhof mit Verbindingen im Regional- und Fernverkehr. In der Stadt Luckenwalde lässt es sich gut leben.
Nördlich von Luckenwalde liegt Trebbin, südlich Jüterbog, östlich Baruth/Mark und westlich Treuenbrietzen. Durch Luckenwalde fließt die Nuthe. Im Mittelalter war die Nuthe mit Kähnen von Luckenwalde bis zur Mündung in die Havel schiffbar. Der Fluss war damals bis zu 40 Meter breit. Heute ist die Nuthe im Luckenwalder Stadtgebiet durch die meliorativen Maßnahmen auf einen zwei Meter breiten und einen halben bis 1 Meter tiefen Fluss kanalisiert. Die Wälder und Wiesen sind Nahrungsquelle für Schwarzwild, Rehwild und Feldhasen. Das Wahrzeichen Brandenburgs, der Rote Milan, ist hier auch beheimatet. Luckenwalde liegt am Rand des Naturparks
Nuthe-Nieplitz. 1993 wurden die Kreise Luckenwalde, Zossen und Jüterbog zum Landkreis Teltow-Fläming zusammengeschlossen. Luckenwalde wurde die Kreisstadt des neugebildeten Kreises. 1995 wurde der Beschluss zum Bau eines neuen Kreishauses in Luckenwalde gefasst. Im Jahr 2000 wurde der 24.800 m² große Gebäudekomplex offiziell eingeweiht. Luckenwalde besaß große Bedeutung als Industriestadt. Seit der deutschen Wiedervereinigung entwickelt sich der Tourismus zum wirtschaftlichen Schwerpunkt der Stadt und ihrer Umgebung.
Der Wirtschaftsstandort Luckenwalde wurde 2005 vom Land Brandenburg als einer von 15 regionalen Wachstumskernen im Land bestimmt. Dadurch werden ausgewählte zukunftsorientierte Branchen gefördert. Die Stadt ist Sitz des für den südlichen Teil des Landkreises Teltow-Fläming zuständigen Amtsgerichts Luckenwalde.
Die Bundesstraße 101 ist eine komfortable PKW Verbindung nach Berlin. Luckenwalde verfügt über einen Bahnhof mit Verbindingen im Regional- und Fernverkehr. In der Stadt Luckenwalde lässt es sich gut leben.
Anbieter kontaktieren
Kontakt
| Telefon | 033209-208 637 |
| Mobil | 01578-246 29 25 |
| Fax | 033209-208 636 |
| Website | www.immoauktionen.de |
