Haus in ruhiger Lage mit sagenhafter Aussicht !
595.000 €
Kaufpreis
216 m²
Wohnfläche
6
Zimmer
immobilien.de Nr.: 9293616
Objektnummer: 111261
Preise & Kosten
| Kaufpreis | 595.000 € |
| Nebenkosten | keine Angabe |
| Maklerprovision | 2,38 % (inkl. MwSt.) |
Größe & Zustand
| Wohnfläche | 216 m² |
| Grundstücksfläche | 2.546 m² |
| Zimmer | 6 |
| Baujahr | 1980 |
| Verfügbar ab | nach Vereinbarung |
| Zustand | Gepflegt |
Energie
| Energieausweistyp | Verbrauch |
| Ausstellungsdatum | 25. 03. 2024 |
| Baujahr (laut Energieausweis) | 1980 |
| Energieeffizienzklasse | G |
| Energieverbrauchkennwert | 205.4 kWh/(m²*a) |
| Heizungsart | Zentralheizung |
| Wesentlicher Energieträger | Öl |
| Energieträger/Befeuerung | Öl |
Objektbeschreibung
Hier könnte Ihr neues Zuhause sein - Wohnen wie im Urlaub.
Genießen Sie die Ruhe, den Ausblick und die Natur in diesem möglichen neuen Zuhause.
Zwei Balkone, eine Terrasse und jede Menge Garten für Ihre Erholung.
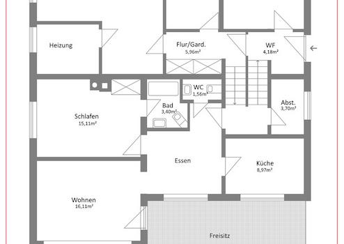
Nach dem Eingangsbereich mit den Nebenräumen in Form des Heizraumes, der Waschküche und dem Trockenraum sowie einem kleinen und einem großen Abstellraum, gelangen Sie in den großzügigen Wohnraum.
Ein halbes Stockwerk nach unten finden Sie die großzügige 2 1/2 Zimmer-Einliegerwohnung mit Wohnzimmer und Zugang zum großen Balkon, einem Essplatz vor der Küche, einem Schlafzimmer mit einem Bad on Suite sowie einem separaten WC. Die Einliegerwohnung ist derzeit frei.
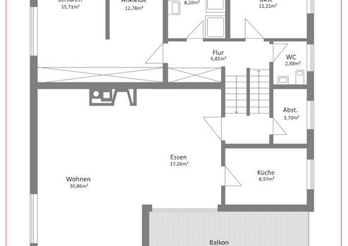
Wenn Sie vom Eingang eine Treppe hochgehen, landen Sie in der Hauptwohnung mit dem imposanten Wohnzimmer. Hier besticht das angenehme Wohngefühl durch die hohe Decke, einen offenen Kamin für lauschig gemütliche Wintertage und den tollen, großen Fenstern, die Ihnen eine wahnsinnig gute Aussicht bieten. Daran schließt der große Balkon. Hier werden Sie sicher viele Stunden verbringen und die Lage des Hauses genießen können.
Vom Essplatz aus gelangen Sie in die Küche. Außerdem ist noch ein kleiner Büroraum auf dieser Etage.
Im nächsten Level finden Sie das helle, großzügige Bad mit Wanne, Dusche, zwei Waschbecken und Toilette.
Das Schlafzimmer ist so groß, dass Sie das abgetrennte Ankleidezimmer begeistern wird.
Ein Kinderzimmer befindet sich ebenso wie ein Gäste-WC auf dieser Etage.
Zwei große Bühnen, die im Moment noch nicht ausgebaut sind, stehen im Obergeschoss zur Verfügung.
Neben der Garage haben Sie auch noch einen Stellplatz.
Auf einer zusätzlichen Schattenterrasse können Sie auch heiße Tage angenehm genießen und sich zum Beispiel beim Grillen verwöhnen lassen.
Weitere Angebote unter www.GARANT-IMMO.de
Genießen Sie die Ruhe, den Ausblick und die Natur in diesem möglichen neuen Zuhause.
Zwei Balkone, eine Terrasse und jede Menge Garten für Ihre Erholung.
Nach dem Eingangsbereich mit den Nebenräumen in Form des Heizraumes, der Waschküche und dem Trockenraum sowie einem kleinen und einem großen Abstellraum, gelangen Sie in den großzügigen Wohnraum.
Ein halbes Stockwerk nach unten finden Sie die großzügige 2 1/2 Zimmer-Einliegerwohnung mit Wohnzimmer und Zugang zum großen Balkon, einem Essplatz vor der Küche, einem Schlafzimmer mit einem Bad on Suite sowie einem separaten WC. Die Einliegerwohnung ist derzeit frei.
Wenn Sie vom Eingang eine Treppe hochgehen, landen Sie in der Hauptwohnung mit dem imposanten Wohnzimmer. Hier besticht das angenehme Wohngefühl durch die hohe Decke, einen offenen Kamin für lauschig gemütliche Wintertage und den tollen, großen Fenstern, die Ihnen eine wahnsinnig gute Aussicht bieten. Daran schließt der große Balkon. Hier werden Sie sicher viele Stunden verbringen und die Lage des Hauses genießen können.
Vom Essplatz aus gelangen Sie in die Küche. Außerdem ist noch ein kleiner Büroraum auf dieser Etage.
Im nächsten Level finden Sie das helle, großzügige Bad mit Wanne, Dusche, zwei Waschbecken und Toilette.
Das Schlafzimmer ist so groß, dass Sie das abgetrennte Ankleidezimmer begeistern wird.
Ein Kinderzimmer befindet sich ebenso wie ein Gäste-WC auf dieser Etage.
Zwei große Bühnen, die im Moment noch nicht ausgebaut sind, stehen im Obergeschoss zur Verfügung.
Neben der Garage haben Sie auch noch einen Stellplatz.
Auf einer zusätzlichen Schattenterrasse können Sie auch heiße Tage angenehm genießen und sich zum Beispiel beim Grillen verwöhnen lassen.
Weitere Angebote unter www.GARANT-IMMO.de
Ausstattung
| Anzahl der Etagen im Haus | 3 |
| Küche | Einbauküche |
| Bad | 2 |
| Boden | Fliesen, Stein, Parkett |
| Balkone | 1 |
Sonstige Informationen
* offener Kamin
* gemauerter Grill
* Das große Grundstück ist in zwei Parzellen geteilt:
1 x ca. 1040 qm auf dem das Haus steht und
1 x ca. 1458 qm als Garten, Baum- und Wiesengrundstück
* gemauerter Grill
* Das große Grundstück ist in zwei Parzellen geteilt:
1 x ca. 1040 qm auf dem das Haus steht und
1 x ca. 1458 qm als Garten, Baum- und Wiesengrundstück
