Behagliches Einfamilienhaus in Schiffweiler !
397.900 €
Kaufpreis
127 m²
Wohnfläche
5
Zimmer
immobilien.de Nr.: 9281510
Objektnummer: 251090A001-251008
Preise & Kosten
| Kaufpreis | 397.900 € |
| Nebenkosten | keine Angabe |
| Stellplatz Garage Kaufpreis | 9.000 € |
Größe & Zustand
| Wohnfläche | 127 m² |
| Grundstücksfläche | 590 m² |
| Zimmer | 5 |
| Baujahr | 2026 |
| Verfügbar ab | nach Vereinbarung |
| Zustand | Erstbezug |
Energie
| Energieausweistyp | Verbrauch |
| Baujahr (laut Energieausweis) | 2026 |
| Energieeffizienzklasse | A+ |
| Energietyp | Niedrigenergie, Neubaustandard, KfW-40 |
| Energieverbrauchkennwert | 33.00 kWh/(m²*a) |
| Heizungsart | Zentralheizung |
| Wesentlicher Energieträger | Strom |
| Energieträger/Befeuerung | Luft-Wärme-Pumpe |
Objektbeschreibung
Dieses charmante Zuhause mit Satteldach bietet Ihnen nicht nur ein durchdachtes Raumkonzept, sondern auch ein lichtdurchflutetes Ambiente, das zum Wohlfühlen einlädt.
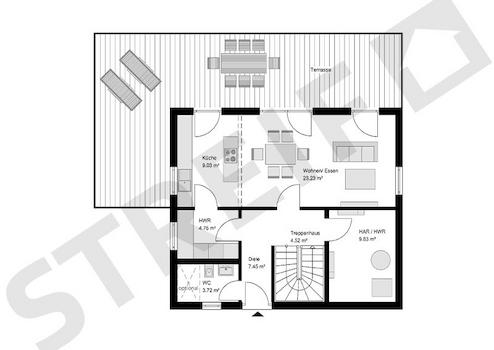
Der offene Wohn-, Ess- und Kochbereich ist der perfekte Ort für gesellige Abende mit der Familie oder Freunden. Der praktische Hauswirtschaftsraum direkt neben der Küche sorgt dafür, dass alles seinen Platz hat und Sie den Alltag entspannt meistern können.
Im Erdgeschoss finden Sie zudem ein Gäste-WC, das flexibel auch als Duschbad genutzt werden kann, sowie eine einladende Diele und einen Haustechnikraum, die den Komfort Ihres neuen Zuhauses abrunden.
Im Dachgeschoss erwarten Sie zwei wunderschöne Kinderzimmer, ein gemütliches Elternschlafzimmer, ein Flur und ein Familienbad - alles, was Sie für harmonische Familienmomente benötigen.
Die durchdachte Anordnung der Treppe und des Haustechnikraumes sorgt für eine optimale Nutzung des Raumes.
Lassen Sie sich von diesem Einfamilienhaus inspirieren und gestalten Sie Ihr neues Zuhause, in dem Erinnerungen geschaffen werden!
Der offene Wohn-, Ess- und Kochbereich ist der perfekte Ort für gesellige Abende mit der Familie oder Freunden. Der praktische Hauswirtschaftsraum direkt neben der Küche sorgt dafür, dass alles seinen Platz hat und Sie den Alltag entspannt meistern können.
Im Erdgeschoss finden Sie zudem ein Gäste-WC, das flexibel auch als Duschbad genutzt werden kann, sowie eine einladende Diele und einen Haustechnikraum, die den Komfort Ihres neuen Zuhauses abrunden.
Im Dachgeschoss erwarten Sie zwei wunderschöne Kinderzimmer, ein gemütliches Elternschlafzimmer, ein Flur und ein Familienbad - alles, was Sie für harmonische Familienmomente benötigen.
Die durchdachte Anordnung der Treppe und des Haustechnikraumes sorgt für eine optimale Nutzung des Raumes.
Lassen Sie sich von diesem Einfamilienhaus inspirieren und gestalten Sie Ihr neues Zuhause, in dem Erinnerungen geschaffen werden!
Ausstattung
| Anzahl der Etagen im Haus | 2 |
| Küche | Offene Küche |
| Bad | 1 |
| Bad | Dusche, Wanne, Fenster |
| Boden | Fliesen, Stein, Teppich, Parkett, Fertigparkett, Laminat, Kunststoff, Linoleum, Marmor, Granit |
| Terrassen | 1 |
| Garage/Stellplätze | 1 |
Ausstattung
STREIF-Häuser sind Energiesparhäuser. Die STREIF-Passiv-Außenwände und eine sparsame Heiztechnik mit integrierter Wohnraumlüftung und Wärmerückgewinnung, garantieren einen geringen Energieverbrauch und ein fantastisches Raumklima, das insbesondere Allergiker aufatmen lässt.
STREIF Leistungen sind MEHR WERT - schon im Grundpreis enthalten!
- 16-monatige Festpreisgarantie
- Energieeffizienzhaus KfW 40 EE im Standard
- Inkl. individuelle Grundrissgestaltung und Raumaufteilung
- Inkl. Fundamentplatte
- Inkl. STREIF-Luft-Luft-Wärmepumpe mit integrierter
Lüftungsanlage mit Wärmerückgewinnung
- Inkl. Haustür von KERA und Fenster von Porta/Kömmerling
- Inkl. Massivholz-Geschosstreppe aus eigener Produktion
- Inkl. Sanitärobjekte von Markenherstellern
- Inkl. Elektroinstallation
- Inkl. Baubetreuung u.v.m.
Die hohe Wertigkeit und Langlebigkeit eines STREIF-Energiespar-Hauses wird durch zahlreiche Auszeichnungen, Qualitäts- und Gütesiegel unabhängiger Institute und Verbände dokumentiert.
Der Angebotspreis ist inklusive Grundstück und bezieht sich auf die Standard-Ausbaustufe Fast-Fertig-Plus. Ihre Eigenleistungen: Spachtel-,Tapezier- und Malerarbeiten, Bodenbeläge, Innentüren.
Baunebenkosten fallen zuzüglich an.
Der Verkauf des Grundstücks erfolgt über einen unserer Netzwerkpartner.
Bilder können evtl. Anbauteile, Carports, Balkone, Gauben usw. zeigen, die nicht im Angebotspreis enthalten sind. Änderungen und Irrtümer vorbehalten.
STREIF-Häuser sind Energiesparhäuser. Die STREIF-Passiv-Außenwände und eine sparsame Heiztechnik mit integrierter Wohnraumlüftung und Wärmerückgewinnung, garantieren einen geringen Energieverbrauch und ein fantastisches Raumklima, das insbesondere Allergiker aufatmen lässt.
STREIF Leistungen sind MEHR WERT - schon im Grundpreis enthalten!
- 16-monatige Festpreisgarantie
- Energieeffizienzhaus KfW 40 EE im Standard
- Inkl. individuelle Grundrissgestaltung und Raumaufteilung
- Inkl. Fundamentplatte
- Inkl. STREIF-Luft-Luft-Wärmepumpe mit integrierter
Lüftungsanlage mit Wärmerückgewinnung
- Inkl. Haustür von KERA und Fenster von Porta/Kömmerling
- Inkl. Massivholz-Geschosstreppe aus eigener Produktion
- Inkl. Sanitärobjekte von Markenherstellern
- Inkl. Elektroinstallation
- Inkl. Baubetreuung u.v.m.
Die hohe Wertigkeit und Langlebigkeit eines STREIF-Energiespar-Hauses wird durch zahlreiche Auszeichnungen, Qualitäts- und Gütesiegel unabhängiger Institute und Verbände dokumentiert.
Der Angebotspreis ist inklusive Grundstück und bezieht sich auf die Standard-Ausbaustufe Fast-Fertig-Plus. Ihre Eigenleistungen: Spachtel-,Tapezier- und Malerarbeiten, Bodenbeläge, Innentüren.
Baunebenkosten fallen zuzüglich an.
Der Verkauf des Grundstücks erfolgt über einen unserer Netzwerkpartner.
Bilder können evtl. Anbauteile, Carports, Balkone, Gauben usw. zeigen, die nicht im Angebotspreis enthalten sind. Änderungen und Irrtümer vorbehalten.
Sonstige Informationen
Nutzen Sie die Kraft der Sonne für ein nachhaltiges und komfortables Zuhause! Mit unserem innovativen Heizsystem, das nahtlos mit einem Hauskraftwerk kombiniert ist, genießen Sie Heizen, Lüften und Warmwasser aus einer Hand. Die STREIF-Luft-Luft-Wärmepumpen-Technologie sorgt für eine beeindruckende Wärmerückgewinnung von bis zu 85%, während die integrierte Be- und Entlüftungsanlage für frische Luft sorgt.
Zusätzlich profitieren Sie von einer separaten Trinkwasserwärmepumpe mit einem großzügigen 300-Liter-Warmwasserspeicher und einem G4-Frischluftfilter, der Staub und Pollen reduziert.
Die Vorteile sprechen für sich: Keine störenden Heizkörper, keine fossilen Brennstoffe wie Öl und Gas, kein Bedarf an Gasanschlüssen oder Lagerflächen für Öl und Pellets, und keine Erdbohrungen erforderlich!
Gestalten Sie Ihr Zuhause umweltfreundlich und effizient - für ein besseres Leben und eine bessere Zukunft!
Zusätzlich profitieren Sie von einer separaten Trinkwasserwärmepumpe mit einem großzügigen 300-Liter-Warmwasserspeicher und einem G4-Frischluftfilter, der Staub und Pollen reduziert.
Die Vorteile sprechen für sich: Keine störenden Heizkörper, keine fossilen Brennstoffe wie Öl und Gas, kein Bedarf an Gasanschlüssen oder Lagerflächen für Öl und Pellets, und keine Erdbohrungen erforderlich!
Gestalten Sie Ihr Zuhause umweltfreundlich und effizient - für ein besseres Leben und eine bessere Zukunft!
Lage des Objektes
Entdecken Sie Ihr Traumzuhause! Dieses wunderschöne Einfamilienhaus befindet sich in einer äußerst familienfreundlichen Lage in Schiffweiler, die Ihnen und Ihren Liebsten ein harmonisches und glückliches Leben bietet. Hier finden Sie nicht nur ein Zuhause, sondern auch einen Ort, an dem Erinnerungen geschaffen werden. Lassen Sie sich von der einladenden Atmosphäre und der idealen Umgebung für Familien begeistern!
Das Haus ist auf einem realen Baugrundstück geplant oder auf einem Grundstück in einer Planungsphase. Das Grundstück erwerben Sie direkt vom Eigentümer. Der Preis des Grundstücks ist im Angebotspreis bereits eingerechnet.
Bitte haben Sie Verständnis dafür, dass wir ohne ein persönliches Gespräch keine Grundstücksdaten weiterleiten können.
Gern sind wir bei der Wahl Ihres Traumgrundstückes behilflich!
Natürlich können wir ihren Haustraum auch auf einem anderen Grundstück realisieren, lassen Sie sich dazu in einem unverbindlichen Gespräch zu Ihrem Bauvorhaben beraten.
Das Haus ist auf einem realen Baugrundstück geplant oder auf einem Grundstück in einer Planungsphase. Das Grundstück erwerben Sie direkt vom Eigentümer. Der Preis des Grundstücks ist im Angebotspreis bereits eingerechnet.
Bitte haben Sie Verständnis dafür, dass wir ohne ein persönliches Gespräch keine Grundstücksdaten weiterleiten können.
Gern sind wir bei der Wahl Ihres Traumgrundstückes behilflich!
Natürlich können wir ihren Haustraum auch auf einem anderen Grundstück realisieren, lassen Sie sich dazu in einem unverbindlichen Gespräch zu Ihrem Bauvorhaben beraten.
Anbieter kontaktieren
Kontakt
| Telefon | +49 681 70947955 |
| Mobil | +49 160 7038141 |
| Website | www.streif.de |
