Für die ganze Familie - Eneriesparhaus in schöner Lage
489.000 €
Kaufpreis
140 m²
Wohnfläche
140 m²
Nutzfläche
4
Zimmer
immobilien.de Nr.: 9274775
Objektnummer: BV100521555
Preise & Kosten
| Kaufpreis | 489.000 € |
| Nebenkosten | keine Angabe |
Größe & Zustand
| Wohnfläche | 140 m² |
| Nutzfläche | 140 m² |
| Grundstücksfläche | 540 m² |
| Zimmer | 4 |
| Baujahr | 2025 |
| Verfügbar ab | keine Angabe |
Energie
| Energietyp | KfW-40 |
| Heizungsart | Zentralheizung |
| Energieträger/Befeuerung | Luft-Wärme-Pumpe |
Objektbeschreibung
Anfragen per Telefon: 017661370032
Ich freue mich auf Ihren Anruf
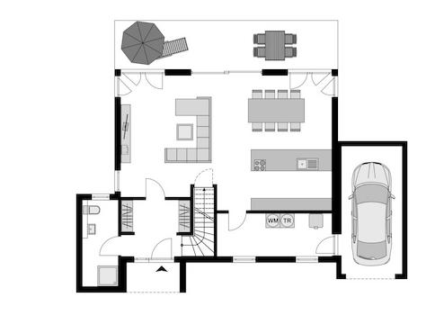
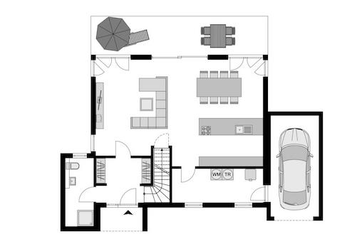
Der Hausentwurf ist gekennzeichnet von einer klassischen Architektur und punktet in der Grundrissgestaltung mit 4 Schlafzimmern und 2 Bädern. Das Erdgeschoss bietet einen Wohn-/Ess- und Kochbereich, der über die Anordnung von 6 Terrassentüren, die an drei Hausseiten verteilt sind, viel Tageslicht in die Raum bringt. Ein zusätzliches Zimmer im EG, das als Schlaf-, Gäste- oder Arbeitszimmer nutzbar ist und ein Duschbad machen auch das Wohnen auf einer Etage, z. B. im Alter oder Krankheitsfall, möglich. Komplettiert wird die Etage durch einen Hauswirtschafts-/Haustechnikraum. Im Obergeschoss befinden sich 3 Schlafräume, einer davon verfügt über einen separaten Ankleidebereich. Ein Familienbad mit Wanne und Dusche sowie ein Flur vervollständigen das Raumangebot im Dachgeschoss.
Der gezeigte Hausentwurf ist ein Gestaltungsvorschlag. Individuelle Anpassungen wie z. B. Hausgröße, Dachgeometrie, Fenstergrößen-/ und -position sind möglich. Fragen Sie Ihre persönliche STREIF-Bauberatung.
Ich freue mich auf Ihren Anruf
Der Hausentwurf ist gekennzeichnet von einer klassischen Architektur und punktet in der Grundrissgestaltung mit 4 Schlafzimmern und 2 Bädern. Das Erdgeschoss bietet einen Wohn-/Ess- und Kochbereich, der über die Anordnung von 6 Terrassentüren, die an drei Hausseiten verteilt sind, viel Tageslicht in die Raum bringt. Ein zusätzliches Zimmer im EG, das als Schlaf-, Gäste- oder Arbeitszimmer nutzbar ist und ein Duschbad machen auch das Wohnen auf einer Etage, z. B. im Alter oder Krankheitsfall, möglich. Komplettiert wird die Etage durch einen Hauswirtschafts-/Haustechnikraum. Im Obergeschoss befinden sich 3 Schlafräume, einer davon verfügt über einen separaten Ankleidebereich. Ein Familienbad mit Wanne und Dusche sowie ein Flur vervollständigen das Raumangebot im Dachgeschoss.
Der gezeigte Hausentwurf ist ein Gestaltungsvorschlag. Individuelle Anpassungen wie z. B. Hausgröße, Dachgeometrie, Fenstergrößen-/ und -position sind möglich. Fragen Sie Ihre persönliche STREIF-Bauberatung.
Ausstattung
| Anzahl der Etagen im Haus | 2 |
| Küche | Einbauküche |
| Bad | 2 |
STREIF-Häuser sind Energiesparhäuser. Die Außenwände im Passiv-Haus-Standard und eine sparsame Heiztechnik mit integrierter Wohnraumlüftung und Wärmerückgewinnung, garantieren einen geringen Energieverbrauch und ein fantastisches Raumklima, das insbesondere Allergiker aufatmen lässt.
STREIF Leistungen sind MEHR WERT - schon im Grundpreis enthalten!
- 16-monatige Festpreisgarantie
- Energieeffizienzhaus KfW 40 EE im Standard
- Inkl. individuelle Grundrissgestaltung und Raumaufteilung
- Inkl. Fundamentplatte
- Inkl. STREIF-Luft-Luft-Wärmepumpe mit integrierter
Lüftungsanlage mit Wärmerückgewinnung
- Inkl. Haustür von KERA und Fenster von Porta/Kömmerling
- Inkl. Massivholz-Geschosstreppe aus eigener Produktion
- Inkl. Elektroinstallation
- Inkl. Baubetreuung u.v.m.
Die hohe Wertigkeit und Langlebigkeit eines STREIF-Energiespar-Hauses wird durch zahlreiche Auszeichnungen, Qualität- und Gütesiegel unabhängiger Institute und Verbände dokumentiert.
Der Angebotspreis ist inklusive Grundstück und bezieht sich auf die Standard-Ausbaustufe Fast-Fertig+. Malerarbeiten, Bodenbeläge, können auf Wunsch von Streif ausgeführt werden oder sind Eigenleistung.
Bilder können evtl. Anbauteile, Carports, Balkone, Gauben usw. zeigen, die nicht im Angebotspreis enthalten sind. Änderungen und Irrtümer vorbehalten.
STREIF Leistungen sind MEHR WERT - schon im Grundpreis enthalten!
- 16-monatige Festpreisgarantie
- Energieeffizienzhaus KfW 40 EE im Standard
- Inkl. individuelle Grundrissgestaltung und Raumaufteilung
- Inkl. Fundamentplatte
- Inkl. STREIF-Luft-Luft-Wärmepumpe mit integrierter
Lüftungsanlage mit Wärmerückgewinnung
- Inkl. Haustür von KERA und Fenster von Porta/Kömmerling
- Inkl. Massivholz-Geschosstreppe aus eigener Produktion
- Inkl. Elektroinstallation
- Inkl. Baubetreuung u.v.m.
Die hohe Wertigkeit und Langlebigkeit eines STREIF-Energiespar-Hauses wird durch zahlreiche Auszeichnungen, Qualität- und Gütesiegel unabhängiger Institute und Verbände dokumentiert.
Der Angebotspreis ist inklusive Grundstück und bezieht sich auf die Standard-Ausbaustufe Fast-Fertig+. Malerarbeiten, Bodenbeläge, können auf Wunsch von Streif ausgeführt werden oder sind Eigenleistung.
Bilder können evtl. Anbauteile, Carports, Balkone, Gauben usw. zeigen, die nicht im Angebotspreis enthalten sind. Änderungen und Irrtümer vorbehalten.
Lage des Objektes
Im idyllischen Westerngrund erwartet Sie ein Baugrundstück in herrlicher Feldrandlage - mitten im Grünen des Spessarts und dennoch gut angebunden. Der ehemalige EU-Mittelpunkt liegt nur ca. 2,4 km entfernt.
In direkter Umgebung laden gemütliche Gaststuben und das überregional bekannte Kapellen Café zum Verweilen ein. Im nahen finden Sie zusätzlich Bäcker, Lebensmittelgeschäft, weitere Gastronomie sowie die Grundschule.
Die Marktgemeinde Schöllkrippen (ca. 5 km) bietet eine komplette Infrastruktur mit Einkaufsmöglichkeiten, Ärzten, Apotheken, Schulen, Kitas sowie Restaurants und Cafés.
Über den Bahnhof Schöllkrippen sind Sie mit der Kahlgrundbahn direkt nach Hanau und Aschaffenburg angebunden, mit Anschluss ins Rhein-Main-Gebiet. Busse fahren regelmäßig nach Gelnhausen (ca. 25 Minuten Fahrzeit). Mit dem Auto erreichen Sie Aschaffenburg in ca. 25 km, Hanau in 28 Minuten und Frankfurt am Main in rund 40 Minuten.
In direkter Umgebung laden gemütliche Gaststuben und das überregional bekannte Kapellen Café zum Verweilen ein. Im nahen finden Sie zusätzlich Bäcker, Lebensmittelgeschäft, weitere Gastronomie sowie die Grundschule.
Die Marktgemeinde Schöllkrippen (ca. 5 km) bietet eine komplette Infrastruktur mit Einkaufsmöglichkeiten, Ärzten, Apotheken, Schulen, Kitas sowie Restaurants und Cafés.
Über den Bahnhof Schöllkrippen sind Sie mit der Kahlgrundbahn direkt nach Hanau und Aschaffenburg angebunden, mit Anschluss ins Rhein-Main-Gebiet. Busse fahren regelmäßig nach Gelnhausen (ca. 25 Minuten Fahrzeit). Mit dem Auto erreichen Sie Aschaffenburg in ca. 25 km, Hanau in 28 Minuten und Frankfurt am Main in rund 40 Minuten.
Anbieter kontaktieren
Kontakt
| Mobil | +49 176 61370032 |
| Website | www.streif.de |
