Raus aus der Miete !
506.700 €
Kaufpreis
176 m²
Wohnfläche
6
Zimmer
immobilien.de Nr.: 9271177
Objektnummer: 251090A008-250930RadM
Preise & Kosten
| Kaufpreis | 506.700 € |
| Nebenkosten | keine Angabe |
| Stellplatz Garage Kaufpreis | 9.000 € |
Größe & Zustand
| Wohnfläche | 176 m² |
| Grundstücksfläche | 420 m² |
| Zimmer | 6 |
| Baujahr | 2026 |
| Verfügbar ab | nach Vereinbarung |
| Zustand | Erstbezug |
Energie
| Energieausweistyp | Verbrauch |
| Baujahr (laut Energieausweis) | 2026 |
| Energietyp | Niedrigenergie, Neubaustandard, KfW-40 |
| Energieverbrauchkennwert | 33.00 kWh/(m²*a) |
| Heizungsart | Zentralheizung |
| Wesentlicher Energieträger | Strom |
| Energieträger/Befeuerung | Luft-Wärme-Pumpe |
Objektbeschreibung
Wenn Sie nicht weiter Miete-, sondern für Ihr eigenes Zuhause zahlen wollen, ist unser Konzept jetzt genau das Richtige !
Nehmen Sie sich die Zeit und lassen Sie uns gemeinsam darüber reden, wie es auch ohne Eigenkapital möglich ist, dass ihre Familie eine Zukunft im Eigenheim genießen kann.
Thomas Heitz 0160/7038141 oder thomas.heitz@streif.de
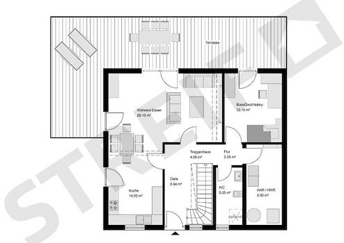
Das behagliche Haus mit Satteldach punktet mit einem gut durchdachten Grundriss. Der offen gestaltete Wohn-/Ess- und Kochbereich ist lichtdurchflutet. Ein praktischer Hauswirtschaftsraum ist direkt neben der Küche platziert. Komplettiert wird das Raumangebot im Erdgeschoss mit einem Gäste-WC, das optional auch als Duschbad ausgeführt werden kann, einer Diele und einem Haustechnikraum.
Im Dachgeschoss des Hauses sind zwei schöne Kinderzimmer, ein Elternschlafzimmer, ein Flur und ein Familienbad untergebracht. Die Lage der Treppe und des Haustechnikraumes sind fixiert.
Objektart: Einfamilienhaus, 1,5-geschossig
Dachform: Satteldach
Kniestock: 1,00m
Nehmen Sie sich die Zeit und lassen Sie uns gemeinsam darüber reden, wie es auch ohne Eigenkapital möglich ist, dass ihre Familie eine Zukunft im Eigenheim genießen kann.
Thomas Heitz 0160/7038141 oder thomas.heitz@streif.de
Das behagliche Haus mit Satteldach punktet mit einem gut durchdachten Grundriss. Der offen gestaltete Wohn-/Ess- und Kochbereich ist lichtdurchflutet. Ein praktischer Hauswirtschaftsraum ist direkt neben der Küche platziert. Komplettiert wird das Raumangebot im Erdgeschoss mit einem Gäste-WC, das optional auch als Duschbad ausgeführt werden kann, einer Diele und einem Haustechnikraum.
Im Dachgeschoss des Hauses sind zwei schöne Kinderzimmer, ein Elternschlafzimmer, ein Flur und ein Familienbad untergebracht. Die Lage der Treppe und des Haustechnikraumes sind fixiert.
Objektart: Einfamilienhaus, 1,5-geschossig
Dachform: Satteldach
Kniestock: 1,00m
Ausstattung
| Anzahl der Etagen im Haus | 2 |
| Küche | Offene Küche |
| Bad | 1 |
| Bad | Dusche, Wanne, Fenster |
| Boden | Fliesen, Stein, Teppich, Parkett, Fertigparkett, Laminat, Kunststoff, Linoleum, Marmor, Granit |
| Terrassen | 1 |
| Barrierefrei | |
| Garage/Stellplätze | 1 |
Erstklassige Materialien warten darauf, Ihr Eigen zu werden. Wir verbauen für Sie ausschließlich Produkte von namhaften Herstellern in bester Qualität. Und das Beste, Sie haben die Möglichkeit, durch Eigenleistung beim Innenausbau die Finanzierungsquote zu verbessern und dadurch eine Finanzierung gestalten zu können, die es Ihnen in Zukunft leicht macht, anstatt Miete in Ihr eigenes Haus zu investieren. Fragen Sie uns einfach nach unseren Möglichkeiten im Finanzierungsbereich.
Das Haus wird in Niedrigenergiebauweise KfW 40 gebaut.
Die niedrigen Heizkosten inklusive Warmwasseraufbereitung erreichen wir durch eine Wärmepumpe in Verbindung mit einer kontrollierten Be-und Entlüftungsanlage mit Wärmerückgewinnung.
Sämtliche für den Innenausbau erforderlichen Materialien in Handwerkerqualität sind im Preis enthalten.
Sie können den Innenausbau teilweise selbst durchführen und dadurch zusätzliches Eigenkapital bilden oder die Arbeiten stufenweise bis zur einzugsfertigen Erstellung bei uns beauftragen.
Die zum Einsatz kommenden Materialien beziehen wir ausschließlich von namhaften Herstellern.
Das Haus wird in Niedrigenergiebauweise KfW 40 gebaut.
Die niedrigen Heizkosten inklusive Warmwasseraufbereitung erreichen wir durch eine Wärmepumpe in Verbindung mit einer kontrollierten Be-und Entlüftungsanlage mit Wärmerückgewinnung.
Sämtliche für den Innenausbau erforderlichen Materialien in Handwerkerqualität sind im Preis enthalten.
Sie können den Innenausbau teilweise selbst durchführen und dadurch zusätzliches Eigenkapital bilden oder die Arbeiten stufenweise bis zur einzugsfertigen Erstellung bei uns beauftragen.
Die zum Einsatz kommenden Materialien beziehen wir ausschließlich von namhaften Herstellern.
Sonstige Informationen
Energiequelle Sonne !
Unser optimales Heizsystem in Verbindung mit einem Hauskraftwerk sind bereits enthalten
Heizen, Lüften und Warmwasser mit einem System
- STREIF-Luft-Luft-Wärmepumpen-Technologe (Basissystem), mit bis zu 85% Wärmerükgewinnung
- Integrierte Be- und Entlüftungsanlage
- Separate Trinkwasserwärmepumpe mit 300 L Warmwasserspeicher
- G4-Frischluftfilter zur Reduzierung von Staub und Pollen
Vorteile:
- Keine störenden Heizkörper
- Keine fossilen Brennstoffe wie Öl und Gas
- Kein Gasanschluss, kein Öl- oder Pelletslager
- Keine Erdbohrung
Unser optimales Heizsystem in Verbindung mit einem Hauskraftwerk sind bereits enthalten
Heizen, Lüften und Warmwasser mit einem System
- STREIF-Luft-Luft-Wärmepumpen-Technologe (Basissystem), mit bis zu 85% Wärmerükgewinnung
- Integrierte Be- und Entlüftungsanlage
- Separate Trinkwasserwärmepumpe mit 300 L Warmwasserspeicher
- G4-Frischluftfilter zur Reduzierung von Staub und Pollen
Vorteile:
- Keine störenden Heizkörper
- Keine fossilen Brennstoffe wie Öl und Gas
- Kein Gasanschluss, kein Öl- oder Pelletslager
- Keine Erdbohrung
Lage des Objektes
Das Grundstück liegt in zentraler Lage von Ensdorf.
Der Verkauf des Grundstücks erfolgt über den anbietenden Immobilienmakler direkt durch den Eigentümer.
Das Haus ist auf einem realen Baugrundstück geplant oder auf einem Grundstück in einer Planungsphase. Das Grundstück erwerben Sie direkt vom Eigentümer. Der Preis des Grundstücks ist im Angebotspreis bereits eingerechnet.
Bitte haben Sie Verständnis dafür, dass wir ohne ein persönliches Gespräch keine Grundstücksdaten weiterleiten können.
Gern sind wir bei der Wahl Ihres Traumgrundstückes behilflich!
Natürlich können wir ihren Haustraum auch auf einem anderen Grundstück realisieren, lassen Sie sich dazu in einem unverbindlichen Gespräch zu Ihrem Bauvorhaben beraten.
Der Verkauf des Grundstücks erfolgt über den anbietenden Immobilienmakler direkt durch den Eigentümer.
Das Haus ist auf einem realen Baugrundstück geplant oder auf einem Grundstück in einer Planungsphase. Das Grundstück erwerben Sie direkt vom Eigentümer. Der Preis des Grundstücks ist im Angebotspreis bereits eingerechnet.
Bitte haben Sie Verständnis dafür, dass wir ohne ein persönliches Gespräch keine Grundstücksdaten weiterleiten können.
Gern sind wir bei der Wahl Ihres Traumgrundstückes behilflich!
Natürlich können wir ihren Haustraum auch auf einem anderen Grundstück realisieren, lassen Sie sich dazu in einem unverbindlichen Gespräch zu Ihrem Bauvorhaben beraten.
Anbieter kontaktieren
Kontakt
| Telefon | +49 681 70947955 |
| Mobil | +49 160 7038141 |
| Website | www.streif.de |
