MÜNCHNER IG: SOFORT FREI - Attraktive & schöne Wohnung in begehrter Lage mit Potential!
468.510 €
Kaufpreis
83,13 m²
Wohnfläche
3
Zimmer
immobilien.de Nr.: 9264896
Objektnummer: A270811930#s9kFR
Preise & Kosten
| Kaufpreis | 468.510 € |
| Nebenkosten | keine Angabe |
| Hausgeld | 250 € |
| Maklerprovision | 3,57 % |
| Stellplatz Garage Kaufpreis | 25.000 € |
Größe & Zustand
| Wohnfläche | 83,13 m² |
| Zimmer | 3 |
| Baujahr | 1984 |
| Verfügbar ab | sofort |
| Zustand | Gepflegt |
Energie
| Energieausweistyp | Verbrauch |
| Ausstellungsdatum | 22. 09. 2025 |
| Gültig bis | 21.09.2035 |
| Baujahr (laut Energieausweis) | 1984 |
| Energieeffizienzklasse | E |
| Energieverbrauchkennwert | 142.82 kWh/(m²*a) |
| Wesentlicher Energieträger | Öl |
| Energieträger/Befeuerung | Öl |
Objektbeschreibung
Diese gemütliche Maisonette-Wohnung in ruhiger Wohnlage von Planegg bietet mit ca. 83 m² Wohnfläche und drei gut geschnittenen Zimmern viel Potenzial und Gestaltungsmöglichkeiten für individuelles Wohnen. Sie befindet sich im ersten Obergeschoss eines gepflegten Mehrfamilienhauses aus dem Jahr 1984 und überzeugt durch ihre solide Bauweise sowie die funktionale Raumaufteilung über zwei Ebenen.
Im unteren Wohnbereich befindet sich der großzügige Wohn- und Essbereich mit Zugang zum überdachten Balkon, der nach Westen ausgerichtet ist und angenehme Sonnenstunden am Nachmittag ermöglicht. Die Küche ist separat gehalten und bietet nicht nur eine voll ausgestattete Einbauküche mit sämtlichen Elektrogroßgeräten, sondern auch ausreichend Platz für einen Esstisch – ideal für gemütliche Familienmahlzeiten oder geselliges Beisammensitzen.
Ein praktisches Gäste-WC befindet sich ebenfalls auf dieser Ebene und unterstreicht die durchdachte Planung der Wohnung.
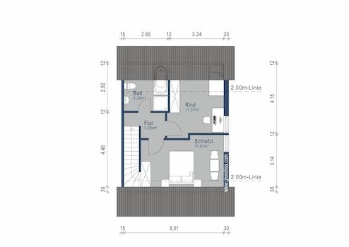
Über eine innenliegende Treppe gelangen Sie in das obere Geschoss, das sich als privater Rückzugsort eignet. Hier finden sich zwei Schlafräume sowie das Badezimmer. Das Tageslichtbad verfügt über eine Badewanne, eine separate Dusche, ein Waschbecken sowie ein Fenster – funktional ausgestattet und in einem gepflegtem Zustand.
Ein fester Stellplatz in der Doppelgarage gehört ebenfalls zur Wohnung und sorgt für komfortables Parken direkt am Haus.
Zur Wohnung gehört ein eigener Kellerabteil, der zusätzlichen Stauraum für Haushaltsgegenstände, Fahrräder oder saisonale Utensilien bietet.
Die Wohnung befindet sich insgesamt in einem gepflegten Zustand und bietet somit viel Spielraum für persönliche Gestaltungsideen. Sie eignet sich besonders für Käufer, die eine solide Basis suchen und bereit sind, mit überschaubarem Aufwand ein gemütliches Zuhause nach eigenen Vorstellungen zu schaffen.
Die Lage innerhalb Planeggs ist ruhig und gleichzeitig gut angebunden – Einkaufsmöglichkeiten, öffentliche Verkehrsmittel und das Naherholungsgebiet entlang der Würm sind schnell erreichbar. Ein ideales Umfeld für alle, die naturnah und gleichzeitig stadtnah wohnen möchten.
Der Kaufpreis setzt sich zusammen:
Wohnung 468.500,00 €
Garage 25.000,00 €
Küche inkl. Elektrogroßgeräte 1.500,00 €
____________________________________________
Gesamtkaufpreis 495.000,00 €
Im unteren Wohnbereich befindet sich der großzügige Wohn- und Essbereich mit Zugang zum überdachten Balkon, der nach Westen ausgerichtet ist und angenehme Sonnenstunden am Nachmittag ermöglicht. Die Küche ist separat gehalten und bietet nicht nur eine voll ausgestattete Einbauküche mit sämtlichen Elektrogroßgeräten, sondern auch ausreichend Platz für einen Esstisch – ideal für gemütliche Familienmahlzeiten oder geselliges Beisammensitzen.
Ein praktisches Gäste-WC befindet sich ebenfalls auf dieser Ebene und unterstreicht die durchdachte Planung der Wohnung.
Über eine innenliegende Treppe gelangen Sie in das obere Geschoss, das sich als privater Rückzugsort eignet. Hier finden sich zwei Schlafräume sowie das Badezimmer. Das Tageslichtbad verfügt über eine Badewanne, eine separate Dusche, ein Waschbecken sowie ein Fenster – funktional ausgestattet und in einem gepflegtem Zustand.
Ein fester Stellplatz in der Doppelgarage gehört ebenfalls zur Wohnung und sorgt für komfortables Parken direkt am Haus.
Zur Wohnung gehört ein eigener Kellerabteil, der zusätzlichen Stauraum für Haushaltsgegenstände, Fahrräder oder saisonale Utensilien bietet.
Die Wohnung befindet sich insgesamt in einem gepflegten Zustand und bietet somit viel Spielraum für persönliche Gestaltungsideen. Sie eignet sich besonders für Käufer, die eine solide Basis suchen und bereit sind, mit überschaubarem Aufwand ein gemütliches Zuhause nach eigenen Vorstellungen zu schaffen.
Die Lage innerhalb Planeggs ist ruhig und gleichzeitig gut angebunden – Einkaufsmöglichkeiten, öffentliche Verkehrsmittel und das Naherholungsgebiet entlang der Würm sind schnell erreichbar. Ein ideales Umfeld für alle, die naturnah und gleichzeitig stadtnah wohnen möchten.
Der Kaufpreis setzt sich zusammen:
Wohnung 468.500,00 €
Garage 25.000,00 €
Küche inkl. Elektrogroßgeräte 1.500,00 €
____________________________________________
Gesamtkaufpreis 495.000,00 €
Ausstattung
| Küche | Einbauküche |
| Bad | 1 |
| Bad | Dusche, Wanne, Fenster |
| Boden | Fliesen, Teppich |
| Balkone | 1 |
| Garage/Stellplätze | 1 |
| Keller |
ALLGEMEIN:
+ Stellplatz ebenerdig in der Doppelgarage
+ gepflegtes Treppenhaus
+ Kellerabteil
+ Heizung für 2 Parteien im UG
WOHNUNG:
+ überdachter Balkon
+ Einbauküche inkl. Elektrogroßgeräte
+ Badezimmer ausgestattet mit: Badewanne, Dusche, Handwaschbecken, WC und Fenster
+ Gegensprechanlage
+ Fliesen in: Küche, Gäste WC, Badezimmer
+ Fliesen im Wohnzimmer, Teppich in den zwei Schlafzimmern
+ Einbauschränke
+ Glasfaserinternet möglich
+ Satellit-Anschluss vorhanden
+ Rollläden teilweise vorhanden
+ Stellplatz ebenerdig in der Doppelgarage
+ gepflegtes Treppenhaus
+ Kellerabteil
+ Heizung für 2 Parteien im UG
WOHNUNG:
+ überdachter Balkon
+ Einbauküche inkl. Elektrogroßgeräte
+ Badezimmer ausgestattet mit: Badewanne, Dusche, Handwaschbecken, WC und Fenster
+ Gegensprechanlage
+ Fliesen in: Küche, Gäste WC, Badezimmer
+ Fliesen im Wohnzimmer, Teppich in den zwei Schlafzimmern
+ Einbauschränke
+ Glasfaserinternet möglich
+ Satellit-Anschluss vorhanden
+ Rollläden teilweise vorhanden
Sonstige Informationen
Die von uns erstellten Grundrisse und Darstellungen dienen lediglich zur Information und können abweichen zu den tatsächlichen Maßen haben. Die dargestellten Einrichtungen sind nicht im Kaufpreis enthalten und dienen lediglich als Gestaltungsvorschlag.
Sie sind interessiert? Wir freuen uns auf ihre Kontaktaufnahme.
Der Verkauf der Immobilie erfolgt im Alleinauftrag. Irrtümer und Zwischenverkauf vorbehalten. Wenn Sie auch eine ähnliche Immobilie verkaufen möchten können Sie uns gerne jederzeit kontaktieren. Wir bewerten diese professionell und für Sie kostenfrei!
Sie sind interessiert? Wir freuen uns auf ihre Kontaktaufnahme.
Der Verkauf der Immobilie erfolgt im Alleinauftrag. Irrtümer und Zwischenverkauf vorbehalten. Wenn Sie auch eine ähnliche Immobilie verkaufen möchten können Sie uns gerne jederzeit kontaktieren. Wir bewerten diese professionell und für Sie kostenfrei!
Lage des Objektes
Die Wohnung befindet sich in einer besonders gefragten Wohnlage im westlichen Teil von Planegg, einer der beliebtesten Gemeinden im Münchner Umland. Das direkte Umfeld ist geprägt von einer gewachsenen, ruhigen Wohnbebauung mit viel Grün und einer angenehmen Nachbarschaft. Trotz der ruhigen Atmosphäre bietet die Lage eine hervorragende Anbindung an das öffentliche Verkehrsnetz sowie an wichtige Verkehrsachsen Richtung München und Umgebung.
Die S-Bahn-Station Planegg (S6) ist bequem zu Fuß oder mit dem Fahrrad erreichbar und ermöglicht eine schnelle Anbindung an die Münchner Innenstadt – die Fahrzeit zum Marienplatz beträgt rund 25 Minuten. Auch die Busverbindungen in der Umgebung sorgen für eine gute Erreichbarkeit des örtlichen Zentrums sowie der umliegenden Gemeinden.
Planegg selbst bietet eine ausgezeichnete Infrastruktur: Zahlreiche Einkaufsmöglichkeiten für den täglichen Bedarf, Bäckereien, Apotheken, Ärzte, Banken und kleinere Fachgeschäfte sind in der Nähe vorhanden. Darüber hinaus verfügt der Ort über ein vielfältiges gastronomisches Angebot, von traditionellen bayerischen Wirtshäusern bis hin zu internationalen Restaurants und Cafés.
Für Familien ist die Lage ebenfalls sehr attraktiv. Kindergärten, Grundschule und weiterführende Schulen befinden sich in unmittelbarer Umgebung und sind gut erreichbar. Auch das schulische Angebot im angrenzenden Martinsried sowie in Gräfelfing und Gauting erweitert die Auswahl deutlich.
Ein großer Pluspunkt dieser Lage ist die Nähe zur Natur: Der Würm-Grünzug mit seinen Spazier- und Radwegen ist in wenigen Minuten erreichbar und lädt zu vielfältigen Freizeitaktivitäten im Grünen ein. Auch der nahegelegene Forst Kasten, der Waldpark Planegg und der Pasinger Stadtpark bieten Erholungsmöglichkeiten und Naturerlebnisse direkt vor der Haustür.
Durch die Nähe zum Campus Martinsried mit zahlreichen Instituten, Kliniken und Forschungseinrichtungen (u. a. Max-Planck-Institute, BioTech-Cluster) ist die Lage auch für Berufstätige im wissenschaftlichen oder medizinischen Bereich besonders interessant.
Insgesamt handelt es sich um eine Wohnlage, die hohe Lebensqualität, naturnahe Umgebung und städtische Anbindung auf ideale Weise verbindet – ein perfekter Standort für alle, die die Vorzüge des Münchner Umlands zu schätzen wissen.
Die S-Bahn-Station Planegg (S6) ist bequem zu Fuß oder mit dem Fahrrad erreichbar und ermöglicht eine schnelle Anbindung an die Münchner Innenstadt – die Fahrzeit zum Marienplatz beträgt rund 25 Minuten. Auch die Busverbindungen in der Umgebung sorgen für eine gute Erreichbarkeit des örtlichen Zentrums sowie der umliegenden Gemeinden.
Planegg selbst bietet eine ausgezeichnete Infrastruktur: Zahlreiche Einkaufsmöglichkeiten für den täglichen Bedarf, Bäckereien, Apotheken, Ärzte, Banken und kleinere Fachgeschäfte sind in der Nähe vorhanden. Darüber hinaus verfügt der Ort über ein vielfältiges gastronomisches Angebot, von traditionellen bayerischen Wirtshäusern bis hin zu internationalen Restaurants und Cafés.
Für Familien ist die Lage ebenfalls sehr attraktiv. Kindergärten, Grundschule und weiterführende Schulen befinden sich in unmittelbarer Umgebung und sind gut erreichbar. Auch das schulische Angebot im angrenzenden Martinsried sowie in Gräfelfing und Gauting erweitert die Auswahl deutlich.
Ein großer Pluspunkt dieser Lage ist die Nähe zur Natur: Der Würm-Grünzug mit seinen Spazier- und Radwegen ist in wenigen Minuten erreichbar und lädt zu vielfältigen Freizeitaktivitäten im Grünen ein. Auch der nahegelegene Forst Kasten, der Waldpark Planegg und der Pasinger Stadtpark bieten Erholungsmöglichkeiten und Naturerlebnisse direkt vor der Haustür.
Durch die Nähe zum Campus Martinsried mit zahlreichen Instituten, Kliniken und Forschungseinrichtungen (u. a. Max-Planck-Institute, BioTech-Cluster) ist die Lage auch für Berufstätige im wissenschaftlichen oder medizinischen Bereich besonders interessant.
Insgesamt handelt es sich um eine Wohnlage, die hohe Lebensqualität, naturnahe Umgebung und städtische Anbindung auf ideale Weise verbindet – ein perfekter Standort für alle, die die Vorzüge des Münchner Umlands zu schätzen wissen.
Anbieter kontaktieren
Anbieter
Münchner IG Immobilienmanagement GmbH
Edelsbergstr. 6
80686 München
Kontakt
| Telefon | 089 99 82 974 10 |
| Fax | 089 99 82 974 99 |
| Website | www.muenchner-ig.com |
