Exklusives Einfamilienhaus in Feldmoching - Wohnen mit Stil, Komfort und naturnahem Lebensgefühl
1.200.000 €
Kaufpreis
120 m²
Wohnfläche
4
Zimmer
immobilien.de Nr.: 9228794
Objektnummer: 899002
Preise & Kosten
| Kaufpreis | 1.200.000 € |
| Nebenkosten | keine Angabe |
| Maklerprovision | 3,57 % (inkl. MwSt.) |
| Stellplatz Carport Kaufpreis | 25.000 € |
Größe & Zustand
| Wohnfläche | 120 m² |
| Grundstücksfläche | 379 m² |
| Zimmer | 4 |
| Baujahr | 2013 |
| Verfügbar ab | sofort |
| Zustand | Gepflegt |
Energie
| Energieausweistyp | Verbrauch |
| Ausstellungsdatum | 25. 02. 2020 |
| Baujahr (laut Energieausweis) | 2013 |
| Energieeffizienzklasse | B |
| Energieverbrauchkennwert | 51.3 kWh/(m²*a) |
| Wesentlicher Energieträger | Strom |
| Energieträger/Befeuerung | Elektro |
Objektbeschreibung
Dieses moderne, freistehende Einfamilienhaus in hochwertiger Ziegelbauweise vereint zeitgemäßen Wohnkomfort mit nachhaltiger Energieeffizienz und einer familienfreundlichen Umgebung im beliebten Münchner Stadtteil Feldmoching.
Das Haus überzeugt mit einer durchdachten Raumaufteilung auf fünf Zimmern, einem sonnigen Garten, einer großzügigen Terrasse mit Terrassendach mit Markise sowie nachhaltiger Haustechnik wie Luft-/ Wasserwärmepumpe, Solaranlage zur Warmwasserbereitung und dreifachverglaste Fenster für beste Wärmedämmung und Ruhe.
Dank der energieeffizienten Bauweise in Kombination mit einer modernen Luft-/Wärmepumpe genießen Sie in diesem Zuhause nicht nur ein angenehmes Raumklima, sondern auch langfristig niedrige Energiekosten - Ideal für entspanntes und nachhaltiges Wohnen.
Eine Ziegelbauweise mit Schaumfüllung zeichnet sich durch ihre Langlebigkeit, ihren Schallschutz, ihren Energieeffizienz und ihre positiven Auswirkungen auf das Raumklima aus.
Behaglicher Wohnkomfort auf Schritt und Tritt: Eine moderne Fußbodenheizung sorgt in mehreren Räumen für wohlige Wärme und ein angenehmes Wohngefühl, besonders in den kühleren Monaten ein echtes Plus.
Moderne Einbauküche mit schwarzer Granitplatte und hochwertigen Elektrogeräten gehört bereits zur Ausstattung des Hauses und ist sofort nutzbar, ideal für einen komfortablen Start in Ihrem neuen Zuhause.
Weitere Angebote unter www.GARANT-IMMO.de
Das Haus überzeugt mit einer durchdachten Raumaufteilung auf fünf Zimmern, einem sonnigen Garten, einer großzügigen Terrasse mit Terrassendach mit Markise sowie nachhaltiger Haustechnik wie Luft-/ Wasserwärmepumpe, Solaranlage zur Warmwasserbereitung und dreifachverglaste Fenster für beste Wärmedämmung und Ruhe.
Dank der energieeffizienten Bauweise in Kombination mit einer modernen Luft-/Wärmepumpe genießen Sie in diesem Zuhause nicht nur ein angenehmes Raumklima, sondern auch langfristig niedrige Energiekosten - Ideal für entspanntes und nachhaltiges Wohnen.
Eine Ziegelbauweise mit Schaumfüllung zeichnet sich durch ihre Langlebigkeit, ihren Schallschutz, ihren Energieeffizienz und ihre positiven Auswirkungen auf das Raumklima aus.
Behaglicher Wohnkomfort auf Schritt und Tritt: Eine moderne Fußbodenheizung sorgt in mehreren Räumen für wohlige Wärme und ein angenehmes Wohngefühl, besonders in den kühleren Monaten ein echtes Plus.
Moderne Einbauküche mit schwarzer Granitplatte und hochwertigen Elektrogeräten gehört bereits zur Ausstattung des Hauses und ist sofort nutzbar, ideal für einen komfortablen Start in Ihrem neuen Zuhause.
Weitere Angebote unter www.GARANT-IMMO.de
Ausstattung
| Küche | Einbauküche |
| Bad | 1 |
| Boden | Fliesen, Laminat |
| Carport | 1 |
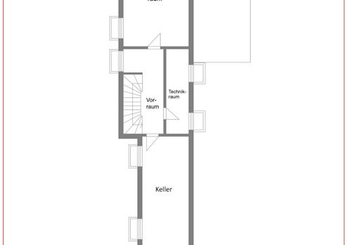
Im Untergeschoss erwartet Sie neben dem Technik- und Waschraum auch ein vielseitig nutzbarer Hobbyraum, ideal für Fitness, Homeoffice oder kreative Projekte.
Das Erdgeschoss überzeugt mit einer modernen, offen gestalteten Küche, einem Gäste-WC mit Fenster sowie einem großzügigen Wohnbereich, der viel Platz für die ganze Familie bietet. Von diesem Bereich aus öffnet sich der direkte Zugang zu einer der drei elegant überdachten Terrassen, ein privater Rückzugsort, der stilvolles Outdoor-Ambiente mit höchstem Wohnkomfort verbindet.
Das Obergeschoss bietet zwei Schlafzimmer, einer davon mit einem Anziehraum, und ein modernes Badezimmer mit Fenster ausgestattet mit einer Handtuchheizung sowie einem barrierearmen Zugang in die Dusche, ein durchdachter Rückzugsbereich für Paare oder Familien.
Im Dachgeschoss stehen Ihnen zwei vielseitig nutzbare Räume zur Verfügung, ideal als Arbeitsbereich, Kinderzimmer oder für Übernachtungsgäste, ein echtes Plus an Wohnraum und Flexibilität.
Ein Duplex-Stellplatz sowie ein Außenstellplatz runden das Angebot ab, beide sind für insgesamt EUR 25.000,- mit zu erwerben.
Das Erdgeschoss überzeugt mit einer modernen, offen gestalteten Küche, einem Gäste-WC mit Fenster sowie einem großzügigen Wohnbereich, der viel Platz für die ganze Familie bietet. Von diesem Bereich aus öffnet sich der direkte Zugang zu einer der drei elegant überdachten Terrassen, ein privater Rückzugsort, der stilvolles Outdoor-Ambiente mit höchstem Wohnkomfort verbindet.
Das Obergeschoss bietet zwei Schlafzimmer, einer davon mit einem Anziehraum, und ein modernes Badezimmer mit Fenster ausgestattet mit einer Handtuchheizung sowie einem barrierearmen Zugang in die Dusche, ein durchdachter Rückzugsbereich für Paare oder Familien.
Im Dachgeschoss stehen Ihnen zwei vielseitig nutzbare Räume zur Verfügung, ideal als Arbeitsbereich, Kinderzimmer oder für Übernachtungsgäste, ein echtes Plus an Wohnraum und Flexibilität.
Ein Duplex-Stellplatz sowie ein Außenstellplatz runden das Angebot ab, beide sind für insgesamt EUR 25.000,- mit zu erwerben.
Sonstige Informationen
Fazit:
Ein echtes Zuhause für alle, die modernes, nachhaltiges Wohnen in einer naturnahen und dennoch urbanen Umgebung suchen, ideal für Familien, Paare oder alle, die Raum zur Entfaltung schätzen.
Ein echtes Zuhause für alle, die modernes, nachhaltiges Wohnen in einer naturnahen und dennoch urbanen Umgebung suchen, ideal für Familien, Paare oder alle, die Raum zur Entfaltung schätzen.
Lage des Objektes
Natur, Freizeit und urbanes Leben, alles in greifbarer Nähe. Feldmoching zählt zu den grünsten und zugleich urbansten Wohnlagen im Münchner Norden, ein idealer Ort für alle, die naturnah wohnen und gleichzeitig die Annehmlichkeiten der Stadt genießen möchten.
Die Umgebung bietet zahlreiche Freizeitmöglichkeiten direkt vor der Haustür. Ob entspannte Spaziergänge oder sportliche Aktivitäten, der nahegelegene Fasaneriesee und der Feldmochinger See laden zu erholsamen Stunden im Freien ein und sind bequem zu Fuß oder mit dem Fahrrad erreichbar.
Für Shopping, Gastronomie und Kultur liegt das Olympia Einkaufszentrum nur wenige Minuten entfernt. Auch der weitläufige Olympiapark mit seinen vielfältigen Freizeit- und Veranstaltungsangeboten ist schnell erreichbar, perfekt für aktive Tage oder entspannte Abende.
Die Lage überzeugt durch eine ausgebaute Infrastruktur, die keine Wünsche offen lässt: In direkter Umgebung finden Sie Einkaufsmöglichkeiten sowie vielfältige Angebote für den täglichen Bedarf.
Kindergärten, eine moderne Kinderkrippe sowie Schulen mit angeschlossenem Hort sorgen für kurze Wege und optimale Betreuung.
Die Immobilie profitiert von einer hervorragenden Nachbarschaft: In unmittelbarer Nähe befinden sich renommierte Unternehmen wie BMW Forschungs- und Innovationszentrum (FIZ), MAN Truck & Bus SE sowie MTU Aero Engines. Diese erstklassige Unternehmensumgebung unterstreicht nicht nur den wirtschaftlichen Stellenwert der Lage, sondern bietet auch ideale Voraussetzungen für Geschäftskunden, Fachkräfte und Investoren.
Die Umgebung bietet zahlreiche Freizeitmöglichkeiten direkt vor der Haustür. Ob entspannte Spaziergänge oder sportliche Aktivitäten, der nahegelegene Fasaneriesee und der Feldmochinger See laden zu erholsamen Stunden im Freien ein und sind bequem zu Fuß oder mit dem Fahrrad erreichbar.
Für Shopping, Gastronomie und Kultur liegt das Olympia Einkaufszentrum nur wenige Minuten entfernt. Auch der weitläufige Olympiapark mit seinen vielfältigen Freizeit- und Veranstaltungsangeboten ist schnell erreichbar, perfekt für aktive Tage oder entspannte Abende.
Die Lage überzeugt durch eine ausgebaute Infrastruktur, die keine Wünsche offen lässt: In direkter Umgebung finden Sie Einkaufsmöglichkeiten sowie vielfältige Angebote für den täglichen Bedarf.
Kindergärten, eine moderne Kinderkrippe sowie Schulen mit angeschlossenem Hort sorgen für kurze Wege und optimale Betreuung.
Die Immobilie profitiert von einer hervorragenden Nachbarschaft: In unmittelbarer Nähe befinden sich renommierte Unternehmen wie BMW Forschungs- und Innovationszentrum (FIZ), MAN Truck & Bus SE sowie MTU Aero Engines. Diese erstklassige Unternehmensumgebung unterstreicht nicht nur den wirtschaftlichen Stellenwert der Lage, sondern bietet auch ideale Voraussetzungen für Geschäftskunden, Fachkräfte und Investoren.
Anbieter kontaktieren
Kontakt
| Telefon | 089/78 74 790 |
| Fax | 089/78 70 78 55 |
| Website | www.garant-immo.de |
