Geräumiges Einfamilienhaus auf 786 m² großem Grundstück in schönster Randlage von Tandern
765.000 €
Kaufpreis
173 m²
Wohnfläche
163 m²
Nutzfläche
5
Zimmer
immobilien.de Nr.: 9221171
Objektnummer: 06793
Preise & Kosten
| Kaufpreis | 765.000 € |
| Nebenkosten | keine Angabe |
| Maklerprovision | 2,38 % inkl. MwSt. Käuferprovision |
Größe & Zustand
| Wohnfläche | 173 m² |
| Nutzfläche | 163 m² |
| Gesamtfläche | 336 m² |
| Grundstücksfläche | 786 m² |
| Fläche teilbar ab | 173 m² |
| Zimmer | 5 |
| Baujahr | 1993 |
| Verfügbar ab | nach Vereinbarung |
| Zustand | Gepflegt |
Energie
| Energieausweistyp | Verbrauch |
| Ausstellungsdatum | 21. 04. 2018 |
| Gültig bis | 20.04.2028 |
| Baujahr (laut Energieausweis) | 1993 |
| Energieeffizienzklasse | C |
| Energieverbrauchkennwert | 96,00 kWh/(m²*a) |
| Heizungsart | Zentralheizung |
| Wesentlicher Energieträger | Öl |
| Energieträger/Befeuerung | Öl |
Objektbeschreibung
Das wunderschön eingewachsene Anwesen mit einer Grundstücksgröße von 786 m² liegt unverbaut am Ortsrand von Tandern in der Gemeinde Hilgertshausen-Tandern im nordöstlichen Landkreis Dachau.
Der Garten zieht sich von Ost über Süd nach West ums Haus herum, und ist ein idealer Ort zum Entspannen und Auftanken. Bei der großzügig bemessenen Wohnfläche des Hauses von rund 173 m² zzgl.
ca. 163 m² Nutzfläche, also insgesamt rund 336 m² nutzbare Fläche, bleiben sicherlich kaum Wünsche offen.
Das Haus wurde im Jahr 1993 in massiver Ziegelbauweise (36,5 cm starkes Ziegel-Außenmauerwerk) und
48° steilem Dach erbaut. Die 2-fach isolierverglasten Fenster aus Hartholz wurden stets gepflegt, wie auch die ölbefeuerte Heizanlage immer regelmäßig gewartet wurde und daher nach wie vor zuverlässig ihren Dienst tut.
Was leider vielen Häusern fehlt: eine nicht zu knapp bemessene Abstellfläche für Pkw's, ist bei diesem Haus reichlich vorhanden: ins Haus integriert ist eine Doppelgarage, wobei eine Hälfte überbreit ist, sodass auch bei eingestellten Autos immer noch genügend Platz ist, um mit Fahrrädern bequem vorbei zu kommen.
Die bereits erwähnte stattliche Wohn- und Nutzfläche von rund 336 m² verteilt sich auf 3 Ebenen:
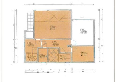
Im Untergeschoss, das durch die leichte Hanglage fast zur Hälfte Tageslicht erhält, gibt es vollwertiges, ca.
21 m² großes Zimmer, das sich für viele Zwecke eignet: es könnte als großes Büro dienen, oder als Jugend-zimmer, oder auch als Fitness-Oase. Neben diesem Zimmer gibt es einen weiteren beheizten Raum für Ihre Hobbies. Die ins Haus integrierte Garage gestattet Ihnen, jederzeit trockenen Fußes ins Haus zu gelangen, das Garagentor ist per Fernbedienung bequem vom Auto aus zu öffnen. Der 'normale' Hauszugang führt über eine Außentreppe zum Erdgeschoss, das recht 'klassisch' aufgeteilt ist: ein knapp 33 m² großes Wohnzimmer erhält Licht von Süden, Osten und Norden, nebenan befindet sich die voll eingerichtete Küche mit angrenzender Speisekammer. Von der Küche und einem Zimmer aus ist der fast 12 m² große Nordwest-Balkon zu erreichen, mit schöner Spätnachmittags- und Abendsonne. Ein Duschbad ergänzt den praktischen Grundriss. Über einen Wintergarten sind die große Südterrasse und der Garten zu erreichen.
Im Dachgeschoss schließlich besticht das sehr geräumige Schlafzimmer (ca. 26 m²), das nach Osten hin ausgerichtet ist: ein Traum, denn der Blick geht übers unbebaute freie Feld, so dass Sie die Morgensonne genießen können, wann immer der Himmel entsprechend klar ist. Neben diesem großen Zimmer gibt es ein großes Tageslichtbad mit Wanne und Dusche sowie 2 Waschbecken, ein kleineres Zimmer und eine über
10 m² große Ankleide.
Im oberhalb des Dachgeschosses liegenden voll isolierten Speicher, ca. 30 m² groß und mit Stehhöhe im Firstbereich, gibt es, zusätzlich zum Keller, wertvollen Stauraum.
Der Garten zieht sich von Ost über Süd nach West ums Haus herum, und ist ein idealer Ort zum Entspannen und Auftanken. Bei der großzügig bemessenen Wohnfläche des Hauses von rund 173 m² zzgl.
ca. 163 m² Nutzfläche, also insgesamt rund 336 m² nutzbare Fläche, bleiben sicherlich kaum Wünsche offen.
Das Haus wurde im Jahr 1993 in massiver Ziegelbauweise (36,5 cm starkes Ziegel-Außenmauerwerk) und
48° steilem Dach erbaut. Die 2-fach isolierverglasten Fenster aus Hartholz wurden stets gepflegt, wie auch die ölbefeuerte Heizanlage immer regelmäßig gewartet wurde und daher nach wie vor zuverlässig ihren Dienst tut.
Was leider vielen Häusern fehlt: eine nicht zu knapp bemessene Abstellfläche für Pkw's, ist bei diesem Haus reichlich vorhanden: ins Haus integriert ist eine Doppelgarage, wobei eine Hälfte überbreit ist, sodass auch bei eingestellten Autos immer noch genügend Platz ist, um mit Fahrrädern bequem vorbei zu kommen.
Die bereits erwähnte stattliche Wohn- und Nutzfläche von rund 336 m² verteilt sich auf 3 Ebenen:
Im Untergeschoss, das durch die leichte Hanglage fast zur Hälfte Tageslicht erhält, gibt es vollwertiges, ca.
21 m² großes Zimmer, das sich für viele Zwecke eignet: es könnte als großes Büro dienen, oder als Jugend-zimmer, oder auch als Fitness-Oase. Neben diesem Zimmer gibt es einen weiteren beheizten Raum für Ihre Hobbies. Die ins Haus integrierte Garage gestattet Ihnen, jederzeit trockenen Fußes ins Haus zu gelangen, das Garagentor ist per Fernbedienung bequem vom Auto aus zu öffnen. Der 'normale' Hauszugang führt über eine Außentreppe zum Erdgeschoss, das recht 'klassisch' aufgeteilt ist: ein knapp 33 m² großes Wohnzimmer erhält Licht von Süden, Osten und Norden, nebenan befindet sich die voll eingerichtete Küche mit angrenzender Speisekammer. Von der Küche und einem Zimmer aus ist der fast 12 m² große Nordwest-Balkon zu erreichen, mit schöner Spätnachmittags- und Abendsonne. Ein Duschbad ergänzt den praktischen Grundriss. Über einen Wintergarten sind die große Südterrasse und der Garten zu erreichen.
Im Dachgeschoss schließlich besticht das sehr geräumige Schlafzimmer (ca. 26 m²), das nach Osten hin ausgerichtet ist: ein Traum, denn der Blick geht übers unbebaute freie Feld, so dass Sie die Morgensonne genießen können, wann immer der Himmel entsprechend klar ist. Neben diesem großen Zimmer gibt es ein großes Tageslichtbad mit Wanne und Dusche sowie 2 Waschbecken, ein kleineres Zimmer und eine über
10 m² große Ankleide.
Im oberhalb des Dachgeschosses liegenden voll isolierten Speicher, ca. 30 m² groß und mit Stehhöhe im Firstbereich, gibt es, zusätzlich zum Keller, wertvollen Stauraum.
Ausstattung
| Anzahl der Etagen im Haus | 3 |
| Küche | Einbauküche |
| Bad | 2 |
| Bad | Dusche, Wanne, Fenster |
| Boden | Fliesen, Teppich, Laminat |
| Balkone | 1 |
| Terrassen | 1 |
| Dachboden |
Massive Ziegelbauweise (36,5 cm starkes Ziegel-Außenmauerwerk);
48° steiles Dach für beste Raumausnutzung im Dachgeschoss;
2-fach isolierverglaste Fenster aus Hartholz;
2 Bäder;
Küche mit Einbauküche;
ölbefeuerte Heizanlage von Wolf;
großer Speicher, voll isoliert und mit Stehhöhe im Firstbereich;
Doppelgarage, eine Hälfte überbreit;
Carport für 2 Fahrzeuge;
Gartenhaus;
Wintergarten;
große Südterrasse;
Hobbykeller beheizt.
48° steiles Dach für beste Raumausnutzung im Dachgeschoss;
2-fach isolierverglaste Fenster aus Hartholz;
2 Bäder;
Küche mit Einbauküche;
ölbefeuerte Heizanlage von Wolf;
großer Speicher, voll isoliert und mit Stehhöhe im Firstbereich;
Doppelgarage, eine Hälfte überbreit;
Carport für 2 Fahrzeuge;
Gartenhaus;
Wintergarten;
große Südterrasse;
Hobbykeller beheizt.
Sonstige Informationen
Der Kaufpreis beträgt EUR 765.000,- für das Haus inkl. Einbauküche, 3-fach-Garage und Carport.
Beim Abschluss des notariellen Kaufvertrages stellen wir dem Käufer eine Nachweis- und/oder Vermittlungsprovision in Höhe von 2,38 % inkl. ges. MwSt. in Rechnung.
Wir haben einen provisionspflichtigen Maklervertrag mit dem Verkäufer in gleicher Höhe geschlossen.
Beim Abschluss des notariellen Kaufvertrages stellen wir dem Käufer eine Nachweis- und/oder Vermittlungsprovision in Höhe von 2,38 % inkl. ges. MwSt. in Rechnung.
Wir haben einen provisionspflichtigen Maklervertrag mit dem Verkäufer in gleicher Höhe geschlossen.
Lage des Objektes
Die Immobilie liegt ruhig am Ende einer Sackstraße im östlichen Bereich von Tandern, das zur Gemeinde Hilgertshausen-Tandern im nördlichen Landkreis Dachau gehört, ca. 25 Km von der Kreisstadt entfernt. In der Nachbarschaft stehen einige weitere attraktive Wohnhäuser (man kauft das Umfeld ja sozusagen mit), so dass man sich hier 'gut aufgehoben' fühlt.
Die nächstgelegene S-Bahn-Station befindet sich in Altomünster, nur 6,5 km bzw. 7 Autominuten entfernt. Zum Münchner Hauptbahnhof beträgt die Fahrzeit rund 40 Minuten.
Zu den Autobahnen beträgt die Entfernung ca. 25 km (A9 Allershausen, 25 Min. Fahrzeit) bzw. 22 km (A8 Odelzhausen, 20 Min. Fahrzeit).
Kindergarten (mit KiTa) und Grundschule befinden sich in Gehweite, weiterführende Schulen finden sich im 12 Km entfernten Markt Indersdorf, mit geregeltem Schulbusbetrieb.
Nach Aichach, einer attraktiven Stadt mit historischer Altstadt, sind es nur rund 15 Autominuten.
Ein Geschäft für den täglichen Bedarf gibt es im Ort, weitere in Hilgertshausen und in Altomünster.
Der landschaftliche Reiz der Region ist beachtlich: sanfte bewaldete Hügel wechseln sich ab mit Wiesen und Feldern: ein Paradies für Naturliebhaber und Freunde guter frischer Luft.
Die nächstgelegene S-Bahn-Station befindet sich in Altomünster, nur 6,5 km bzw. 7 Autominuten entfernt. Zum Münchner Hauptbahnhof beträgt die Fahrzeit rund 40 Minuten.
Zu den Autobahnen beträgt die Entfernung ca. 25 km (A9 Allershausen, 25 Min. Fahrzeit) bzw. 22 km (A8 Odelzhausen, 20 Min. Fahrzeit).
Kindergarten (mit KiTa) und Grundschule befinden sich in Gehweite, weiterführende Schulen finden sich im 12 Km entfernten Markt Indersdorf, mit geregeltem Schulbusbetrieb.
Nach Aichach, einer attraktiven Stadt mit historischer Altstadt, sind es nur rund 15 Autominuten.
Ein Geschäft für den täglichen Bedarf gibt es im Ort, weitere in Hilgertshausen und in Altomünster.
Der landschaftliche Reiz der Region ist beachtlich: sanfte bewaldete Hügel wechseln sich ab mit Wiesen und Feldern: ein Paradies für Naturliebhaber und Freunde guter frischer Luft.
Anbieter kontaktieren
Kontakt
| Telefon | +49 8133 444210 |
| Mobil | +49 172 8460088 |
| Fax | +49 8133 4442129 |
| Website | www.tell-immobilien.de |
