Moderne Architektur im Ortskern
585.000 €
Kaufpreis
134 m²
Wohnfläche
5
Zimmer
immobilien.de Nr.: 9219533
Objektnummer: 625110
Preise & Kosten
| Kaufpreis | 585.000 € |
| Nebenkosten | keine Angabe |
Größe & Zustand
| Wohnfläche | 134 m² |
| Grundstücksfläche | 500 m² |
| Zimmer | 5 |
| Baujahr | 2025 |
| Verfügbar ab | nach Absprache |
| Zustand | Erstbezug |
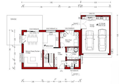
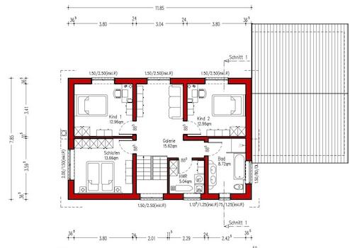
Objektbeschreibung
Wir verkaufen in Großrinderfeld demnächst insgesamt 5 elegante, moderne Einfamilienhäuser mit Carport.
Die Häuser werden auf ca. 500 qm großen Einzelgrundstücken gebaut. Sie bestechen durch eine klare, schnörkellose Architektur, gepaart mit einer effizienten Haustechnik. Alle Domizile sind ca. 134 qm groß und nicht unterkellert. Sie haben vor Baubeginn und auch noch während des Baus die Möglichkeit, Ihre persönlichen Änderungswünsche einfließen zu lassen.
Gebaut wird mit einem regionalen, erfahrenen Massivhausanbieter. Alle Handwerker haben ihre Unternehmen im Umkreis.
Was für eine Ausbaustufe Sie haben möchten, das entscheiden Sie. Vom Bausatz bis zum schlüsselfertigen Haus ist alles möglich. Dementsprechend staffeln sich natürlich die Kaufpreise:
Bausatzhaus ohne Grundstücksanteil 250.000 Euro
Ausbauhaus ohne Grundstücksanteil 472.000 Euro
Schlüsselfertiges Haus ohne Grundstücksanteil 535.000 Euro
Unterlagen und weiterführende Informationen erhalten Sie gern von unseren Kollegen.
Weitere Angebote unter www.GARANT-IMMO.de
Die Häuser werden auf ca. 500 qm großen Einzelgrundstücken gebaut. Sie bestechen durch eine klare, schnörkellose Architektur, gepaart mit einer effizienten Haustechnik. Alle Domizile sind ca. 134 qm groß und nicht unterkellert. Sie haben vor Baubeginn und auch noch während des Baus die Möglichkeit, Ihre persönlichen Änderungswünsche einfließen zu lassen.
Gebaut wird mit einem regionalen, erfahrenen Massivhausanbieter. Alle Handwerker haben ihre Unternehmen im Umkreis.
Was für eine Ausbaustufe Sie haben möchten, das entscheiden Sie. Vom Bausatz bis zum schlüsselfertigen Haus ist alles möglich. Dementsprechend staffeln sich natürlich die Kaufpreise:
Bausatzhaus ohne Grundstücksanteil 250.000 Euro
Ausbauhaus ohne Grundstücksanteil 472.000 Euro
Schlüsselfertiges Haus ohne Grundstücksanteil 535.000 Euro
Unterlagen und weiterführende Informationen erhalten Sie gern von unseren Kollegen.
Weitere Angebote unter www.GARANT-IMMO.de
Ausstattung
| Anzahl der Etagen im Haus | 2 |
| Bad | 3 |
| Boden | Fliesen, Laminat |
Sonstige Informationen
Die Kosten für den Carport sind nicht im ausgewiesenen Kaufpreis enthalten. Er kostet 10.000 Euro.
Lage des Objektes
Großrinderfeld liegt im Main-Tauber-Kreis im Nordosten Baden-Württembergs und bietet eine lebenswerte Dorfgemeinschaft und ein reges Vereinsleben mit einer Vielzahl von Freizeitaktivitäten.
Kindergarten und Grundschule befinden sich am Ort, weiterführende Schulen sowie Einkaufsmöglichkeiten finden Sie in Tauberbischofsheim.
Ideale Verkehrsanbindung erhalten Sie durch die mit dem Auto in Kürze erreichte Autobahnanschlussstelle an die A 81.
Kindergarten und Grundschule befinden sich am Ort, weiterführende Schulen sowie Einkaufsmöglichkeiten finden Sie in Tauberbischofsheim.
Ideale Verkehrsanbindung erhalten Sie durch die mit dem Auto in Kürze erreichte Autobahnanschlussstelle an die A 81.
Anbieter kontaktieren
Kontakt
| Telefon | 0931/32 93 76-0 |
| Fax | 0931/32 93 76-20 |
| Website | www.garant-immo.de |
