Ideale Kapitalanlage - 3-Zimmer-Eigentumswohnung
169.000 €
Kaufpreis
73 m²
Wohnfläche
4
Zimmer
immobilien.de Nr.: 9199995
Objektnummer: FALC-DTue-72758
Preise & Kosten
| Kaufpreis | 169.000 € |
| Nebenkosten | keine Angabe |
| Hausgeld | 161 € |
| Maklerprovision | 2,38% inklusive MwSt vom notariellen Kaufpreis |
Größe & Zustand
| Wohnfläche | 73 m² |
| Zimmer | 4 |
| Baujahr | 1971 |
| Verfügbar ab | keine Angabe |
| Zustand | Gepflegt |
Energie
| Energieausweistyp | Bedarfsausweis |
| Ausstellungsdatum | 06. 08. 2025 |
| Gültig bis | 06.08.2035 |
| Energieeffizienzklasse | H |
| Wesentlicher Energieträger | Gas |
| Energieträger/Befeuerung | Gas |
Objektbeschreibung
Das Gebäude mit vier Eigentumswohnungen befindet sich auf einem 1.287 m² großen Grundstück mit großzügiger Grünfläche zur gemeinschaftlichen Nutzung. Die hier angebotene Wohnung im 1. Obergeschoss ist in einem sehr gepflegten Zustand. Die Gasetagenheizung stammt aus dem Jahr 2010 und sorgt für eine effiziente Wärmeversorgung.
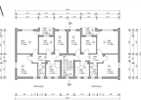
Die Wohnung verfügt über eine großzügige Wohnfläche von 73 m². Insgesamt stehen vier gut geschnittene Zimmer zur Verfügung, die vielseitig nutzbar sind – ob als Schlafzimmer, Büro, Kinderzimmer oder Wohnbereich.
Ein besonderes Highlight ist der eigene Balkon, der an warmen Tagen zum Verweilen im Freien einlädt. Die Wohnung bietet zudem einen eigenen Kellerraum sowie einen Garagenstellplatz – ein echter Mehrwert, der zusätzlichen Komfort bietet und die Vermietbarkeit deutlich erhöht.
Die Mieterstruktur im Haus ist stabil, das Objekt insgesamt sehr gepflegt.
Hinweis: Im Gebäude werden weitere Wohnungen zum Verkauf angeboten.
Fazit
Für Kapitalanleger ist die Lage besonders attraktiv: Die solide Nachfrage nach Wohnraum in Itzehoe – insbesondere im gut angebundenen und ruhigen Kamper Weg – sorgt für stabile Mietverhältnisse und ein geringes Leerstandrisiko. In Kombination mit der wirtschaftlich stabilen Entwicklung der Region bietet diese Immobilie ein langfristig sicheres Investment.
Die Wohnung verfügt über eine großzügige Wohnfläche von 73 m². Insgesamt stehen vier gut geschnittene Zimmer zur Verfügung, die vielseitig nutzbar sind – ob als Schlafzimmer, Büro, Kinderzimmer oder Wohnbereich.
Ein besonderes Highlight ist der eigene Balkon, der an warmen Tagen zum Verweilen im Freien einlädt. Die Wohnung bietet zudem einen eigenen Kellerraum sowie einen Garagenstellplatz – ein echter Mehrwert, der zusätzlichen Komfort bietet und die Vermietbarkeit deutlich erhöht.
Die Mieterstruktur im Haus ist stabil, das Objekt insgesamt sehr gepflegt.
Hinweis: Im Gebäude werden weitere Wohnungen zum Verkauf angeboten.
Fazit
Für Kapitalanleger ist die Lage besonders attraktiv: Die solide Nachfrage nach Wohnraum in Itzehoe – insbesondere im gut angebundenen und ruhigen Kamper Weg – sorgt für stabile Mietverhältnisse und ein geringes Leerstandrisiko. In Kombination mit der wirtschaftlich stabilen Entwicklung der Region bietet diese Immobilie ein langfristig sicheres Investment.
Ausstattung
| Inserat befindet sich im Stockwerk | 1 |
| Küche | Einbauküche |
| Bad | 1 |
| Bad | Dusche |
| Boden | Fliesen, Laminat |
| Balkone | 1 |
| Garten | |
| Garage/Stellplätze | 1 |
| Keller |
- Wohnfläche: 73m²
- Baujahr 1971
- 4 gut geschnittene Zimmer
- 2023 sanierter Balkon
- Kellerabteil für Ihre persönlichen Utensilien
- Garten zur Gemeinschaftlichen Nutzung
- Kein Sanierungsstau
- Eigene Garage
- Helles gepflegtes Treppenhaus
- Sichere Mieteinnahmen
- Baujahr 1971
- 4 gut geschnittene Zimmer
- 2023 sanierter Balkon
- Kellerabteil für Ihre persönlichen Utensilien
- Garten zur Gemeinschaftlichen Nutzung
- Kein Sanierungsstau
- Eigene Garage
- Helles gepflegtes Treppenhaus
- Sichere Mieteinnahmen
Sonstige Informationen
Wir bieten Ihnen nicht nur eine kostenlose Hotline, sondern auch einen Service am Wochenende. Bei Interesse geben Sie bitte immer Ihre vollständigen Kontaktdaten an.
Die Objektbeschreibung wurde nach bestem Wissen und Gewissen erstellt. Für die Richtigkeit oder Vollständigkeit übernehmen wir jedoch keine Gewähr.
Rufen Sie uns gerne an oder schreiben Sie eine Mail - wir melden uns umgehend, um einen Termin mit Ihnen abzustimmen.
Sie wollen Ihre Immobilie ebenfalls professionell vermarkten? Rufen Sie uns an, wir stehen Ihnen Mo. bis So. von 6.00 - 22.00h persönlich zur Seite, hunderte aktive Interessenten warten bereits auf Sie.
Die Objektbeschreibung wurde nach bestem Wissen und Gewissen erstellt. Für die Richtigkeit oder Vollständigkeit übernehmen wir jedoch keine Gewähr.
Rufen Sie uns gerne an oder schreiben Sie eine Mail - wir melden uns umgehend, um einen Termin mit Ihnen abzustimmen.
Sie wollen Ihre Immobilie ebenfalls professionell vermarkten? Rufen Sie uns an, wir stehen Ihnen Mo. bis So. von 6.00 - 22.00h persönlich zur Seite, hunderte aktive Interessenten warten bereits auf Sie.
Lage des Objektes
Die Wohnung liegt im beliebten Stadtteil Wellenkamp in Itzehoe. Die Nachbarschaft ist ruhig und geprägt von gepflegten Mehrfamilienhäusern sowie langjährigen, zuverlässigen Mietern. Direkt gegenüber befinden sich eine Grundschule und ein Kindergarten, die fußläufig erreichbar sind – ein klarer Standortvorteil für Familien und ein Argument für stabile Mieterstrukturen.
In der direkten Umgebung gibt es Supermärkte, Bäcker, Restaurants und eine Bushaltestelle mit direkter Verbindung in die Stadt und zum Bahnhof Itzehoe, von wo aus Hamburg in weniger als 50 Minuten erreichbar ist. Die Nähe zur A23 bietet zusätzlich exzellente Anbindungen an den überregionalen Verkehr.
In der direkten Umgebung gibt es Supermärkte, Bäcker, Restaurants und eine Bushaltestelle mit direkter Verbindung in die Stadt und zum Bahnhof Itzehoe, von wo aus Hamburg in weniger als 50 Minuten erreichbar ist. Die Nähe zur A23 bietet zusätzlich exzellente Anbindungen an den überregionalen Verkehr.
Anbieter kontaktieren
Anbieter
FALC Immobilien GmbH & Co. KG
Humperdickstr. 3
53773 Hennef (Sieg)
Kontakt
| Telefon | +49 800 6460646 |
| Mobil | +49 170 2863472 |
| Fax | +49 2242 9010319 |
| Website | www.falcimmo.de |
