Abrisshaus mit Baugenehmigung für 3 Reihenhäuser in schöner Lage von Sehlem
120.000 €
Kaufpreis
immobilien.de Nr.: 9199317
Objektnummer: GSTSE327
Preise & Kosten
| Kaufpreis | 120.000 € |
| Nebenkosten | keine Angabe |
Größe & Zustand
| Grundstücksfläche | 867 m² |
| Fläche teilbar ab | 867 m² |
| Verfügbar ab | keine Angabe |
Objektbeschreibung
Abrissgrundstück mit rechtskräftiger Baugenehmigung zur Errichtung von 3 Reihenhäusern in schöner Lage von Sehlem - Achtung Vermieter: Hohe Neubauabschreibungen und Steuervorteile sichern.
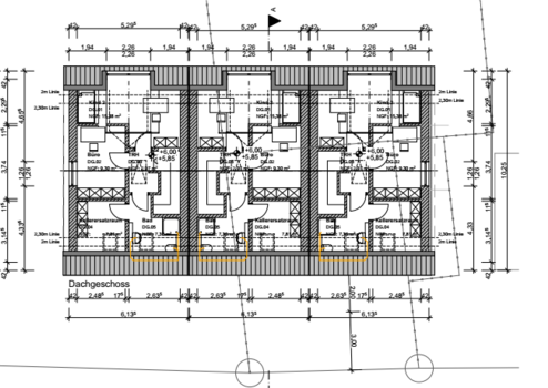
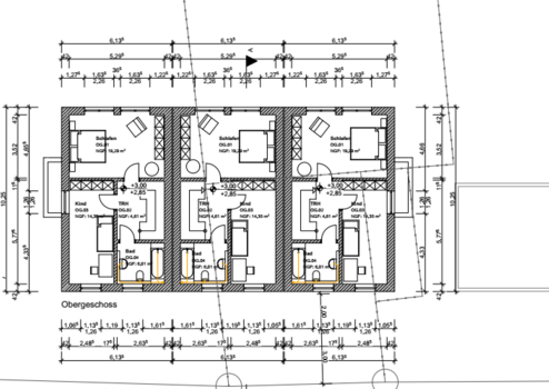
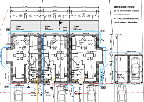
Die genehmigte Planung sieht drei gut aufgeteilte Einfamilienhäuser mit ausgebautem Dachgeschoß in Reihenhausbauweise vor. Die Wohnfläche beträgt jeweils ca. 145 m².
Auf dem Grundstück befindet sich ein altes Bauernhaus mit Scheune, was abgerissen werden muß. Ein Baubeginn ist kurzfristig möglich
Der Verkauf erfolgt für den Käufer provisionsfrei.
Hinweis bei Vermietung: Die Häuser können bei einer Vermietung entsprechend den aktuellen Änderungen des Wirtschaftschancengesetzes mit einer degressiven Abschreibung von jährlich 5 % bezogen auf den jeweiligen Buchwert abgeschrieben werden. Hierdurch werden hohe Steuervorteile erzielt. Wir übernehmen weder eine steuerliche Beratung noch die Haftung für steuerliche Ziele. Sprechen Sie mit Ihrem Steuerberater. Dieser berät Sie gerne umfassend und fachgerecht.
Weitere interessante Kauf- oder Mietangebote finden Sie unter www.scherf-immobilien.de
Die genehmigte Planung sieht drei gut aufgeteilte Einfamilienhäuser mit ausgebautem Dachgeschoß in Reihenhausbauweise vor. Die Wohnfläche beträgt jeweils ca. 145 m².
Auf dem Grundstück befindet sich ein altes Bauernhaus mit Scheune, was abgerissen werden muß. Ein Baubeginn ist kurzfristig möglich
Der Verkauf erfolgt für den Käufer provisionsfrei.
Hinweis bei Vermietung: Die Häuser können bei einer Vermietung entsprechend den aktuellen Änderungen des Wirtschaftschancengesetzes mit einer degressiven Abschreibung von jährlich 5 % bezogen auf den jeweiligen Buchwert abgeschrieben werden. Hierdurch werden hohe Steuervorteile erzielt. Wir übernehmen weder eine steuerliche Beratung noch die Haftung für steuerliche Ziele. Sprechen Sie mit Ihrem Steuerberater. Dieser berät Sie gerne umfassend und fachgerecht.
Weitere interessante Kauf- oder Mietangebote finden Sie unter www.scherf-immobilien.de
Sonstige Informationen
Vereinbaren Sie einen Besichtigungstermin !
In Zusammenarbeit mit einem Finanzierungsvermittler sind wir Ihnen gerne bei der Gestaltung Ihrer Finanzierung behilflich.
Hinweis bei Vermietung: Die Häusern können im Falle einer Vermietung entsprechend den im Wachstumschanchengesetz aktuell beschlossenen Änderungen der degressiven Abschreibung nunmehr mit jährlich 5 %- bezogen auf den jeweiligen Buchwert/Restwert - abgeschrieben werden. Hierdurch können hohe Steuervorteile erzielt werden. Wir übernehmen keine steuerliche Beratung und keine Haftung für steuerliche Ziele. Hierzu informiert Sie Ihr Steuerberater umfassend.
Weitere interessante Kauf - oder Mietangebote finden Sie unter www.scherf-immobilien.de
In Zusammenarbeit mit einem Finanzierungsvermittler sind wir Ihnen gerne bei der Gestaltung Ihrer Finanzierung behilflich.
Hinweis bei Vermietung: Die Häusern können im Falle einer Vermietung entsprechend den im Wachstumschanchengesetz aktuell beschlossenen Änderungen der degressiven Abschreibung nunmehr mit jährlich 5 %- bezogen auf den jeweiligen Buchwert/Restwert - abgeschrieben werden. Hierdurch können hohe Steuervorteile erzielt werden. Wir übernehmen keine steuerliche Beratung und keine Haftung für steuerliche Ziele. Hierzu informiert Sie Ihr Steuerberater umfassend.
Weitere interessante Kauf - oder Mietangebote finden Sie unter www.scherf-immobilien.de
Lage des Objektes
Sehlem, gefragter Wohnort zwischen Schweich (nur 13 km) und Wittlich (nur 14 km) mit optimaler Autobahnanbindung in alle Richtungen. Der Ort hat ca. 1000 Einwohner. Sehlem verfügt über einen Bahnanschluß (Linie Trier-Koblenz). Im Ort sind Kindergarten und Grundschule vorhanden. Das Grundstück befindet sich in zentraler ruhiger Ortslage in der "Kirchstraße"
Anbieter kontaktieren
Anbieter
Scherf Profi Immobilienservice GmbH
Paulinstraße 104
54292 Trier
Kontakt
| Telefon | 0651 97878-0 |
| Fax | 0651 97878-78 |
| Website | www.scherf-immobilien.de |
