Traumhaus im Neubaugebiet inkl. Grundstück
420.000 €
Kaufpreis
143 m²
Wohnfläche
7
Zimmer
immobilien.de Nr.: 9163410
Objektnummer: EFHALF1
Preise & Kosten
| Kaufpreis | 420.000 € |
| Nebenkosten | keine Angabe |
Größe & Zustand
| Wohnfläche | 143 m² |
| Grundstücksfläche | 500 m² |
| Zimmer | 7 |
| Verfügbar ab | keine Angabe |
| Zustand | Projektiert |
Energie
| Energietyp | KfW-40 |
| Heizungsart | Zentralheizung |
| Energieträger/Befeuerung | Luft-Wärme-Pumpe |
Objektbeschreibung
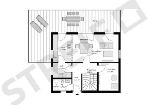
Willkommen in Ihrem zukünftigen Traumhaus in Alfeld! Dieses attraktive, projektierte Einfamilienhaus vom Haustyp STREIF-Family bietet Ihnen auf großzügigen 143m² Wohnfläche genügend Raum für Ihre Familie und Freunde.Die gelungene Raumaufteilung sorgt nicht nur für eine angenehme Wohnatmosphäre, sondern auch für ein Höchstmaß an Funktionalität. Ein zusätzliches Gäste-WC erhöht den Komfort Ihres neuen Zuhauses und ist besonders praktisch für Besucher oder große Familien.
Ausstattung
| Anzahl der Etagen im Haus | 2 |
| Bad | 1 |
Die gehobene Ausstattung dieses Hauses wird Sie begeistern. Die Verwendung einer modernen Wärmepumpe als Befeuerungsart verbindet umweltfreundliches Wohnen mit hohen Energieeffizienzstandards. Diese Technologie nutzt die natürliche Wärme aus der Umwelt und sorgt somit für niedrige Energiekosten und ein angenehmes Raumklima. Das Objekt erfüllt den KFW40 Standard, was bedeutet, dass es besonders energiesparend ist und Ihnen langfristig Kosten spart. Der Standard-Ausbau 'FastFertigPlus' beinhaltet eine umfassende Sanitär-Grundausstattung, sodass Sie sich um die Bäder in Ihrem neuen Zuhause keine Gedanken machen müssen
Sonstige Informationen
Mit STREIF haben Sie die Möglichkeit, zwischen vier verschiedenen Ausbaustufen zu wählen, wodurch Sie Ihre Baukosten aktiv steuern können. In der Ausbaustufe 'FastFertigPlus' bringen Sie Eigenleistungen in Form einer Muskelhypothek ein - das spart bares Geld! Vor dem Bau Ihres Hauses erfolgt eine ausführliche Beratung, in der wir all Ihre Wünsche und Vorstellungen erfassen. Erst wenn der Grundriss zu Ihrer vollsten Zufriedenheit gestaltet ist, beginnen wir mit der Umsetzung Ihres Traumhauses. Unsere erfahrenen Fachbetriebe kümmern sich um alle haustechnischen Gewerke wie Heizung, Lüftung, Sanitär und Estrich - so können Sie sicher sein, dass alles professionell erledigt wird.
Lage des Objektes
Das Grundstück erstreckt sich über 500m² in einem ruhigen Neubaugebiet von Alfeld, das ideal für Familien geeignet ist. Hier genießen Sie eine harmonische Nachbarschaft und die Vorzüge des ländlichen Lebens, während gleichzeitig alle wichtigen Einrichtungen des täglichen Bedarfs in unmittelbarer Nähe sind. Schulen, Einkaufsmöglichkeiten und Freizeitangebote sind schnell erreichbar und sorgen dafür, dass Sie und Ihre Familie alles haben, was Sie benötigen.
