Oma's sanierungsbedürftiges Häuschen sucht motivierte Handwerker
310.000 €
Kaufpreis
120 m²
Wohnfläche
5
Zimmer
immobilien.de Nr.: 9161998
Objektnummer: 534203
Preise & Kosten
| Kaufpreis | 310.000 € |
| Nebenkosten | keine Angabe |
| Maklerprovision | 3,57 % (inkl. MwSt.) |
Größe & Zustand
| Wohnfläche | 120 m² |
| Grundstücksfläche | 322 m² |
| Zimmer | 5 |
| Baujahr | 1920 |
| Verfügbar ab | Sofort |
| Zustand | Teil Vollrenovierungsbed |
Energie
| Energieausweistyp | Bedarfsausweis |
| Ausstellungsdatum | 04. 07. 2025 |
| Baujahr (laut Energieausweis) | 1920 |
| Energieeffizienzklasse | H |
| Endenergiebedarf | 637.1 |
| Heizungsart | Ofen |
| Wesentlicher Energieträger | Öl |
| Energieträger/Befeuerung | Öl |
Objektbeschreibung
Hier braucht man Vorstellungskraft und handwerkliches Geschick um zu erkennen, was man aus diesem alten Häuschen mit Anbau und Scheune machen kann. Dann kann es ein Schmuckstück werden.
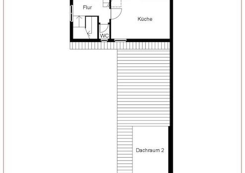
Im Untergeschoss gibt es zwei Zimmer, die Küche und eine Toilette. Im Obergeschoss befinden sich drei Zimmer und eine zweite Toilette. Ein Badezimmer gibt es im Haus nicht, ebenso keine Heizung. Es wurde bisher mit Radiatoren und einem Öleinzelofen geheizt.
An das Häuschen ist eine Scheune angebaut und daran anschließend ein Anbau, der auch als Atelier genutzt werden könnte.
Der Garten grenzt an den Bocksbach und liegt am Skulpturenweg von Pfinztal.
Weitere Angebote unter www.GARANT-IMMO.de
Im Untergeschoss gibt es zwei Zimmer, die Küche und eine Toilette. Im Obergeschoss befinden sich drei Zimmer und eine zweite Toilette. Ein Badezimmer gibt es im Haus nicht, ebenso keine Heizung. Es wurde bisher mit Radiatoren und einem Öleinzelofen geheizt.
An das Häuschen ist eine Scheune angebaut und daran anschließend ein Anbau, der auch als Atelier genutzt werden könnte.
Der Garten grenzt an den Bocksbach und liegt am Skulpturenweg von Pfinztal.
Weitere Angebote unter www.GARANT-IMMO.de
Ausstattung
| Boden | Fliesen, Dielen |
Sonstige Informationen
1 x Garage, 1 x Stellplatz außen
Lage des Objektes
Kleinsteinbach ist mit etwa 2.300 Einwohnern der kleinste Ort in Pfinztal. Von den Flüssen Bocksbach und der Pfinz durchzogen, ist Kleinsteinbach umgeben von Bergen und Hängen.
An Kleinsteinbach grenzen die Ortschaften Söllingen, Mutschelbach, Stupferich und Singen.
An Kleinsteinbach grenzen die Ortschaften Söllingen, Mutschelbach, Stupferich und Singen.
Anbieter kontaktieren
Kontakt
| Telefon | 0721/47 65 90 |
| Fax | 0721/47 65 999 |
| Website | www.garant-immo.de |
