Exklusive Erdgeschosswohnung in Uelsen – mit attraktiver Abschreibungsmöglichkeit
305.500 €
Kaufpreis
96 m²
Wohnfläche
3
Zimmer
immobilien.de Nr.: 9161525
Objektnummer: 1049-116-1
Preise & Kosten
| Kaufpreis | 305.500 € |
| Nebenkosten | keine Angabe |
| Maklerprovision | 4,76 % |
Größe & Zustand
| Wohnfläche | 96 m² |
| Zimmer | 3 |
| Baujahr | 2024 |
| Verfügbar ab | keine Angabe |
| Zustand | Projektiert |
Objektbeschreibung
Herzlich willkommen zu Ihrem potenziellen neuen Zuhause! Inmitten der begehrten Wohngegend Uelsen - Waterfall präsentieren wir mit Stolz dieses exklusive Neubauprojekt – ein Wohnhaus mit insgesamt vier Wohneinheiten und ansprechenden Nebengebäuden. Diese Immobilie vereint zeitgemäßes Design mit höchstem Wohnkomfort und bietet eine erstklassige Lebensqualität.
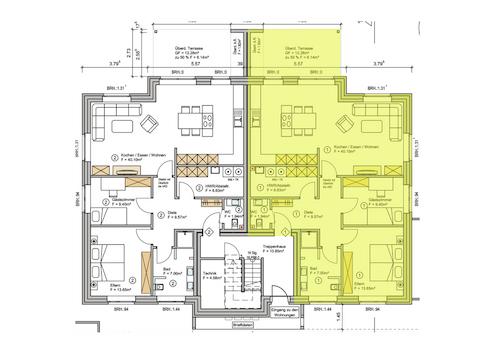
Die angebotene Erdgeschosswohnung überzeugt durch eine durchdachte Raumaufteilung und eine gute Ausstattung. Die Räume sind lichtdurchflutet und schaffen eine angenehme Wohnatmosphäre, die zum Wohlfühlen einlädt.
Aufteilung:
- Diele
- Kochen / Essen / Wohnen
- Schlafzimmer
- Gästezimmer
- Bad
- HWR / Abstellraum mit Waschmaschinen- und Trockneranschluss
- Gäste-WC
Besonders hervorzuheben ist der Garten (siehe Anlage Gartenanteil - WHG 1) mit einer großzügigen Terrasse, welche eine Südausrichtung hergibt, die nicht nur sonnige Stunden verspricht, sondern auch einen idyllischen Rückzugsort im Freien bietet. Hier können Sie entspannte Momente genießen und gesellige Stunden mit Familie und Freunden verbringen.
Ein weiteres Highlight ist der gemeinschaftliche Geräteraum, der Platz für Fahrräder und andere Utensilien bietet. Diese praktische Einrichtung ermöglicht eine organisierte Aufbewahrung und fördert die Gemeinschaft der Bewohner. Zudem verfügt die Wohnung über zwei eigene Stellplätze im Freien, die Ihnen bequeme Parkmöglichkeiten an der Immobilie garantieren.
Diese Erdgeschosswohnung ist nicht nur eine Immobilie – sie ist ein Zuhause, in dem Sie sich wohlfühlen werden.
Standort: Tannenweg in Uelsen
Konkret: Gemarkung Uelsen, Flur 1, Flurstück 53/11
Das Haus wird als Klimafreundliches Wohngebäude gebaut. Hier bestehen Möglichkeiten zur Förderung, welche besprochen werden können.
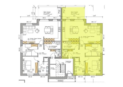
Die angebotene Erdgeschosswohnung überzeugt durch eine durchdachte Raumaufteilung und eine gute Ausstattung. Die Räume sind lichtdurchflutet und schaffen eine angenehme Wohnatmosphäre, die zum Wohlfühlen einlädt.
Aufteilung:
- Diele
- Kochen / Essen / Wohnen
- Schlafzimmer
- Gästezimmer
- Bad
- HWR / Abstellraum mit Waschmaschinen- und Trockneranschluss
- Gäste-WC
Besonders hervorzuheben ist der Garten (siehe Anlage Gartenanteil - WHG 1) mit einer großzügigen Terrasse, welche eine Südausrichtung hergibt, die nicht nur sonnige Stunden verspricht, sondern auch einen idyllischen Rückzugsort im Freien bietet. Hier können Sie entspannte Momente genießen und gesellige Stunden mit Familie und Freunden verbringen.
Ein weiteres Highlight ist der gemeinschaftliche Geräteraum, der Platz für Fahrräder und andere Utensilien bietet. Diese praktische Einrichtung ermöglicht eine organisierte Aufbewahrung und fördert die Gemeinschaft der Bewohner. Zudem verfügt die Wohnung über zwei eigene Stellplätze im Freien, die Ihnen bequeme Parkmöglichkeiten an der Immobilie garantieren.
Diese Erdgeschosswohnung ist nicht nur eine Immobilie – sie ist ein Zuhause, in dem Sie sich wohlfühlen werden.
Standort: Tannenweg in Uelsen
Konkret: Gemarkung Uelsen, Flur 1, Flurstück 53/11
Das Haus wird als Klimafreundliches Wohngebäude gebaut. Hier bestehen Möglichkeiten zur Förderung, welche besprochen werden können.
Sonstige Informationen
Widerrufsbelehrung für Verbraucher:
Sie haben das Recht, binnen vierzehn Tagen ohne Angabe von Gründen diesen Vertrag zu widerrufen. Die Widerrufsfrist beträgt vierzehn Tage ab dem Tag des Vertragsabschlusses.
Um Ihr Widerrufsrecht auszuüben, müssen Sie uns:
RE/MAX Immobilien Grafschaft Bentheim, Veldhausener Str. 34, 49828 Neuenhaus
Tel. 05941 – 98990 0, Fax. 05941 – 98990 29, E-Mail: info@remax-grafschaft.de
mittels einer eindeutigen Erklärung (z.B. ein mit der Post versandter Brief, Telefax oder E-Mail) über Ihren Entschluss, diesen Vertrag zu widerrufen, informieren. Zur Wahrung der Widerrufsfrist reicht es aus, dass Sie die Mitteilung über die Ausübung des Widerrufsrechts vor Ablauf der Widerrufsfrist absenden.
Folgen des Widerrufs:
Wenn Sie diesen Vertrag widerrufen, haben wir Ihnen alle Zahlungen, die wir von Ihnen erhalten haben, unverzüglich und spätestens binnen vierzehn Tagen ab dem Tag zurückzuzahlen, an dem die Mitteilung über Ihren Widerruf dieses Vertrags bei uns eingegangen ist. Für diese Rückzahlung verwenden wir dasselbe Zahlungsmittel, das Sie bei der ursprünglichen Transaktion eingesetzt haben, es sei denn, mit Ihnen wurde ausdrücklich etwas anderes vereinbart; in keinem Fall werden Ihnen wegen dieser Rückzahlung Entgelte berechnet. Haben Sie verlangt, dass die Dienstleistungen während der Widerrufsfrist beginnen soll, so haben Sie uns einen angemessenen Betrag zu zahlen, der dem Anteil der bis zu dem Zeitpunkt, zu dem Sie uns von der Ausübung des Widerrufsrechts hinsichtlich dieses Vertrags unterrichten, bereits erbrachten Dienstleistungen im Vergleich zum Gesamtumfang der in Vertrag vorgesehenen Dienstleistungen entspricht.
Käuferprovision:
Die auf Seite 2 genannte Käuferprovision (inkl. gesetzlicher Umsatzsteuer, derzeit 19%) ist vom Käufer zu zahlen. Verdient und fällig wird diese erst mit notarieller Beurkundung. Die Berechnungsgrundlage ist der notariell festgeschriebene Kaufpreis.
Sämtliche Angebote sind freibleibend und basieren auf Informationen, die der Eigentümer erteilt hat; eine Haftung für deren Richtigkeit und Vollständigkeit kann deshalb nicht übernommen werden. Zwischenverkauf bzw. -vermietung bleibt dem Eigentümer vorbehalten.
Sie haben das Recht, binnen vierzehn Tagen ohne Angabe von Gründen diesen Vertrag zu widerrufen. Die Widerrufsfrist beträgt vierzehn Tage ab dem Tag des Vertragsabschlusses.
Um Ihr Widerrufsrecht auszuüben, müssen Sie uns:
RE/MAX Immobilien Grafschaft Bentheim, Veldhausener Str. 34, 49828 Neuenhaus
Tel. 05941 – 98990 0, Fax. 05941 – 98990 29, E-Mail: info@remax-grafschaft.de
mittels einer eindeutigen Erklärung (z.B. ein mit der Post versandter Brief, Telefax oder E-Mail) über Ihren Entschluss, diesen Vertrag zu widerrufen, informieren. Zur Wahrung der Widerrufsfrist reicht es aus, dass Sie die Mitteilung über die Ausübung des Widerrufsrechts vor Ablauf der Widerrufsfrist absenden.
Folgen des Widerrufs:
Wenn Sie diesen Vertrag widerrufen, haben wir Ihnen alle Zahlungen, die wir von Ihnen erhalten haben, unverzüglich und spätestens binnen vierzehn Tagen ab dem Tag zurückzuzahlen, an dem die Mitteilung über Ihren Widerruf dieses Vertrags bei uns eingegangen ist. Für diese Rückzahlung verwenden wir dasselbe Zahlungsmittel, das Sie bei der ursprünglichen Transaktion eingesetzt haben, es sei denn, mit Ihnen wurde ausdrücklich etwas anderes vereinbart; in keinem Fall werden Ihnen wegen dieser Rückzahlung Entgelte berechnet. Haben Sie verlangt, dass die Dienstleistungen während der Widerrufsfrist beginnen soll, so haben Sie uns einen angemessenen Betrag zu zahlen, der dem Anteil der bis zu dem Zeitpunkt, zu dem Sie uns von der Ausübung des Widerrufsrechts hinsichtlich dieses Vertrags unterrichten, bereits erbrachten Dienstleistungen im Vergleich zum Gesamtumfang der in Vertrag vorgesehenen Dienstleistungen entspricht.
Käuferprovision:
Die auf Seite 2 genannte Käuferprovision (inkl. gesetzlicher Umsatzsteuer, derzeit 19%) ist vom Käufer zu zahlen. Verdient und fällig wird diese erst mit notarieller Beurkundung. Die Berechnungsgrundlage ist der notariell festgeschriebene Kaufpreis.
Sämtliche Angebote sind freibleibend und basieren auf Informationen, die der Eigentümer erteilt hat; eine Haftung für deren Richtigkeit und Vollständigkeit kann deshalb nicht übernommen werden. Zwischenverkauf bzw. -vermietung bleibt dem Eigentümer vorbehalten.
Lage des Objektes
Uelsen ist eine charmante Gemeinde im westlichen Niedersachsen, Deutschland. Diese ländliche Region zeichnet sich durch ihre idyllische Landschaft, traditionelle Architektur und freundliche Gemeinschaft aus.
Die Gemeinde bietet eine Mischung aus modernen Annehmlichkeiten und dem rustikalen Charme eines typisch deutschen Dorfes. Uelsen ist von grünen Feldern, Wäldern und sanften Hügeln umgeben, was es zu einem idealen Ort für Naturliebhaber und Outdoor-Aktivitäten macht. Wander- und Radwege erstrecken sich durch die Umgebung und bieten die Möglichkeit, die Schönheit der Natur zu erkunden.
Das Ortsbild von Uelsen wird von gepflegten Fachwerkhäusern, traditionellen Bauernhöfen und malerischen Kirchen geprägt. Die Bewohner schätzen ihre lokale Geschichte, die sich in den Gebäuden und Denkmälern widerspiegelt. Der historische Charme der Gemeinde verbindet sich harmonisch mit modernen Einrichtungen, darunter Geschäfte, Restaurants und gemütliche Cafés.
Die Menschen in Uelsen sind für ihre Gastfreundschaft und Gemeinschaftsgeist bekannt. Traditionelle Feste und Veranstaltungen stärken das soziale Leben und bieten Besuchern die Möglichkeit, die lokale Kultur hautnah zu erleben. Die regionale Küche mit ihren schmackhaften Gerichten trägt ebenfalls zur einladenden Atmosphäre bei.
Uelsen ist nicht nur ein Ort, sondern ein Erlebnis. Ob Sie die Natur erkunden, historische Stätten besichtigen oder sich einfach mit den Einheimischen austauschen möchten, diese deutsche Gemeinde hat für jeden etwas zu bieten.
Die Gemeinde bietet eine Mischung aus modernen Annehmlichkeiten und dem rustikalen Charme eines typisch deutschen Dorfes. Uelsen ist von grünen Feldern, Wäldern und sanften Hügeln umgeben, was es zu einem idealen Ort für Naturliebhaber und Outdoor-Aktivitäten macht. Wander- und Radwege erstrecken sich durch die Umgebung und bieten die Möglichkeit, die Schönheit der Natur zu erkunden.
Das Ortsbild von Uelsen wird von gepflegten Fachwerkhäusern, traditionellen Bauernhöfen und malerischen Kirchen geprägt. Die Bewohner schätzen ihre lokale Geschichte, die sich in den Gebäuden und Denkmälern widerspiegelt. Der historische Charme der Gemeinde verbindet sich harmonisch mit modernen Einrichtungen, darunter Geschäfte, Restaurants und gemütliche Cafés.
Die Menschen in Uelsen sind für ihre Gastfreundschaft und Gemeinschaftsgeist bekannt. Traditionelle Feste und Veranstaltungen stärken das soziale Leben und bieten Besuchern die Möglichkeit, die lokale Kultur hautnah zu erleben. Die regionale Küche mit ihren schmackhaften Gerichten trägt ebenfalls zur einladenden Atmosphäre bei.
Uelsen ist nicht nur ein Ort, sondern ein Erlebnis. Ob Sie die Natur erkunden, historische Stätten besichtigen oder sich einfach mit den Einheimischen austauschen möchten, diese deutsche Gemeinde hat für jeden etwas zu bieten.
Anbieter kontaktieren
Anbieter
Frank grote Hölmann e.K.
Veldhausener Straße 34
49828 Neuenhaus
Kontakt
| Telefon | 004959419899017 |
| Fax | 004959419899029 |
| Website | www.immobiliensuche24.de |
