Einfamilienhaus FAMILY XXL, mit Keller und schönem Grundstück
519.020 €
Kaufpreis
163,37 m²
Wohnfläche
78,96 m²
Nutzfläche
5
Zimmer
immobilien.de Nr.: 9146399
Objektnummer: BV-MF-FM- XXL - 16
Preise & Kosten
| Kaufpreis | 519.020 € |
| Nebenkosten | keine Angabe |
| Maklerprovision | entfällt |
Größe & Zustand
| Wohnfläche | 163,37 m² |
| Nutzfläche | 78,96 m² |
| Grundstücksfläche | 610 m² |
| Zimmer | 5 |
| Baujahr | 2026 |
| Verfügbar ab | 2026 |
| Zustand | Projektiert |
Energie
| Energietyp | KfW-40 |
| Heizungsart | Zentralheizung |
| Energieträger/Befeuerung | Luft-Wärme-Pumpe |
Objektbeschreibung
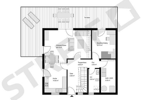
Willkommen in Ihrem zukünftigen Traumhaus in Erbach/OT! Dieses Einfamilienhaus, vereint modernes Design mit durchdachter Funktionalität. Mit 6 Zimmern und einer großzügigen Wohnfläche von 163,37 m² auf zwei Etagen bietet dieses Haus ausreichend Raum für Ihre Familie. Die durchdachte Raumaufteilung umfasst 5 Schlafzimmer eins davon mit einem geräumigen Ankleidezimmer, ein komfortables Badezimmer mit Dusche, Wanne und Fenster sowie ein zusätzliches Gäste-WC, OPTIONAL mit Dusche zu ergänzen, sowie eine volle Unterkellerung. Hier finden Sie den perfekten Rückzugsort für jeden Familienmitglied. Unsere Bauweise garantiert Ihnen nicht nur ein ansprechendes Wohnambiente, sondern auch eine zukunftsorientierte Bauweise, die den KfW40 Standard erfüllt und somit energieeffizient ist. Wärmepumpen als Befeuerungsart sorgen für eine nachhaltige und kostengünstige Heizlösung, die sowohl umweltfreundlich als auch effizient ist. Wir begleiten Sie von der ersten Beratung bis zur schlüsselfertigen Übergabe Ihres Hauses und garantieren damit ein Rundum-sorglos-Paket.
Ausstattung
| Anzahl der Etagen im Haus | 2 |
| Küche | Offene Küche |
| Bad | 1 |
| Bad | Dusche, Wanne, Fenster |
| Keller |
Diese Immobilie überzeugt durch ihre gehobene Ausstattung und die Verwendung hochwertiger Materialien. Die Ausbaustufe 3 - FastFertigPlus ermöglicht es Ihnen, aktiv bei der Gestaltung Ihres Hauses mitzuarbeiten, während die haustechnischen Gewerke wie Heizung, Lüftung, Sanitär und Estrich von einem Fachbetrieb durchgeführt werden. Dadurch erhalten Sie nicht nur ein individuell gestaltetes Zuhause, sondern auch eine fachgerechte Ausführung, die höchsten Ansprüchen genügt.
Sonstige Informationen
Unser Angebot umfasst verschiedene Ausbaustufen, wobei Sie bei STREIF zwischen vier Optionen wählen können. Die Ausbaustufe FastFertigPlus beinhaltet die Sanitär-Grundausstattung und ermöglicht es Ihnen, Eigenleistungen in Form einer Muskelhypothek einzubringen, was Ihnen bares Geld spart. Wir stehen Ihnen während des gesamten Bauprozesses zur Seite und garantieren eine reibungslose Umsetzung Ihrer Wünsche.
Lage des Objektes
Das Einfamilienhaus befindet sich in einer ruhigen, ländlichen, grünen Wohngegend in Erbach/OT , die Ihnen eine hervorragende Lebensqualität bietet. Hier genießen Sie die Vorzüge einer naturnahen Umgebung, während die Infrastruktur alle wichtigen Einrichtungen des täglichen Bedarfs in unmittelbarer Nähe bereitstellt. Ob Bus, Schulen, Einkaufsmöglichkeiten oder Freizeitangebote - alles ist bequem erreichbar und sorgt für ein harmonisches Wohnen.
Anbieter kontaktieren
Kontakt
| Mobil | +49 173 3128155 |
| Website | www.streif.de |
