Attraktive - moderne VILLA in XL Ausstattung
808.000 €
Kaufpreis
150 m²
Wohnfläche
4
Zimmer
immobilien.de Nr.: 9144366
Objektnummer: BV-MF-VILLA-XL -10
Preise & Kosten
| Kaufpreis | 808.000 € |
| Nebenkosten | keine Angabe |
| Maklerprovision | entfällt |
Größe & Zustand
| Wohnfläche | 150 m² |
| Grundstücksfläche | 494 m² |
| Zimmer | 4 |
| Baujahr | 2026 |
| Verfügbar ab | 2026 |
| Zustand | Projektiert |
Energie
| Energietyp | KfW-40 |
| Heizungsart | Zentralheizung |
| Energieträger/Befeuerung | Luft-Wärme-Pumpe |
Objektbeschreibung
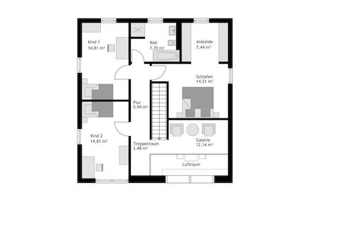
Willkommen in Ihrer zukünftigen Stadtvilla in Reinheim. Dieses exquisite Zuhause bietet Ihnen auf einer großzügigen Wohnfläche von 150,23 m² Platz für Ihre ganze Familie. Die Stadtvilla erstreckt sich über zwei Etagen, die mit vier lichtdurchfluteten Zimmern, darunter drei einladende Schlafzimmer eins davon mit einem großzügigem Ankleideraum sowie einem modernen Badezimmer mit Dusche, Wanne und Fenster ausgestattet sind. Eine GALERIE mit 2 geschossigem Panoramafenstern rundet das Angebot ab. Ein zusätzliches Gäste-WC sorgt für zusätzlichen Komfort OPTIONAL was noch mit einer Dusche man ergänzen könnte. Dank des hochwertigen KFW40 Standards und der umweltfreundlichen Wärmepumpe genießen Sie nicht nur ein angenehmes Raumklima, sondern reduzieren auch Ihre Energiekosten. Ihre individuelle Gestaltung wird in enger Zusammenarbeit mit unserer STREIF-Bauberatung realisiert, sodass Ihre Träume in Erfüllung gehen können. Ob Sie sich für ein Flachdach oder Walmdach entscheiden oder in modernen Farben gestalten möchten - die Möglichkeiten sind nahezu unbegrenzt.
Das Baukonzept basiert auf der Ausbaustufe 3 - FastFertigPlus, bei der Sie aktiv an der Gestaltung Ihres Eigenheims mitwirken können. Hierbei übernehmen Fachbetriebe die wesentlichen haustechnischen Gewerke wie Heizung, Lüftung, Sanitär und Estrich, während Sie mit Eigenleistungen bares Geld sparen können.
Das Baukonzept basiert auf der Ausbaustufe 3 - FastFertigPlus, bei der Sie aktiv an der Gestaltung Ihres Eigenheims mitwirken können. Hierbei übernehmen Fachbetriebe die wesentlichen haustechnischen Gewerke wie Heizung, Lüftung, Sanitär und Estrich, während Sie mit Eigenleistungen bares Geld sparen können.
Ausstattung
| Anzahl der Etagen im Haus | 2 |
| Küche | Offene Küche |
| Bad | 1 |
| Bad | Dusche, Wanne, Fenster |
Die Stadtvilla überzeugt durch ihre hochwertige Ausstattung: Die innovative Wärmepumpe sorgt für eine effiziente Beheizung und senkt die Energiekosten. Für ein modernes Wohngefühl sorgt die Sanitär-Grundausstattung im Badezimmer.
Sonstige Informationen
Sie haben die Wahl zwischen vier verschiedenen Ausbaustufen, die auf Ihre individuellen Bedürfnisse abgestimmt sind. In der Ausbaustufe FastFertigPlus sind alle wichtigen haustechnischen Gewerke bereits inkludiert, und Sie können Eigenleistungen erbringen, um Kosten zu sparen. Unsere STREIF-Bauberatung nimmt sich Zeit für Sie und zeigt Ihnen alle Möglichkeiten auf, damit Ihr Traumhaus Wirklichkeit wird. Ob schlüsselfertig oder als Ausbauhaus - wir gestalten Ihr Zuhause ganz nach Ihren Vorstellungen.
Lage des Objektes
Die Stadtvilla befindet sich in einem ruhigen Neubaugebiet in Reinheim/OT, das durch eine familienfreundliche Wohngegend geprägt ist. Die Infrastruktur bietet Ihnen alles, was Sie für den täglichen Bedarf benötigen, und in der Umgebung finden Sie zahlreiche Freizeitmöglichkeiten. Ob Wald, Parkanlagen oder Spielplätze - hier ist für jeden etwas dabei.
Anbieter kontaktieren
Kontakt
| Mobil | +49 173 3128155 |
| Website | www.streif.de |
