Freistehendes Einfamilienhaus mit modernen Komfort und großen Grundstück, Nähe Landshut zum Verkauf
549.000 €
Kaufpreis
160 m²
Wohnfläche
6
Zimmer
immobilien.de Nr.: 9142700
Objektnummer: 897153
Preise & Kosten
| Kaufpreis | 549.000 € |
| Nebenkosten | keine Angabe |
| Maklerprovision | 2,38 % (inkl. MwSt.) |
Größe & Zustand
| Wohnfläche | 160 m² |
| Grundstücksfläche | 1.227 m² |
| Zimmer | 6 |
| Baujahr | 1984 |
| Verfügbar ab | sofort |
| Zustand | Modernisiert |
Energie
| Energieausweistyp | Verbrauch |
| Ausstellungsdatum | 01. 10. 2018 |
| Baujahr (laut Energieausweis) | 1984 |
| Energieeffizienzklasse | F |
| Energieverbrauchkennwert | 192 kWh/(m²*a) |
| Heizungsart | Fußbodenheizung |
| Wesentlicher Energieträger | Öl |
| Energieträger/Befeuerung | Öl |
Objektbeschreibung
Willkommen in Ihrem neuen, schicken Zuhause! Dieses charmante Einfamilienhaus aus dem Jahr 1984 befindet sich in ruhiger, ländlicher Lage im beliebten Ortsteil Unterneuhausen bei Weihmichl. Das Haus und der Garten wurde stets gepflegt und gehegt und im letzten Jahr wurde das komplette Erdgeschoss saniert und modernisiert und mit zeitgemäßer und geschmackvoller Innenausstattung versehen.
Auf einem großzügigen Grundstück von ca. 1.227 qm erwartet Sie ein liebevoll gepflegtes Anwesen mit viel Platz für Familie, Freizeit und Erholung.
Highlights dieser Immobilie:
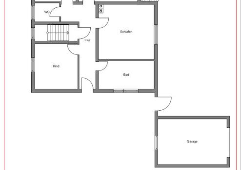
* Wohnfläche insgesamt ca. 160 qm, aufgeteilt auf sechs helle und gut geschnittene Zimmer
im Erdgeschoss und Untergeschoss. Ideal für Familien oder Menschen mit viel Platzbedarf.
* Erdgeschoss vollständig modernisiert und saniert: 2024 Einbau eines neues,
stilvolles Tageslichtbad
sowie einer hochwertige Einbauküche, die keine Wünsche offen lässt.
* Schickes, großes Wohnzimmer mit Zugang zur Terrasse und Blick in den großen,
sonnigen Garten mit Gartenhaus.
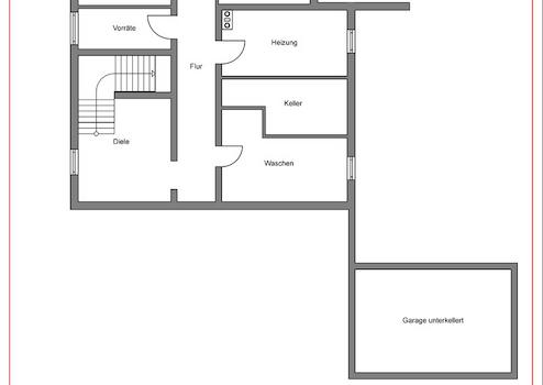
* Teilweise Fußbodenheizung im Erdgeschoss sowie im Untergeschoss.
* Komplett Unterkellert, mit viel Stauraum und Möglichkeiten zur individuellen Nutzung.
* Beide Hobbyräume im Untergeschoss mit Tageslichtfenster, einer der Hobbyräume ist mit einen
offenen Kamin ausgestattet, ideal für gemütliche u. gesellige Abende mit Freunden und Familie.
* 2018 Einbau einer neuen Brennwert-Ölheizung, effizient und zuverlässig
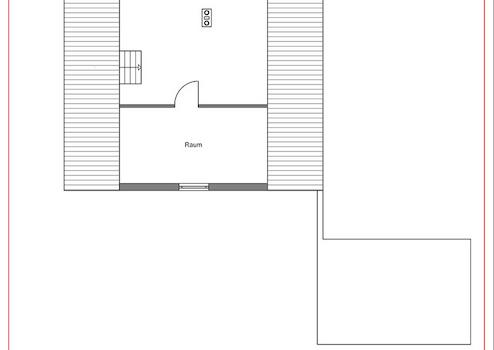
* Großes Dachgeschoss bietet zusätzlich viel Stauraum oder die Möglichkeit, zusätzlich Wohntraum
zu schaffen.
* Garage und zusätzlicher Stellplatz direkt am Haus.
Dieses Haus vereint modernen Wohnkomfort mit ländlichem Charme und bietet Ihnen und Ihrer Familie Raum zum Leben, Entspannen und Wohlfühlen.
Wann wollen Sie besichtigen?
Vereinbaren Sie jetzt Ihren persönlichen Besichtigungstermin und lassen Sie sich vor Ort begeistern!
Ansprechpartner Frau Danner A. 0871/43 04 17-15.
Weitere Angebote unter www.GARANT-IMMO.de
Auf einem großzügigen Grundstück von ca. 1.227 qm erwartet Sie ein liebevoll gepflegtes Anwesen mit viel Platz für Familie, Freizeit und Erholung.
Highlights dieser Immobilie:
* Wohnfläche insgesamt ca. 160 qm, aufgeteilt auf sechs helle und gut geschnittene Zimmer
im Erdgeschoss und Untergeschoss. Ideal für Familien oder Menschen mit viel Platzbedarf.
* Erdgeschoss vollständig modernisiert und saniert: 2024 Einbau eines neues,
stilvolles Tageslichtbad
sowie einer hochwertige Einbauküche, die keine Wünsche offen lässt.
* Schickes, großes Wohnzimmer mit Zugang zur Terrasse und Blick in den großen,
sonnigen Garten mit Gartenhaus.
* Teilweise Fußbodenheizung im Erdgeschoss sowie im Untergeschoss.
* Komplett Unterkellert, mit viel Stauraum und Möglichkeiten zur individuellen Nutzung.
* Beide Hobbyräume im Untergeschoss mit Tageslichtfenster, einer der Hobbyräume ist mit einen
offenen Kamin ausgestattet, ideal für gemütliche u. gesellige Abende mit Freunden und Familie.
* 2018 Einbau einer neuen Brennwert-Ölheizung, effizient und zuverlässig
* Großes Dachgeschoss bietet zusätzlich viel Stauraum oder die Möglichkeit, zusätzlich Wohntraum
zu schaffen.
* Garage und zusätzlicher Stellplatz direkt am Haus.
Dieses Haus vereint modernen Wohnkomfort mit ländlichem Charme und bietet Ihnen und Ihrer Familie Raum zum Leben, Entspannen und Wohlfühlen.
Wann wollen Sie besichtigen?
Vereinbaren Sie jetzt Ihren persönlichen Besichtigungstermin und lassen Sie sich vor Ort begeistern!
Ansprechpartner Frau Danner A. 0871/43 04 17-15.
Weitere Angebote unter www.GARANT-IMMO.de
Ausstattung
| Anzahl der Etagen im Haus | 1 |
| Bad | 1 |
| Boden | Fliesen, Laminat, Marmor |
Untergeschoss:
* Waschküche mit Podest für Waschmaschine / Trockner
* Buderus Brennwert- Ölheizung BJ 2018
* Hobbykeller I. mit Tageslichtfenster und
hochwertigen Korkboden
* Hobbykeller II. mit offenen Kamin
* Direkter Zugang zum Garten
Erdgeschoss:
* Teilweise Fußbodenheizung
* Hochwertige neue Einbauküche mit modernsten Elektrogeräten
* Neues, modernes Badezimmer mit begehbarer Dusche und
Badewanne
* Laminatböden und hochwertige Fliesenböden
* Marmorboden im Flurbereich und im Gäste- WC
* Stuckverzierungen an den Zimmerdecken
* Rollläden an allen Fenstern und Terrassentüren, teilweise
elektrisch
* Modernes Gäste-WC
* Waschküche mit Podest für Waschmaschine / Trockner
* Buderus Brennwert- Ölheizung BJ 2018
* Hobbykeller I. mit Tageslichtfenster und
hochwertigen Korkboden
* Hobbykeller II. mit offenen Kamin
* Direkter Zugang zum Garten
Erdgeschoss:
* Teilweise Fußbodenheizung
* Hochwertige neue Einbauküche mit modernsten Elektrogeräten
* Neues, modernes Badezimmer mit begehbarer Dusche und
Badewanne
* Laminatböden und hochwertige Fliesenböden
* Marmorboden im Flurbereich und im Gäste- WC
* Stuckverzierungen an den Zimmerdecken
* Rollläden an allen Fenstern und Terrassentüren, teilweise
elektrisch
* Modernes Gäste-WC
Sonstige Informationen
* Großzügige, unterkellerte Garage mit Rolltor
* Stellplatz vor der Garage
* Öltanklager sowie eine Werkstatt im Keller
unter der Garage
* Einbauküche kann abgelöst werden,
Verkaufspreis nach VB
* Stellplatz vor der Garage
* Öltanklager sowie eine Werkstatt im Keller
unter der Garage
* Einbauküche kann abgelöst werden,
Verkaufspreis nach VB
Lage des Objektes
Idyllisch und ruhig liegt dieses komfortable Einfamilienhaus in einer langjährig gewachsenen reinen Wohnsiedlung in Unterneuhausen bei der Gemeinde Weihmichl.
Das weitläufige Eck-Grundstück weist eine moderate Hanglage auf und bietet noch viel Platz
für individuelle Gestaltungsmöglichkeiten z. B. Pool, Hochbeet, Sandkasten und Spielplatz
Nach vorne haben Sie freie Sicht auf die umliegenden landwirtschaftlichen Flächen,
welche direkt von zwei Seiten angrenzen - unverbaubar.
Unterneuhausen ist ein Ortsteil der Gemeinde Weihmichl, welche zum Landkreis Landshut gehört. Der Ort liegt im Osten der Hallertau nur rund 14 km nord-westlich von Landshut an der B299.
Ein gut ausgebautes Wander- und Radwegenetz verbindet Weihmichl und seine Ortsteile mit Landshut oder Pfeffenhausen. Ein großer Vorteil ist die nahe Anbindung zu den Autobahnen A92 und A93. Hier kann man ländliches Leben mit einer sehr guten Infrastruktur perfekt kombinieren.
Das weitläufige Eck-Grundstück weist eine moderate Hanglage auf und bietet noch viel Platz
für individuelle Gestaltungsmöglichkeiten z. B. Pool, Hochbeet, Sandkasten und Spielplatz
Nach vorne haben Sie freie Sicht auf die umliegenden landwirtschaftlichen Flächen,
welche direkt von zwei Seiten angrenzen - unverbaubar.
Unterneuhausen ist ein Ortsteil der Gemeinde Weihmichl, welche zum Landkreis Landshut gehört. Der Ort liegt im Osten der Hallertau nur rund 14 km nord-westlich von Landshut an der B299.
Ein gut ausgebautes Wander- und Radwegenetz verbindet Weihmichl und seine Ortsteile mit Landshut oder Pfeffenhausen. Ein großer Vorteil ist die nahe Anbindung zu den Autobahnen A92 und A93. Hier kann man ländliches Leben mit einer sehr guten Infrastruktur perfekt kombinieren.
Anbieter kontaktieren
Kontakt
| Telefon | 0871/43 04 17-0 |
| Fax | 0871/43 04 17-20 |
| Website | www.garant-immo.de |
