Doppelhaushälfte inkl. Grundstück am Erlanger Burgberg
920.500 €
Kaufpreis
140 m²
Wohnfläche
5
Zimmer
immobilien.de Nr.: 9116937
Objektnummer: DHHERLBB
Preise & Kosten
| Kaufpreis | 920.500 € |
| Nebenkosten | keine Angabe |
Größe & Zustand
| Wohnfläche | 140 m² |
| Grundstücksfläche | 370 m² |
| Zimmer | 5 |
| Verfügbar ab | keine Angabe |
| Zustand | Projektiert |
Energie
| Energietyp | KfW-40 |
| Heizungsart | Zentralheizung |
| Energieträger/Befeuerung | Luft-Wärme-Pumpe |
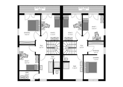
Objektbeschreibung
Willkommen bei Ihrem zukünftigen Traumhausprojekt am Erlanger Burgberg, das sich perfekt an Ihre individuellen Bedürfnisse und Wünsche anpasst. Dieses projektierte Doppelhaus verkörpert modernes Wohnen auf höchstem Niveau und bietet Ihnen die Möglichkeit, Ihr Zuhause genau nach Ihren Vorstellungen zu gestalten. Auf einer Wohnfläche von 140 m², verteilt über zwei Etagen, finden Sie ausreichend Platz für Ihre Familie. Mit fünf Zimmern, darunter drei geräumige Schlafzimmer, einem modernen Badezimmer sowie einem zusätzlichen Gäste-WC, wird jeder Raum optimal genutzt und bietet Ihnen den Komfort, den Sie verdienen.
Ausstattung
| Anzahl der Etagen im Haus | 2 |
| Bad | 1 |
Dieses herausragende Projekt besticht durch seine hochwertige Ausstattung und den Einsatz modernster Technologien. Die Befeuerungsart mittels Wärmepumpe sorgt für eine umweltfreundliche und kosteneffiziente Beheizung Ihres Hauses und entspricht gleichzeitig dem KFW40 Standard für Energieeffizienz. Unsere STREIF Wandkonstruktion garantiert zudem hervorragende Schallisolierung für ein ruhiges Wohnerlebnis Seite an Seite mit Ihrer Nachbarschaft.
Sonstige Informationen
Unser Hausangebot umfasst die Ausbaustufe 3 - FastFertigPlus: mit Sanitär-Grundausstattung. Diese Stufe ist ideal für alle Bauherren, die aktiv bei der Errichtung ihres Hauses mitwirken möchten, aber die haustechnischen Gewerke wie Heizung, Lüftung oder Estrich lieber den Fachleuten überlassen.
Sämtliche Grundrisse können nach Ihren Vorstellungen geändert werden, sodass das Haus zu IHREM TRAUMHAUS wird.
Sämtliche Grundrisse können nach Ihren Vorstellungen geändert werden, sodass das Haus zu IHREM TRAUMHAUS wird.
Lage des Objektes
Das Objekt befindet sich in einem attraktiven Wohngebiet vom Erlanger Burgberg, das durch seine hervorragende Infrastruktur besticht. Durch die Nähe zu Einkaufsmöglichkeiten, Schulen und Freizeitangeboten ist es der ideale Standort für Familien. Die ausgezeichnete Anbindung an den öffentlichen Nahverkehr ermöglicht Ihnen zudem eine schnelle Erreichbarkeit des Stadtzentrums und der umliegenden Regionen.
