Zweifamilienhaus in Aussichtslage für gehobene Ansprüche
675.000 €
Kaufpreis
284 m²
Wohnfläche
9
Zimmer
immobilien.de Nr.: 9086457
Objektnummer: 841047
Preise & Kosten
| Kaufpreis | 675.000 € |
| Nebenkosten | keine Angabe |
| Maklerprovision | 3,57 % (inkl. MwSt.) |
Größe & Zustand
| Wohnfläche | 284 m² |
| Grundstücksfläche | 1.355 m² |
| Zimmer | 9 |
| Baujahr | 2001 |
| Verfügbar ab | nach Absprache |
| Zustand | Gepflegt |
Energie
| Energieausweistyp | Verbrauch |
| Ausstellungsdatum | 10. 05. 2025 |
| Baujahr (laut Energieausweis) | 2001 |
| Energieeffizienzklasse | D |
| Energieverbrauchkennwert | 103.6 kWh/(m²*a) |
| Heizungsart | Zentralheizung |
| Wesentlicher Energieträger | Holz |
| Energieträger/Befeuerung | Holz |
Objektbeschreibung
Aus diesem schönen Zweifamilienhaus genießen Sie einen herrlichen Blick über den Bayerischen Wald.
Das Haus wurde erst in 2001 erbaut und wurde mit Weitsicht und hochwertigen Materialien errichtet. Das gibt Ihnen heute viele Annehmlichkeiten und einen hohen Qualitätsstandard.
Dazu zählen hochwertige Fenster mit Fliegengitter und Rollos. Die Vorbereitung für eine Einzelraumlüftung, ein zweizügiger Kamin, über den neben der Zentralheizung auch Holz-Einzelöfen angeschlossen sind.
Das oberste Geschoss wurde 2018 ausgebaut und hat zu den Flachheizkörpern der Zentralheizung auch eine Fußbodenheizung mit Einzelraumregelung. Zudem entspricht das Styling und die Ausstattung dem modernen Stil und Zeitgeist.
Sie wohnen hier über drei Ebenen, die Sie aus dem zentralen Treppenhaus mit einem eigenen Zugang erreichen.
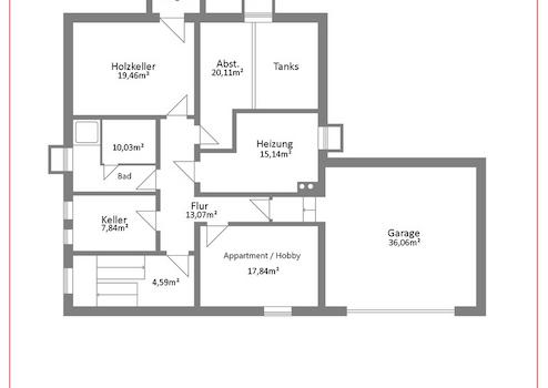
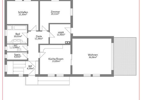
Das geräumige Haus hat in der ersten und zweiten Etage eine Fläche von jeweils ca. 142 m², die aktuell von zwei Generationen bewohnt werden. Auf der untersten Ebene kann ein Apartment mit Küche eingerichtet werden. Das eigene Bad und weitere Räume bieten beste Möglichkeiten, den Wohnbereich hier zu erweitern.
Dazu gehört ein großer Garten, ein Balkon und eine ca. 130 m² große Terrassen, die sich über zwei Seiten erstreckt. In dem schönen Garten können Sie entspannte Stunden verbringen und Ihr eigenes Gemüse ernten.
Zu der großen Doppelgarage am Haus gibt es noch ein weiteres Nebengebäude, das auch als Garage genutzt werden kann.
Es bietet sich damit eine günstige Gelegenheit, ein hochwertiges Haus mit guter Energiebilanz und
viel Fläche innen wie außen, nach Ihren Wünschen zu bewohnen.
Ob als Familie, wo die Kinder Ihren Freiraum genießen,
als Mehrgenerationenhaus oder als Altersruhesitz mit Weitblick - Nutzen Sie diese tollen Möglichkeiten!
Weitere Angebote unter www.GARANT-IMMO.de
Das Haus wurde erst in 2001 erbaut und wurde mit Weitsicht und hochwertigen Materialien errichtet. Das gibt Ihnen heute viele Annehmlichkeiten und einen hohen Qualitätsstandard.
Dazu zählen hochwertige Fenster mit Fliegengitter und Rollos. Die Vorbereitung für eine Einzelraumlüftung, ein zweizügiger Kamin, über den neben der Zentralheizung auch Holz-Einzelöfen angeschlossen sind.
Das oberste Geschoss wurde 2018 ausgebaut und hat zu den Flachheizkörpern der Zentralheizung auch eine Fußbodenheizung mit Einzelraumregelung. Zudem entspricht das Styling und die Ausstattung dem modernen Stil und Zeitgeist.
Sie wohnen hier über drei Ebenen, die Sie aus dem zentralen Treppenhaus mit einem eigenen Zugang erreichen.
Das geräumige Haus hat in der ersten und zweiten Etage eine Fläche von jeweils ca. 142 m², die aktuell von zwei Generationen bewohnt werden. Auf der untersten Ebene kann ein Apartment mit Küche eingerichtet werden. Das eigene Bad und weitere Räume bieten beste Möglichkeiten, den Wohnbereich hier zu erweitern.
Dazu gehört ein großer Garten, ein Balkon und eine ca. 130 m² große Terrassen, die sich über zwei Seiten erstreckt. In dem schönen Garten können Sie entspannte Stunden verbringen und Ihr eigenes Gemüse ernten.
Zu der großen Doppelgarage am Haus gibt es noch ein weiteres Nebengebäude, das auch als Garage genutzt werden kann.
Es bietet sich damit eine günstige Gelegenheit, ein hochwertiges Haus mit guter Energiebilanz und
viel Fläche innen wie außen, nach Ihren Wünschen zu bewohnen.
Ob als Familie, wo die Kinder Ihren Freiraum genießen,
als Mehrgenerationenhaus oder als Altersruhesitz mit Weitblick - Nutzen Sie diese tollen Möglichkeiten!
Weitere Angebote unter www.GARANT-IMMO.de
Ausstattung
| Anzahl der Etagen im Haus | 2 |
| Küche | Einbauküche |
| Bad | 3 |
| Boden | Fliesen, Parkett |
| Balkone | 1 |
- Küchenanschlüsse auf jeder Etage
- Saunaanschluss möglich
- Fenster mit Fliegengitter und Rollos
- große Terrasse über zwei Seiten
- Balkon
- Garten
- Gemüsebeete
- Doppelgarage mit Sektionaltor aus 2017
- Nebengebäude
- Solarthermie ca. 7,5 m² mit 600 L Boiler
- Saunaanschluss möglich
- Fenster mit Fliegengitter und Rollos
- große Terrasse über zwei Seiten
- Balkon
- Garten
- Gemüsebeete
- Doppelgarage mit Sektionaltor aus 2017
- Nebengebäude
- Solarthermie ca. 7,5 m² mit 600 L Boiler
Sonstige Informationen
Das Haus wird von den Eigentümern bis ca. Herbst 2026 vollständig geräumt.
Bei früherem Einzugswunsch der Käufer, kann das Obergeschoss bezogen werden, und auch nach Absprache der Gartenbereich bereits genutzt werden.
Bei früherem Einzugswunsch der Käufer, kann das Obergeschoss bezogen werden, und auch nach Absprache der Gartenbereich bereits genutzt werden.
Lage des Objektes
Die Gemeinde Mauth liegt im Nationalpark Bayerischer Wald, im Landkreis Freyung-Grafenau, Nähe Passau.
In unmittelbarer Umgebung befindet sich ein großes Wandergebiet, ein Badesee und ein anspruchsvolles Langlaufzentrum. In wenigen Minuten erreichen Sie Finsterau mit seiner Skatingstrecke oder in ca. 8 km Mitterfirmiansreut, mit seinem familienfreundlichen Ski-Zentrum.
Zahlreiche Fahrradwege und Freizeiteinrichtungen, wie das beliebte Tierfreigehege oder Baumei,
runden das Angebot für alle Jahreszeiten ab.
Hier kommt jeder auf seinen Geschmack!
Die gute Infrastruktur ermöglicht Ihnen,
Einkäufe für den täglichen Bedarf im ca. 2 km entfernten Mauth erledigen zu können.
Hier befinden sich auch ein Allgemeinarzt, Zahnarzt, Kindergarten und die Grundschule.
In unmittelbarer Umgebung befindet sich ein großes Wandergebiet, ein Badesee und ein anspruchsvolles Langlaufzentrum. In wenigen Minuten erreichen Sie Finsterau mit seiner Skatingstrecke oder in ca. 8 km Mitterfirmiansreut, mit seinem familienfreundlichen Ski-Zentrum.
Zahlreiche Fahrradwege und Freizeiteinrichtungen, wie das beliebte Tierfreigehege oder Baumei,
runden das Angebot für alle Jahreszeiten ab.
Hier kommt jeder auf seinen Geschmack!
Die gute Infrastruktur ermöglicht Ihnen,
Einkäufe für den täglichen Bedarf im ca. 2 km entfernten Mauth erledigen zu können.
Hier befinden sich auch ein Allgemeinarzt, Zahnarzt, Kindergarten und die Grundschule.
Anbieter kontaktieren
Kontakt
| Telefon | 0851/96 67 94-0 |
| Fax | 0851/96 67 94-20 |
| Website | www.garant-immo.de |
