Alle guten Dinge sind Drei - Drei Giebel inkl. Grundstück = Projektpreis!
517.900 €
Kaufpreis
126,01 m²
Wohnfläche
138,57 m²
Nutzfläche
4
Zimmer
immobilien.de Nr.: 9059053
Objektnummer: BH-JH-2501 (1/563)
Kaufpreis
| Kaufpreis | 517.900 € |
Wohnfläche, Grundstück & Bausubstanz
| Wohnfläche | 126,01 m² |
| Nutzfläche | 138,57 m² |
| Grundstücksfläche | 578 m² |
| Zimmer | 4 |
| Baujahr | 2025 |
| Verfügbar ab | keine Angabe |
| Zustand | Projektiert |
Energie
| Heizungsart | Fußbodenheizung |
| Energieträger/Befeuerung | Luft-Wärme-Pumpe |
Beschreibung der Immobilie
Das helle Dreigiebelhaus für die Familie
Das Dreigiebelhaus für die junge Familie. Mit raffinierten Grundrissen für das neue Familienleben. Im Erdgeschoss Essen und Wohnen auf rund 41 m² und eine leicht abgesetzte Küche mit Abstellraum. Dazu ein ruhiges Arbeits- oder Gästezimmer.
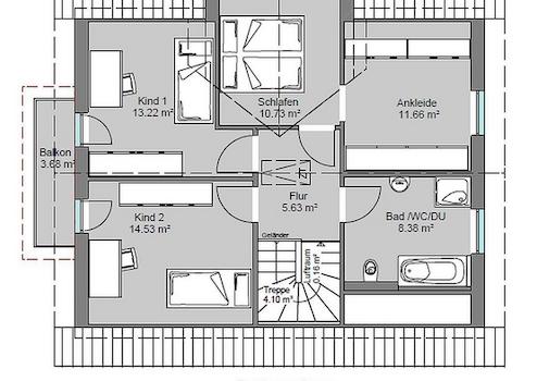
Im Dachgeschoss haben wir den Flur bewusst kleiner geplant und so mehr Platz für das Schlafzimmer mit eigenem Ankleideraum und die 2 großzügigen Kinderzimmer mit Balkon geschaffen.
Auch optisch wirkt das Haus: Durch das farblich abgesetzte Zwerchhaus mit dem dritten Giebel erhält dieses Haus seine unverwechselbare Note.
Das Dreigiebelhaus für die junge Familie. Mit raffinierten Grundrissen für das neue Familienleben. Im Erdgeschoss Essen und Wohnen auf rund 41 m² und eine leicht abgesetzte Küche mit Abstellraum. Dazu ein ruhiges Arbeits- oder Gästezimmer.
Im Dachgeschoss haben wir den Flur bewusst kleiner geplant und so mehr Platz für das Schlafzimmer mit eigenem Ankleideraum und die 2 großzügigen Kinderzimmer mit Balkon geschaffen.
Auch optisch wirkt das Haus: Durch das farblich abgesetzte Zwerchhaus mit dem dritten Giebel erhält dieses Haus seine unverwechselbare Note.
Ausstattungsmerkmale
| Anzahl der Etagen im Haus | 2 |
| Küche | Offene Küche |
| Bad | 1 |
| Bad | Dusche, Wanne, Fenster |
| Boden | Fliesen, Estrich |
| Terrassen | 1 |
Unser Angebot beinhaltet das angebotene Einfamilienhaus inklusive dem Grundstück gemäß Bau-und Leistungsbeschreibung in folgender Variante (=Fast Fertig):
Die Highlights Ihres Hauses:
- ENEV: KfW-EH-40-Standard
- Architektenleistung inklusive
- Fußbodenheizung im Erdgeschoss & Dachgeschoss
- WÄRMEPUMPE
- Bodenplatte inklusive
- Wärmedämmende wohngesunde Außenfertigteilwände
- Großzügige Dachüberstände
- hochwertige Thermofenster mit 3-fach-Verglasung
- Aluminium Rollläden in Erdgeschoss & Dachgeschoss
- Außenfensterbänke aus Alu oder Marmor
- Innenfensterbänke aus Marmor
- hochwertige, repräsentative Hauseingangstüre
- Außenputz in verschiedenen Farben
- exklusive Badkeramik und Armaturen
- Badewanne inklusive Armaturen
- Bad und Gäste-WC inkl. Boden- u. Wandfliesen
- Haustechnikraum gefliest
- bodenebene, geflieste Dusche inkl. Armaturen
Wir garantieren Ihnen jederzeit klare Abläufe, eine sichere Preiskalkulation und eine termingerechte Bauübergabe.
Die Highlights Ihres Hauses:
- ENEV: KfW-EH-40-Standard
- Architektenleistung inklusive
- Fußbodenheizung im Erdgeschoss & Dachgeschoss
- WÄRMEPUMPE
- Bodenplatte inklusive
- Wärmedämmende wohngesunde Außenfertigteilwände
- Großzügige Dachüberstände
- hochwertige Thermofenster mit 3-fach-Verglasung
- Aluminium Rollläden in Erdgeschoss & Dachgeschoss
- Außenfensterbänke aus Alu oder Marmor
- Innenfensterbänke aus Marmor
- hochwertige, repräsentative Hauseingangstüre
- Außenputz in verschiedenen Farben
- exklusive Badkeramik und Armaturen
- Badewanne inklusive Armaturen
- Bad und Gäste-WC inkl. Boden- u. Wandfliesen
- Haustechnikraum gefliest
- bodenebene, geflieste Dusche inkl. Armaturen
Wir garantieren Ihnen jederzeit klare Abläufe, eine sichere Preiskalkulation und eine termingerechte Bauübergabe.
Sonstige Informationen
INDIVIDUELLE TRAUMHÄUSER
Ihre Vorteile:
* Festpreisgarantie 18 Monate
* Alle Häuser sind bereits im Standard mehr als 50 % besser als es die ENEV-Anforderungen
* Ausstattung mit deutschen Markenprodukten
* Individuelles Bauen nach Ihren Wünschen
* mehr als 1.000 Haustypen: schlüsselfertig, energieeffizient - in zertifizierter Qualität.
* wirtschaftliche Planungssicherheit für Sie
* Alles aus einer Hand
Ihre Vorteile:
* Festpreisgarantie 18 Monate
* Alle Häuser sind bereits im Standard mehr als 50 % besser als es die ENEV-Anforderungen
* Ausstattung mit deutschen Markenprodukten
* Individuelles Bauen nach Ihren Wünschen
* mehr als 1.000 Haustypen: schlüsselfertig, energieeffizient - in zertifizierter Qualität.
* wirtschaftliche Planungssicherheit für Sie
* Alles aus einer Hand
Karte wird geladen...
Objektstandort
91595 Burgoberbach
- Bayern
Lage & Infrastruktur
Objektstandort
91595 Burgoberbach
- Bayern
Das Grundstück befindet sich in Burgoberbach.
Das Grundstück ist über einen externen Partner/Makler/Eigentümer zu erwerben.
Die Maklercourtage wird NUR für das Grundstück berechnet und fällig.
Das Grundstück ist, nach Auskunft des Verkäufers erschlossen. Das Grundstück ist sofort bebaubar.
** Bitte haben Sie Verständnis, dass wir ohne ein persönliches Gespräch über das Haus keine Grundstücksdaten weiterleiten.**
Sie haben bereits ein Grundstück? Dann lassen Sie sich beraten, wie wir Ihre Hausbauwünsche erfüllen können.
Sie möchten ein anderes Haus auf diesem Grundstück, oder Sie möchten ein anderes Grundstück zu diesem Haus? Dann rufen Sie uns einfach an - wir beraten Sie sehr gerne.
Das Grundstück ist über einen externen Partner/Makler/Eigentümer zu erwerben.
Die Maklercourtage wird NUR für das Grundstück berechnet und fällig.
Das Grundstück ist, nach Auskunft des Verkäufers erschlossen. Das Grundstück ist sofort bebaubar.
** Bitte haben Sie Verständnis, dass wir ohne ein persönliches Gespräch über das Haus keine Grundstücksdaten weiterleiten.**
Sie haben bereits ein Grundstück? Dann lassen Sie sich beraten, wie wir Ihre Hausbauwünsche erfüllen können.
Sie möchten ein anderes Haus auf diesem Grundstück, oder Sie möchten ein anderes Grundstück zu diesem Haus? Dann rufen Sie uns einfach an - wir beraten Sie sehr gerne.
Kontaktanfrage senden
Über den Anbieter
1.2.3. Bauberatung - Horst Hellman
Bahnhofstr. 66
76751 Jockgrim
Kontakt
| Telefon | +49 7271 9812210 |
| Fax | +49 7271 9812221 |
Ansprechpartner/in
Herr Horst Hellmann