Bauen im Schützenredder in Schleswig - mit Dachbegrünung und PV-Anlage
335.000 €
Kaufpreis
129 m²
Wohnfläche
5,5
Zimmer
immobilien.de Nr.: 9056748
Objektnummer: 504-SL-DH-LS1.1
Preise & Kosten
| Kaufpreis | 335.000 € |
| Nebenkosten | keine Angabe |
Größe & Zustand
| Wohnfläche | 129 m² |
| Grundstücksfläche | 700 m² |
| Zimmer | 5,5 |
| Baujahr | 2025 |
| Verfügbar ab | keine Angabe |
| Zustand | Erstbezug |
Energie
| Energietyp | KfW-40 |
| Heizungsart | Fernwärme |
| Energieträger/Befeuerung | Luft-Wärme-Pumpe |
Objektbeschreibung
**Ihr Traumhaus in Schleswig: Stadtvilla mit individuellem Flair von STREIF**
Kontakt:
STREIF-Beratungsbüro Tarp
Levke Scheifel
Anemonenbogen 6
24963 Tarp
0179 - 40 95 350
levke.scheifel@streif.de
Der angegebene Preis bezieht sich auf eine Doppelhaushälfte inklusive PV-Anlage und der Vorbereitung für die Dachbegrünung.
Willkommen in Ihrem zukünftigen Zuhause! Diese beeindruckende Stadtvilla befindet sich im malerischen Neubaugebiet von Schleswig und bietet Ihnen die perfekte Kombination aus modernem Wohnkomfort und individueller Gestaltungsmöglichkeit. Mit einer großzügigen Wohnfläche von 129 m² und einem weitläufigen Grundstück von 700 m², ist dieses Projekt ideal für Familien, die Platz zum Leben und Wohlfühlen suchen.
### Raumaufteilung und Ausstattung
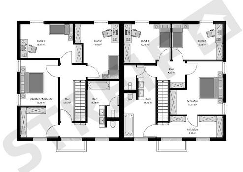
Die Stadtvilla verfügt über insgesamt 5,5 Zimmer, darunter drei helle Schlafzimmer, ein elegantes Badezimmer mit sowohl Dusche als auch Wanne sowie ein zusätzliches Gäste-WC. Die durchdachte Raumaufteilung ermöglicht es Ihnen, den Raum optimal zu nutzen und jeden Winkel Ihres neuen Zuhauses individuell zu gestalten.
Die gehobene Ausstattung sorgt dafür, dass Sie höchsten Wohnkomfort genießen können. Die Bodenbeläge aus hochwertigen Fliesen sind nicht nur pflegeleicht, sondern verleihen jedem Raum eine stilvolle Atmosphäre. Auf Wunsch können Sie auch andere Bodenbeläge wählen, um das Ambiente Ihrer Stadtvilla noch weiter an Ihre persönlichen Vorlieben anzupassen.
### Flexible Ausbaustufen nach Ihren Wünschen
Die Stadtvilla wird in der Ausbaustufe "FastFertigPlus" projektiert. Diese Stufe ermöglicht es Ihnen, aktiv am Bauprozess teilzunehmen und gleichzeitig von der Professionalität erfahrener Fachbetriebe zu profitieren. In dieser Ausbaustufe sind alle haustechnischen Gewerke (Lüftung, Sanitär und Estrich) bereits im Preis enthalten - Sie können also sicher sein, dass all diese wichtigen Komponenten fachgerecht installiert werden.
Darüber hinaus haben Sie die Möglichkeit, Eigenleistungen in Form einer Muskelhypothek zu erbringen. Dies kann nicht nur Ihre Kreditsumme reduzieren, sondern auch signifikante Einsparungen bei den Zinsen ermöglichen.
### Individuelle Gestaltungsmöglichkeiten
Mit STREIF haben Sie eine Vielzahl an Optionen zur Verfügung, um das äußere und innere Design Ihrer Stadtvilla ganz nach Ihren Wünschen zu gestalten - alles ist möglich! Auch hinsichtlich der Farbgestaltung sind Ihrer Kreativität keine Grenzen gesetzt: Wählen Sie zwischen lebhaften Farben oder dezenten Tönen.
Ihre persönliche STREIF-Bauberatung in Tarp stellt sicher, dass all Ihre Wünsche Gehör finden. Gemeinsam werden wir einen individuellen Grundriss erstellen und auf Ihre speziellen Bedürfnisse eingehen - sei es eine Terrasse für entspannte Sommerabende oder zusätzliche Räume für Hobbys oder Homeoffice.
### Fazit
Diese Stadtvilla in Schleswig bietet Ihnen alles, was Sie für ein modernes Familienleben benötigen - viel Platz, hohe Energieeffizienz und unzählige Gestaltungsmöglichkeiten. Lassen Sie uns gemeinsam Ihr Traumhaus verwirklichen! Kontaktieren Sie mich jetzt für eine persönliche Bauberatung und starten Sie noch heute in eine Zukunft voller Wohnfreude mit STREIF!
Kontakt:
STREIF-Beratungsbüro Tarp
Levke Scheifel
Anemonenbogen 6
24963 Tarp
0179 - 40 95 350
levke.scheifel@streif.de
Der angegebene Preis bezieht sich auf eine Doppelhaushälfte inklusive PV-Anlage und der Vorbereitung für die Dachbegrünung.
Willkommen in Ihrem zukünftigen Zuhause! Diese beeindruckende Stadtvilla befindet sich im malerischen Neubaugebiet von Schleswig und bietet Ihnen die perfekte Kombination aus modernem Wohnkomfort und individueller Gestaltungsmöglichkeit. Mit einer großzügigen Wohnfläche von 129 m² und einem weitläufigen Grundstück von 700 m², ist dieses Projekt ideal für Familien, die Platz zum Leben und Wohlfühlen suchen.
### Raumaufteilung und Ausstattung
Die Stadtvilla verfügt über insgesamt 5,5 Zimmer, darunter drei helle Schlafzimmer, ein elegantes Badezimmer mit sowohl Dusche als auch Wanne sowie ein zusätzliches Gäste-WC. Die durchdachte Raumaufteilung ermöglicht es Ihnen, den Raum optimal zu nutzen und jeden Winkel Ihres neuen Zuhauses individuell zu gestalten.
Die gehobene Ausstattung sorgt dafür, dass Sie höchsten Wohnkomfort genießen können. Die Bodenbeläge aus hochwertigen Fliesen sind nicht nur pflegeleicht, sondern verleihen jedem Raum eine stilvolle Atmosphäre. Auf Wunsch können Sie auch andere Bodenbeläge wählen, um das Ambiente Ihrer Stadtvilla noch weiter an Ihre persönlichen Vorlieben anzupassen.
### Flexible Ausbaustufen nach Ihren Wünschen
Die Stadtvilla wird in der Ausbaustufe "FastFertigPlus" projektiert. Diese Stufe ermöglicht es Ihnen, aktiv am Bauprozess teilzunehmen und gleichzeitig von der Professionalität erfahrener Fachbetriebe zu profitieren. In dieser Ausbaustufe sind alle haustechnischen Gewerke (Lüftung, Sanitär und Estrich) bereits im Preis enthalten - Sie können also sicher sein, dass all diese wichtigen Komponenten fachgerecht installiert werden.
Darüber hinaus haben Sie die Möglichkeit, Eigenleistungen in Form einer Muskelhypothek zu erbringen. Dies kann nicht nur Ihre Kreditsumme reduzieren, sondern auch signifikante Einsparungen bei den Zinsen ermöglichen.
### Individuelle Gestaltungsmöglichkeiten
Mit STREIF haben Sie eine Vielzahl an Optionen zur Verfügung, um das äußere und innere Design Ihrer Stadtvilla ganz nach Ihren Wünschen zu gestalten - alles ist möglich! Auch hinsichtlich der Farbgestaltung sind Ihrer Kreativität keine Grenzen gesetzt: Wählen Sie zwischen lebhaften Farben oder dezenten Tönen.
Ihre persönliche STREIF-Bauberatung in Tarp stellt sicher, dass all Ihre Wünsche Gehör finden. Gemeinsam werden wir einen individuellen Grundriss erstellen und auf Ihre speziellen Bedürfnisse eingehen - sei es eine Terrasse für entspannte Sommerabende oder zusätzliche Räume für Hobbys oder Homeoffice.
### Fazit
Diese Stadtvilla in Schleswig bietet Ihnen alles, was Sie für ein modernes Familienleben benötigen - viel Platz, hohe Energieeffizienz und unzählige Gestaltungsmöglichkeiten. Lassen Sie uns gemeinsam Ihr Traumhaus verwirklichen! Kontaktieren Sie mich jetzt für eine persönliche Bauberatung und starten Sie noch heute in eine Zukunft voller Wohnfreude mit STREIF!
Ausstattung
| Anzahl der Etagen im Haus | 2 |
| Küche | Offene Küche |
| Bad | 1 |
| Bad | Dusche, Wanne |
| Boden | Fliesen |
| Terrassen | 1 |
"STREIF-Häuser sind Energiesparhäuser. Die Außenwände im Passiv-Haus-Standard und eine integrierte Wohnraumlüftung, garantieren einen geringen Energieverbrauch und ein fantastisches Raumklima, das insbesondere Allergiker aufatmen lässt.
STREIF Leistungen sind MEHR WERT - schon im Grundpreis enthalten!
- 20-monatige Festpreisgarantie
- Energieeffizienzhaus KfW 40 im Standard
- Inkl. Fundamentplatte
- Inkl. STREIF-Lüftungsanlage
- Inkl. Haustür von KERA und Fenster von Porta/Kömmerling
- Inkl. Massivholz-Geschosstreppe aus eigener Produktion
- Inkl. Sanitärobjekte von Markenherstellern
- Inkl. Elektroinstallation
- Inkl. Baubetreuung u.v.m.
Die hohe Wertigkeit und Langlebigkeit eines STREIF-Energiespar-Hauses wird durch zahlreiche Auszeichnungen, Qualitäts- und Gütesiegel unabhängiger Institute und Verbände dokumentiert.
Der Angebotspreis ist exklusive Grundstück und bezieht sich auf die Ausbaustufe Schlüsselfertig
Baunebenkosten fallen zuzüglich an.
Bilder können evtl. Anbauteile, Carports, Balkone, Gauben usw. zeigen, die nicht im Angebotspreis enthalten sind. Änderungen und Irrtümer vorbehalten."
Hauspreis zzgl. Grundstückspreis/Erbbaupacht + Nebenkosten, Heizungsanlage der Stadtwerke, Baunebenkosten und Kosten für die Dachbegrünung.
Bitte besuchen Sie die Homepage: https://schuetzenredder.de/
Und bewerben sich dort auf ein Grundstück.
STREIF Leistungen sind MEHR WERT - schon im Grundpreis enthalten!
- 20-monatige Festpreisgarantie
- Energieeffizienzhaus KfW 40 im Standard
- Inkl. Fundamentplatte
- Inkl. STREIF-Lüftungsanlage
- Inkl. Haustür von KERA und Fenster von Porta/Kömmerling
- Inkl. Massivholz-Geschosstreppe aus eigener Produktion
- Inkl. Sanitärobjekte von Markenherstellern
- Inkl. Elektroinstallation
- Inkl. Baubetreuung u.v.m.
Die hohe Wertigkeit und Langlebigkeit eines STREIF-Energiespar-Hauses wird durch zahlreiche Auszeichnungen, Qualitäts- und Gütesiegel unabhängiger Institute und Verbände dokumentiert.
Der Angebotspreis ist exklusive Grundstück und bezieht sich auf die Ausbaustufe Schlüsselfertig
Baunebenkosten fallen zuzüglich an.
Bilder können evtl. Anbauteile, Carports, Balkone, Gauben usw. zeigen, die nicht im Angebotspreis enthalten sind. Änderungen und Irrtümer vorbehalten."
Hauspreis zzgl. Grundstückspreis/Erbbaupacht + Nebenkosten, Heizungsanlage der Stadtwerke, Baunebenkosten und Kosten für die Dachbegrünung.
Bitte besuchen Sie die Homepage: https://schuetzenredder.de/
Und bewerben sich dort auf ein Grundstück.
Sonstige Informationen
"STREIF kann auf mehr als 90.000 gebaute Hausprojekte zurückblicken und somit auf einen Marktanteil, aller in Deutschland gebauten Fertighäuser, von über neun Prozent.
Sie möchten bauen, wünschen sich einen Ansprechpartner aus und für Ihre Region, sowie einen zuverlässigen Baupartner?
Das Unternehmen STREIF gehört mit über 90.000 realisierten Bauprojekten zu den führenden Herstellern und ist seit 1929 in der Fertighausbranche tätig.
STREIF bringt alles mit, was Sie für die Realisierung Ihres Hausbauwunsches benötigen.
Neben einer individuellen Architektur, bieten wir Ihnen innovative Energiesparkonzepte, einen koordinierten Planungs- und Bauprozess und einen planbaren Finanzrahmen für Ihr neues Zuhause.
Beim Neubau eines Hauses sind heutzutage die Themen Nachhaltigkeit, Förderfähigkeit und Wohngesundheit sehr wichtig.
Ein STREIF-Fertighaus besteht größtenteils aus dem natürlichen Baustoff Holz, es vereint Wohnkomfort mit Energieeffizienz und ist, getreu dem STREIF-Motto "Häuser mit Herz und Verstand", schon im Standard ein KfW-Energieeffizienzhaus 40 EE. Profitieren auch Sie von einem Energiesparhaus, dass Ihnen Planungssicherheit sowie Lebens- und Wohnqualität bietet. Ein STREIF-Fertighaus bietet Ihnen dies alles und noch viel mehr.
Im Zusammenspiel mit Ihnen erstelle ich für Sie gerne ein individuelles Hauskonzept, dass ganz auf Ihre Wünsche und Bedürfnisse, angepasst auf Ihr Budget, zugeschnitten ist.
Mit der Festpreisgarantie von STREIF Haus erleben Sie auch keine böse Überraschung, falls sich der Markt ändern sollte.
Bauen ist Vertrauenssache! Gerne begleite ich Sie von der ersten Planung bis zur Hausübergabe.
Ich freue mich, Sie und Ihren Hausbauwunsch kennenzulernen, und lade Sie gerne zu mir nach Tarp ein.
Ihre STREIF-Bauberaterin im Norden Schleswig-Holsteins.
STREIF wurde bereits zum elften Mal in Folge von FOCUS Money als "Fairster Fertighausanbieter" mit der Note "sehr gut" ausgezeichnet."
Sie möchten bauen, wünschen sich einen Ansprechpartner aus und für Ihre Region, sowie einen zuverlässigen Baupartner?
Das Unternehmen STREIF gehört mit über 90.000 realisierten Bauprojekten zu den führenden Herstellern und ist seit 1929 in der Fertighausbranche tätig.
STREIF bringt alles mit, was Sie für die Realisierung Ihres Hausbauwunsches benötigen.
Neben einer individuellen Architektur, bieten wir Ihnen innovative Energiesparkonzepte, einen koordinierten Planungs- und Bauprozess und einen planbaren Finanzrahmen für Ihr neues Zuhause.
Beim Neubau eines Hauses sind heutzutage die Themen Nachhaltigkeit, Förderfähigkeit und Wohngesundheit sehr wichtig.
Ein STREIF-Fertighaus besteht größtenteils aus dem natürlichen Baustoff Holz, es vereint Wohnkomfort mit Energieeffizienz und ist, getreu dem STREIF-Motto "Häuser mit Herz und Verstand", schon im Standard ein KfW-Energieeffizienzhaus 40 EE. Profitieren auch Sie von einem Energiesparhaus, dass Ihnen Planungssicherheit sowie Lebens- und Wohnqualität bietet. Ein STREIF-Fertighaus bietet Ihnen dies alles und noch viel mehr.
Im Zusammenspiel mit Ihnen erstelle ich für Sie gerne ein individuelles Hauskonzept, dass ganz auf Ihre Wünsche und Bedürfnisse, angepasst auf Ihr Budget, zugeschnitten ist.
Mit der Festpreisgarantie von STREIF Haus erleben Sie auch keine böse Überraschung, falls sich der Markt ändern sollte.
Bauen ist Vertrauenssache! Gerne begleite ich Sie von der ersten Planung bis zur Hausübergabe.
Ich freue mich, Sie und Ihren Hausbauwunsch kennenzulernen, und lade Sie gerne zu mir nach Tarp ein.
Ihre STREIF-Bauberaterin im Norden Schleswig-Holsteins.
STREIF wurde bereits zum elften Mal in Folge von FOCUS Money als "Fairster Fertighausanbieter" mit der Note "sehr gut" ausgezeichnet."
Lage des Objektes
Im Norden der schönen Kreisstadt Schleswig entsteht ein neues Baugebiet.
Es fügt sich großzügig in ein schon bestehendes und nachgefragtes Wohnquartier ein, das durch seine Einfamilienhausbebauung maßgeblich geprägt ist. Grün leben in der Stadt: Das Areal ist gesäumt von Knicks und alten Bäumen. Die neuen Gebäude werden mit Gründächern beschaffen sein und mit kalter Nahwärme beheizt oder gekühlt.
Das umweltfreundliche Quartier Schützenredder im Norden der Stadt ist beliebt - auch durch nahgelegene Einkaufsmöglichkeiten. Zudem ist die Grundschule-Nord (Schützenredder 16) fußläufig erreichbar. Das Schleswiger Stadtzentrum sowie die Altstadt mit dem Schleswiger Dom sind circa 4 km entfernt.
Informationen zum Baugebiet:
Auf den rund 80 Grundstücken sollen Ein- und Mehrfamilienhäuser entstehen. Auch Doppelhäuser sind möglich. Es werden Dachneigungen von 0° bis 25° zugelassen, deren Ausrichtung auch die Installation von Photovoltaikanlagen möglich macht. Die Stadt Schleswig legt Wert auf den sozialen Wohnungsbau - daher werden auch mindestens 18 Wohneinheiten in kleineren Mehrfamilienhäusern entstehen.
Die Grundstücke werden überwiegend im Zuge des Erbbaurechts zur Verfügung gestellt. Beim Erbbaurecht bleibt die Altstädter St. Knudsgilde weiterhin Eigentümer des Grundstücks und stellt dieses dem sogenannten Erbbaurechtsnehmer für seine Bebauung zur Verfügung.
Eigentümer des Gebäudes ist der Erbbaurechtsnehmer, also Sie. Um eine dem Kauf ähnliche Nutzung zu sichern, werden die Verträge auf sehr lange Zeit (regelmäßig 99 Jahre) geschlossen. Ein Kauf wird für eine begrenzte Anzahl von Grundstücken möglich sein.
Es fügt sich großzügig in ein schon bestehendes und nachgefragtes Wohnquartier ein, das durch seine Einfamilienhausbebauung maßgeblich geprägt ist. Grün leben in der Stadt: Das Areal ist gesäumt von Knicks und alten Bäumen. Die neuen Gebäude werden mit Gründächern beschaffen sein und mit kalter Nahwärme beheizt oder gekühlt.
Das umweltfreundliche Quartier Schützenredder im Norden der Stadt ist beliebt - auch durch nahgelegene Einkaufsmöglichkeiten. Zudem ist die Grundschule-Nord (Schützenredder 16) fußläufig erreichbar. Das Schleswiger Stadtzentrum sowie die Altstadt mit dem Schleswiger Dom sind circa 4 km entfernt.
Informationen zum Baugebiet:
Auf den rund 80 Grundstücken sollen Ein- und Mehrfamilienhäuser entstehen. Auch Doppelhäuser sind möglich. Es werden Dachneigungen von 0° bis 25° zugelassen, deren Ausrichtung auch die Installation von Photovoltaikanlagen möglich macht. Die Stadt Schleswig legt Wert auf den sozialen Wohnungsbau - daher werden auch mindestens 18 Wohneinheiten in kleineren Mehrfamilienhäusern entstehen.
Die Grundstücke werden überwiegend im Zuge des Erbbaurechts zur Verfügung gestellt. Beim Erbbaurecht bleibt die Altstädter St. Knudsgilde weiterhin Eigentümer des Grundstücks und stellt dieses dem sogenannten Erbbaurechtsnehmer für seine Bebauung zur Verfügung.
Eigentümer des Gebäudes ist der Erbbaurechtsnehmer, also Sie. Um eine dem Kauf ähnliche Nutzung zu sichern, werden die Verträge auf sehr lange Zeit (regelmäßig 99 Jahre) geschlossen. Ein Kauf wird für eine begrenzte Anzahl von Grundstücken möglich sein.
