Einfamilienhaus
139.000 €
Kaufpreis
143,19 m²
Wohnfläche
42,69 m²
Nutzfläche
5
Zimmer
immobilien.de Nr.: 9037998
Objektnummer: 583
Preise & Kosten
| Kaufpreis | 139.000 € |
| Nebenkosten | keine Angabe |
| Maklerprovision | 3,57 % inkl. 19 % MwSt. |
Größe & Zustand
| Wohnfläche | 143,19 m² |
| Nutzfläche | 42,69 m² |
| Grundstücksfläche | 393 m² |
| Zimmer | 5 |
| Verfügbar ab | keine Angabe |
Energie
| Energieausweistyp | Verbrauch |
| Ausstellungsdatum | 08. 05. 2025 |
| Gültig bis | 08.05.2035 |
| Baujahr (laut Energieausweis) | 2010 |
| Energieverbrauchkennwert | 66,80 kWh/(m²*a) |
| Heizungsart | Zentralheizung |
| Energieträger/Befeuerung | Gas |
Objektbeschreibung
frei stehendes Einfamilienhaus, zweigeschossig, ausgebautes Dachgeschoss, nicht ausgebauter Spitzboden
Baujahr: ca. 1890, Teilsanierung 1995/1997
Konstruktionsart: Fachwerk, massiv
Fundament: Streifenfundament
Umfassungswände:
Erdgeschoss: Mauerwerk verputz,
Anbau (Garage und Schlafzimmer) Schwerbeton-
Hohlblockmauerwerk, verputzt
übrigen Geschosse: Holzfachwerk mit Ausmauerung
Gebäudewestseite = Drainage
Fassade:
Sockelbereich = Natursteinmauerwerk mit Anstrich
Erdgeschoss = Silikatharzputz
Ober- und Dachgeschoss = Faserzementplattenverkleidung (1996) auf Mineralwolldämmung
Giebelseite Nordost und Anbau Hinterseite = Außenputz mit Anstrich
Dach:
Satteldach, Dacheindeckung = Tonfalzziegel
auf Lattung (1997), Zwischensparrendämmung, Schneefangbalken
Spenglerarbeiten = Zink (1996)
Anbau = massives Flachdach mit Dachterrasse,
Dacheindeckung = Bitumenschweißbahnen
Fenster:
überwiegen PVC, isolierverglast (1996), teilweise mit zwischenliegender Sprossteilung, Rollläden
Holz-Isolierglas-Wohndachfenster (1997)
Fensterbänke innen = Werzalit
Fensterbänke außen = überwiegend Blech
Decken:
Holzbalkendecken
Anbau = Stahlbetondecken
Elektro: Hausanschluss Freileitung, Leitungssystem teilweise erneuert
Baujahr: ca. 1890, Teilsanierung 1995/1997
Konstruktionsart: Fachwerk, massiv
Fundament: Streifenfundament
Umfassungswände:
Erdgeschoss: Mauerwerk verputz,
Anbau (Garage und Schlafzimmer) Schwerbeton-
Hohlblockmauerwerk, verputzt
übrigen Geschosse: Holzfachwerk mit Ausmauerung
Gebäudewestseite = Drainage
Fassade:
Sockelbereich = Natursteinmauerwerk mit Anstrich
Erdgeschoss = Silikatharzputz
Ober- und Dachgeschoss = Faserzementplattenverkleidung (1996) auf Mineralwolldämmung
Giebelseite Nordost und Anbau Hinterseite = Außenputz mit Anstrich
Dach:
Satteldach, Dacheindeckung = Tonfalzziegel
auf Lattung (1997), Zwischensparrendämmung, Schneefangbalken
Spenglerarbeiten = Zink (1996)
Anbau = massives Flachdach mit Dachterrasse,
Dacheindeckung = Bitumenschweißbahnen
Fenster:
überwiegen PVC, isolierverglast (1996), teilweise mit zwischenliegender Sprossteilung, Rollläden
Holz-Isolierglas-Wohndachfenster (1997)
Fensterbänke innen = Werzalit
Fensterbänke außen = überwiegend Blech
Decken:
Holzbalkendecken
Anbau = Stahlbetondecken
Elektro: Hausanschluss Freileitung, Leitungssystem teilweise erneuert
Ausstattung
| Küche | Einbauküche |
Erdgeschoss: Flur/ Treppenhaus, Bad, Gästezimmer, Hauswirtschaftsraum, Gewölbekeller, 2 Abstellräume, Garage
Obergeschoss: Flur/ Treppenhaus, Durchgang mit Zugang zum Grundstück,
Abstellraum, Zugang zum Schuppen, Vorraum, Wohnzimmer, Küche, Bad, Schlafzimmer
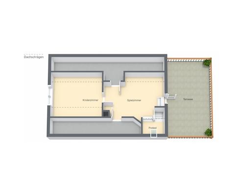
Dachgeschoss: Podest, Spielzimmer zum Zugang zur Dachterrasse, Kinderzimmer
Spitzboden: nicht ausgebaut
Innenausstattung:
Treppe:
Zugang zum OG = eingestemmt Holztreppe (1995) mit wandhängender Rundholzhandlauf
Zugang zum Dachboden = halbgestemmte Holzwangentreppe mit Zwischenpodest (1995), Holzgeländer mit Vierkantstabfüllung
Bodenbeläge:
Erdgeschoss = Fliesen, Betonboden
Obergeschoss = Flur, Küche = Laminat,
Wohnzimmer = Parkett
Bad/ WC = PVC-Belag
Schlafzimmer = Betonboden
Vorraum = Dielen
Dachgeschoss = Teppich, Dielen
Spitzboden = Abbretterung
Wände/ Decken:
überwiegend Wand- und Deckenputz mit Tapete
teilweise Wand- und Deckenverkleidungen mit Profiholz
Bad / WC, Duschbereich = raumhoher gefliest
Küche und WC – Bereich = teilweise gefliest
Bad/ WC, Küche und Dusche im Erdgeschoss = Paneeldeckenverkleidung
Innentüren:
glatte Holztüren mit Glasausschnitt, alt
teilweise furnierte Holzfülltüren mit Glasausschnitt (1996)
Sanitär:
Erdgeschoss: Dusche und Handwaschbecken
Hauswirtschaftsraum = WC
Obergeschoss: WC, Wanne, Handwaschbecken
Wärmeversorgung:
Gasheizung, Buderus, (2010)
Plattenheizkörper, Anbau – Gussheizkörper
Warmwasser: Heizung
Sonstiges: Einbauküche
Obergeschoss: Flur/ Treppenhaus, Durchgang mit Zugang zum Grundstück,
Abstellraum, Zugang zum Schuppen, Vorraum, Wohnzimmer, Küche, Bad, Schlafzimmer
Dachgeschoss: Podest, Spielzimmer zum Zugang zur Dachterrasse, Kinderzimmer
Spitzboden: nicht ausgebaut
Innenausstattung:
Treppe:
Zugang zum OG = eingestemmt Holztreppe (1995) mit wandhängender Rundholzhandlauf
Zugang zum Dachboden = halbgestemmte Holzwangentreppe mit Zwischenpodest (1995), Holzgeländer mit Vierkantstabfüllung
Bodenbeläge:
Erdgeschoss = Fliesen, Betonboden
Obergeschoss = Flur, Küche = Laminat,
Wohnzimmer = Parkett
Bad/ WC = PVC-Belag
Schlafzimmer = Betonboden
Vorraum = Dielen
Dachgeschoss = Teppich, Dielen
Spitzboden = Abbretterung
Wände/ Decken:
überwiegend Wand- und Deckenputz mit Tapete
teilweise Wand- und Deckenverkleidungen mit Profiholz
Bad / WC, Duschbereich = raumhoher gefliest
Küche und WC – Bereich = teilweise gefliest
Bad/ WC, Küche und Dusche im Erdgeschoss = Paneeldeckenverkleidung
Innentüren:
glatte Holztüren mit Glasausschnitt, alt
teilweise furnierte Holzfülltüren mit Glasausschnitt (1996)
Sanitär:
Erdgeschoss: Dusche und Handwaschbecken
Hauswirtschaftsraum = WC
Obergeschoss: WC, Wanne, Handwaschbecken
Wärmeversorgung:
Gasheizung, Buderus, (2010)
Plattenheizkörper, Anbau – Gussheizkörper
Warmwasser: Heizung
Sonstiges: Einbauküche
Sonstige Informationen
Grundstück:
Größe: ca. 393 m²
Gestalt und Form: unregelmäßiges Vieleck von schmaler, länglicher, trapezähnlicher Gestalt
Erschließung:Strom (Freileitung), Gas, Kanalisation, Wasser/ Abwasser,
SAT-Anlage, Telefon und Internet über Kabelanschluss
Straßenart: Anliegerstraße
Grenzverhältnisse: einseitige Bebauung
Zufahrt: Asphalt
Außenanlage:
Grünbereich, Gewächshaus, Carport, Terrasse
Einfriedung = Naturzaun
Größe: ca. 393 m²
Gestalt und Form: unregelmäßiges Vieleck von schmaler, länglicher, trapezähnlicher Gestalt
Erschließung:Strom (Freileitung), Gas, Kanalisation, Wasser/ Abwasser,
SAT-Anlage, Telefon und Internet über Kabelanschluss
Straßenart: Anliegerstraße
Grenzverhältnisse: einseitige Bebauung
Zufahrt: Asphalt
Außenanlage:
Grünbereich, Gewächshaus, Carport, Terrasse
Einfriedung = Naturzaun
